ᐅ Einfamilienhaus - ca. 150qm² - ohne Keller - Wer hat Ideen? Danke
Erstellt am: 02.10.18 09:36
T
tumaaVorab, danke für eure Kommentare in meinem letzten Thread, es war ein 3FH geplant, fangen wieder jetzt von vorne an und wollen doch nur ein "1FH" für uns bauen lassen.
paar Infos zum Grundstück (es befindet sich noch das alte Objekt darauf, wird noch abgerissen, s. Objekt 24):
- 1170 qm²
- kein Hang, gerade
- Grundflächenzahl & Geschossflächenzahl (bin unterwegs, muss später noch mal nachgucken)
- nebenan befindet sich eine Tischlerei bzw. die Lagerhalle von der Tischlerei, es soll 5m für die Baugrenze eingehalten werden.
Personenanzahl:
- Eltern mit 3 Kindern (10, 8 und 3 Jahre alt)
unsere Wünsche:
- Gäste-Wc mit Dusche und großes Badezimmer
- eine Küche (offene?), die viel Licht bekommt, meine Frau hat einen Kochkanal bei YouTube
- 2-Geschossig (am liebsten) bzw. möglichst wenig Schrägen
- Dachform = Satteldach ? (wollen es auf jeden Fall ausbauen lassen, evtl. für uns oder für die Kinder)
- ohne Keller
- soll verklinkert werden
- Carport oder Garage, sind da noch flexibel......
- evtl. soll im EG noch ein Gästezimmer/Bürozimmer sein
- evtl. mit Anlieger ? falls wir mal allein sind und das Haus dann zu groß für uns ist....
Mein Architekt ist noch gerade im Urlaub, wenn er wieder da ist, kümmert er sich darum.....und wenn der Entwurf fertig ist, werde ich den hier posten
Fragen:
- Habt ihr noch weitere Ideen, was ich noch beachten bzw. angeben sollte ?
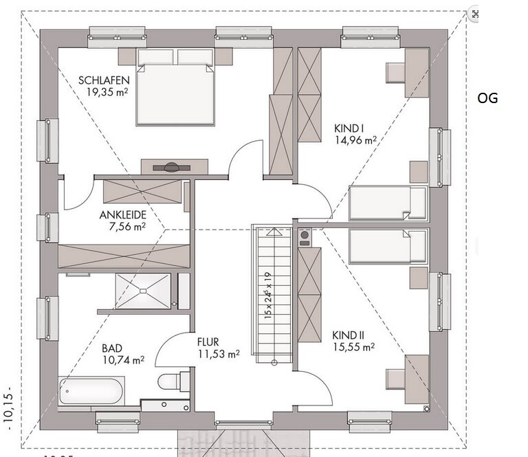
- uns gefällt dieser Musterplan (siehe Anhang), was hält ihr davon ? (Dachboden ist nich mit drin, die Zimmeraufteilung passt dann)
bin für den jeden nutzbaren Kommentar dankbar .......(wahrscheinlich auch Ansichtssache )
PS: Maßstab des Grundstücks ist 1:500



paar Infos zum Grundstück (es befindet sich noch das alte Objekt darauf, wird noch abgerissen, s. Objekt 24):
- 1170 qm²
- kein Hang, gerade
- Grundflächenzahl & Geschossflächenzahl (bin unterwegs, muss später noch mal nachgucken)
- nebenan befindet sich eine Tischlerei bzw. die Lagerhalle von der Tischlerei, es soll 5m für die Baugrenze eingehalten werden.
Personenanzahl:
- Eltern mit 3 Kindern (10, 8 und 3 Jahre alt)
unsere Wünsche:
- Gäste-Wc mit Dusche und großes Badezimmer
- eine Küche (offene?), die viel Licht bekommt, meine Frau hat einen Kochkanal bei YouTube
- 2-Geschossig (am liebsten) bzw. möglichst wenig Schrägen
- Dachform = Satteldach ? (wollen es auf jeden Fall ausbauen lassen, evtl. für uns oder für die Kinder)
- ohne Keller
- soll verklinkert werden
- Carport oder Garage, sind da noch flexibel......
- evtl. soll im EG noch ein Gästezimmer/Bürozimmer sein
- evtl. mit Anlieger ? falls wir mal allein sind und das Haus dann zu groß für uns ist....
Mein Architekt ist noch gerade im Urlaub, wenn er wieder da ist, kümmert er sich darum.....und wenn der Entwurf fertig ist, werde ich den hier posten
Fragen:
- Habt ihr noch weitere Ideen, was ich noch beachten bzw. angeben sollte ?
- uns gefällt dieser Musterplan (siehe Anhang), was hält ihr davon ? (Dachboden ist nich mit drin, die Zimmeraufteilung passt dann)
bin für den jeden nutzbaren Kommentar dankbar .......(wahrscheinlich auch Ansichtssache )
PS: Maßstab des Grundstücks ist 1:500
kaho674 schrieb:
Habe nur die ersten 3 Zeilen gelesen und möchte gleich sagen: Glückwunsch zur Einsicht! - bin kein Vermietertyp .....es kamen andere Umstände dazu , diesen Entwurf fertigen zu lassen......
egal, neuer Start ......
Naja 0815-Standardgrundriss, hier in 37 Threads zu verfolgen.
Ganz allgemein, nicht gegen dich, verstehe ich immer nicht ganz warum 90%(?) den selben dünnef bauen.
Man muss es ja an Individualismus nicht übertreiben, aber ein Haus, was Grundstück, Umgebung und persönliche Anforderungen berücksichtigt, gerade wenn man auch einen Architekten hat, kann es eigentlich schon sein.
Ganz allgemein, nicht gegen dich, verstehe ich immer nicht ganz warum 90%(?) den selben dünnef bauen.
Man muss es ja an Individualismus nicht übertreiben, aber ein Haus, was Grundstück, Umgebung und persönliche Anforderungen berücksichtigt, gerade wenn man auch einen Architekten hat, kann es eigentlich schon sein.
Lumpi_LE schrieb:
Naja 0815-Standardgrundriss, hier in 37 Threads zu verfolgen.
Ganz allgemein, nicht gegen dich, verstehe ich immer nicht ganz warum 90%(?) den selben dünnef bauen.
Man muss es ja an Individualismus nicht übertreiben, aber ein Haus, was Grundstück, Umgebung und persönliche Anforderungen berücksichtigt, gerade wenn man auch einen Architekten hat, kann es eigentlich schon sein.Ist auch vielleicht die Aufgabe des Architekten , aber habe ja unsere Wünsche angegeben.....vielleicht könntest du mal ein Entwurf für uns gerade erstellen bzw. vielleicht kommt dann der Individualismus
Soll das 3. Kind das Zimmer im EG kriegen?
Situation Ankleide/Schlafzimmer finde ich nicht optimal.
Würde wohl Ankleide/Schlafzimmer zu Gunsten eines größeren Bades verkleinern (soviel Platz braucht kein Mensch zum Schlafen)
So wie die Aufteilung jetzt ist, müßte das Schlafzimmer auf der Schokoladenseite, also S, SW oder SO sein und das eine Kinderzimmer im Norden. Würde ich auch nicht so machen.
Da der Entwurf quadratisch ist, ist leider nicht zu erkennen, wie das Haus auf dem Grundstück liegt, aber ich geh mal davon aus, daß der Wohnbereich nicht in den Norden soll.
Insgesamt: naja, Standardentwurf. Warum willst du dann einen Architekten bemühen? Das kriegt ein GU auch hin...
Naja, gut, wenn ich an den Standardentwurf denke, den besagter Architekt für das 3-Parteien-Haus geliefert hat, dann paßt das vielleicht schon.
Situation Ankleide/Schlafzimmer finde ich nicht optimal.
Würde wohl Ankleide/Schlafzimmer zu Gunsten eines größeren Bades verkleinern (soviel Platz braucht kein Mensch zum Schlafen)
So wie die Aufteilung jetzt ist, müßte das Schlafzimmer auf der Schokoladenseite, also S, SW oder SO sein und das eine Kinderzimmer im Norden. Würde ich auch nicht so machen.
Da der Entwurf quadratisch ist, ist leider nicht zu erkennen, wie das Haus auf dem Grundstück liegt, aber ich geh mal davon aus, daß der Wohnbereich nicht in den Norden soll.
Insgesamt: naja, Standardentwurf. Warum willst du dann einen Architekten bemühen? Das kriegt ein GU auch hin...
Naja, gut, wenn ich an den Standardentwurf denke, den besagter Architekt für das 3-Parteien-Haus geliefert hat, dann paßt das vielleicht schon.
Ähnliche Themen