ᐅ Einfamilienhaus, 3 Kinderzimmer, 2 Bäder, ca. 10,5x10,5 m2
Erstellt am: 07.01.20 11:13
Hallo zusammen,
wir planen aktuell ein Einfamilienhaus. Wir haben einen Bauunternehmer, der auch die Architektenleistung übernimmt. Der erste Vorschlag war relativ standardmäßig und hat uns nicht 100% gefallen, daher haben wir selbst noch etwas weitergeplant. Anbei der aktuelle Stand mit der Bitte um Kritik insbesondere zur Lage/Art der Treppe und dem Wohn/Essbereich im EG. Alle weiteren Infos s.u.
Vielen Dank!
Bebauungsplan/Einschränkungen
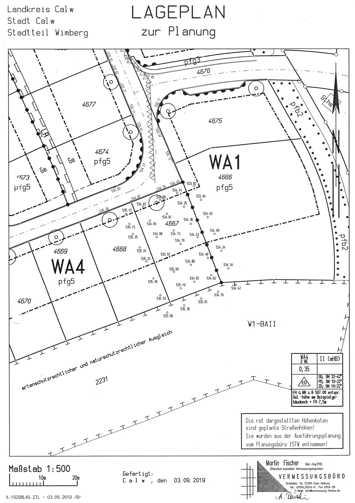
Größe des Grundstücks: 511 m2
Hang: minimal: 1m Höhenunterschied von West nach Ost fallend (über 16 m)
Grundflächenzahl: 0,35
Geschossflächenzahl: 2 Vollgeschosse
Baufenster, Baulinie und -grenze: 2,5 m seitlich, 3 m zur Straße
Randbebauung: Garage möglich
Anzahl Stellplatz: 1,5
Geschossigkeit: 2 Vollgeschosse
Dachform: Satteldach, 32°
Stilrichtung
Ausrichtung: Nord/Süd, First West/Ost
Maximale Höhen/Begrenzungen: Max. Firsthöhe 7,50 m
weitere Vorgaben
Anforderungen der Bauherren
Stilrichtung, Dachform, Gebäudetyp
Keller, Geschosse: Keller, 2 Vollgeschosse
Anzahl der Personen, Alter: 2 Erwachsene, 3 Kinder (5,3,1)
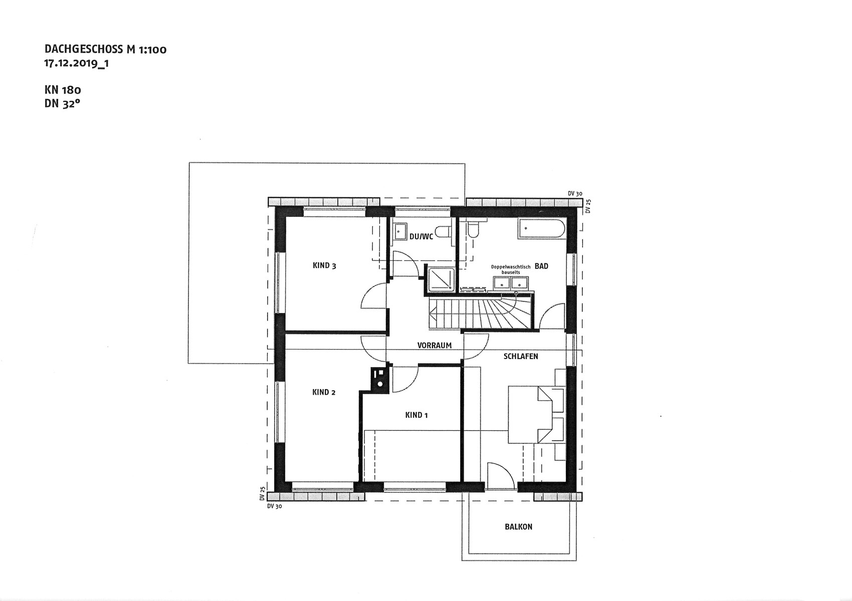
Raumbedarf im EG, OG: EG: Küche, Essbereich, Wohnzimmer, Gäste-WC, Gästezimmer/Büro. OG: Schlafzimmer, 3 Kinderzimmer, 2 Bäder
Büro: Familiennutzung
offene Küche, Kochinsel
Anzahl Essplätze: 8
Kamin: ja
Balkon
Garage
Besonderheiten: Erker für den Essbereich, OG: Direkter Zugang zum Elternbad vom Schlafzimmer aus. Elternschlafzimmer zum Garten hin, möglichst 2 Kinderzimmer mit Blick zum Garten.
Hausentwurf
Von wem stammt die Planung:
-Planer eines Bauunternehmens
-Do-it-Yourself
Was gefällt besonders? Warum?
Grundsätzlich alle Anforderungen aufgenommen, nur Größenverhältnisse könnten noch besser sein.
Was gefällt nicht? Warum?
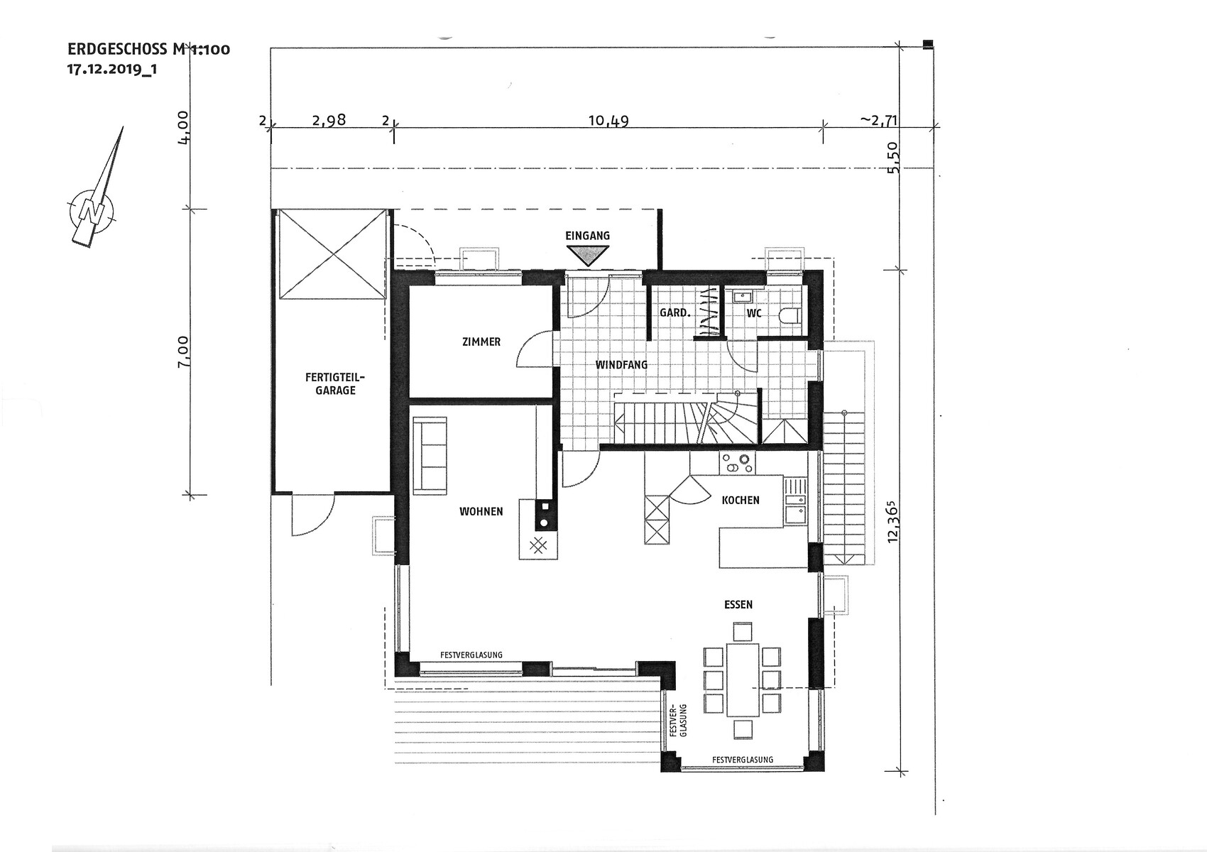
Zwischen Wohnzimmer und Essbereich ist aktuell noch ein großer freier Raum, der nicht gut genutzt werden kann.
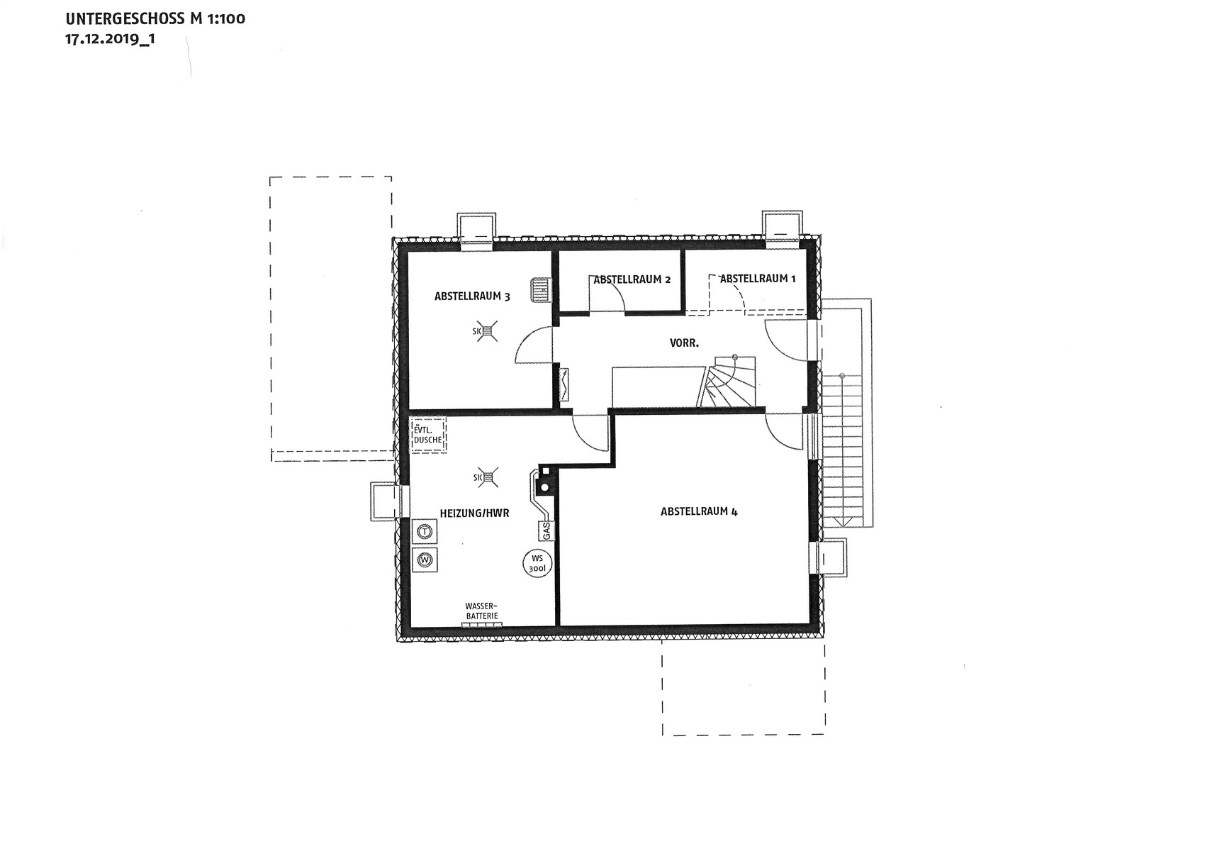
Aufgrund der aktuellen Treppenanordnung und dem resultierenden Durchgang zum Wohnzimmer ist der "Fernsehbereich" im Wohnzimmer etwas zu schmal. Ideal wären 4 m Breite.
Im OG wird der Zugang zum Elternbad durch einen kleinen Gang hinter der Treppe realisiert. Idealerweise könnte diese "tote Raum" eingespart werden durch eine andere Treppenform oder Platzierung.
Preisschätzung lt Architekt/Planer: ca. 560.000 (o. Grundstück)
Persönliches Preislimit fürs Haus, inkl Ausstattung: 580.000
favorisierte Heiztechnik: Gasbrennwert
Wenn Ihr verzichten müsst, auf welche Details/Ausbauten
-könnt Ihr verzichten: 3 Zimmer zum Garten hin ausgerichtet
-könnt Ihr nicht verzichten: 2 Bäder
Warum ist der Entwurf so geworden, wie er jetzt ist? ZB
Entwurf vom Planer mit eigenen Vorstellungen angepasst und überplant
Grundsätzlich sind die Anforderungen berücksichtigt, aber den Schnitt der Zimmer finden wir noch nicht ideal. Im EG sollte das Wohnzimmer etwas breiter werden.
Was ist die wichtigste/grundlegende Frage zum Grundriss in 130 Zeichen zusammengefasst?
Passt die Treppe in Form und Platzierung so? Kann das Wohnzimmer breiter und der ungenutzte Zwischenbereich im EG kleiner werden?




wir planen aktuell ein Einfamilienhaus. Wir haben einen Bauunternehmer, der auch die Architektenleistung übernimmt. Der erste Vorschlag war relativ standardmäßig und hat uns nicht 100% gefallen, daher haben wir selbst noch etwas weitergeplant. Anbei der aktuelle Stand mit der Bitte um Kritik insbesondere zur Lage/Art der Treppe und dem Wohn/Essbereich im EG. Alle weiteren Infos s.u.
Vielen Dank!
Bebauungsplan/Einschränkungen
Größe des Grundstücks: 511 m2
Hang: minimal: 1m Höhenunterschied von West nach Ost fallend (über 16 m)
Grundflächenzahl: 0,35
Geschossflächenzahl: 2 Vollgeschosse
Baufenster, Baulinie und -grenze: 2,5 m seitlich, 3 m zur Straße
Randbebauung: Garage möglich
Anzahl Stellplatz: 1,5
Geschossigkeit: 2 Vollgeschosse
Dachform: Satteldach, 32°
Stilrichtung
Ausrichtung: Nord/Süd, First West/Ost
Maximale Höhen/Begrenzungen: Max. Firsthöhe 7,50 m
weitere Vorgaben
Anforderungen der Bauherren
Stilrichtung, Dachform, Gebäudetyp
Keller, Geschosse: Keller, 2 Vollgeschosse
Anzahl der Personen, Alter: 2 Erwachsene, 3 Kinder (5,3,1)
Raumbedarf im EG, OG: EG: Küche, Essbereich, Wohnzimmer, Gäste-WC, Gästezimmer/Büro. OG: Schlafzimmer, 3 Kinderzimmer, 2 Bäder
Büro: Familiennutzung
offene Küche, Kochinsel
Anzahl Essplätze: 8
Kamin: ja
Balkon
Garage
Besonderheiten: Erker für den Essbereich, OG: Direkter Zugang zum Elternbad vom Schlafzimmer aus. Elternschlafzimmer zum Garten hin, möglichst 2 Kinderzimmer mit Blick zum Garten.
Hausentwurf
Von wem stammt die Planung:
-Planer eines Bauunternehmens
-Do-it-Yourself
Was gefällt besonders? Warum?
Grundsätzlich alle Anforderungen aufgenommen, nur Größenverhältnisse könnten noch besser sein.
Was gefällt nicht? Warum?
Zwischen Wohnzimmer und Essbereich ist aktuell noch ein großer freier Raum, der nicht gut genutzt werden kann.
Aufgrund der aktuellen Treppenanordnung und dem resultierenden Durchgang zum Wohnzimmer ist der "Fernsehbereich" im Wohnzimmer etwas zu schmal. Ideal wären 4 m Breite.
Im OG wird der Zugang zum Elternbad durch einen kleinen Gang hinter der Treppe realisiert. Idealerweise könnte diese "tote Raum" eingespart werden durch eine andere Treppenform oder Platzierung.
Preisschätzung lt Architekt/Planer: ca. 560.000 (o. Grundstück)
Persönliches Preislimit fürs Haus, inkl Ausstattung: 580.000
favorisierte Heiztechnik: Gasbrennwert
Wenn Ihr verzichten müsst, auf welche Details/Ausbauten
-könnt Ihr verzichten: 3 Zimmer zum Garten hin ausgerichtet
-könnt Ihr nicht verzichten: 2 Bäder
Warum ist der Entwurf so geworden, wie er jetzt ist? ZB
Entwurf vom Planer mit eigenen Vorstellungen angepasst und überplant
Grundsätzlich sind die Anforderungen berücksichtigt, aber den Schnitt der Zimmer finden wir noch nicht ideal. Im EG sollte das Wohnzimmer etwas breiter werden.
Was ist die wichtigste/grundlegende Frage zum Grundriss in 130 Zeichen zusammengefasst?
Passt die Treppe in Form und Platzierung so? Kann das Wohnzimmer breiter und der ungenutzte Zwischenbereich im EG kleiner werden?
Das Grundstück ist doch sehr schmal. Die Garage ist schon ärgerlich eng. Wäre es eine Option für Euch, das Haus zu drehen (also nur die Außenmaße)? Die Räume müssten natürlich angepasst werden.
Wie wichtig ist der Esstischerker / Wintergarten?
Wie sind denn die Maße der Treppe und die Geschosshöhe? Ohne Zahlen kann man das schwer beurteilen.
Wie wichtig ist der Esstischerker / Wintergarten?
Wie sind denn die Maße der Treppe und die Geschosshöhe? Ohne Zahlen kann man das schwer beurteilen.
kaho674 schrieb:
Wie breit ist denn das Grundstück? Ich sehe rechts einen Grenzabstand unter 3m. Ist der zulässig?
Welches ist Euer Grundstück auf dem Lageplan?2,50 wurde geschrieben.
mich würden mal die Originalgrundrisse interessieren. Ist dort die Treppe auch so positioniert?
Und der Erker? Der muss doch nicht so sein, oder?
Und warum die quadratische Form?
Ist es das 4667? Welche Maße hat das Baufenster?
Von wem kamen hier Idee oder Wunsch nach einem Satteldach mit Kniestock Einsachtzig ? - insgesamt sieht mir der Entwurf sehr nach einem vierzig Jahre alten Grundmuster aus, welches man nur in Details an den Zeitgeschmack adaptiert hat. Mit anderen Worten: als Umbau hätte ich es gelungen empfunden, aber neu bauen würde ich so nicht. Ich rate zum Reengineering.
https://www.instagram.com/11antgmxde/
https://www.linkedin.com/company/bauen-jetzt/
https://www.instagram.com/11antgmxde/
https://www.linkedin.com/company/bauen-jetzt/
Ähnliche Themen