Hallo,
ich hätte gerne eure Meinung zu folgenden Grundrissen.
Bebauungsplan/Einschränkungen
Größe des Grundstücks: 900qm
Hang: nein
Geschossflächenzahl: 0,25
Geschossigkeit: 2
Dachform: Walmdach 22Grad
Stilrichtung Stadtvilla
Ausrichtung: Terrasse nach Süden
Anforderungen der Bauherren
Stilrichtung: modern
Gebäudetyp: Einfamilienhaus
Keller: nein
Geschosse: 2
Anzahl der Personen: 4
Büro: Familiennutzung oder Homeoffice: Homeoffice
Schlafgäste pro Jahr: 4-10
offene oder geschlossene Architektur: offen
konservativ oder moderne Bauweise: modern
offene Küche, Kochinsel: ja, ja
Anzahl Essplätze: 8
Kamin: nein
Musik/Stereowand: nein
Balkon, Dachterrasse: nein
Garage, Carport: Ja, nein
Nutzgarten, Treibhaus: nein
weitere Wünsche/Besonderheiten/Tagesablauf: Stahlbetontreppe, Zugang von Garage ins Haus, großer Koch-/Essbereich, Ankleide und Schlafzimmer getrennt, da unterschiedliche Aufstehzeiten, Bad mit Wäscheabwurf
Hausentwurf
Von wem stammt die Planung:
Bauträger
Was gefällt besonders: Dusche in der Badecke
Was gefällt nicht: Keine komplette Sichtachse von Eingangstür in den Garten, vielleicht Garage zu groß und verdeckt die Küche?, Bekommt man die Küche gut eingebaut?
Preisschätzung lt Architekt/Planer:
Persönliches Preislimit fürs Haus, inkl Ausstattung:
favorisierte Heiztechnik: Fernwärme

ich hätte gerne eure Meinung zu folgenden Grundrissen.
Bebauungsplan/Einschränkungen
Größe des Grundstücks: 900qm
Hang: nein
Geschossflächenzahl: 0,25
Geschossigkeit: 2
Dachform: Walmdach 22Grad
Stilrichtung Stadtvilla
Ausrichtung: Terrasse nach Süden
Anforderungen der Bauherren
Stilrichtung: modern
Gebäudetyp: Einfamilienhaus
Keller: nein
Geschosse: 2
Anzahl der Personen: 4
Büro: Familiennutzung oder Homeoffice: Homeoffice
Schlafgäste pro Jahr: 4-10
offene oder geschlossene Architektur: offen
konservativ oder moderne Bauweise: modern
offene Küche, Kochinsel: ja, ja
Anzahl Essplätze: 8
Kamin: nein
Musik/Stereowand: nein
Balkon, Dachterrasse: nein
Garage, Carport: Ja, nein
Nutzgarten, Treibhaus: nein
weitere Wünsche/Besonderheiten/Tagesablauf: Stahlbetontreppe, Zugang von Garage ins Haus, großer Koch-/Essbereich, Ankleide und Schlafzimmer getrennt, da unterschiedliche Aufstehzeiten, Bad mit Wäscheabwurf
Hausentwurf
Von wem stammt die Planung:
Bauträger
Was gefällt besonders: Dusche in der Badecke
Was gefällt nicht: Keine komplette Sichtachse von Eingangstür in den Garten, vielleicht Garage zu groß und verdeckt die Küche?, Bekommt man die Küche gut eingebaut?
Preisschätzung lt Architekt/Planer:
Persönliches Preislimit fürs Haus, inkl Ausstattung:
favorisierte Heiztechnik: Fernwärme
Und wie breit ist der Durchgang zur Dusche? Nochmal nach Abzug Putz/Fliesen?
Tür zum Arbeitszimmer evtl. weiter nach links, so dass die Tür an dieser Einbuchtung lehnt. Kommt jetzt aber auf die möblierung an.
Ankleide auch mal möblieren. Auf die schnell würde ich sagen, da passen gerade mal 2x1,50m mit Tiefe 60 cm an jeder Seite, was evtl. etwas mager ist.
Generell einfach mal alles möblieren, dann wird so manches schon klarer.
Tür zum Arbeitszimmer evtl. weiter nach links, so dass die Tür an dieser Einbuchtung lehnt. Kommt jetzt aber auf die möblierung an.
Ankleide auch mal möblieren. Auf die schnell würde ich sagen, da passen gerade mal 2x1,50m mit Tiefe 60 cm an jeder Seite, was evtl. etwas mager ist.
Generell einfach mal alles möblieren, dann wird so manches schon klarer.
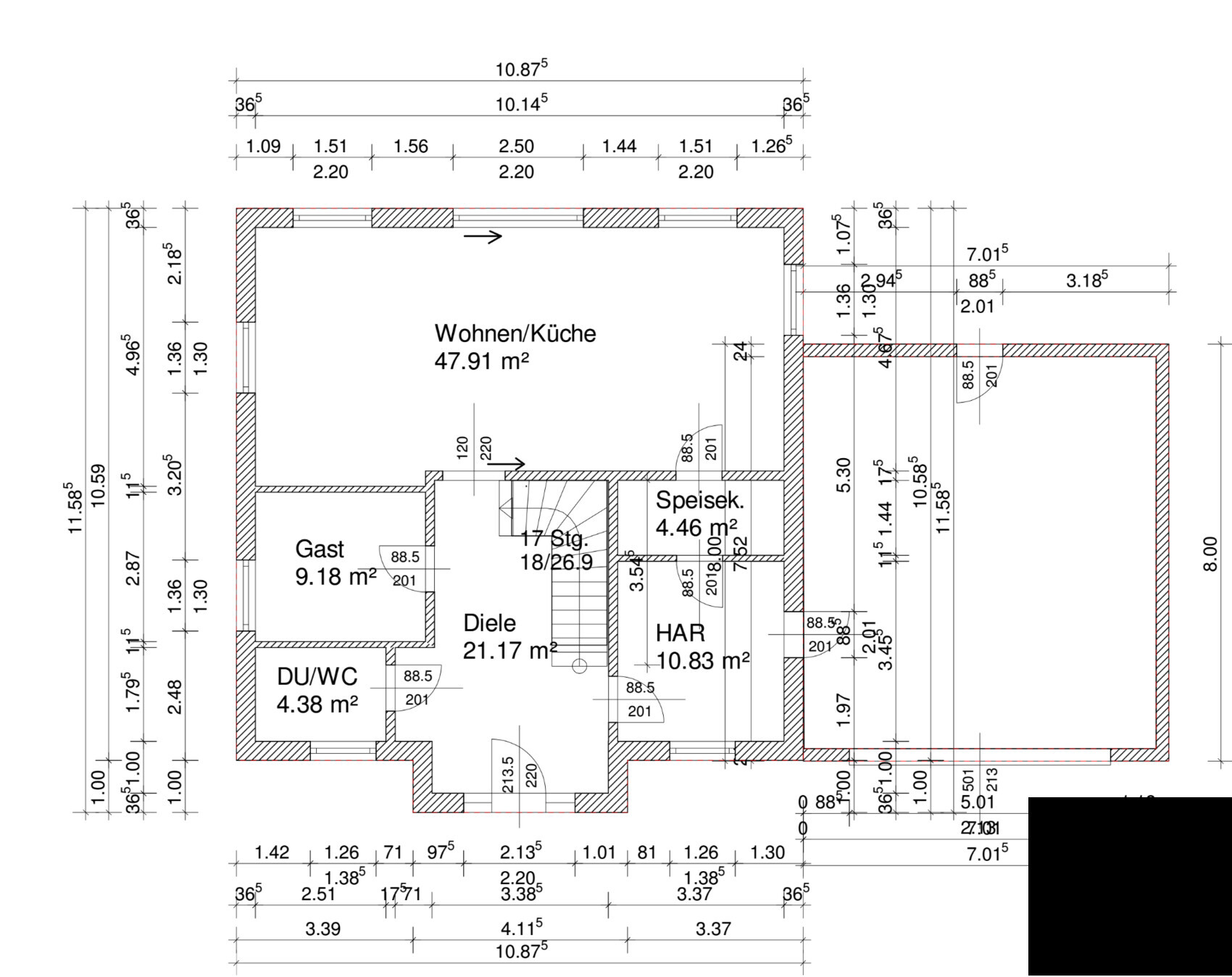
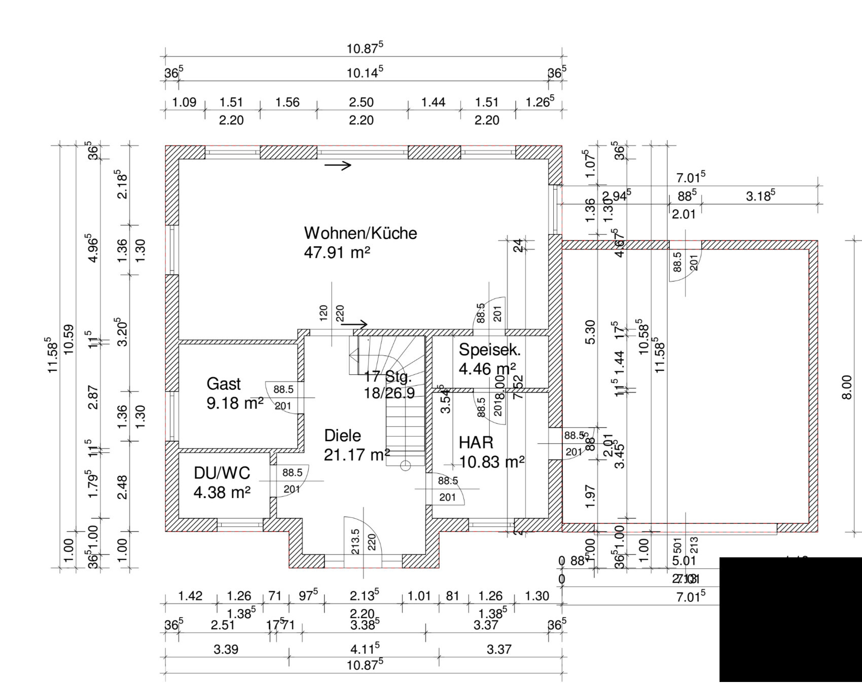
Ich weiß nicht wer euch das gezeichnet hat aber da passen viele Ecken nicht!
Unten die Treppe ist definitiv zu kurz, also funktioniert die Tür nicht mehr usw.
70cm zur dusche gehen aber sind eng.
5m2 ankleide zeichne dort mal schränke ein dann wirst was merken ein Schrank hat ca 60 cm Tiefe.
Speisekammer das gleiche dort sind es nur 4m2 und 2 Türen
Das geht beider Größe definitiv besser
Unten die Treppe ist definitiv zu kurz, also funktioniert die Tür nicht mehr usw.
70cm zur dusche gehen aber sind eng.
5m2 ankleide zeichne dort mal schränke ein dann wirst was merken ein Schrank hat ca 60 cm Tiefe.
Speisekammer das gleiche dort sind es nur 4m2 und 2 Türen
Das geht beider Größe definitiv besser
Guten Morgen!
Was mir als erstes ins Auge gefallen ist, ist das Badezimmer im OG. Zum einen würde ich gerne mal sehen wo hier Waschbecken und Toilette hinkommen. Durch die beiden Türen und die beiden Fenster ist der Raum in jeder Richtung „belegt“. Denke nicht, dass man hier sinnvoll möblieren kann. Auch die 70cm zur Dusche sind meines Erachtens viel zu wenig. Zum einen ist es unmöglich dort mit einem Rollstuhl hinein zu kommen, zum anderen kommt man sich in der Ecke bestimmt sehr eingeengt vor. Ist eine Duschlampe vorgesehen? Ansonsten duscht man im Dunkeln. Eine Tür weniger würde dem Raum sicherlich gut tun.
Auch der HAR hat durch seine 3 Türen nicht viel mögliche Stellfläche wenn dort Heizung, Elektrik und auch eine Waschmaschine Platz haben sollen.
Mir kommt es so vor als hätte man partout versucht alle vorhandenen Raumwünsche in eine vorgegebene Hülle zu packen. Ich fände es sinnvoller Das Gastzimmer unten ein Stück zu vergrößern und als Büro / Gast zu nutzen. Das Zimmer oben würde dann wegfallen und man könnte Schlafen + Ankleide und Bad neu und sinnvoll ordnen.
Der Grundriss unten kommt meinem sehr ähnlich was die Anordnung der Räume betrifft. Obwohl ich unten 2 Meter weniger Tiefe habe erscheint es mir als wäre man in diesem Grundriss hier eingeengter.
Gruß
Michael
Was mir als erstes ins Auge gefallen ist, ist das Badezimmer im OG. Zum einen würde ich gerne mal sehen wo hier Waschbecken und Toilette hinkommen. Durch die beiden Türen und die beiden Fenster ist der Raum in jeder Richtung „belegt“. Denke nicht, dass man hier sinnvoll möblieren kann. Auch die 70cm zur Dusche sind meines Erachtens viel zu wenig. Zum einen ist es unmöglich dort mit einem Rollstuhl hinein zu kommen, zum anderen kommt man sich in der Ecke bestimmt sehr eingeengt vor. Ist eine Duschlampe vorgesehen? Ansonsten duscht man im Dunkeln. Eine Tür weniger würde dem Raum sicherlich gut tun.
Auch der HAR hat durch seine 3 Türen nicht viel mögliche Stellfläche wenn dort Heizung, Elektrik und auch eine Waschmaschine Platz haben sollen.
Mir kommt es so vor als hätte man partout versucht alle vorhandenen Raumwünsche in eine vorgegebene Hülle zu packen. Ich fände es sinnvoller Das Gastzimmer unten ein Stück zu vergrößern und als Büro / Gast zu nutzen. Das Zimmer oben würde dann wegfallen und man könnte Schlafen + Ankleide und Bad neu und sinnvoll ordnen.
Der Grundriss unten kommt meinem sehr ähnlich was die Anordnung der Räume betrifft. Obwohl ich unten 2 Meter weniger Tiefe habe erscheint es mir als wäre man in diesem Grundriss hier eingeengter.
Gruß
Michael
Ähnliche Themen