ᐅ Möblierung unseres Wohn-/Essbereiches mit Split-Level
Erstellt am: 12.06.16 10:00
Hallo,
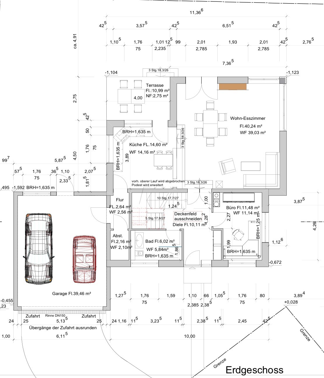
Nach unzähligen Diskussionen mit unserem Architekten hinsichtlich des Grundrisses unseres Häuschens (...wir bauen auf eine bereits bestehende Teilunterkellerung bzw. Bodenplatte auf).
Der Wohn-/Essbereich liegt 50cm tiefer als die umliegenden Räume (Küche und Flur), es handelt sich also um ein Split-Level.
Die möblierung, die uns der Architekt eingezeichnet hat, ist zwar machbar aber gefällt uns nicht zu 100%. Da ich hier bereits bei der Planung tolle Ideen erhalten habe, wende ich mich auch mit diesem Thema an Euch. Habt ihr vielleicht noch ein paar Ideen wie man den Raum einrichten könnte?
Ein paar Informationen zum Hintergrund:
- Die Wand zur Küche (wird anders eingerichtet als eingezeichnet) ist eine etwa 1 m hohe Brüstung
- die großen "Eck-Fenster" Plan rechts und rechts oben bieten einen herrlichen Ausblick über ein Tal
- wir haben übrigens eine große U-förmige Wohnlandschaft
Wir haben uns natürlich auch schon Gedanken gemacht und scheitern immer irgendwie an der Platzierung des TVs.
1. Anbieten würde sich natürlich die Wand Plan unten, aber dann hätte man auf der Couch sitzen keine Möglichkeit, den schönen Ausblick zu genießen
2. Weitere Idee war, eine halbhohe Brüstung von links nach rechts zu bauen und daran dann den Fernseher zu hängen. Auf die gegenüberliegende Seite der Brüstung (also Plan oben), könnte man eine Bank als Sitzgelegenheit für den Esstisch stellen. Die Couch käme dann an die Wand Plan unten. Problem wäre dann allerdings, dass die weitere Möblierung mit Schränken schwierig wäre und ich bezweifle, dass man auf der Couch sitzen über die Brüstung schauen kann.
3. Eine weitere Möglichkeit wäre, die Couch Plan oben rechts zu platzieren und den TV an die Terrassen-wand (Plan links) zu hängen.. Dann hätte man den Ausblick aber ebenfalls im Rücken.
Ich würde mich sehr freuen, wenn ihr euch unseren Plan mal anschaut und uns vielleicht ein paar Ideen schreibt.
Danke Euch vorab.
Viele Grüße
Grobi

Nach unzähligen Diskussionen mit unserem Architekten hinsichtlich des Grundrisses unseres Häuschens (...wir bauen auf eine bereits bestehende Teilunterkellerung bzw. Bodenplatte auf).
Der Wohn-/Essbereich liegt 50cm tiefer als die umliegenden Räume (Küche und Flur), es handelt sich also um ein Split-Level.
Die möblierung, die uns der Architekt eingezeichnet hat, ist zwar machbar aber gefällt uns nicht zu 100%. Da ich hier bereits bei der Planung tolle Ideen erhalten habe, wende ich mich auch mit diesem Thema an Euch. Habt ihr vielleicht noch ein paar Ideen wie man den Raum einrichten könnte?
Ein paar Informationen zum Hintergrund:
- Die Wand zur Küche (wird anders eingerichtet als eingezeichnet) ist eine etwa 1 m hohe Brüstung
- die großen "Eck-Fenster" Plan rechts und rechts oben bieten einen herrlichen Ausblick über ein Tal
- wir haben übrigens eine große U-förmige Wohnlandschaft
Wir haben uns natürlich auch schon Gedanken gemacht und scheitern immer irgendwie an der Platzierung des TVs.
1. Anbieten würde sich natürlich die Wand Plan unten, aber dann hätte man auf der Couch sitzen keine Möglichkeit, den schönen Ausblick zu genießen
2. Weitere Idee war, eine halbhohe Brüstung von links nach rechts zu bauen und daran dann den Fernseher zu hängen. Auf die gegenüberliegende Seite der Brüstung (also Plan oben), könnte man eine Bank als Sitzgelegenheit für den Esstisch stellen. Die Couch käme dann an die Wand Plan unten. Problem wäre dann allerdings, dass die weitere Möblierung mit Schränken schwierig wäre und ich bezweifle, dass man auf der Couch sitzen über die Brüstung schauen kann.
3. Eine weitere Möglichkeit wäre, die Couch Plan oben rechts zu platzieren und den TV an die Terrassen-wand (Plan links) zu hängen.. Dann hätte man den Ausblick aber ebenfalls im Rücken.
Ich würde mich sehr freuen, wenn ihr euch unseren Plan mal anschaut und uns vielleicht ein paar Ideen schreibt.
Danke Euch vorab.
Viele Grüße
Grobi
T
toxicmolotof12.06.16 10:02Hoffentlich erwartet ihr nicht zu viel Platz in der Garage. Die Autos sind zu klein eingezeichnet.
@toxicmolotow
Ja, das ist uns bewusst, eingezeichnet sind glaube ich ein alter Mini und eine E-Klasse. Der Grundriss der Garage war aber wegen Unterkellerung vorgegeben, von daher nichts zu machen.
Vielleicht hast du aber noch eine Idee zum Thema Möblierung des Wohn-/Esszimmers?!
Ja, das ist uns bewusst, eingezeichnet sind glaube ich ein alter Mini und eine E-Klasse. Der Grundriss der Garage war aber wegen Unterkellerung vorgegeben, von daher nichts zu machen.
Vielleicht hast du aber noch eine Idee zum Thema Möblierung des Wohn-/Esszimmers?!
T
toxicmolotof12.06.16 11:05Nein, dazu schreibe ich besser nichts, außer dass du bei allen Möbeln besser 10cm in alle Dimensionen zuschlägst um zu planen, denn ein 2m Schrank passt nicht auf eine 2m Wand.
Und das ist sicherlich keine E-Klasse.... obwohl... doch, von 1980...
Neue Fahrzeuge sind deutlich breiter.
Und das ist sicherlich keine E-Klasse.... obwohl... doch, von 1980...
Neue Fahrzeuge sind deutlich breiter.
@matte1987
Danke für deine Rückmeldung 🙂 Auf Dich ist Verlass
Gerne. Es gibt ein paar Möbelstücke, die wir auf jeden Fall zunächst einmal behalten werden:
- Couch in U-Form (ca. 3,40m breit, ca. 2,20m tief)
- TV mit 55 Zoll Diagonale (148cm)
- Esstisch 180cmx90cm
Zudem würden wir unsere bisherige WZ-wohnwand zunächst mit umziehen, bevor wir uns mittelfristig was Neues zulegen.
- Lowboard 220cm breit, 35cm hoch
- Schrank-Vitrine 180cm hoch, 80cm breit
- Hängeschrank 80cm hoch, 80cm breit
Viele Grüße
Grobi
Danke für deine Rückmeldung 🙂 Auf Dich ist Verlass
Gerne. Es gibt ein paar Möbelstücke, die wir auf jeden Fall zunächst einmal behalten werden:
- Couch in U-Form (ca. 3,40m breit, ca. 2,20m tief)
- TV mit 55 Zoll Diagonale (148cm)
- Esstisch 180cmx90cm
Zudem würden wir unsere bisherige WZ-wohnwand zunächst mit umziehen, bevor wir uns mittelfristig was Neues zulegen.
- Lowboard 220cm breit, 35cm hoch
- Schrank-Vitrine 180cm hoch, 80cm breit
- Hängeschrank 80cm hoch, 80cm breit
Viele Grüße
Grobi
Ähnliche Themen