
M4rvin
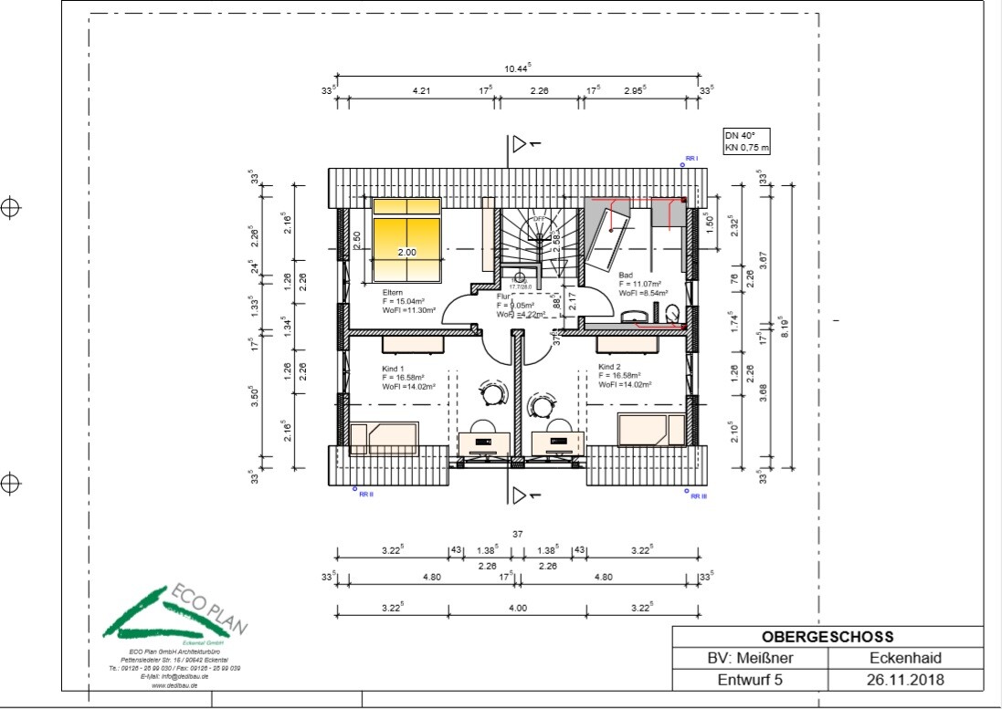
Grundrisse reiche ich gerne nach, wenn ich vom Spielplatz zurück bin.
Wir haben damals eben ausgemacht, das wir Gas mit Kontrollierte-Wohnraumlüftung möchten, darauf hin wurde ausgerechnet und bestätigt dass es energetisch klappt. Deswegen stand der Punkt wohl auch mit im Vertrag mit den Mehrkosten von knapp 12k. (Aber halt noch als Option)
Wir haben damals eben ausgemacht, das wir Gas mit Kontrollierte-Wohnraumlüftung möchten, darauf hin wurde ausgerechnet und bestätigt dass es energetisch klappt. Deswegen stand der Punkt wohl auch mit im Vertrag mit den Mehrkosten von knapp 12k. (Aber halt noch als Option)