kbt09 schrieb:
@ypg ... wie kommst du auf 4 Kinder? Für drei ist auch kein Platz, und die Oma hat keine Einliegerwohnung.
Kann ich gern erklären: der Entwurf ist ja nicht gerade gelungen. Punkt.
Aber es gibt ja auch andere Orientierungen zur Bewertung, zB ist genug Platz für eine Küchenzeile, hat man genug Stellmöglichkeiten, haben die Kinder ihre Zone... Und Du hast in # 10 ja schon drum gebeten, Hintergrundinformationen zu schreiben.
Wir wissen zur Zeit nur, das zwei Leute, und das Büro soll eher Abstellfläche sein. :/
Aber es gibt ja auch andere Orientierungen zur Bewertung, zB ist genug Platz für eine Küchenzeile, hat man genug Stellmöglichkeiten, haben die Kinder ihre Zone... Und Du hast in # 10 ja schon drum gebeten, Hintergrundinformationen zu schreiben.
Wir wissen zur Zeit nur, das zwei Leute, und das Büro soll eher Abstellfläche sein. :/
Keine Kinder mehr geplant, ich werde 40 meine Frau ist schon über 40...
Wir sind aber aufgrund eurer Kritik und genauerer Betrachtung schon wider weg von dem Grundriss.
Auch aufgrund dessen, das ein Seitlicher Eingang ein nach hinten versetzten Carport bedingt und dadurch ja schon
fast eine eigene Straße (11m) vor dem Carport entsteht.
Jetzt wird umgeplant mit einem Eingang von vorne...
Vielen Dank dafür
Wir sind aber aufgrund eurer Kritik und genauerer Betrachtung schon wider weg von dem Grundriss.
Auch aufgrund dessen, das ein Seitlicher Eingang ein nach hinten versetzten Carport bedingt und dadurch ja schon
fast eine eigene Straße (11m) vor dem Carport entsteht.
Jetzt wird umgeplant mit einem Eingang von vorne...
Vielen Dank dafür
@Thomas K. .
Vielleicht kannst du noch die Fragen
Aber, . ich spiele ja gerne mit Grundrissen. Daher habe ich auch schon mal ein bisschen geschoben. Dabei habe ich mir um den Ausbau DG zunächst keine Gedanken gemacht, sondern ein recht flaches Walmdach gesetzt, wo eh oben kein echter Wohnraum entstehen kann. Wohnfläche ebenfalls ca. 127 qm.







Vielleicht kannst du noch die Fragen
kbt09 schrieb:und
Gibt es Baugrenzen auf dem Grundstück? Was ist rechts, links und planoben? Planunten ist die Straße - oder?
kbt09 schrieb:beantworten.
Und, es wäre gut, wenn du wenigstens die ganzen Fragen aus
https://www.hausbau-forum.de/threads/grundrissplanung-bitte-vor-Thread-Erstellung-lesen.11714/
noch beantwortest
Aber, . ich spiele ja gerne mit Grundrissen. Daher habe ich auch schon mal ein bisschen geschoben. Dabei habe ich mir um den Ausbau DG zunächst keine Gedanken gemacht, sondern ein recht flaches Walmdach gesetzt, wo eh oben kein echter Wohnraum entstehen kann. Wohnfläche ebenfalls ca. 127 qm.
Wow, vielen Dank. Auch ein Interessanter Ansatz mit der Essecke in der Küche.
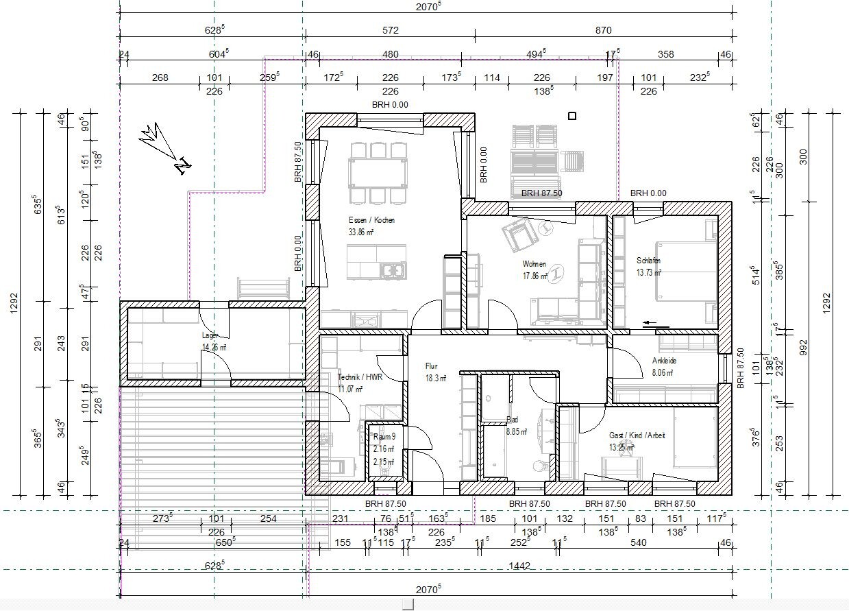
Unser "neuer" Entwurf sieht so aus.:

Die Bebauungsauflagen wären mit dem 9m langen Carport Maximal ausgeschöpft.
Im Südlich/Westlichen Bereich ist ein Regenwasserkanal (Bach) mit einem
Schotter-Weg für Fußgänger und Radfahrer. Westlich ist getrennt durch den Schotter-Weg ein
Spielplatz. Nördlich ist die Straße und nur Östlich das Nachbar Grundstück.
Gesamt Grundstück ist 719qm.
Unser "neuer" Entwurf sieht so aus.:
Die Bebauungsauflagen wären mit dem 9m langen Carport Maximal ausgeschöpft.
Im Südlich/Westlichen Bereich ist ein Regenwasserkanal (Bach) mit einem
Schotter-Weg für Fußgänger und Radfahrer. Westlich ist getrennt durch den Schotter-Weg ein
Spielplatz. Nördlich ist die Straße und nur Östlich das Nachbar Grundstück.
Gesamt Grundstück ist 719qm.
Ähnliche Themen