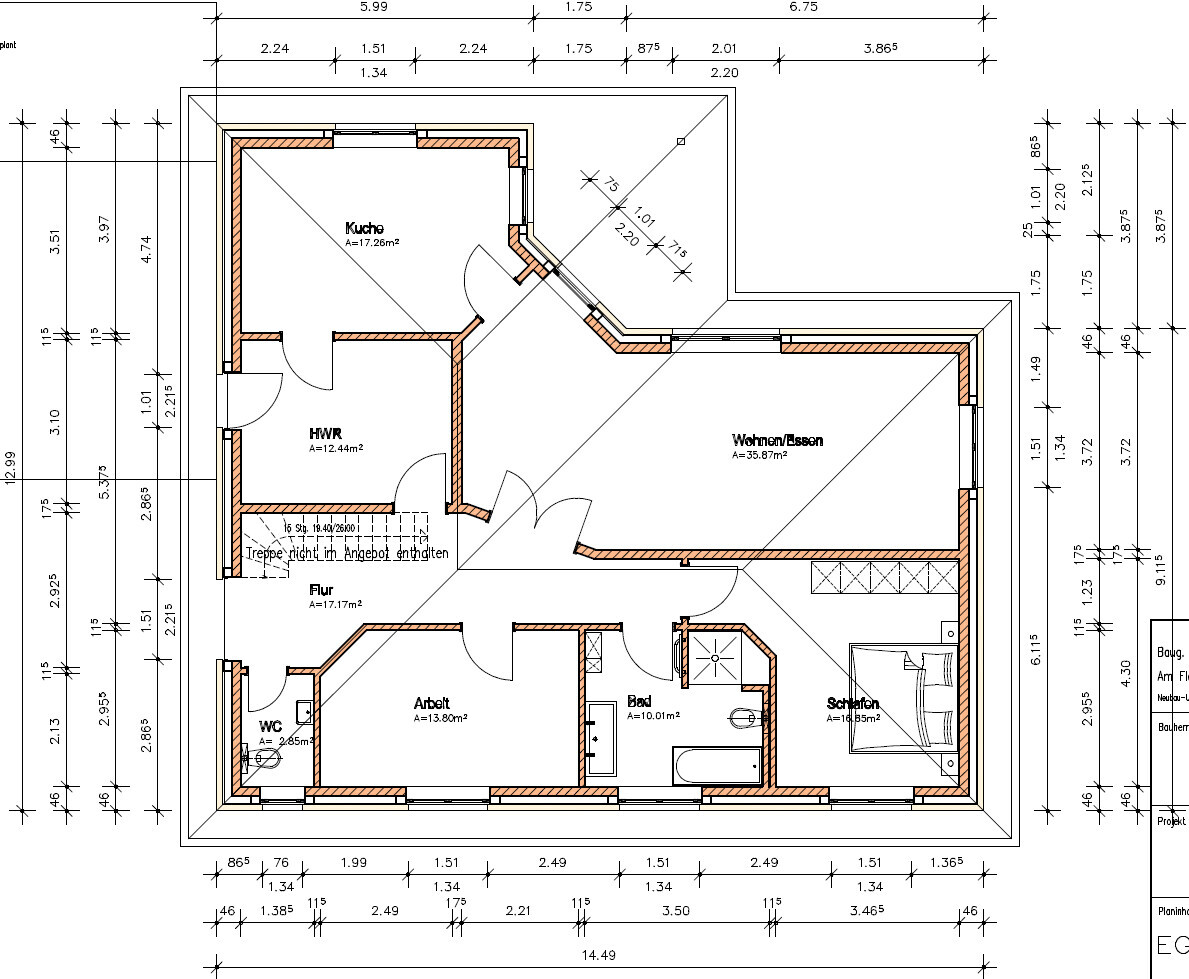
Moin, jetzt haben wir auch unseren ersten "Professionellen" Grundriss vorliegen.
Gemacht von einen Bauunternehmen, nach unseren Wünschen basierend auf einem "Standard" Bungalow`s
eines anderen Bauunternehmens. Von denen bekommen wir aber auch noch einen Detaillierten Plan mit der selben Aufteilung. Was meint ihr dazu ? Voraussetzungen waren:
- Eingang von der Seite wo auch das Carport stehen soll (Ost)
- Hauswirtschaftsraum Zugang Richtung Carport.
- Wohnzimmer und Küche mit Zugang zur Terrasse, die Richtung Süden liegt.
- Gäste-WC ist Pflicht
- Platz für Treppe (als Reserve) auf dem Flur aber den auch nicht zu Groß...
Klar sind alle Kriterien erfüllt, wir nehmen aber gerne Tipps und Ratschläge entgegen.
Danke

Gemacht von einen Bauunternehmen, nach unseren Wünschen basierend auf einem "Standard" Bungalow`s
eines anderen Bauunternehmens. Von denen bekommen wir aber auch noch einen Detaillierten Plan mit der selben Aufteilung. Was meint ihr dazu ? Voraussetzungen waren:
- Eingang von der Seite wo auch das Carport stehen soll (Ost)
- Hauswirtschaftsraum Zugang Richtung Carport.
- Wohnzimmer und Küche mit Zugang zur Terrasse, die Richtung Süden liegt.
- Gäste-WC ist Pflicht
- Platz für Treppe (als Reserve) auf dem Flur aber den auch nicht zu Groß...
Klar sind alle Kriterien erfüllt, wir nehmen aber gerne Tipps und Ratschläge entgegen.
Danke
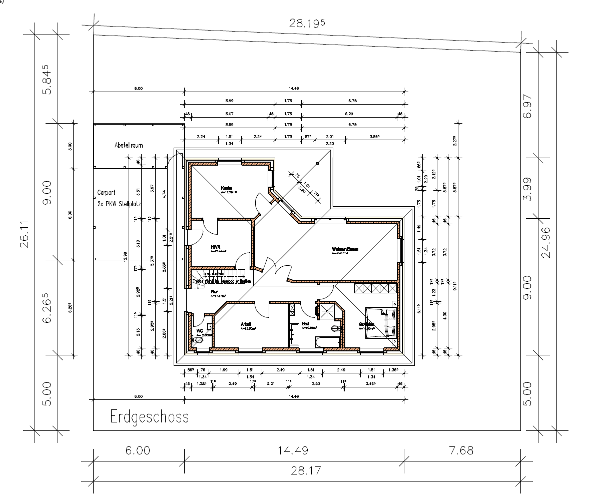
Stellst Du bitte das Haus in den Lageplan und postest diesen mit Nordpfeil?
Hier gibt es die Anleitung, hättest Du sehen müssen
https://www.hausbau-forum.de/threads/grundrissplanung-bitte-vor-Thread-Erstellung-lesen.11714/
Hier gibt es die Anleitung, hättest Du sehen müssen
https://www.hausbau-forum.de/threads/grundrissplanung-bitte-vor-Thread-Erstellung-lesen.11714/
Also mir gefällts, ich mag ja winkelige Wände. Ich würde vielleicht den Zugang vom Bad noch vom Schlafzimmer aus machen. Und braucht ein Hauswirtschaftsraum wirklich drei Zugänge? Besonders den nach außen würde ich überdenken, da muß ansonsten wieder eine hochwertig dämmende Sicherheitstür hin. Dann lieber eine Ecke abtrennen und von der Küche aus eine Speisekammer dort unterbringen, so groß muß der Hauswirtschaftsraum ja auch nicht sein? 12 qm ist schon ordentlich, da kann man 2 abknapsen. Im Bad würde mir ein Bidet fehlen bzw. der Platz um es evtl. nachrüsten zu können.
Und es fehlen die Ansichten und wie das Haus nachher auf dem Grundstück platziert wird.
Und es fehlen die Ansichten und wie das Haus nachher auf dem Grundstück platziert wird.
Hallo Thomas.
Der langgezogende Flur ( schlauchförmig ) wird aufgrund der Anordnung der Räume sehr dunkel werden - kein Tageslicht ( die Haustür mit Seitenteil mal außen vor gelassen )
Was mir auch auffällt, ist die Breite des Wohn & Essbereich's - finde ich persönlich zu schmal.
Die schrägen Wände lassen sich auch nur schwer möblieren.
Die große Küche & Hauswirtschaftsraum gefallen mir gut.
Viel Glück
Der langgezogende Flur ( schlauchförmig ) wird aufgrund der Anordnung der Räume sehr dunkel werden - kein Tageslicht ( die Haustür mit Seitenteil mal außen vor gelassen )
Was mir auch auffällt, ist die Breite des Wohn & Essbereich's - finde ich persönlich zu schmal.
Die schrägen Wände lassen sich auch nur schwer möblieren.
Die große Küche & Hauswirtschaftsraum gefallen mir gut.
Viel Glück
Finde es ungünstig dass ihr, obwohl zu nur zweit, keinen wirklich privaten Bereich habt.
Platztechnisch könnte man leicht eine Ankleide und ein privates Bad realisieren.
Auch die geringe Breite von 3.7 m im Wohnzimmer (besonders bei der Länge) ist suboptimal.
Falls dort wirklich eine Treppe hinkommt fehlt eine ordentliche Garderobe.
Platztechnisch könnte man leicht eine Ankleide und ein privates Bad realisieren.
Auch die geringe Breite von 3.7 m im Wohnzimmer (besonders bei der Länge) ist suboptimal.
Falls dort wirklich eine Treppe hinkommt fehlt eine ordentliche Garderobe.
Ähnliche Themen