M
mathias854122.10.19 17:32Hallo,
wir befinden und gerade noch in der Planungsphase und benötigen die Meinung erfahrener Bauherren.
Größe des Grundstücks: 865 m²
Gemarkung: Gaarz
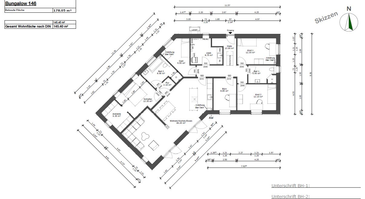
Ausmaße des Hauses: siehe Anhang
Hang: Nein
Dachform: Satteldach
Ausrichtung: siehe Anhang
Doppelcarport, wie genau ist noch nicht klar
Kein Bebauungsplan
Was uns besonders gefällt:
Ausnutzung des Grundstücks aufgrund der Bauform
Kathedralsdecke im Wohn- und Essbereich
Befürchtung: Zu viele Räume auf zu zu wenig Wohnfläche
Ich bin gespannt auf eure Anmerkungen und Verbesserungsvorschläge.
Viele Grüße,
Mathias


wir befinden und gerade noch in der Planungsphase und benötigen die Meinung erfahrener Bauherren.
Größe des Grundstücks: 865 m²
Gemarkung: Gaarz
Ausmaße des Hauses: siehe Anhang
Hang: Nein
Dachform: Satteldach
Ausrichtung: siehe Anhang
Doppelcarport, wie genau ist noch nicht klar
Kein Bebauungsplan
Was uns besonders gefällt:
Ausnutzung des Grundstücks aufgrund der Bauform
Kathedralsdecke im Wohn- und Essbereich
Befürchtung: Zu viele Räume auf zu zu wenig Wohnfläche
Ich bin gespannt auf eure Anmerkungen und Verbesserungsvorschläge.
Viele Grüße,
Mathias
N
NatureSys22.10.19 17:43Die Fenster in den Kinderzimmern sind wirklich sehr klein. Dadurch werden die beiden Zimmer ziemlich dunkel werden.
M
mathias854122.10.19 17:48Guter Punkt, die Fenster können wir uns jedoch von der Größe komplett ohne Aufpreis aussuchen. Wollten in den Kinderzimmern jedoch keine bodentiefen Fenster stellen, damit ausreichend Stellplatz vorhanden ist.
mathias8541 schrieb:
Befürchtung: Zu viele Räume auf zu zu wenig WohnflächeAbsolut mag die Fläche genügen, aber das Ganze sieht mir ziemlich ferienhausig aus, mit den insgesamt recht verschachtelten Räumen und der Elternsuite, die im Grunde von der Küche abgeht. War die Grundlage ein Modell der Hauscompagnie ?https://www.instagram.com/11antgmxde/
https://www.linkedin.com/company/bauen-jetzt/
M
mathias854122.10.19 19:0411ant schrieb:
Absolut mag die Fläche genügen, aber das Ganze sieht mir ziemlich ferienhausig aus...War die Grundlage ein Modell der Hauscompagnie ?Ja ganz genau. Das Haus sebst orientiert sich nach einem Grundriss der Hauscompagnie. Die Raumplanung haben wir jedoch selbst vorgenommen. Uns war es halt wichtig alle Räume in die Fläche zu bekommen, Eltern und Kinderzimmer voneinander zu entfernen und gleichzeitig ein Wohnzimmer zu haben, von dem man nicht direkt in die Küche schaut. Außerdem hat es uns der dänische Baustil ziemlich angetan. Mit ferienhausig meinst du die vielen verschachtelten Räume?
Den Entwurfsweg halte ich mehrfach für verkehrt: erstens sich in eine Baukörper-Grundidee zu verlieben und diese in sein Grundstück einzupassen, zweitens in diesem Umrisserahmen dann eine laientypisch unerfahren priorisierte Wünschemenge hineinzufalten. Mit "ferienhausig" meine ich "all in One" in einer für wenige Wochen "bequem zu ertragenden" Maßstäblichkeit der Suboptimalitäten. Das Schlafzimmer hinter der Küche hat ab der siebten "Ferienwoche" und ohne Caipirinha eine andere Qualität
https://www.instagram.com/11antgmxde/
https://www.linkedin.com/company/bauen-jetzt/
https://www.instagram.com/11antgmxde/
https://www.linkedin.com/company/bauen-jetzt/
Ähnliche Themen