Hausbau - Ratgeber
Bauherrenhilfe
- Bauherrenhilfe vor Vertragsabschluss
-- Warum einen unabhängigen Baubetreuer?
-- Vertragsgrundlagen
-- Bausumme
-- Zahlungsplan zur Kostenkontrolle
-- Pflichten des Bauherren vor Vertragsabschluss
-- Unterlagen beim Hausbau vor Vertragsabschluss
- Bauherrenhilfe nach Vertragsabschluss
-- Bauantrag bei Behörden
-- Bau-Genehmigungsverfahren bei Baubehörden
-- Bauspezifische Versicherungen
-- Bauzeitenplan
-- Baubeginn - die Letzten Pflichten der Bauherrschaft
- Bauherrenhilfe während der Bauzeit
- Gewährleistungsansprüche
- Bauabnahme
Baufinanzierung
- Baufinanzierung - Allgemeine Fragen
- Kreditarten
- Kredit-Konditionen
- Bausparen
- Staatliche Förderungen
- Verkehrswert
- Haushaltsrechnung und Bonität
Hausbau Planung
- Haustypen
- Hausbau Vorbereitungsarbeiten
- Das Baugrundstück
- Baugrund beim Hausbau
- Baurecht
- Gebäudeschutz
- Erdarbeiten und Wasserhaltung
- Stützmauern
- Einfriedung
- Untergeschoss
- Kanalisation
- Tragende Elemente
- Nichttragende Innenwände
- Fundation / Fundament
- Deckenkonstruktionen
- Dächer
- Kaminanlagen
- Treppen Rampen Leitern
- Dachbeläge und Spengler
- Fenster
- Sonnen und Wetterschutz
- Aussenputze
- Einbauten, Küchen, Türen
- Bodenbeläge und Unterlagsböden
- Parkett
- Gips, Wand, Decke
Haustechnik und Energie
- Heiztechnik
- Lüftung und Klimatechnik
- Sanitärtechnik
- Elektrotechnik
- Erneuerbare Energie
Whirlpools / Jacuzzi
Hausbau Magazin
- Baufinanzierung trotz Krise?
- Das Blockhaus
- Moderne Dämmstoffe im Vergleich
- Erker Vor- und Nachteile
- Glasflächen beim Hausbau
- Günstig ein Haus Bauen
- Mediterraner Hausbaustil
- Mehrgenerationenhaus
- Moderne Architektur
- Gartengestaltung leicht gemacht
- Traditioneller Ziegelbau
- Villa als höchster Traum
- Im Eigenheim Ruhestand geniessen
- Altbau sanieren
- Kauf einer Holzgarage
- Immobilienmakler
- Arbeitshandschuhe für den Winter
- Zuhause verschönern
- Outdoor-Plissees
- Schlafzimmer planen
- Terrassenüberdachung
- Wohngebäudeversicherung
- Zaunarten und Eigenschaften
- Hauseingang gestalten
- Der perfekte Grundriss
- Sparsamer heizen im Altbau
- Einfamilienhaus smart finanzieren
- Planung einer PV-Anlage
- Neues Haus
- Immobilienfinanzierung
- Installation einer Photovoltaikanlage
- Asbest erkennen und entfernen
- Gartenpflege im Frühling – worauf achten
- Sauna im Fokus - Wellness zuhause
- Erfolgreich vermieten
- Die perfekte Winterbekleidung
- Das Niedrigenergiehaus
- Der April und seine Stürme
- Architektonische Vielfalt
- Ökologisch und nachhaltig bauen
- Das perfekte Schlafzimmer
- Nachhaltige Energieversorgung
- Zukunftsorientiert bauen
- Nachhaltigkeit beim Hausbau
- Tiny Houses
- Wärmepumpen als nachhaltige Heizvariante
- Maßgeschneiderten Kleiderschrank
- Der richtige Baukredit
- Ratgeber für erfolgreichen Hausbau
- Haus als Altersvorsorge
Do-it-yourself Anleitungen
- Verlegeanleitung für Bodenbeläge und Parkett
- Bodenbeläge und Parkett reinigen und pflegen
- Malerarbeiten am Haus
- Garten Tipps
- Umzug und Reinigung

ᐅ Blockhaus mit Krüppelwalmdach am Wald - Planung verbessern?

Erstellt am: 11.06.18 19:45
K
keychain
kaho67415.06.18 08:44
Feintuning:

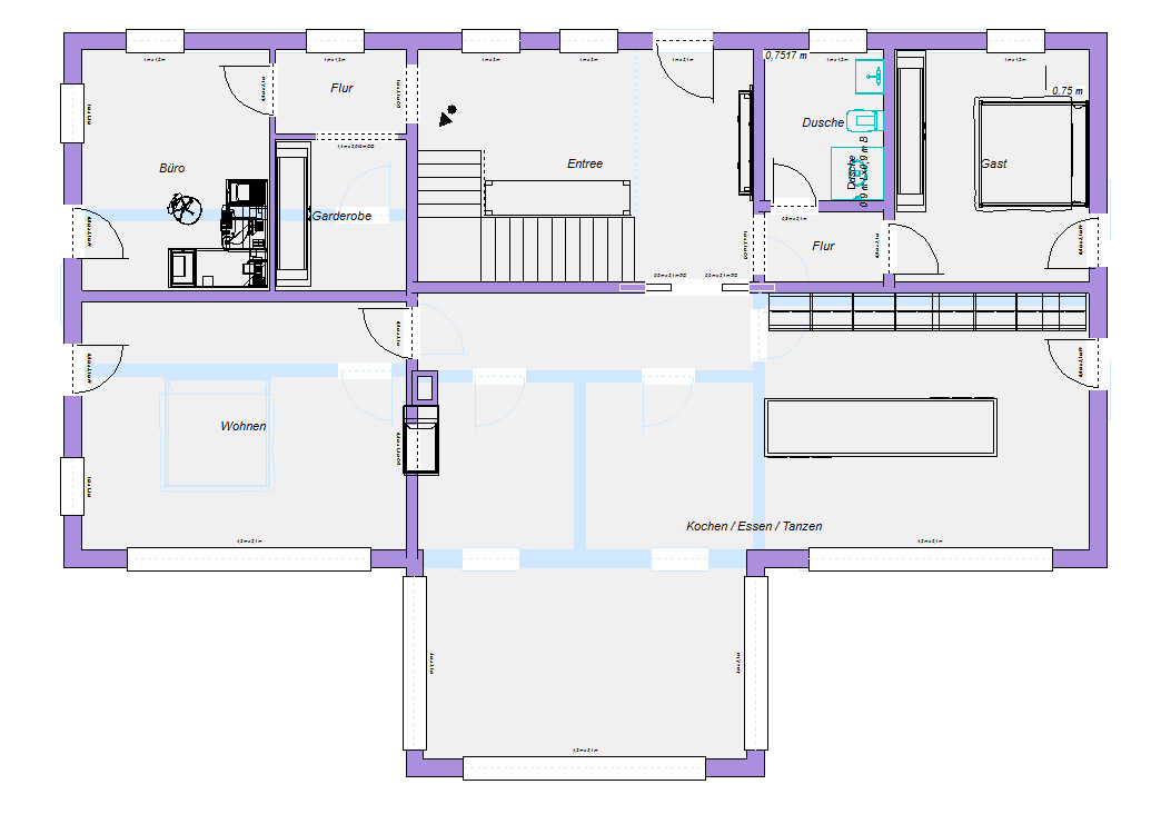
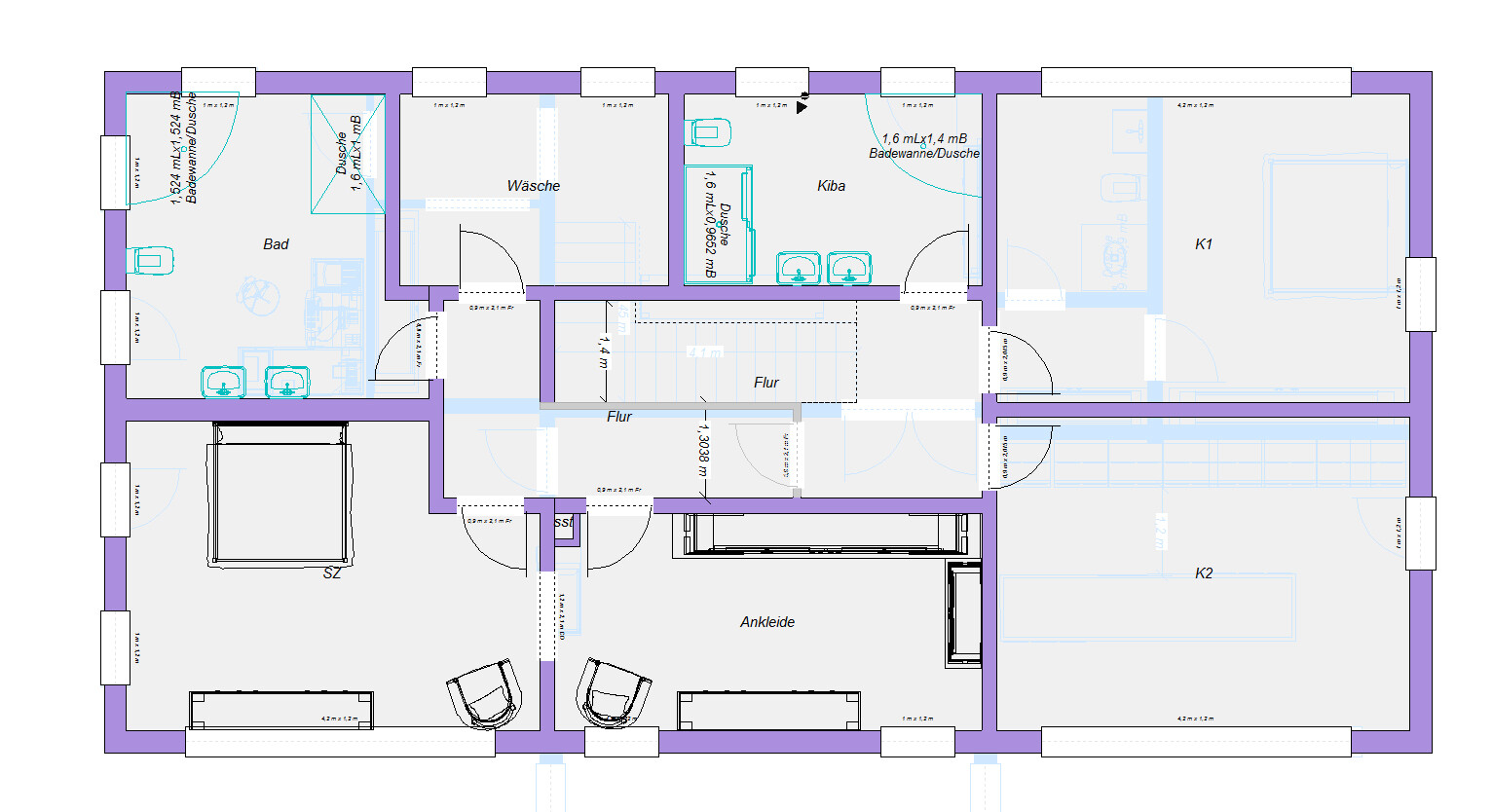
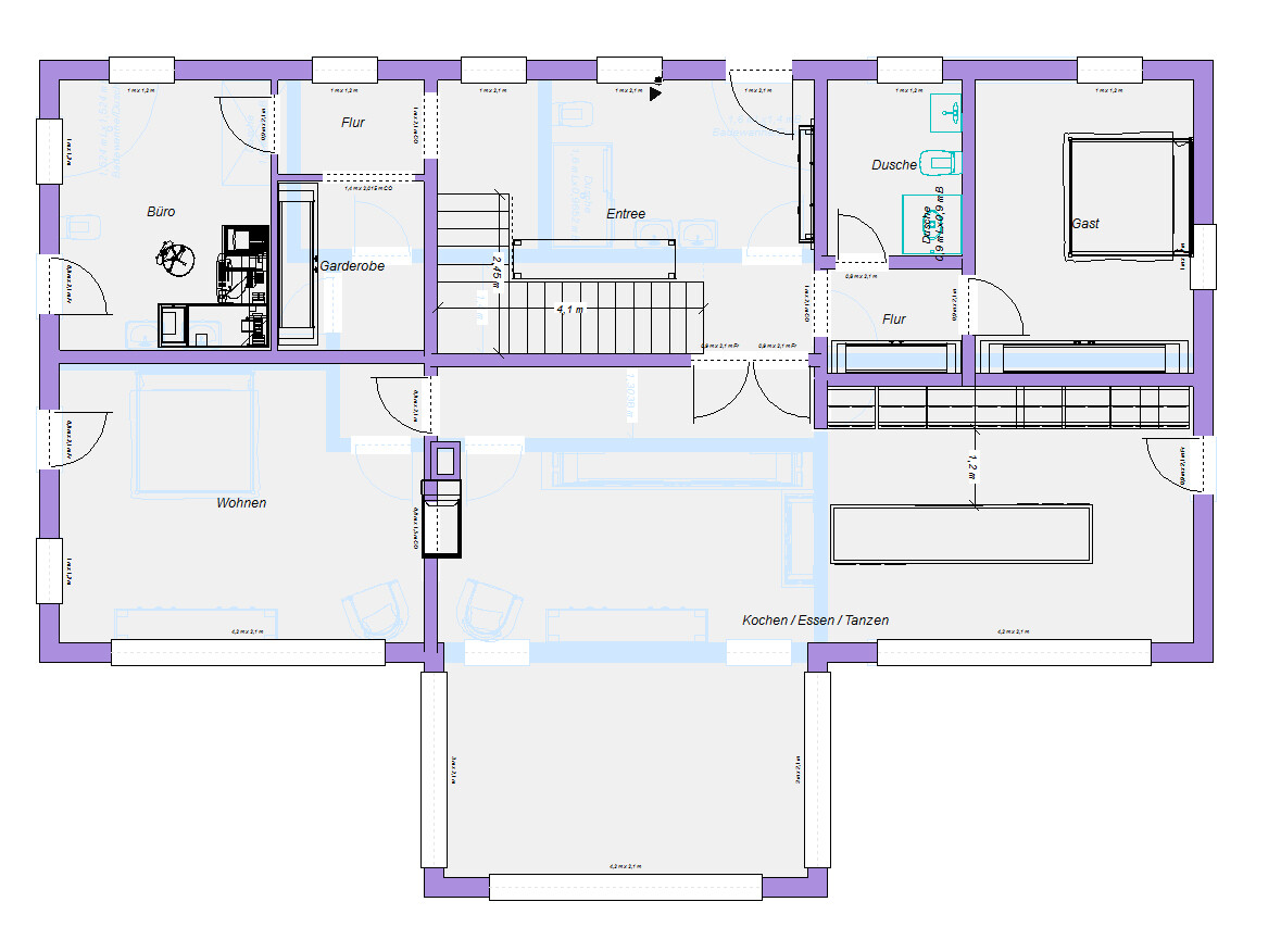
Grundriss eines Hauses: Bad, Ankleide, Galerie, Bett, Wasche, Kiba, K1, K2, violette Wände.

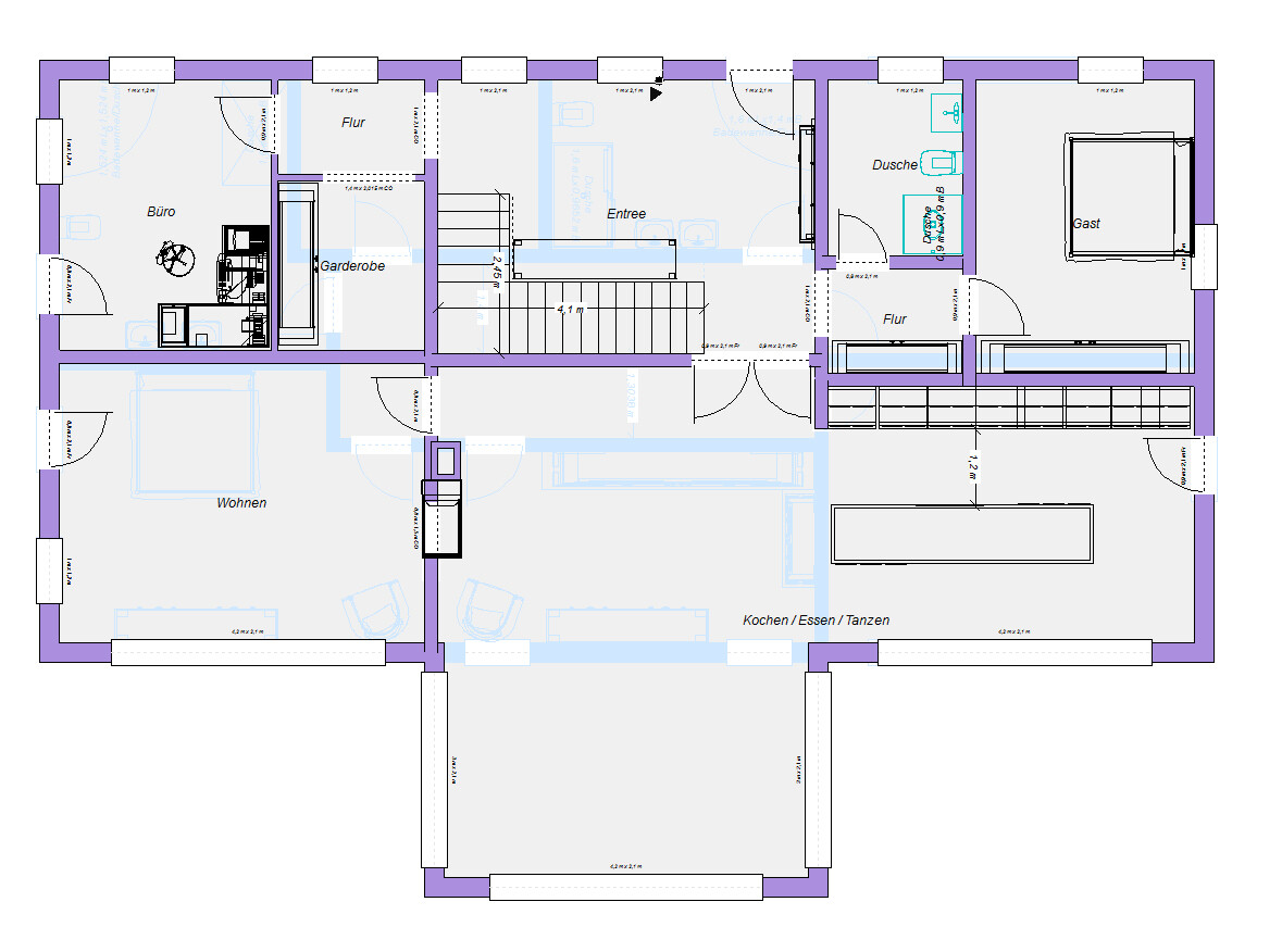
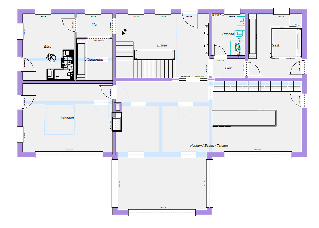
Grundriss eines Hauses: Wohnzimmer, Küche/Essen/Tanzen, Büro, Gästezimmer, Flure, Dusche
kaho67416.06.18 08:05

Grundriss eines Wohnungsplans: Bad links, Dusche, Wäsche, Ankleide, Flur, K1, K2 und SZ.

Grundriss eines Hauses: Büro, Wohnen, Küche/Essen/Tanzen, Gästezimmer, Bad, Dusche, Flure.
K
keychain
16.06.18 18:50
@kaho674
Danke für deine Mühe und deine Arbeit! der letzte Grundriss entspricht dem, was wir gestern auch schon einmal gezeichnet haben, aber unsere Unzufriedenheit mit dem Gesamtprojekt wächst. Wir fühlen uns wie in einem Schiebepuzzle- wir schieben Räume hierhin und dorthin, aber das Gesamtkonzept des Hauses erschließt sich mir immer weniger. Insbesondere sind ganz viele Kompromisse dabei, die mich wirklich stören. Wir sind daher kurz davor, den als Bauantrag eingereichten Entwurf zu zerreissen und noch einmal von vorne zu beginnen. Durch diese Überlegung und mit der Erfahrung aus dem ersten Entwurf haben wir auch begonnen, uns noch einmal ein paar Grundsätzliche Fragen zu stellen, zum Beispiel: Ist es sinnvoll, alle Privaten Räume nach oben zu legen und so den offenen Dachstuhl in viele kleine Räume zu legen, wo er nicht wirken kann- dafür haben wir aber ein Wohn/Esszimmer, dass wir nicht wirklich optimal bespielen können, müssen den Schornstein durch die zweite Ebene führen usw..
Klar, die Aufenthaltsräume nach oben legen ist tendenziell arbeitsreich, weil alle Lebensmittel die Treppe hoch müssen. Dafür ist ein Waschraum im Erdgeschoss sehr sinnvoll, wenn auch alle Schlafräume dort sind, und derzeit wohnen wir im 7. Stock mit einem Fahrstuhl, der nur bis in die 6. Etage geht- Also müssen wir für das Rentenalter eben einen Fahrstuhlschacht vorsehen, dann sollte es klappen. Wir schauen uns nun am Wochenende noch einmal um, was wir im Bereich Holzhaus noch für Stilrichtungen bekommen und versuchen dann, unsere Planung neu zu machen. Sobald wir etwas haben, melden wir uns wieder!

Danke natürlich auch an alle anderen, die uns bisher zum nachdenken angeregt haben.. so toll, wie wir einmal dachten, ist das Haus leider gar nicht. Aber besser wir merken es jetzt als später
H
haydee
16.06.18 19:10
Nur mal so als Überlegung
Essen, Kochen, Wohnzimmer
Elternteil unten
Kaminzimmer/Bibliothek mit schöner Aussicht oben
Gast, Kinder, Kinderbad ebenfalls oben
K
keychain
16.06.18 19:25
@haydee
Ist eine Möglichkeit, aber es erscheint mir nicht praktikabel: Ist die Küche unten, haben wir oben eventuell doch wieder Gerüche. Ist die Küche oben und die Schlafräume unten, sollte das zumindest kein Thema mehr sein. Der Kamin ist für uns sehr wichtig, wenn der nicht im Mittelpunkt der Räume steht, in denen wir uns meistens aufhalten, macht es wenig Sinn. Gast und Kinder oben gibt uns zwar Ruhe, aber wir koennen abends auch nicht mehr so einfach am Kamin mit anderen erzählen ohne sie zu stören, wenn sie mal da sind.

Vielleicht denken wir auch zu kompliziert. Spricht für dich etwas gegen die Anordnung, die wir uns gedacht haben?
kaho67416.06.18 19:50
Ja, ich hatte mich schon gewundert, wieso Ihr das Pferd von hinten aufzäumen wollt. Den Bauantrag stellt man doch erst, wenn man den fertigen Plan in der Tasche hat. Zumindest wisst Ihr ja jetzt schon mal, was Euch wichtig ist.
Bei Deinen Gedanken kann ich leider nicht komplett folgen. Wieso sollen die Schlafräume jetzt ins EG und die Küche ins OG? Oder hab ich das falsch verstanden?
schlafräumeküchebauantragentwurfkamin