ᐅ Blockhaus mit Krüppelwalmdach am Wald - Planung verbessern?
Erstellt am: 11.06.18 19:45
Hallo zusammen,
seit über einem Jahr planen und lesen wir fleissig mit. Nun wo unsere Pläne konkreter werden, würden wir gerne ebenfalls unseren Entwurf vorstellen und von euch Kritik bekommen.
Vorab: Ja, das Haus ist groß. Es ist unser Traum, wir übernehmen viel in Eigenleistung und wissen auch, dass wir nicht mehr anbauen können- die Umstände hier sind ein wenig seltsam, es handelt sich streng genommen nur für ein kurzes Zeitfenster tatsächlich um Bauland.
Kurz zu uns: Ich bin 36 Jahre alt und Mitinhaber einer IT-Firma. Meine Lebensgefährtin ist 31 Jahre alt und arbeitet als Dozentin. Wir haben vor etwa 2 Jahren unser Traumgrundstück gefunden - etwas über 2800qm, mit direktem Waldzugang und in dritter Reihe. Alle Nachbargrundstücke sind, soweit möglich, bereits mit ehemaligen Wochenendhäusern oder Wohnhäusern bebaut.
Erstmal der Fragenkatalog:
Bebauungsplan/Einschränkungen?
Nein, kein Bebauungsplan, also nach üblicher Bebauung. Das Nachbarhaus hat 2 Vollgeschosse, daran orientieren wir uns.
Größe des Grundstücks
2800qm
Hang
leichte Hanglage, wir sind auf einem Ausläufer des Erzgebirges auf dem Kamm. Der Bauplatz hat einen Höhenunterschied von Max 60cm (von Nordost nach Südwest), das gesamte Grundstück fällt an der Westgrenze rund 1,80 nach Süden ab. Felsiger Boden ab 2,5m Tiefe
Grundflächenzahl/Geschossflächenzahl
nichts genaues bekannt, laut Anwalt des Baugenehmigungsamtes liegen wir locker drin
Baufenster, Baulinie und -grenze
gibt es nicht
Randbebauung
Meint das Abstandsflächen und Grenzbebauung? Wenn ja: umlaufend 3m, Grenzbebauung für Schuppen und Garagen theoretisch zulässig
Anzahl Stellplatz
1-2 unter dem Vordach + Doppelgarage
Geschossigkeit
2
Dachform
Krüppelwalmdach
Stilrichtung
hm.. keine Ahnung?
Ausrichtung
Südsüdwest
Maximale Höhen/Begrenzungen
nichts
weitere Vorgaben
Anforderungen der Bauherren
Wir möchten, dass unser Haus uns Willkommen heisst. Warmes Holz, natürliche Baustoffe, viel Licht und Luft - hohe Decken, große Balken.. Es soll sich in die Umgebung gut Einfügen, warm und wohnlich sein.
Stilrichtung, Dachform, Gebäudetyp
Blockhaus aus Leimholzbalken (wahrscheinlich Finnlog)
Keller, Geschosse
Vollunterkellert mit 2 Vollgeschossen
Anzahl der Personen, Alter
Derzeit: 2 Personen. Kinder könnten noch kommen, Eltern ebenfalls.
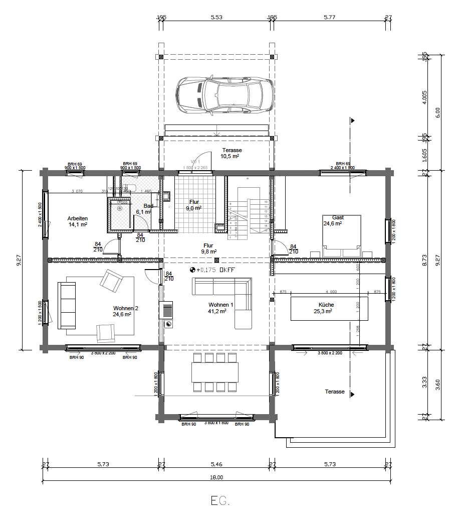
Raumbedarf im EG, OG
Derzeit: rund 300qm. Erscheint mir ziemlich viel, aber wenn ich mir einzelne Räume anschaue (Wohn-/Essbereich) weiss ich nicht, wo ich da noch eine Musikanlage aufstellen soll. Scheint irgendwie von der Planung falsch zu sein, oder wir haben falsche Maßstäbe gesetzt, da wir keinen Fernseher haben, ist das zentrale Element der Kamin.
Büro: Familiennutzung oder Homeoffice?
Büro ist eingeplant, aber nur als Notlösung. Ich möchte nicht zuhause arbeiten und benötige nur Platz für private Akten und einen Schreibtisch.
Schlafgäste pro Jahr
Wechselnd, derzeit sehr wenige, mit Haus hoffentlich viel mehr - dann können wir sie unterbringen
offene oder geschlossene Architektur
Teils teils. Ich mag es eher offen, ein Luftraum über dem Wohnbereich verbietet sich aber, wenn man nicht alle Essensgerüche direkt im Schlafzimmer haben will.
konservativ oder moderne Bauweise
hm.. Holzhaus massiv? Konservativ.
offene Küche, Kochinsel
Eine offene, große Küche mit großer Insel, an der man mit mehr als 2 Leuten bequem kochen kann. Keine Sitzgelegenheit in der Küche, dafür eine riesige Arbeitsfläche.
Anzahl Essplätze
10
Kamin
Ja, ein großer Specksteinofen
Musik/Stereowand
Ich überlege, im Haus Sonos zu verbauen und ein Musikzimmer in den Keller zu legen.
Balkon, Dachterrasse
nein, dazu haben wir einen Garten.
Garage, Carport
Beides, zumindest ist die Überdachung des Eingangsbereichs groß genug für mindestens ein Auto
Nutzgarten, Treibhaus
Wir wünschen uns ein Treibhaus, einen Schwimmteich und eine Feuerstelle.
weitere Wünsche/Besonderheiten/Tagesablauf, gern auch Begründungen, warum dieses oder das nicht sein soll
Hausentwurf
Von wem stammt die Planung:
Die Planung ist mit einer Architektin entstanden, basiert aber auf unseren Entwürfen
Was gefällt besonders? Warum?
Hohe Decken und sichtbare Deckenbalken im OG, abgetrennter Bereich im OG für uns, das Kaminzimmer als zweiter Rückzugsort, der eingeschossige "Anbau" für das Esszimmer, die große Küche, die Kamine.. und natürlich ganz besonders das viele Holz.
Was gefällt nicht? Warum?
Die Fenster in den Giebeln sollten noch ein aufgesetztes Dreieck bekommen um das Licht auszunutzen. Die bisherige Teilung wirkt auf mich etwas altbacken. Eigentlich wollten wir einen Luftraum haben, dieser lässt sich aber nicht sinnvoll integrieren. Das Thema Heizung ist ein Dauerbrenner und nie abschliessend behandelt..
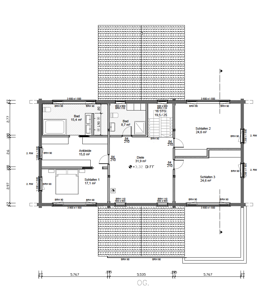
Ganz schlimm: Die Badeinrichtung vom Masterbad. Gewünscht ist eine große Badewanne und eine Doppeldusche. Entweder ist das Bad zu klein oder wir haben keine Fantasie. Gemütlich sieht das aber nicht aus...
favorisierte Heiztechnik: derzeit leider Erdgas. Festbrennstoffe fallen aus verschiedensten Gründen aus: ein Holzvergaser ist zu teuer und zu arbeitsintensiv, Pellet- oder Hackschnitzelöfen sind nicht wirklich wirtschaftlich zu betreiben, ausserdem bekommen wir im Winter keinen Nachschub, wenn unsere Straße einmal zugeschneit ist. Erdgas liegt in etwa 100m Entfernung an, einen Preis zur Erschließung warten wir noch ab. Wärmepumpen überzeugen mich rechnerisch nur, wenn es Erdwärme ist- dann ist der Einbau und die Technik aber teurer als ein aktueller Golf. Eine Ölheizung oder einen Flüssiggastank möchten wir nicht.
Wenn Ihr verzichten müsst, auf welche Details/Ausbauten
-könnt Ihr verzichten:
-könnt Ihr nicht verzichten:
Warum ist der Entwurf so geworden, wie er jetzt ist? ZB
Die Architektin hat einen Entwurf von uns bekommen, jedes Zimmer wurde vorab besprochen (Verwendung, Größe, Inhalt..) und anschließend der Entwurf mehrfach überarbeitet. Wir mögen, dass er praktisch alles umsetzt was wir uns gewünscht haben und das ganze Haus nicht allzu wuchtig erscheint - durch das Krüppelwalmdach und die Giebel empfinden wir es zumindest auf den Plänen nicht so.
Was ist die wichtigste/grundlegende Frage zum Grundriss in 130 Zeichen zusammengefasst?
Abgesehen vom Putzaufwand: Ist der Grundriss praxistauglich? Bspw: Waschmaschine im 1. OG wo die Wäsche anfällt, Bad für die Kinder..
Nun noch der Freitext, also unsere Anmerkungen:
Einige Dinge sind auch schon anders als im Plan dargestellt:
Zu anderen Dingen haben wir uns außerdem Gedanken gemacht:







seit über einem Jahr planen und lesen wir fleissig mit. Nun wo unsere Pläne konkreter werden, würden wir gerne ebenfalls unseren Entwurf vorstellen und von euch Kritik bekommen.
Vorab: Ja, das Haus ist groß. Es ist unser Traum, wir übernehmen viel in Eigenleistung und wissen auch, dass wir nicht mehr anbauen können- die Umstände hier sind ein wenig seltsam, es handelt sich streng genommen nur für ein kurzes Zeitfenster tatsächlich um Bauland.
Kurz zu uns: Ich bin 36 Jahre alt und Mitinhaber einer IT-Firma. Meine Lebensgefährtin ist 31 Jahre alt und arbeitet als Dozentin. Wir haben vor etwa 2 Jahren unser Traumgrundstück gefunden - etwas über 2800qm, mit direktem Waldzugang und in dritter Reihe. Alle Nachbargrundstücke sind, soweit möglich, bereits mit ehemaligen Wochenendhäusern oder Wohnhäusern bebaut.
Erstmal der Fragenkatalog:
Bebauungsplan/Einschränkungen?
Nein, kein Bebauungsplan, also nach üblicher Bebauung. Das Nachbarhaus hat 2 Vollgeschosse, daran orientieren wir uns.
Größe des Grundstücks
2800qm
Hang
leichte Hanglage, wir sind auf einem Ausläufer des Erzgebirges auf dem Kamm. Der Bauplatz hat einen Höhenunterschied von Max 60cm (von Nordost nach Südwest), das gesamte Grundstück fällt an der Westgrenze rund 1,80 nach Süden ab. Felsiger Boden ab 2,5m Tiefe
Grundflächenzahl/Geschossflächenzahl
nichts genaues bekannt, laut Anwalt des Baugenehmigungsamtes liegen wir locker drin
Baufenster, Baulinie und -grenze
gibt es nicht
Randbebauung
Meint das Abstandsflächen und Grenzbebauung? Wenn ja: umlaufend 3m, Grenzbebauung für Schuppen und Garagen theoretisch zulässig
Anzahl Stellplatz
1-2 unter dem Vordach + Doppelgarage
Geschossigkeit
2
Dachform
Krüppelwalmdach
Stilrichtung
hm.. keine Ahnung?
Ausrichtung
Südsüdwest
Maximale Höhen/Begrenzungen
nichts
weitere Vorgaben
Anforderungen der Bauherren
Wir möchten, dass unser Haus uns Willkommen heisst. Warmes Holz, natürliche Baustoffe, viel Licht und Luft - hohe Decken, große Balken.. Es soll sich in die Umgebung gut Einfügen, warm und wohnlich sein.
Stilrichtung, Dachform, Gebäudetyp
Blockhaus aus Leimholzbalken (wahrscheinlich Finnlog)
Keller, Geschosse
Vollunterkellert mit 2 Vollgeschossen
Anzahl der Personen, Alter
Derzeit: 2 Personen. Kinder könnten noch kommen, Eltern ebenfalls.
Raumbedarf im EG, OG
Derzeit: rund 300qm. Erscheint mir ziemlich viel, aber wenn ich mir einzelne Räume anschaue (Wohn-/Essbereich) weiss ich nicht, wo ich da noch eine Musikanlage aufstellen soll. Scheint irgendwie von der Planung falsch zu sein, oder wir haben falsche Maßstäbe gesetzt, da wir keinen Fernseher haben, ist das zentrale Element der Kamin.
Büro: Familiennutzung oder Homeoffice?
Büro ist eingeplant, aber nur als Notlösung. Ich möchte nicht zuhause arbeiten und benötige nur Platz für private Akten und einen Schreibtisch.
Schlafgäste pro Jahr
Wechselnd, derzeit sehr wenige, mit Haus hoffentlich viel mehr - dann können wir sie unterbringen
offene oder geschlossene Architektur
Teils teils. Ich mag es eher offen, ein Luftraum über dem Wohnbereich verbietet sich aber, wenn man nicht alle Essensgerüche direkt im Schlafzimmer haben will.
konservativ oder moderne Bauweise
hm.. Holzhaus massiv? Konservativ.
offene Küche, Kochinsel
Eine offene, große Küche mit großer Insel, an der man mit mehr als 2 Leuten bequem kochen kann. Keine Sitzgelegenheit in der Küche, dafür eine riesige Arbeitsfläche.
Anzahl Essplätze
10
Kamin
Ja, ein großer Specksteinofen
Musik/Stereowand
Ich überlege, im Haus Sonos zu verbauen und ein Musikzimmer in den Keller zu legen.
Balkon, Dachterrasse
nein, dazu haben wir einen Garten.
Garage, Carport
Beides, zumindest ist die Überdachung des Eingangsbereichs groß genug für mindestens ein Auto
Nutzgarten, Treibhaus
Wir wünschen uns ein Treibhaus, einen Schwimmteich und eine Feuerstelle.
weitere Wünsche/Besonderheiten/Tagesablauf, gern auch Begründungen, warum dieses oder das nicht sein soll
Hausentwurf
Von wem stammt die Planung:
Die Planung ist mit einer Architektin entstanden, basiert aber auf unseren Entwürfen
Was gefällt besonders? Warum?
Hohe Decken und sichtbare Deckenbalken im OG, abgetrennter Bereich im OG für uns, das Kaminzimmer als zweiter Rückzugsort, der eingeschossige "Anbau" für das Esszimmer, die große Küche, die Kamine.. und natürlich ganz besonders das viele Holz.
Was gefällt nicht? Warum?
Die Fenster in den Giebeln sollten noch ein aufgesetztes Dreieck bekommen um das Licht auszunutzen. Die bisherige Teilung wirkt auf mich etwas altbacken. Eigentlich wollten wir einen Luftraum haben, dieser lässt sich aber nicht sinnvoll integrieren. Das Thema Heizung ist ein Dauerbrenner und nie abschliessend behandelt..
Ganz schlimm: Die Badeinrichtung vom Masterbad. Gewünscht ist eine große Badewanne und eine Doppeldusche. Entweder ist das Bad zu klein oder wir haben keine Fantasie. Gemütlich sieht das aber nicht aus...
favorisierte Heiztechnik: derzeit leider Erdgas. Festbrennstoffe fallen aus verschiedensten Gründen aus: ein Holzvergaser ist zu teuer und zu arbeitsintensiv, Pellet- oder Hackschnitzelöfen sind nicht wirklich wirtschaftlich zu betreiben, ausserdem bekommen wir im Winter keinen Nachschub, wenn unsere Straße einmal zugeschneit ist. Erdgas liegt in etwa 100m Entfernung an, einen Preis zur Erschließung warten wir noch ab. Wärmepumpen überzeugen mich rechnerisch nur, wenn es Erdwärme ist- dann ist der Einbau und die Technik aber teurer als ein aktueller Golf. Eine Ölheizung oder einen Flüssiggastank möchten wir nicht.
Wenn Ihr verzichten müsst, auf welche Details/Ausbauten
-könnt Ihr verzichten:
-könnt Ihr nicht verzichten:
Warum ist der Entwurf so geworden, wie er jetzt ist? ZB
Die Architektin hat einen Entwurf von uns bekommen, jedes Zimmer wurde vorab besprochen (Verwendung, Größe, Inhalt..) und anschließend der Entwurf mehrfach überarbeitet. Wir mögen, dass er praktisch alles umsetzt was wir uns gewünscht haben und das ganze Haus nicht allzu wuchtig erscheint - durch das Krüppelwalmdach und die Giebel empfinden wir es zumindest auf den Plänen nicht so.
Was ist die wichtigste/grundlegende Frage zum Grundriss in 130 Zeichen zusammengefasst?
Abgesehen vom Putzaufwand: Ist der Grundriss praxistauglich? Bspw: Waschmaschine im 1. OG wo die Wäsche anfällt, Bad für die Kinder..
Nun noch der Freitext, also unsere Anmerkungen:
Einige Dinge sind auch schon anders als im Plan dargestellt:
- Alle Fenster lassen sich öffnen
- Schiebetüren öffnen nach außen und nicht nach Innen
- in allen Gauben werden die Fenster nicht rechteckig, sondern mit aufgesetztem Dreieck ausgeführt.
- Zwischen Flur und Wohnbereich steht mittig kein Pfosten, geplant ist stattdessen eine große Doppelflügeltür
- Der Keller hat neben der Treppe einen Technikraum, der als Durchgangsraum konzipiert ist. Meines Erachtens nach eine schlechte Lösung, ausserdem müssen wir wahrscheinlich noch einen Heizungsraum planen
- Dort, wo die Böschung eingezeichnet ist, werden Türen eingebaut. Die großen Räume erhalten so viel Tageslicht und sind als Wohnraum nutzbar.
- Die Treppenstufe, die in den Flur hineinragt ist Mist und kommt auf keinen Fall
Zu anderen Dingen haben wir uns außerdem Gedanken gemacht:
- Der Flurbereich im 1.OG soll als "Bibliothek" genutzt werden. Um Licht hineinzubekommen, planen wir den Einsatz von 2 Lichtkaminen mit 30-35cm Durchmesser. Der Vorteil: selbst nachts ist es nie komplett Dunkel, sollte man ins Bad müssen.
- Der Kamin wird als Specksteinofen ausgeführt, derzeit existiert aber noch keine Planung dazu.. strenggenommen gibt es keine Wand an der er steht, sondern er soll die Wand sein. Einen zweiten Anschluss haben wir im Kaminzimmer geplant - ursprünglich wollten wir einen Tunnelkamin, haben uns aber überzeugen lassen, dass das keine gute Idee bei einem Raumtrenner ist.
- Die Kinderzimmer sind nicht ideal - eines geht nach Norden, das andere nach Süden. Wir könnten 2 schmale, längliche Zimmer und einen Flur machen, damit beide nach Süden ausgerichtet sind, halten das aber für deutlich suboptimaler.
- Alle Türen werden im EG einen Meter breit, damit man zumindest halbwegs mit einem Rollstuhl durchkommt.
Da kommt natürlich zuerst mal die Frage nach dem Budget. Bei dieser Größe redet man erst ab 650k Euro weiter.
Auf Riesenflächen kann man als Architekt wenig falsch machen. Andererseits will vor dem Kamin keine Gemütlichkeit entstehen. An dieser Stelle erwartet man eigentlich den Esstisch - damit die Wege aus der Küche kurz bleiben. Aber in diesem Haus werden die Wege wohl nirgends kurz bleiben. Es wird eine ewige Rennerei. Über 30m² Diele im OG - echt jetzt? Habt Ihr gleich die Putzfrau mit eingeplant?
Es gibt ja Schlösser, wo man auf Anhieb sagt, ja, die 300m² sind zwar der pure Luxus aber passen zum Haus und zum Grundriss. Hier ist einfach nur alles groß. Und trotzdem stolpert man über die erste Stufe der Treppe, wenn man um die Kurve im EG kommt.
Mein Fazit: man kann so bauen. Mir wär es viel zu ungemütlich groß - wie in einem Langhaus der Indianer. Um sich zu unterhalten, muss man sich rechtzeitig verabreden. Wer will das schon?
Auf Riesenflächen kann man als Architekt wenig falsch machen. Andererseits will vor dem Kamin keine Gemütlichkeit entstehen. An dieser Stelle erwartet man eigentlich den Esstisch - damit die Wege aus der Küche kurz bleiben. Aber in diesem Haus werden die Wege wohl nirgends kurz bleiben. Es wird eine ewige Rennerei. Über 30m² Diele im OG - echt jetzt? Habt Ihr gleich die Putzfrau mit eingeplant?
Es gibt ja Schlösser, wo man auf Anhieb sagt, ja, die 300m² sind zwar der pure Luxus aber passen zum Haus und zum Grundriss. Hier ist einfach nur alles groß. Und trotzdem stolpert man über die erste Stufe der Treppe, wenn man um die Kurve im EG kommt.
Mein Fazit: man kann so bauen. Mir wär es viel zu ungemütlich groß - wie in einem Langhaus der Indianer. Um sich zu unterhalten, muss man sich rechtzeitig verabreden. Wer will das schon?
Respekt: Ein riesiges Haus mit viel Wohnfläche, extrem großzügig ... gefällt mir.
Das Erdgeschoss finde ich echt cool. Ich würde Arbeitszimmer und Gästezimmer tauschen. Im OG ist die Diele zu dunkel, da braucht ihr mehr Licht. Was macht ihr mit dem Keller? So viele Räume. Macht da draus Wohnraum, auf jeden Fall ein Bad rein (für eine Sauna?) und Zugang von außen wenn das geht.
Das Erdgeschoss finde ich echt cool. Ich würde Arbeitszimmer und Gästezimmer tauschen. Im OG ist die Diele zu dunkel, da braucht ihr mehr Licht. Was macht ihr mit dem Keller? So viele Räume. Macht da draus Wohnraum, auf jeden Fall ein Bad rein (für eine Sauna?) und Zugang von außen wenn das geht.
Danke schon einmal für die Antworten Manche Kritikpunkte sind im Post selber schon beantwortet glaube ich:
@kaho674
30qm Diele im OG werden als Bibliothek genutzt. Ich habe mehr als 1000 Bücher und wollte schon immer einen Platz dafür haben. Im Zweifelsfall kann man hier sogar noch einen Raum abtrennen, auch, wenn ich nicht wüsste, wofür.
Das Licht wird durch große Lichtkamine (Gibt es unter anderem von Velux) eingebracht, das hat für uns große Vorteile (meinen wir zumindest): Durch den Diffusor und die runde Kuppel sind Verschmutzungen nicht sichtbar, es ist einfach nur heller. Dachfenster putzen wollen wir nicht. Außerdem kommt auch Mondlicht mit herein, so dass man Nachts keine vollständige Dunkelheit hat. Es werden auch LEDs integriert, so dass man statt Sonne auch künstlich beleuchten kann.
Die Treppe ist noch aus einem alten Plan, es wird keine Stufe in den Flur hineinragen, wie das geplant werden konnte ist mir ebenfalls schleierhaft.
Der Wohn/Essbereich muss vielleicht wirklich umgestellt werden. Instinktiv dachten wir, der Essbereich ist dort, wo er steht, gut untergebracht. Man kann auf den Teich oder in den Wald schauen, hat viel Licht. Aber das ist vielleicht auch ein Trugschluss. Danke für den Hinweis.
Putzen: Ja, die Putzfrau ist eingeplant. Wir wissen, dass wir das nicht sauberhalten und genießen können.
@munger71
Licht kommt, wie bei Kaho erwähnt, durch die Lichtkamine, es wird schön hell werden. Arbeitszimmer und Gästezimmer tauschen möchte ich ungern, da ich im Arbeitszimmer nicht viel Platz brauche und das Gästezimmer später durchaus unser Schlafzimmer werden kann, wenn sich unser Leben nur noch im EG abspielt. Im Zweifelsfall ist auch geplant, dass wir unsere Eltern zu uns holen können, die dann im EG ein großes Schlafzimmer haben. Eine Einliegerwohnung können wir maximal im Keller integrieren, was Lichttechnisch aber schwer wird und nicht mehr Rollstuhlgerecht wäre, das wird schon im EG grenzwertig.
Das Bad im Keller kommt neben die Treppe, in den Raum, der jetzt noch ein Durchgangsraum ist. Das wird umgeplant als Bad, vielleicht auch etwas größer. Eine Sauna wollte ich draußen an den Teich setzen. In einen Raum kommt sicher eine Bar und ein Billardtisch. Ab und zu braue ich Bier, das muss ja auch wieder ausgeschenkt werden..
@kaho674
30qm Diele im OG werden als Bibliothek genutzt. Ich habe mehr als 1000 Bücher und wollte schon immer einen Platz dafür haben. Im Zweifelsfall kann man hier sogar noch einen Raum abtrennen, auch, wenn ich nicht wüsste, wofür.
Das Licht wird durch große Lichtkamine (Gibt es unter anderem von Velux) eingebracht, das hat für uns große Vorteile (meinen wir zumindest): Durch den Diffusor und die runde Kuppel sind Verschmutzungen nicht sichtbar, es ist einfach nur heller. Dachfenster putzen wollen wir nicht. Außerdem kommt auch Mondlicht mit herein, so dass man Nachts keine vollständige Dunkelheit hat. Es werden auch LEDs integriert, so dass man statt Sonne auch künstlich beleuchten kann.
Die Treppe ist noch aus einem alten Plan, es wird keine Stufe in den Flur hineinragen, wie das geplant werden konnte ist mir ebenfalls schleierhaft.
Der Wohn/Essbereich muss vielleicht wirklich umgestellt werden. Instinktiv dachten wir, der Essbereich ist dort, wo er steht, gut untergebracht. Man kann auf den Teich oder in den Wald schauen, hat viel Licht. Aber das ist vielleicht auch ein Trugschluss. Danke für den Hinweis.
Putzen: Ja, die Putzfrau ist eingeplant. Wir wissen, dass wir das nicht sauberhalten und genießen können.
@munger71
Licht kommt, wie bei Kaho erwähnt, durch die Lichtkamine, es wird schön hell werden. Arbeitszimmer und Gästezimmer tauschen möchte ich ungern, da ich im Arbeitszimmer nicht viel Platz brauche und das Gästezimmer später durchaus unser Schlafzimmer werden kann, wenn sich unser Leben nur noch im EG abspielt. Im Zweifelsfall ist auch geplant, dass wir unsere Eltern zu uns holen können, die dann im EG ein großes Schlafzimmer haben. Eine Einliegerwohnung können wir maximal im Keller integrieren, was Lichttechnisch aber schwer wird und nicht mehr Rollstuhlgerecht wäre, das wird schon im EG grenzwertig.
Das Bad im Keller kommt neben die Treppe, in den Raum, der jetzt noch ein Durchgangsraum ist. Das wird umgeplant als Bad, vielleicht auch etwas größer. Eine Sauna wollte ich draußen an den Teich setzen. In einen Raum kommt sicher eine Bar und ein Billardtisch. Ab und zu braue ich Bier, das muss ja auch wieder ausgeschenkt werden..
Wenn im OG eine Bibliothek entstehen soll, dann würde ich die Schränke aber mal einzeichnen. Oft wundert sich der geneigte Schrankaufbauer, dass da plötzlich ein Fenster ist, was verdeckt würde, oder Dachschrägen und Schornsteine...
Eure Begeisterung für die Lichtkamine ist mir ein Rätsel. Sowas baut man, wenn man anders kein Licht ins Haus bekommt. Ein einfaches Fenster ist aber doch viel besser und effektiver. Der Clou: man kann es öffnen.
Wie sieht denn diese Lichtsache auf dem Krüppelwalmdach-Holzhaus aus? Bei modernen Flachdachhäusern im Bauhausstil kennt man ja die Lichtkuppeln, welche durchaus passend sind. Aber bei so einer Holzhütte mit Krüppelwalmdach kann ich mir das gerade gar nicht vorstellen. Der Architekt soll die mal einzeichnen, damit man sich den drohenden Kulturschock vorstellen kann.
Da die Budgetfrage wieder elegant ausgeklammert wurde, wird die Diskussion mangels Glaubhaftigkeit vermutlich mager bleiben.
Eure Begeisterung für die Lichtkamine ist mir ein Rätsel. Sowas baut man, wenn man anders kein Licht ins Haus bekommt. Ein einfaches Fenster ist aber doch viel besser und effektiver. Der Clou: man kann es öffnen.
Wie sieht denn diese Lichtsache auf dem Krüppelwalmdach-Holzhaus aus? Bei modernen Flachdachhäusern im Bauhausstil kennt man ja die Lichtkuppeln, welche durchaus passend sind. Aber bei so einer Holzhütte mit Krüppelwalmdach kann ich mir das gerade gar nicht vorstellen. Der Architekt soll die mal einzeichnen, damit man sich den drohenden Kulturschock vorstellen kann.
Da die Budgetfrage wieder elegant ausgeklammert wurde, wird die Diskussion mangels Glaubhaftigkeit vermutlich mager bleiben.
kaho674 schrieb:
Da die Budgetfrage wieder elegant ausgeklammert wurde, wird die Diskussion mangels Glaubhaftigkeit vermutlich mager bleiben.Über Geld möchte er hier nicht sprechen, ich nehme an dass das nicht das Problem sein wird.Generell ernten Grundrisse sehr großer Häuser hier wenig Zuspruch und wenig konstruktive Diskussion.
Eine Einliegerwohnung im Keller würde ich in jedem Fall vorsehen, nicht alle Menschen werden im Alter im Rollstuhl landen. Und einen Raum im Keller würde ich als Heimkino ausbauen, auch wenn ihr momentan noch keinen Fernseher habt, das kann sich aber mit Kindern ändern. Sofern ihr als Eltern euer Schlafzimmer ins EG verlagert und die Kids das OG bekommen werdet ihr im EG ggf. ein größeres Bad haben wollen. Die Sauna im Außenbereich ist top ... ich würde schauen dass ihr dann verschwitzt in den Keller in den Wellnessbereich laufen könnt, dann müsst ihr nicht durchs Wohnzimmer in die Dusche im EG.
Ähnliche Themen