Bitte um Tipps zum Entwurf EG Grundriss

4,50 Stern(e) 4 Votes
Zuletzt aktualisiert 18.11.2025
Sie befinden sich auf der Seite 3 der Diskussion zum Thema: Bitte um Tipps zum Entwurf EG Grundriss
>> Zum 1. Beitrag <<

M

mondbau

Bebauungsplan/Einschränkungen
Größe des Grundstücks: 500qm
Hang: Nein
Grundflächenzahl: 0,3
Geschossflächenzahl: 2
Baufenster, Baulinie und -grenze
Randbebauung: nein
Anzahl Stellplatz: 1
Geschossigkeit: 2
Dachform: Zeltdach
Stilrichtung: Stadtvilla
Ausrichtung: Südliche Längsachse
Maximale Höhen/Begrenzungen: 10,5m

Anforderungen der Bauherren
Stilrichtung (Stadtvilla), Dachform (Zelt-oder Walmdach),
Gebäudetyp (quadratisch wegen Längsachse und Eingang von Straßenseite)
Keller (nein), Geschosse (2)
Anzahl der Personen, Alter: 4 (2 Erwachsene und 2 Kleinkinder)
Raumbedarf im EG, OG: ca. 155qm
Büro: Familiennutzung oder Homeoffice? Familiennutzung
Schlafgäste pro Jahr: selten
offene oder geschlossene Architektur: kein Plan
konservativ oder moderne Bauweise: modern
offene Küche, Kochinsel: ja
Anzahl Essplätze: 6 Personen
Kamin: ja
Carport

Hausentwurf
Von wem stammt die Planung: Do-it-Yourself
Was gefällt besonders? Warum? Viele bodentiefe Fenster
Was gefällt nicht? Warum? Küche gefällt nicht, Platz für Backofen/Kühlschrank kann nicht so einfach eingebracht werden
Persönliches Preislimit fürs Haus, inkl Ausstattung: 300.000€
favorisierte Heiztechnik: Gas-Therme

Wenn Ihr verzichten müsst, auf welche Details/Ausbauten
-könnt Ihr verzichten: Gästeraum
-könnt Ihr nicht verzichten: Bodentiefe Fenster

Warum ist der Entwurf so geworden, wie er jetzt ist?
Standardentwurf vom Planer? Ein Anfang
 
M

mondbau

Komisch: zumindest die "grüne" Vorlage in https://www.hausbau-forum.de/threads/Ausrichtung-nach-laengsachse-hauptgebaeude.31143/#post-324885 war schon´mal etwas besser. Übrigens rate ich gerade Laien, mit dem OG zu beginnen. Du schriebst an anderer Stelle, der Bebauungsplan wünsche eine Hausachse (?) - wieso versteifst Du Dich dann auf einen Quadratgrundriss ?
Na gerade deswegen der Quadratgrundriss. Die Längsachse des Hauses muss in Süd-West Ausrichtung. Ich möchte unbedingt von der Straßenseite (hier Ost) in das Haus und im Westen den Garten haben, da dieser der größere Grünbereich ist.
 
M

mondbau

Du gibst sehr viel Geld für "leeren" Raum aus und gleichzeitig wird es in Küche und Flur eng. Allein schon deswegen sagt mir der Entwurf nicht zu. Wenn Du den vielen Raum im Wohnzimmer für irgendetwas brauchst kann das Sinn machen. Vielleicht gibst Du ja zu Hause Yoga Kurse .
Da hast du wohl recht. Yoga ist nicht so mein Ding.
 
M

mondbau

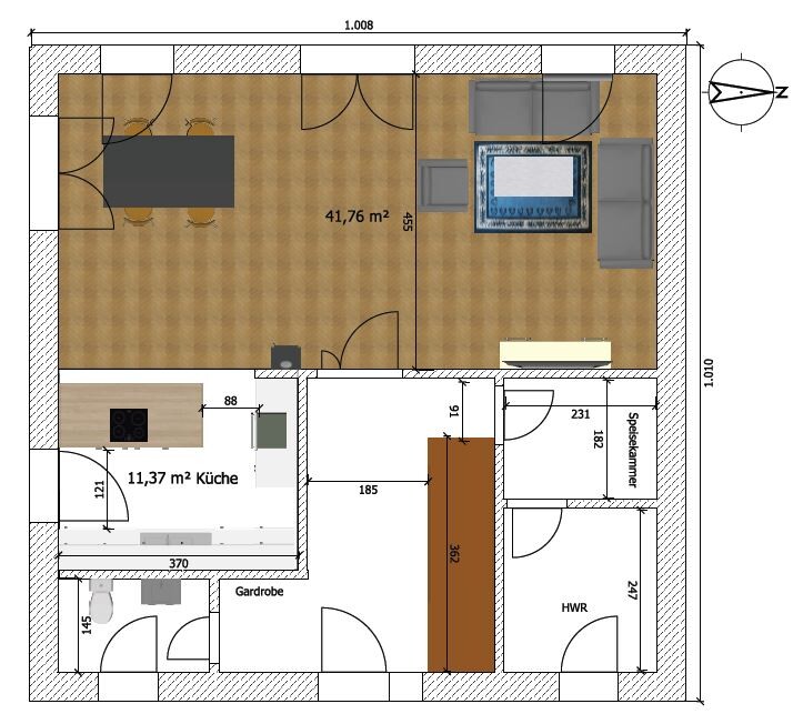
Die schiefe Wand mit der Tür macht das etwas schwierig finde ich. Du hast unten Küche und Essplatz gequetscht, dann kommt eine riesige freie Fläche. Das würde ich neu aufteilen. Leider sind kaum Maße in deinem Plan. Ist es dein eigener Entwurf oder wird schon so gebaut?
Die schiefe Wand habe ich geplant damit für den Wohnbereich mehr Platz da ist. Und für den kleinen Kamin. Ist nur ein Entwurf von mir.
 
M

mondbau

Alternativ Küche mit Speisekammer. Evtl. könnte man auch hier das Gäste-WC platzieren und beim Hauswirtschaftsraum mehr Platz schaffen.

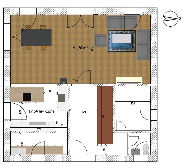
Grundriss: offener Wohn-/Essbereich mit Sofa und TV, Küche mit Insel, zentrale Diele.


Isometrische 3D-Ansicht eines Apartments: Wohnzimmer, Essbereich, Küche, Treppe, Schlafzimmer.

3D-Hausgrundriss: Wohnzimmer mit Sofa/TV, Küche, Essbereich, Treppe.
 
Zuletzt aktualisiert 18.11.2025
Im Forum Grundrissplanung / Grundstücksplanung gibt es 2536 Themen mit insgesamt 87964 Beiträgen


Ähnliche Themen zu Bitte um Tipps zum Entwurf EG Grundriss
Nr.ErgebnisBeiträge
1Neubau Einfamilienhaus ca.220qm, 2. Entwurf Stadtvilla 59
2Entwurf Grundriss EG/OG sowie L-Vordach - Tipps 17
3Grundriss Einfamilienhaus Stadtvilla ca. 240m² ohne Keller 132
4Aufmusterung Elektro, Q2, Badfliesen, Drempel, bodentiefe Fenster 23
5Mehrkosten falsch geplante Belüftungsanlage + Bodentiefe Fenster? 50
6Nicht-bodentiefe Fenster im Wohnzimmer unmodern? Welche Vorhänge? 17
7Grundrissplanung für Stadtvilla mit 168 qm - Wer hat Ideen? 47
8Einfamilienhaus als Reihenmittelhaus an Hanglage - Entwurf - Seite 318
9Grundriss-Entwurf Stadtvilla mit Doppelgarage - Seite 238
10Erster Entwurf des Grundrisses für 150m2 Haus 31
11Grundrissplanung Stadtvilla 130 qm 41
12Stadtvilla 190m² mit Einfahrt & Garten zur Südseite 30
13Grundriss Neubau Einfamilienhaus: Fenster/Türen/Innenwände Größe/Anordnung ok? 20
14Stadtvilla 170m² auf 567 m² Grundstück 77
15Grundriss für 200qm Stadtvilla - Wünsche umsetzbar? 98
16Grundrissplanung Stadtvilla 190qm 12
17Stadtvilla ca 200qm mit Anbau 35
18Grundriss Stadtvilla in Sachsen Anhalt - Check und Anregungen 29
19Grundriss-Planung Stadtvilla - Katalog-Grundriss Inspiration 78
20Unser Grundriss - Zur Beurteilung freigegeben 12

Oben