Liebe Community,
Wir sind gerade am Feinschliff unseres Grundrisses. Gerade beschäftigt uns das Hauptbad.
Was soll drin sein:
- Großer waschtisch (Ein Waschbecken mit Ablagemöglichkeiten, ca 120-150cm)
- Einbauspiegelschrank
- Größerer schrank neben Waschtisch
- WC
- Badewanne
- Walk-In Dusche mit Regendusche
Wer nutzt das Bad:
Wir sind ein Paar mit einem 4 jährigen Sohn. Es wird noch ein Gästebad geben, in das er irgendwann mal ausweichen kann. Die Badewanne nutzt zur Zeit nur unser Sohn, wir eher selten bis gar nicht.
Unsere Vorlieben:
Hell mit viel Stauraum (kl. Wäschetonne, Handtücher, Putzsachen sollen gleich an Ort und Stelle sein).
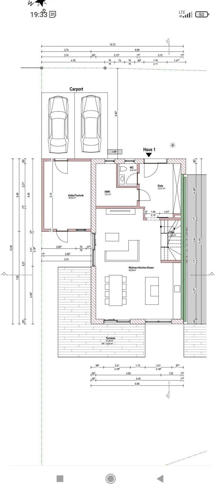
Im Anhang mal unser Grundriss des gesamten Stockwerks mit Badvorschlag vom Architekten. Eine grober Entwurf von ihm, er richtet sich nach unseren Wünschen. Unser Beratungsbedarf wird leider nicht wirklich erfüllt.
Mein Mann hat mal mit einem Badplaner gespielt und kam auf den Vorschlag im Anhang. Ich finde das schon recht stimmig. Was haltet ihr davon? Ist das umsetzbar? Gibt es Punkte, die ungeschickt sind? Mich stört hauptsächlich, dass das Fenster hinter der Badewanne ist. Aber wir kamen auf keine andere Lösung, dass nicht entweder die Dusche oder der Platz am Waschtisch eingeengt war. Und da lehn ich mich lieber über die Badewanne. Durch die Lüftungsanlage ist Fenster öffnen eh weniger intensiv.
Was ich mich jetzt frage, wie gestaltet man das Bad jetzt schön? Wände bei WC und Dusche wirklich deckenhoch? Unterschiedlich hoch? Wie würdet ihr denn Fliesen? Mit Kind sollten wir wahrscheinlich schon überall halb hoch Fliesen anbringen (WC, Waschbecken, Badewanne) und ganz in der Dusche. Wir spielen mit dem Gedanken, den Vinylboden in Eichenoptik der restlichen Wohnfläche ins Bad weiterzuführen. Mein Mann meint mit halbhohen Fliesen wird das zu bunt. Ganz weiße Fliesen bin ich noch etwas skeptisch, wenn sie auch zeitlos sind. Gerne auch Tipps für Kleinigkeiten, die das Bad aufwerten. Zum Beispiel möchte ich eine Duschmulde.
Ich freue mich schon auf eure Meinungen!
Viele Grüße




Wir sind gerade am Feinschliff unseres Grundrisses. Gerade beschäftigt uns das Hauptbad.
Was soll drin sein:
- Großer waschtisch (Ein Waschbecken mit Ablagemöglichkeiten, ca 120-150cm)
- Einbauspiegelschrank
- Größerer schrank neben Waschtisch
- WC
- Badewanne
- Walk-In Dusche mit Regendusche
Wer nutzt das Bad:
Wir sind ein Paar mit einem 4 jährigen Sohn. Es wird noch ein Gästebad geben, in das er irgendwann mal ausweichen kann. Die Badewanne nutzt zur Zeit nur unser Sohn, wir eher selten bis gar nicht.
Unsere Vorlieben:
Hell mit viel Stauraum (kl. Wäschetonne, Handtücher, Putzsachen sollen gleich an Ort und Stelle sein).
Im Anhang mal unser Grundriss des gesamten Stockwerks mit Badvorschlag vom Architekten. Eine grober Entwurf von ihm, er richtet sich nach unseren Wünschen. Unser Beratungsbedarf wird leider nicht wirklich erfüllt.
Mein Mann hat mal mit einem Badplaner gespielt und kam auf den Vorschlag im Anhang. Ich finde das schon recht stimmig. Was haltet ihr davon? Ist das umsetzbar? Gibt es Punkte, die ungeschickt sind? Mich stört hauptsächlich, dass das Fenster hinter der Badewanne ist. Aber wir kamen auf keine andere Lösung, dass nicht entweder die Dusche oder der Platz am Waschtisch eingeengt war. Und da lehn ich mich lieber über die Badewanne. Durch die Lüftungsanlage ist Fenster öffnen eh weniger intensiv.
Was ich mich jetzt frage, wie gestaltet man das Bad jetzt schön? Wände bei WC und Dusche wirklich deckenhoch? Unterschiedlich hoch? Wie würdet ihr denn Fliesen? Mit Kind sollten wir wahrscheinlich schon überall halb hoch Fliesen anbringen (WC, Waschbecken, Badewanne) und ganz in der Dusche. Wir spielen mit dem Gedanken, den Vinylboden in Eichenoptik der restlichen Wohnfläche ins Bad weiterzuführen. Mein Mann meint mit halbhohen Fliesen wird das zu bunt. Ganz weiße Fliesen bin ich noch etwas skeptisch, wenn sie auch zeitlos sind. Gerne auch Tipps für Kleinigkeiten, die das Bad aufwerten. Zum Beispiel möchte ich eine Duschmulde.
Ich freue mich schon auf eure Meinungen!
Viele Grüße
Anniiii schrieb:
Im Anhang mal unser Grundriss des gesamten Stockwerks mit Badvorschlag vom Architekten. Eine grober Entwurf von ihm, er richtet sich nach unseren Wünschen. Unser Beratungsbedarf wird leider nicht wirklich erfüllt.Gut ist ersteinmal, Daß Du zumindest das ganze Stockwerk zeigst, anstatt - wie leider oft in Badezimmerplanungsthreads - nur das Zimmer. Besser wäre, Du zeigtest auch noch das darunterliegende Stockwerk dazu.Mich dünkt, wir haben es hier mit einem Doppelhaus zu tun. Wenn "der Beratungsbedarf nicht wirklich erfüllt wird", offenbar von einem Bauträger, anstatt von Eurem selbst gesuchten Generalunternehmer (?)
Sind denn die Wünsche überhaupt erfolgreich anbringbar ? - der Bauträger von @mayglow hat sogar eine "Sonderwunschabteilung" https://www.hausbau-forum.de/threads/zusammenarbeit-mit-bautraegern-erfahrungen.43714/post-583740 / https://www.hausbau-forum.de/threads/grundrissaenderungen-reihenendhaus-von-bautraeger.45425/post-627565
https://www.instagram.com/11antgmxde/
https://www.linkedin.com/company/bauen-jetzt/
Ja, es handelt sich um eine Doppelhaushälfte. Und ja, Bauträger.
Ich dachte nicht, dass die Anordnung des Bades den Raum darunter beeinflussen könnte. Im Anhang findet ihr den Grundriss vom Stockwerk darunter. Das Bad befindet sich über dem Flur. Die Fenster und die Anordnung der Räume sollte eigentlich nicht mehr geändert werden, wobei es noch kleinere Änderungen geben darf.

Ich dachte nicht, dass die Anordnung des Bades den Raum darunter beeinflussen könnte. Im Anhang findet ihr den Grundriss vom Stockwerk darunter. Das Bad befindet sich über dem Flur. Die Fenster und die Anordnung der Räume sollte eigentlich nicht mehr geändert werden, wobei es noch kleinere Änderungen geben darf.
Anniiii schrieb:
Wir sind gerade am Feinschliff unseres Grundrisses. Gerade beschäftigt uns das Hauptbad.;)„Den Grundriss kennen wir doch?!“ wäre ein Running-Gag 😎
Ich kenne den Grundriss, und ich habe noch gedacht, dass er anders wird (wie im September mitgeteilt).
Natürlich ist er schon besser als vom BT eingezeichnet. Aber mich stört zb, dass man über die Wanne klettern muss, um das Fenster zu öffnen oder zu putzen. Wie war es: habt Ihr eine Lüftungsanlage geplant?
Oder das man keinen netten Blick von der Toi aus hat. Ist ja fast sträflich, dort zu sitzen. Zumal es auch sein kann, dass der Bereich durchs Duschen nass wird.
Sorry, aber mittlerweile habe ich Probleme mit dem Button „bearbeiten„ wie auch mit den Likes…
ich finde das Bad sehr steril. Zu weiß, zu clean, wie der Arbeits-Ort eines Fleischers.
Muss es eine gerade Wanne sein?
Ich halte auch Vinyl nicht für den besten Belag in einem Bad, wo sich auch noch ein Kind austobt.
ich finde das Bad sehr steril. Zu weiß, zu clean, wie der Arbeits-Ort eines Fleischers.
Muss es eine gerade Wanne sein?
Ich halte auch Vinyl nicht für den besten Belag in einem Bad, wo sich auch noch ein Kind austobt.
ypg schrieb:
Sorry, aber mittlerweile habe ich Probleme mit dem Button „bearbeiten„ wie auch mit den Likes…
ich finde das Bad sehr steril. Zu weiß, zu clean, wie der Arbeits-Ort eines Fleischers.
Muss es eine gerade Wanne sein?
Ich halte auch Vinyl nicht für den besten Belag in einem Bad, wo sich auch noch ein Kind austobt.Der Badplaner ist nicht gerade der Hit. Fliesen sind nur die Standard Variante. Dafür wollte ich ja Inspirationen. Helle Fliesen, halbhoch. Wie soll man die Linie führen? Gerade beim WC?
Ähnliche Themen