H
Hausbaufaehig02.07.22 20:47Hallo zusammen,
ich würde mich freuen, wenn ihr einen Blick auf unsere Badplanung werfen könntet.
Hier die Hintergründe:
und sind somit für jeden Tipp dankbar!
Schon jetzt vielen Dank und schönen Abend,
Hausbaufaehig



ich würde mich freuen, wenn ihr einen Blick auf unsere Badplanung werfen könntet.
Hier die Hintergründe:
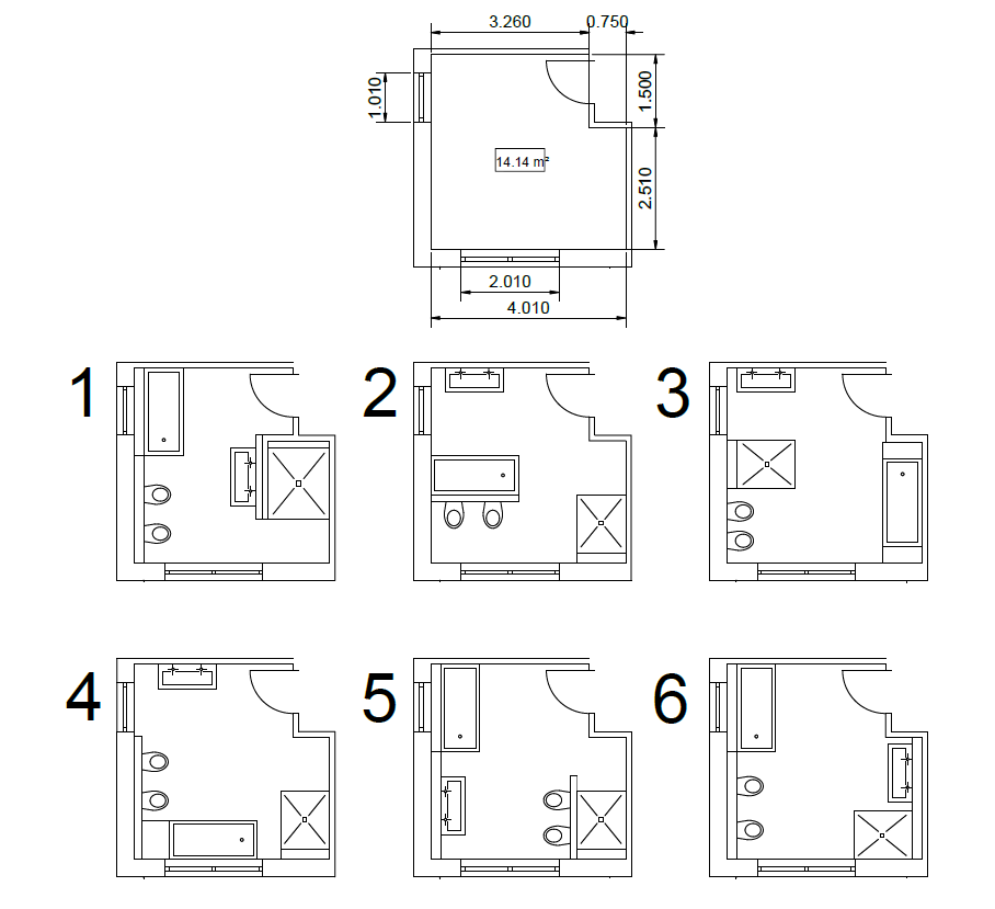
- 14,4m², OG (Vollgeschoss), Brüstungshöhe Fenster = 1m
- Entwürfe sind ziemlich genau nach Norden ausgerichtet, östlich vom Bad liegt hinter der Trockenbauwand gespiegelt das Schlafzimmer Wahrscheinlich wäre es sinnvoll, an dieser Wand nicht unbedingt das WC unterzubringen.
- Entwurf Nr. 1 entspricht der ursprünglichen Planung, ist aber aufgrund der L-Lösung nicht gewünscht (zu eng, zu wenig Licht)
- Entwurf Nr. 2 wurde uns vom Badplaner vorgeschlagen, im Anhang ist ein entsprechendes 3D-Rendering. Gefällt mir eigentlich ganz gut, die bessere Hälfte mag aber die kleine Zwischenwand sowie den Blick von der Toilette aufs Fenster nicht.
- Die weiteren Entwürfe sind meine (gescheiterten) Versuche alle Sanitärobjekte im Raum unterzubringen 🙁
- Gewünscht sind: Badewanne, Dusche (120x100cm, viel Glas, mit Tür), WC, Bidet, Waschbecken (120cm)
- Dunkle, uneinsichtige Ecken sind nicht so schön, deswegen fällt auch die T-Lösung raus
- Notfalls würden wir auch eine freistehende Badewanne, ggf. auch Eckbadewanne wählen, falls damit alles besser passt.
- Auch das Verschieben der Fenster um ein paar cm oder Anpassung der Brüstungshöhe im Westen wäre wahrscheinlich möglich
- Badewanne vor den Fenstern stelle ich mir nicht so praktisch vor, würde ich aber nicht ausschließen
- Fenster zeigen auf die Straße bzw. aufs Nachbargrundstück, die Aussicht spielt also keine große Rolle 😉
und sind somit für jeden Tipp dankbar!
Schon jetzt vielen Dank und schönen Abend,
Hausbaufaehig
H
Hausbaufaehig02.07.22 21:17Ich sehe gerade dass sich unbeabsichtigterweise Bild in den Anhang eingeschlichen hat (1656785625637.png),
dies hat nichts mit unserer Badplanung zu tun sondern wurde aus einem anderen Thread als Inspiration von mir heraus kopiert.
Irgendwie wurde der Link wohl in meinen Post eingefügt, in der Vorschau wurde leider nichts dergleichen angezeigt.
Also bitte einfach ignorieren!
dies hat nichts mit unserer Badplanung zu tun sondern wurde aus einem anderen Thread als Inspiration von mir heraus kopiert.
Irgendwie wurde der Link wohl in meinen Post eingefügt, in der Vorschau wurde leider nichts dergleichen angezeigt.
Also bitte einfach ignorieren!
M
Myrna_Loy02.07.22 21:32Ich würde statt Bidet ein Wasch WC nehmen, schon mal ein Ding weniger.
Am ehesten Nr 5 wenn Waschbecken und Wanne getauscht werden.
Am ehesten Nr 5 wenn Waschbecken und Wanne getauscht werden.
H
Hausbaufaehig02.07.22 22:39Myrna_Loy schrieb:
Ich würde statt Bidet ein Wasch WC nehmen, schon mal ein Ding weniger.Ja, das habe ich mir auch schon überlegt. Allerdings schreckt mich (neben dem Preis) die Wartung und ggf. anfällige Technik ab.Myrna_Loy schrieb:
Am ehesten Nr 5 wenn Waschbecken und Wanne getauscht werden.Du meinst wahrscheinlich so?Ja, das ist auf Anhieb besser. Schade dass wir keine offene Dusche wollen,
dann wären die lange Dusch-Zwischenwand zumindest nützlich. Ohne Bidet kann man natürlich die Wand
verkürzen, hatte aber gehofft dass man das noch irgendwie mit rein bekommt.
Den oberen Teil der Dusch-Zwischenwand könnte man in Glas ausführen, sähe bestimmt ok aus?
Danke vielmals und Viel Glück,
Hausbaufaehig
T
Tigerlily02.07.22 23:29Hausbaufaehig schrieb:
Ja, das habe ich mir auch schon überlegt. Allerdings schreckt mich (neben dem Preis) die Wartung und ggf. anfällige Technik ab.Welche Wartung? Anfällige Technik? Preis ist ggf. ein Argument, aber es ist viel komfortabler als ein Bidet!Ähnliche Themen