ᐅ Zwei Bäder: Wo sollen Fliesen hin?
Erstellt am: 02.01.22 11:41
P
Pinkiponk02.01.22 11:41Ich bitte Euch um Eure Meinung hinsichtlich Ästhetik und Praxistauglichkeit:
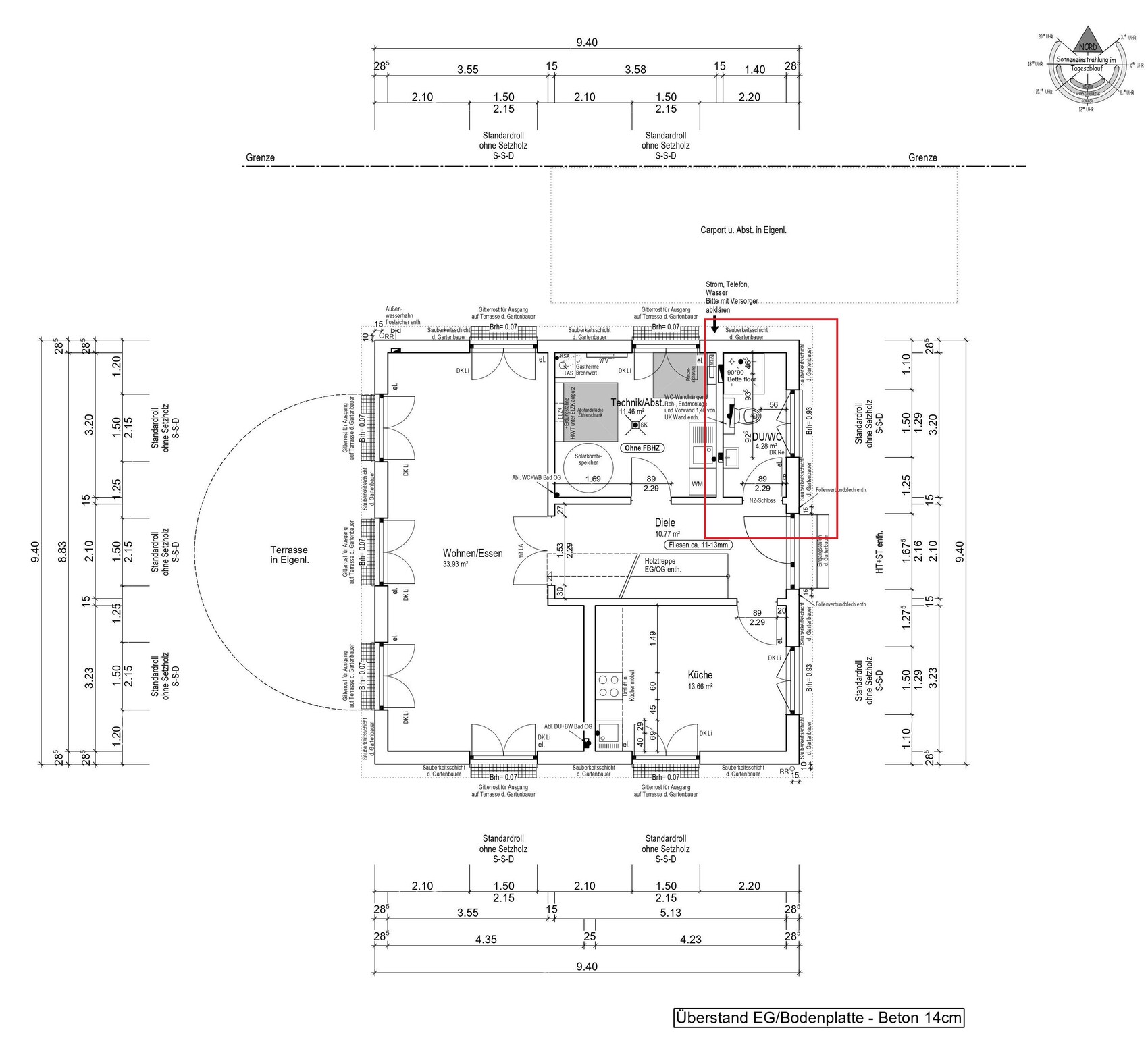
Ich möchte an den Wänden gerne so wenig Fliesen anbringen als möglich. Anbei unsere Badezimmer im EG und OG (rot markiert). Wo sollten Eurer Meinung nach unbedingt Fliesen angebracht werden bzw. welche Alternativen möchtet Ihr vorschlagen?
Euch allen und Euren Familien wünsche ich ein gutes Neues Jahr, mit vielen glücklichen Stunden, hier ;-) und außerhalb des Forums. Bitte lasst uns alle weiterhin so schön und hilfreich zusammenkommen.
--> Und wer mit Hampshire Kontakt hat, möchte ihn bitte mit allen zur Verfügung stehenden Mitteln zur Rückkehr bewegen. Er fehlt hier sehr.


Ich möchte an den Wänden gerne so wenig Fliesen anbringen als möglich. Anbei unsere Badezimmer im EG und OG (rot markiert). Wo sollten Eurer Meinung nach unbedingt Fliesen angebracht werden bzw. welche Alternativen möchtet Ihr vorschlagen?
Euch allen und Euren Familien wünsche ich ein gutes Neues Jahr, mit vielen glücklichen Stunden, hier ;-) und außerhalb des Forums. Bitte lasst uns alle weiterhin so schön und hilfreich zusammenkommen.
--> Und wer mit Hampshire Kontakt hat, möchte ihn bitte mit allen zur Verfügung stehenden Mitteln zur Rückkehr bewegen. Er fehlt hier sehr.
B
Benutzer20002.01.22 12:52Ohne auf die Pläne einzugehen: Fliesen max. am Boden und an spritzwassergefährdeten Bereichen (Dusche, hinter dem waschbecken). Ich mag es persönlich lieber "nur" schön verputzt und gestrichen (oder mit Bildern dekoriert usw.). Sind Waschbecken und WC an einer Wand nebeneinander, kann man aus optischen Gründen den gesamten Bereich fliesen.
Ich würde im Badezimmer nur im Dusch- und Waschbecken/Toilettenbereich fliesen. Eventuell noch die Wand neben dem Waschbecken.
Im Gäste-WC würde ich nur den Duschbereich fliesen. Besteht nicht die Möglichkeit Spülkasten in die Wand ( oder in Technikraum) zu installieren?
Wall@Deco Wet System ist für Naßbereiche geeignet. Wäre z.B eine moderne Alternative.
Wir haben nur Material angefragt. Je nach Tapete zahlt man für 1qm ab 160Euro. War uns dann doch zu teuer.
Alternativ könnte man eine Tapete mit Vinyloberfläche nehmen.
Haben wir im Gäste-WC im Waschbeckenbereich. Wenn die Wand nicht allzu oft naß wird, ist es denke ich kein Problem.
Funktioniert bei uns seit einem Jahr sehr gut.
Im Gäste-WC würde ich nur den Duschbereich fliesen. Besteht nicht die Möglichkeit Spülkasten in die Wand ( oder in Technikraum) zu installieren?
Wall@Deco Wet System ist für Naßbereiche geeignet. Wäre z.B eine moderne Alternative.
Wir haben nur Material angefragt. Je nach Tapete zahlt man für 1qm ab 160Euro. War uns dann doch zu teuer.
Alternativ könnte man eine Tapete mit Vinyloberfläche nehmen.
Haben wir im Gäste-WC im Waschbeckenbereich. Wenn die Wand nicht allzu oft naß wird, ist es denke ich kein Problem.
Funktioniert bei uns seit einem Jahr sehr gut.
Hinter Waschtisch und Toi mind. bis 120/140 Höhe als Spritzschutz. Dann auf gerader Linie ausführen, damit der Fliesen-Spiegel verbindet. Dusche… klar… Und alles weitere ist KANN, kann man also drauf verzichten und dient als Gestaltungselement.
Wie man das bei knappen 20qm im Bad OG macht, sollte man nach der richtigen Möblierung der Sanitär-Objekte besprechen. Da sehe ich noch großen Planungsbedarf, kann mich aber auch noch daran erinnern, dass das Bad an sich so, wie hier vorgestellt, schon in der Kritik stand. Ist denn in der Zwischenzeit da gar nichts passiert? 😱
Wie man das bei knappen 20qm im Bad OG macht, sollte man nach der richtigen Möblierung der Sanitär-Objekte besprechen. Da sehe ich noch großen Planungsbedarf, kann mich aber auch noch daran erinnern, dass das Bad an sich so, wie hier vorgestellt, schon in der Kritik stand. Ist denn in der Zwischenzeit da gar nichts passiert? 😱
P
Pinkiponk02.01.22 16:46ypg schrieb:
Hinter Waschtisch und Toi mind. bis 120/140 Höhe als Spritzschutz. Dann auf gerader Linie ausführen, damit der Fliesen-Spiegel verbindet. Dusche… klar… Und alles weitere ist KANN, kann man also drauf verzichten und dient als Gestaltungselement.
Wie man das bei knappen 20qm im Bad OG macht, sollte man nach der richtigen Möblierung der Sanitär-Objekte besprechen. Da sehe ich noch großen Planungsbedarf, kann mich aber auch noch daran erinnern, dass das Bad an sich so, wie hier vorgestellt, schon in der Kritik stand. Ist denn in der Zwischenzeit da gar nichts passiert? 😱Bei dem Bad im OG habe ich nicht so viel Mitspracherecht, das ist das Lieblingskind meines Mannes. Tatsächlich fehlt uns beiden das Vorstellungsvermögen und wir hoffen darauf, wenn wir erst einmal im Haus leben, gute Ideen zu haben.Der Hinweis auf die Höhe des Spritzschutz ist gut.
Wenn ich alle Rückmeldungen zusammenfasse, Fliesen hinter Waschtisch, Toi und im Duschbereich sind notwendig, der Rest möglich, aber kein Muss.
Ähnliche Themen