Badezimmer Planung - Ideen zur Sanierung

4,80 Stern(e) 5 Votes
Zuletzt aktualisiert 19.11.2025
Sie befinden sich auf der Seite 2 der Diskussion zum Thema: Badezimmer Planung - Ideen zur Sanierung
>> Zum 1. Beitrag <<

Y

Ysop***

nee, die Idee war so, aber ich sehe, die war nicht gut. Eine fette Badewanne PLUS Walkin Dusche, das wird echt eng bei dir.

Gibt es wieder die Förderung für altersgerechten Umbau? Bei uns war der Topf alle.

Grundriss eines kleinen Badezimmers: Badewanne links, Waschbecken in der Mitte, Toilette rechts.
 
kbt09

kbt09

Wenn altengerecht, dann sollte die Tür aber auch breiter als 76 cm werden. Und, ich sehe da auch eher keine Badewanne in dem Raum, da ich wg. Walk-In-Dusche auch an @Ysop*** Lösungsansatz denken würde.
 
M

Madame Gazelle

Guten Morgen,

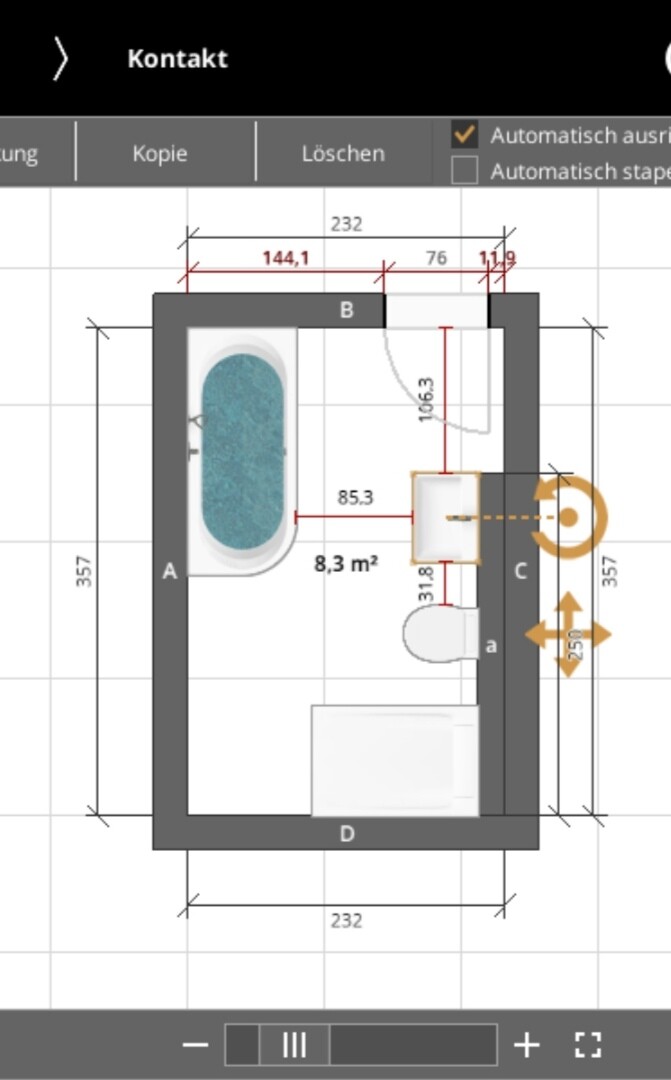
hier noch ein kleiner Nachtrag zu unseren Überlegungen:

- das Badezimmer wollen wir ja zusammen legen aus dem vorherigen Gäste-WC und dem bisherigen Badezimmer. Eine Möglichkeit wäre demnach natürlich noch, die Tür vom Gäste-WC zu nutzen (diese ist schmaler) und die andere zu zu machen.
- Bezüglich Förderung: Wir hoffen einfach mal, dass mit dem neuen Haushalt die Fördertöpfe wieder aufgefüllt werden können. Aber auch wenn dem nicht so ist, muss das Bad saniert werden. Zudem finden wir die Überlegung auch ohne Förderung sinnvoll, die Türen nach außen öffnen zu lassen.
- Bezüglich Fenster: Die Höhe und Tiefe der Oberlichtfenster könnten verändert werden.


2D-Badgrundriss mit WC und Bad in einem Grundrissplan

Unsere bisherigen Ideen sind diese:

3D-Badzimmer Grundriss mit Badewanne Dusche Waschbecken und Toilette

Top-ansicht eines 3D-Bad-Layouts mit Badewanne, Waschbecken und Toilette

Ich bin auf weitere Ideen oder Ratschläge gespannt!
Vielen Dank!

3D-Badgrundriss mit Dusche, Badewanne, Waschbecken und Toilette


Top-Down-Bad mit Dusche, Badewanne, Waschbecken und Toilette in moderner Gestaltung
 
PhiIipp

PhiIipp

Der grüne Entwurf gefällt mir ganz gut. Die Dusche kommt mir etwas klein vor. Die dürfte bei mir noch weiter in das Eck wachsen, in dem momentan der Handtuchhalter häng. Ich denke, dass du das gleiche Problem wie ich hast und mit den Vorlagen arbeiten musst, die das Programm hergibt.
Bedenke, dass du an den Außenwänden Vorwände (ca. 10 - 15 cm) für die Installation benötigst.
 
Zuletzt aktualisiert 19.11.2025
Im Forum Sanitär / Bad / WC gibt es 1375 Themen mit insgesamt 14403 Beiträgen


Ähnliche Themen zu Badezimmer Planung - Ideen zur Sanierung
Nr.ErgebnisBeiträge
1Walk-in Dusche / Eure Tipps und Ideen 18
2Beratung: Neues Badezimmer, 5,9qm mit Badewanne - Seite 648
3Lage Gäste-WC - Eingangsbereich? 28
4Gäste-WC Anordnung - Tipps? 19
5Gäste-WC (1,65qm) und Bad (4,88qm) Sanierung - Seite 221
6Planung Gäste-WC im Neubau - Wie groß muss es sein? (DIN?) - Seite 2107
7Lichtanschluss falsche Stelle Gäste-WC - Seite 529
8Brauche hilfe bei Badezimmerplanung 19
9Badezimmerplanung - Bitte um Feedback 15
10Grundrissplanung: Badezimmer Dusche 47
11Ablaufrinne Bodenebene Dusche mit Fußbodenheizung - Seite 544
12Badezimmer raumhoch oder halbhoch Fliesen? 32
13Badezimmer Planung / Feedback erwünscht !!! 17
14Mann plant Badezimmer, kann das gut gehen? 52
15Badezimmer Planung 1-Personen Haushalt im Neubau 26
16WC-Fenster Gäste-WC neben der Eingangstür - inzwischen nogo? - Seite 244
17Beispiel Kaltwasserhahn für Gäste-WC 12
18Rollladen im Gäste-WC ja oder nein? - Seite 335
19Entwürfe Gestaltung Fliesen Bad / Gäste-WC - Seite 319
20Planung Gäste-WC, brauche eure Tipps 17

Oben