Hausbau - Ratgeber
Bauherrenhilfe
- Bauherrenhilfe vor Vertragsabschluss
-- Warum einen unabhängigen Baubetreuer?
-- Vertragsgrundlagen
-- Bausumme
-- Zahlungsplan zur Kostenkontrolle
-- Pflichten des Bauherren vor Vertragsabschluss
-- Unterlagen beim Hausbau vor Vertragsabschluss
- Bauherrenhilfe nach Vertragsabschluss
-- Bauantrag bei Behörden
-- Bau-Genehmigungsverfahren bei Baubehörden
-- Bauspezifische Versicherungen
-- Bauzeitenplan
-- Baubeginn - die Letzten Pflichten der Bauherrschaft
- Bauherrenhilfe während der Bauzeit
- Gewährleistungsansprüche
- Bauabnahme
Baufinanzierung
- Baufinanzierung - Allgemeine Fragen
- Kreditarten
- Kredit-Konditionen
- Bausparen
- Staatliche Förderungen
- Verkehrswert
- Haushaltsrechnung und Bonität
Hausbau Planung
- Haustypen
- Hausbau Vorbereitungsarbeiten
- Das Baugrundstück
- Baugrund beim Hausbau
- Baurecht
- Gebäudeschutz
- Erdarbeiten und Wasserhaltung
- Stützmauern
- Einfriedung
- Untergeschoss
- Kanalisation
- Tragende Elemente
- Nichttragende Innenwände
- Fundation / Fundament
- Deckenkonstruktionen
- Dächer
- Kaminanlagen
- Treppen Rampen Leitern
- Dachbeläge und Spengler
- Fenster
- Sonnen und Wetterschutz
- Aussenputze
- Einbauten, Küchen, Türen
- Bodenbeläge und Unterlagsböden
- Parkett
- Gips, Wand, Decke
Haustechnik und Energie
- Heiztechnik
- Lüftung und Klimatechnik
- Sanitärtechnik
- Elektrotechnik
- Erneuerbare Energie
Whirlpools / Jacuzzi
Hausbau Magazin
- Baufinanzierung trotz Krise?
- Das Blockhaus
- Moderne Dämmstoffe im Vergleich
- Erker Vor- und Nachteile
- Glasflächen beim Hausbau
- Günstig ein Haus Bauen
- Mediterraner Hausbaustil
- Mehrgenerationenhaus
- Moderne Architektur
- Gartengestaltung leicht gemacht
- Traditioneller Ziegelbau
- Villa als höchster Traum
- Im Eigenheim Ruhestand geniessen
- Altbau sanieren
- Kauf einer Holzgarage
- Immobilienmakler
- Arbeitshandschuhe für den Winter
- Zuhause verschönern
- Outdoor-Plissees
- Schlafzimmer planen
- Terrassenüberdachung
- Wohngebäudeversicherung
- Zaunarten und Eigenschaften
- Hauseingang gestalten
- Der perfekte Grundriss
- Sparsamer heizen im Altbau
- Einfamilienhaus smart finanzieren
- Planung einer PV-Anlage
- Neues Haus
- Immobilienfinanzierung
- Installation einer Photovoltaikanlage
- Asbest erkennen und entfernen
- Gartenpflege im Frühling – worauf achten
- Sauna im Fokus - Wellness zuhause
- Erfolgreich vermieten
- Die perfekte Winterbekleidung
- Das Niedrigenergiehaus
- Der April und seine Stürme
- Architektonische Vielfalt
- Ökologisch und nachhaltig bauen
- Das perfekte Schlafzimmer
- Nachhaltige Energieversorgung
- Zukunftsorientiert bauen
- Nachhaltigkeit beim Hausbau
- Tiny Houses
- Wärmepumpen als nachhaltige Heizvariante
- Maßgeschneiderten Kleiderschrank
- Der richtige Baukredit
- Ratgeber für erfolgreichen Hausbau
- Haus als Altersvorsorge
Do-it-yourself Anleitungen
- Verlegeanleitung für Bodenbeläge und Parkett
- Bodenbeläge und Parkett reinigen und pflegen
- Malerarbeiten am Haus
- Garten Tipps
- Umzug und Reinigung

ᐅ auf welchen dieser Grundrisse können wir weiter aufbauen?

Erstellt am: 05.12.18 11:21
S
StanSch
S
StanSch
25.12.18 19:18
Guten Abend zusammen,

habe die anderen BT-Grundrisse noch einmal angesehen. Eine gerade Treppe ist dort 370-380 cm ... müsste man mal schauen, wie sich das dann alles verschiebt.

Wäre es eigentlich auch denkbar Kochen und Wohnen zu tauschen?
Haben uns diesen Grundriss noch einmal länger angesehen und fänden es schöner, wenn der Essbereich beim Wohnzimmer wäre. Die Küche würden wir eher untergeordnet sehen.
H
haydee
25.12.18 20:03
Kann man

Würde Küche zur Terrasse bringen
Das gibt kurze Wege und ein Ruhiges Wohnzimmer

Kaffee, Grillen, Kinder die Durst haben, später Pubertiere mit Freunden
Alles braucht die Küche
kaho67426.12.18 08:49
StanSch schrieb:

habe die anderen BT-Grundrisse noch einmal angesehen. Eine gerade Treppe ist dort 370-380 cm ... müsste man mal schauen, wie sich das dann alles verschiebt.
Die Länge der Treppe ist nicht von Gott oder BT vorgegegeben, sondern die bestimmst Du selbst. Sie hängt zuerst von Geschosshöhe und Auftritt ab. Da Eure Zimmer nicht so groß werden, sind 2,50m Deckenhöhe völlig ok, wie ich finde. Daraus folgen etwa 2,80m Geschosshöhe. Darüber könntet Ihr Euch ja langsam mal Gedanken machen, was Euch gefällt. Je höher, desto länger wird sie, wenn Du eine sinnvolle Auftrittstiefe haben willst. Bislang haben wir nur die Info, Deckenhöhe mind. 2,50m.
StanSch schrieb:

Wäre es eigentlich auch denkbar Kochen und Wohnen zu tauschen?
Haben uns diesen Grundriss noch einmal länger angesehen und fänden es schöner, wenn der Essbereich beim Wohnzimmer wäre. Die Küche würden wir eher untergeordnet sehen.
Ist Dein Haus. Wenn es Dir gefällt - klar.
Wir haben auch klassisch die Küche Separat und dann mit Tür zum Ess-/Wohnbereich. Das würde ich nicht mehr so bauen. Im nächsten Haus wird es ein großer Koch-/Essbereich und ein kleinerer "Salon" zum Chillen.
Wenn man Gäste hat und generell, ist der Trubel und das Leben zuerst in der Küche. Es ist schön, wenn dort viel Platz ist und alle zusammen sind. Man kann gemeinsam Kochen, basteln und die Kinder machen Ihre Hausaufgaben, während die Eltis das Abendbrot vorbereiten. Der etwas kleinere Wohnraum ist dann ein echter Rückzugsort, wo die Pubertiere nicht ständig mit ihren Freunden vorbei rennen, weil sie das Futter aus dem Kühlschrank körbeweise in ihr Zimmer tragen.
H
haydee
26.12.18 10:34
Wir haben einen großen Allraum

Der Wohnzimmerbereich wurde nur zum Weihnachtsbaum und Krippestellen genutzt. Die Kinder haben dort gespielt.

Ansonsten hat sich das wieder mal das Leben im Küchen und Essbereich angespielt.
Wir hatten schon mit dem Gedanken gespielt den Wohnbereich nach oben auszuquartieren bis Töchterchen sich mehr in ihrem Zimmer aufhält.
Y
ypg
26.12.18 11:19
Kontrollierte-Wohnraumlüftung...
StanSch schrieb:
Eine solche ist in der aktuellen Bauleistungsbeschreibung nicht vorgesehen.

Auch das entscheidet man selbst und nicht die Bauleistungsbeschreibung.
Ich hab es zwar schon 3 mal erwähnt, aber noch bildhaft:
Die Bauleistungsbeschreibung des Hauses ist wie die Grundausstattung des Autos.
Man sucht sich einen Neuwagen mit der Grundausstattung aus und nimmt ggf das Komfortpaket, die Winterreifen wie auch die Sonderlackierung. Ich persönlich fahre nie mehr ohne Sitzheizung. So wäre es dann auch mit der Kontrollierte-Wohnraumlüftung. Nie wieder ohne. Also wird es hinzugemustert.

Sag mal, liest Du eigentlich mal den ein oder anderen Parallelthread hier, wenn es um Hausbau geht... was Dich ja auch alles betreffen sollte?
S
StanSch
26.12.18 13:33
kaho674 schrieb:
Die Länge der Treppe ist nicht von Gott oder BT vorgegegeben, sondern die bestimmst Du selbst. Sie hängt zuerst von Geschosshöhe und Auftritt ab. Da Eure Zimmer nicht so groß werden, sind 2,50m Deckenhöhe völlig ok, wie ich finde. Daraus folgen etwa 2,80m Geschosshöhe. Darüber könntet Ihr Euch ja langsam mal Gedanken machen, was Euch gefällt.
Natürlich kann man da auch mitreden.
15 Stufen hören sich gut an, mehrfach in Musterhäusern gelaufen. Die Auftrittsbreite wird mit 25 cm vom Architekten empfohlen.
kaho674 schrieb:
Wenn man Gäste hat und generell, ist der Trubel und das Leben zuerst in der Küche.
Irgendwie leben wir in einer anderen Welt .
Bei uns Bekannten spielt sich alles im Wohn-/Essbereich ab.
haydee schrieb:
Töchterchen sich mehr in ihrem Zimmer aufhält.
Wie alt?
ypg schrieb:
Auch das entscheidet man selbst und nicht die Bauleistungsbeschreibung.
Schon klar.
Ich sagte doch nur, dass es in der Bauleistungsbeschreibung nicht enthalten ist, und demnach auch nicht im bisherigen Preis.
ypg schrieb:
Sag mal, liest Du eigentlich mal den ein oder anderen Parallelthread hier, wenn es um Hausbau geht... was Dich ja auch alles betreffen sollte?
Eher wenig ... gibt mir die Zeit .
Nen Tag hat nur 24 Stunden, in dieser möchte ein Vollzeitjob (+ Mehrarbeit) und eine Familie untergebracht sein.

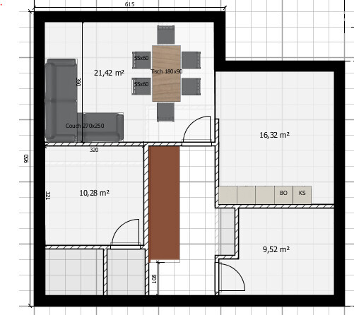
So, habe den Plan mal nachgezeichnet mit den Wänden des BT. Irgendwie haut das vorne und hinten nicht hin.

Grundriss einer Wohnung: Wohnzimmer mit Couch, Esstisch, Flur, weitere Zimmer.

Wohn-/Essbereich und Küche zusammen ca. 37 m². Egal ob man nun die Küche in den separaten Bereich oder großen Bereich packt, zusammen mit dem Esstisch wird es ganz schön eng .
kücheessbereichwohnzimmerbauleistungsbeschreibungtreppegeschosshöhedeckenhöhewohnbereichwohnraumlüftunggrundausstattung