So, wir sind bei Beitrag 55 und vieles dreht sich um die Vergangenheit in einem anderem Forum.
Die wenigstens Antworten gingen auf die eigentlichen Fragen ein. Bisher habe ich Feedback von @haydee, @kaho674, @montessalet und @ypg bekommen.
Leider hab ich die Grundrisse etwas unglücklich dargestellt. Alle 4 sprechen vom 1. Grundriss. Nur ist damit der des Architekten gemeint, also der Signus mit TV-Bereich hinter der Treppe, oder der selbst gezeichnete mit dem quadratischen Wohn-/Esszimmer? @kaho674 und @montessalet hab ich so verstanden, das sie den Signus besser finden.
Und das es eine gerade Treppe sein muss sage ich auch nicht.
OK, scheinbar ist eine 1/4 gewendelte Treppe im Austritt irgendwie immer noch eine gerade Treppe, aber sie ist kein Muss. Im letzten Entwurf des Architekten ist dieser mit einer Stufe in den Austritt gegangen. Hierdurch wird die Treppe ca. 25-30 cm kürzer, aber halt auch breiter.
Wenn man aber nicht sachlich zum Thema beitragen möchte, dann muss man diesen Thread doch nicht mit Dingen vollmüllen. Der Thread im anderen Forum ist Vergangenheit, hier spielt die Gegenwart und vielleicht auch die Zukunft.
Den Bodenrichtwert kann man auch nur bedingt als Grundlage nehmen ... dort wurde seit sehr vielen Jahren nichts mehr neu gebaut.
Im Preis sind letztendlich ja auch noch Dinge wie die Anliegerstraße und Erschließung. Des Weiteren sind im Preis schon elektr. Rollos, gewisse Fliesenarbeiten und die Pflasterungen der Terrasse, Zufahrt und des Eingangs enthalten.
Die wenigstens Antworten gingen auf die eigentlichen Fragen ein. Bisher habe ich Feedback von @haydee, @kaho674, @montessalet und @ypg bekommen.
Leider hab ich die Grundrisse etwas unglücklich dargestellt. Alle 4 sprechen vom 1. Grundriss. Nur ist damit der des Architekten gemeint, also der Signus mit TV-Bereich hinter der Treppe, oder der selbst gezeichnete mit dem quadratischen Wohn-/Esszimmer? @kaho674 und @montessalet hab ich so verstanden, das sie den Signus besser finden.
kaho674 schrieb:Die Garage ist kein Muss, aber wir brauchen eine Möglichkeit um Gartenutensilien und Fahrräder usw. unterzustellen und vor allem an die Fahrräder so dran zu kommen, dass man diese nicht durch den ganzen Garten schieben muss .
Bei jeder. Oder wolltest Du in irgend einer Variante keine Garage bauen?
ypg schrieb:
Nur ist es so, dass am TE jegliches Argument abprallt. Dann ist es halt so. Nach knapp 200 Beiträgen und vielen Alternativen wollte der TE immer noch auf 8,5 Meter Tiefe seine gerade Treppe verbauen.
ypg schrieb:
Aber nicht auf 8,5 Meter Haustiefe möglich, ohne gravierende Abstriche zu tätigen!
kaho674 schrieb:Wir sprechen hier aber über einen 9 m tiefen Grundriss!
noch dass er auf eine gerade Treppe besteht.
Und das es eine gerade Treppe sein muss sage ich auch nicht.
OK, scheinbar ist eine 1/4 gewendelte Treppe im Austritt irgendwie immer noch eine gerade Treppe, aber sie ist kein Muss. Im letzten Entwurf des Architekten ist dieser mit einer Stufe in den Austritt gegangen. Hierdurch wird die Treppe ca. 25-30 cm kürzer, aber halt auch breiter.
ypg schrieb:Darum geht es doch gar nicht.
Ich kann Dir noch ein drittes Forum nennen, vielleicht reden die Dir in den Mund.
Wenn man aber nicht sachlich zum Thema beitragen möchte, dann muss man diesen Thread doch nicht mit Dingen vollmüllen. Der Thread im anderen Forum ist Vergangenheit, hier spielt die Gegenwart und vielleicht auch die Zukunft.
montessalet schrieb:
Hingegen sind das Aufzeigen von Vor- und Nachteilen sowie Alternativen bei Dingen, die nicht "fix" sind sinnvoll und sehr hilfreich. Wäre doch sinnvoll, sich auf diesen konstruktiven Weg zu begeben bei den Kommentaren.
montessalet schrieb:
Meinungen abholen ist in der Regel ein Zeichen, dass sich die TE selbst hinterfragen, sich mit anderen Meinungen und Optionen aktiv auseinandersetzen. Das muss aber nicht zwingend heissen, dass man die eigene Meinung verlassen und sich einem Diktat der Opponenten unterwerfen muss. Selber denken finde ich immer noch sinnvoll. Selber entscheiden auch.
montessalet schrieb:Genau darum soll es hier doch gehen *Daumen hoch*.
Ich finde übrigens sowohl deine wie auch kahos Äusserungen hilfreich und durchdacht: Ihr setzt euch mit den Fragen aktiv auseinander und bringt eigene Meinungen, Erfahrungen und Optionen ein - genau das braucht es hier und den TE hilft, vielleicht bessere Lösungen zu finden.
kaho674 schrieb:Wie viel das Grundstück wert ist, ist schwierig zu sagen.
Inklusive Grundstück lässt sich das schwer beurteilen.
Den Bodenrichtwert kann man auch nur bedingt als Grundlage nehmen ... dort wurde seit sehr vielen Jahren nichts mehr neu gebaut.
Im Preis sind letztendlich ja auch noch Dinge wie die Anliegerstraße und Erschließung. Des Weiteren sind im Preis schon elektr. Rollos, gewisse Fliesenarbeiten und die Pflasterungen der Terrasse, Zufahrt und des Eingangs enthalten.
kaho674 schrieb:Kann dir leider wieder nicht folgen ... Männer und Frauen denken unterschiedlich .
Das sagte auch keiner. Wie kommst Du auf den Unfug?
StanSch schrieb:
Kann dir leider wieder nicht folgen ... Männer und Frauen denken unterschiedlich .Was gibt's da nicht zu verstehen? Ist doch keine Gehirnchirurgie. Die Terrasse kommt so oder so in den Süden. Niemals...StanSch schrieb:
zwischen unserer Hauswand und der Garage des Nachbarn .kaho674 schrieb:
Die Terrasse kommt so oder so in den Süden. Niemals...Bei der Idee von @ypg würde es in etwa so aussehen.Und dann ist doch ein Teil der Eck-Terrasse zwischen Garage von Haus 9 und dem eigenen Haus. Und die Garage von Haus 10 könnte in der Theorie noch weiter geschoben werden. Zudem ist die Ecke auch nicht sehr tief, wenn dort noch ein Carport oder Garage davor kommen soll. Das EG-Fenster auf der West-Seite müsste dann doch im Bereich der West-Terrasse sein. Ein Fenster unter einem Carport bringt doch nur bedingt etwas, oder?
Bei einem 10x9 m Haus wäre die Grünfläche hinter der Terrasse tiefer als bei einem 8x11,25 m Haus. Das Grundstück ist halt leider mit ca. 23,8 m nicht sonderlich tief.
kaho674 schrieb:
Dieses Angebot für 450 Riesen - für wie viel Grundflächen-qm ist das gedacht? Genau die 9x10? Man könnte also z.B. auch 11,25 x 8 machen?So hab ich es immer verstanden. Der Preis bezog sich auf die Grundfläche.Dieses ganze Terrassengefasel halte ich für gequirlte Schifferscheiße. Wo Du Deine Terrasse hin machen willst, kannst Du doch entscheiden, wie Du lustig bist. Niemand zwingt Dich, eine Eckterrasse zu machen. Und der 1m mehr im Garten bringt Dir dort sehr wenig. Im Haus ist der Gewinn aber möglicherweise riesig.
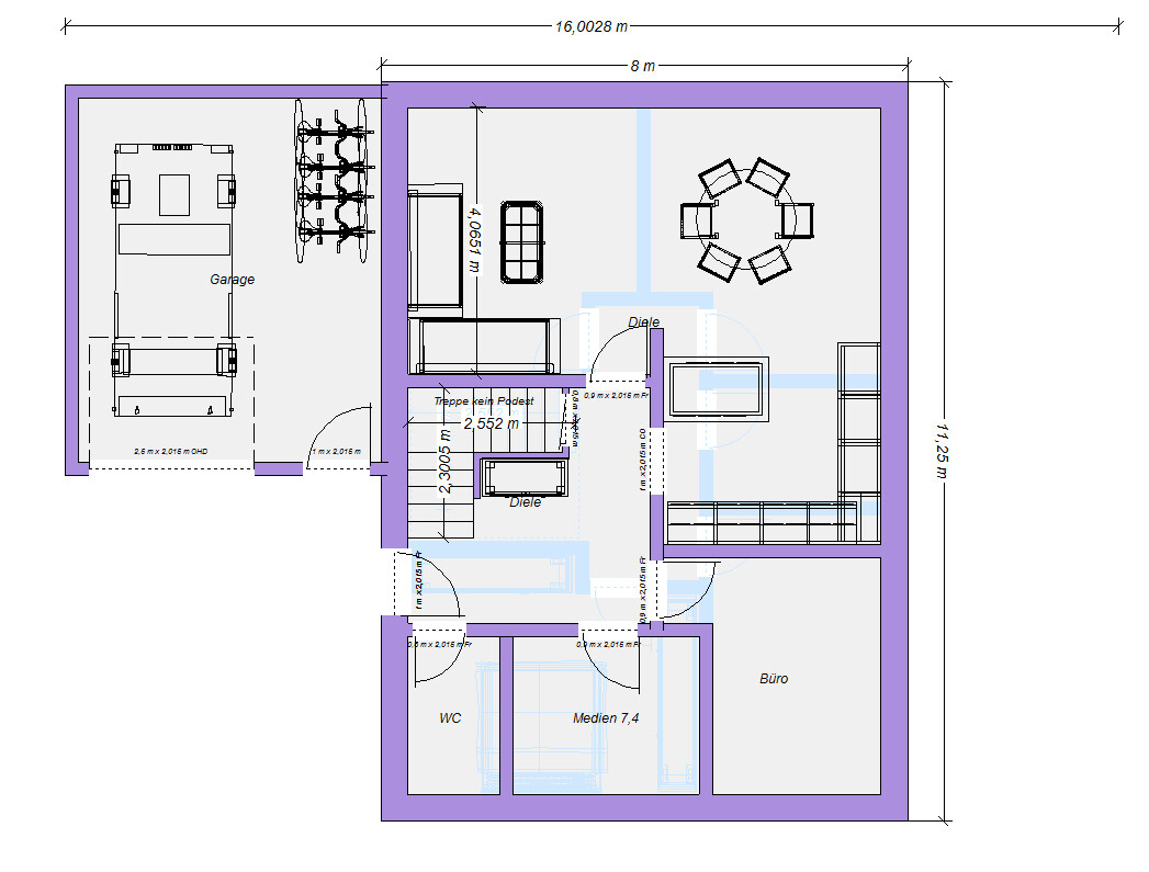
Hier mal ein Beispiel mit der 8m Breite und 5m Garage. Da passen die Fahrräder und weiterer Schlamm sehr gut mit rein. Das Haus kann die Westsonne rein lassen und die Terrasse kommt natürlich in den Süden.
Fenster spar ich mir mal für die Skizze.

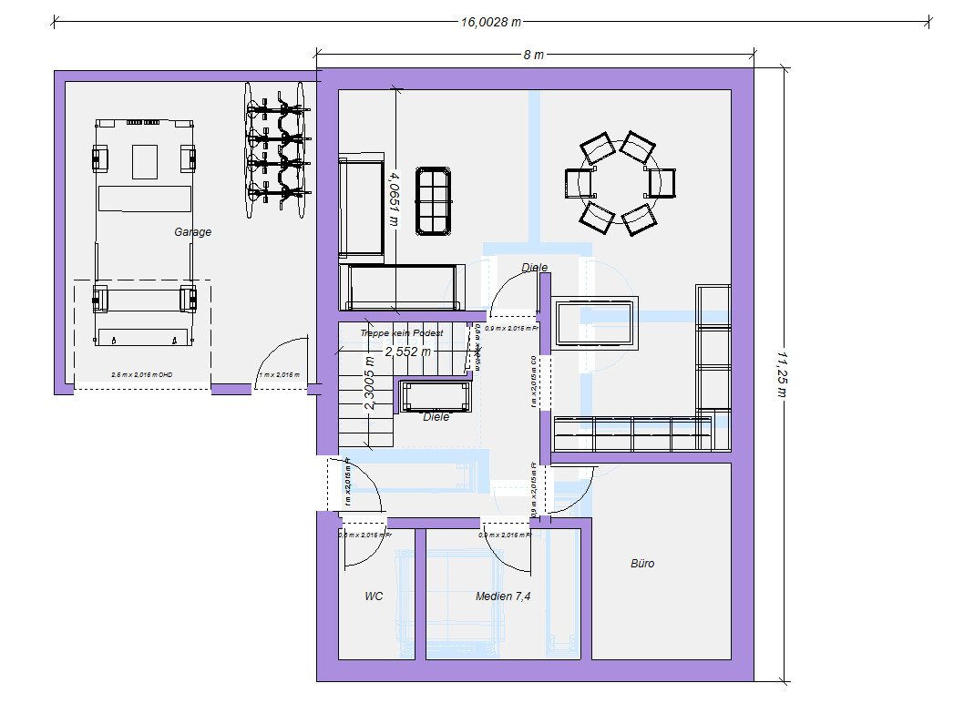
Hier mal ein Beispiel mit der 8m Breite und 5m Garage. Da passen die Fahrräder und weiterer Schlamm sehr gut mit rein. Das Haus kann die Westsonne rein lassen und die Terrasse kommt natürlich in den Süden.
Fenster spar ich mir mal für die Skizze.
Ähnliche Themen