So, der Architekt kannte den Etos und hatte den wohl fast fertig in der Schublade .


Auf den 1. Blick sieht es so aus, als wenn alle Anforderungen umgesetzt wurden.
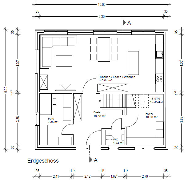
Das Wohnzimmer könnte vielleicht noch was tiefer sein, vielleicht kann man noch etwas nach planunten schieben und auf die Tagesgaderobe vor der Treppe verzichten und die Treppe offener gestalten. Den Bereich unter der Treppe könnte man noch überlegen als Speisekammer von der Küche aus zu nutzen. Ansonsten sehe ich im Moment nichts negatives.
Auf den 1. Blick sieht es so aus, als wenn alle Anforderungen umgesetzt wurden.
Das Wohnzimmer könnte vielleicht noch was tiefer sein, vielleicht kann man noch etwas nach planunten schieben und auf die Tagesgaderobe vor der Treppe verzichten und die Treppe offener gestalten. Den Bereich unter der Treppe könnte man noch überlegen als Speisekammer von der Küche aus zu nutzen. Ansonsten sehe ich im Moment nichts negatives.
haydee schrieb:
Wo ist der TerrassenzugangVon der Küche aus oder von der Mitte.Fenster sind ja als Beispiele zu sehen .
kbt09 schrieb:
etzt ist weder die Küche abgetrennt noch der Wohnbereich ... sollte nicht eines von beiden abtrennbar sein?Wir sind da flexibel Über Eck hat was, das hat aber auch was. Wobei sich die Frage stellt ob die Tiefe von 430 cm ausreicht?
Kleine Zwischenfrage meinerseits.
Ich befinde mich auch noch in der Planungsphase. Bei deinem letzten Entwurf #278 ist mir aufgefallen das keine einzige Wand des OG auf einer des EG liegt. Selbst Fenster sind unter den OG Wänden geplant.
Ich habe bisher immer versucht Fenster und Wände im EG und OG anzugleichen und mich dadurch eher eingeschränkt. Spielt die Statik im Einfamilienhaus Bau also eher eine untergeordnete Rolle sodass man als Laie in der Grundrisserstellung außer Deckenspannweiten statisch nichts großartig beachten muss ? .
Ich befinde mich auch noch in der Planungsphase. Bei deinem letzten Entwurf #278 ist mir aufgefallen das keine einzige Wand des OG auf einer des EG liegt. Selbst Fenster sind unter den OG Wänden geplant.
Ich habe bisher immer versucht Fenster und Wände im EG und OG anzugleichen und mich dadurch eher eingeschränkt. Spielt die Statik im Einfamilienhaus Bau also eher eine untergeordnete Rolle sodass man als Laie in der Grundrisserstellung außer Deckenspannweiten statisch nichts großartig beachten muss ? .
Ähnliche Themen