Schönen guten Tag allerseits,
wir befinden uns momentan in der Findungsphase für den anstehenden Hausbau. Grundstück ist vorhanden und der finale Plan wird auch von einem professionellen Bauplaner erstellt. Dennoch haben wir einige Ideen, die man vorher schonmal filtern kann, insbesondere in Hinblick auf Sinnhaftigkeit und Machbarkeit. Bringt ja nichts, wenn man sich schon vorher auf Konzepte einschießt, die dann so gar nicht praktikabel sind und man wieder bei null anfängt.
Bebauungsplan/Einschränkungen
Größe des Grundstücks: ~1250 m²
Hang: nein
Grundflächenzahl: Kein Bebauungsplan
Geschossflächenzahl: s.o.
Baufenster, Baulinie und -grenze: s.o.
Randbebauung: gem BayBO Art.6
Anzahl Stellplatz: 2 Garage/2 davor
Geschossigkeit: 2 Vollgeschosse
Dachform: Walmdach ~35° auf Haupthaus, Walmdach auf Garage, Flachdach auf Verbindungsbau
Stilrichtung: Traditionell
Ausrichtung: Westen
Maximale Höhen/Begrenzungen: Keine
weitere Vorgaben: Holzstrommast auf Grundstück
Anforderungen der Bauherren
Stilrichtung, Dachform, Gebäudetyp: Klassischer, schwäbischer Stil (Fensterläden, Gesims am Dach, ...)
Keller, Geschosse: Nein, 2 + ausbaubarer Dachboden
Anzahl der Personen, Alter: 2, Mitte/Ende 20, 2 Kinder geplant
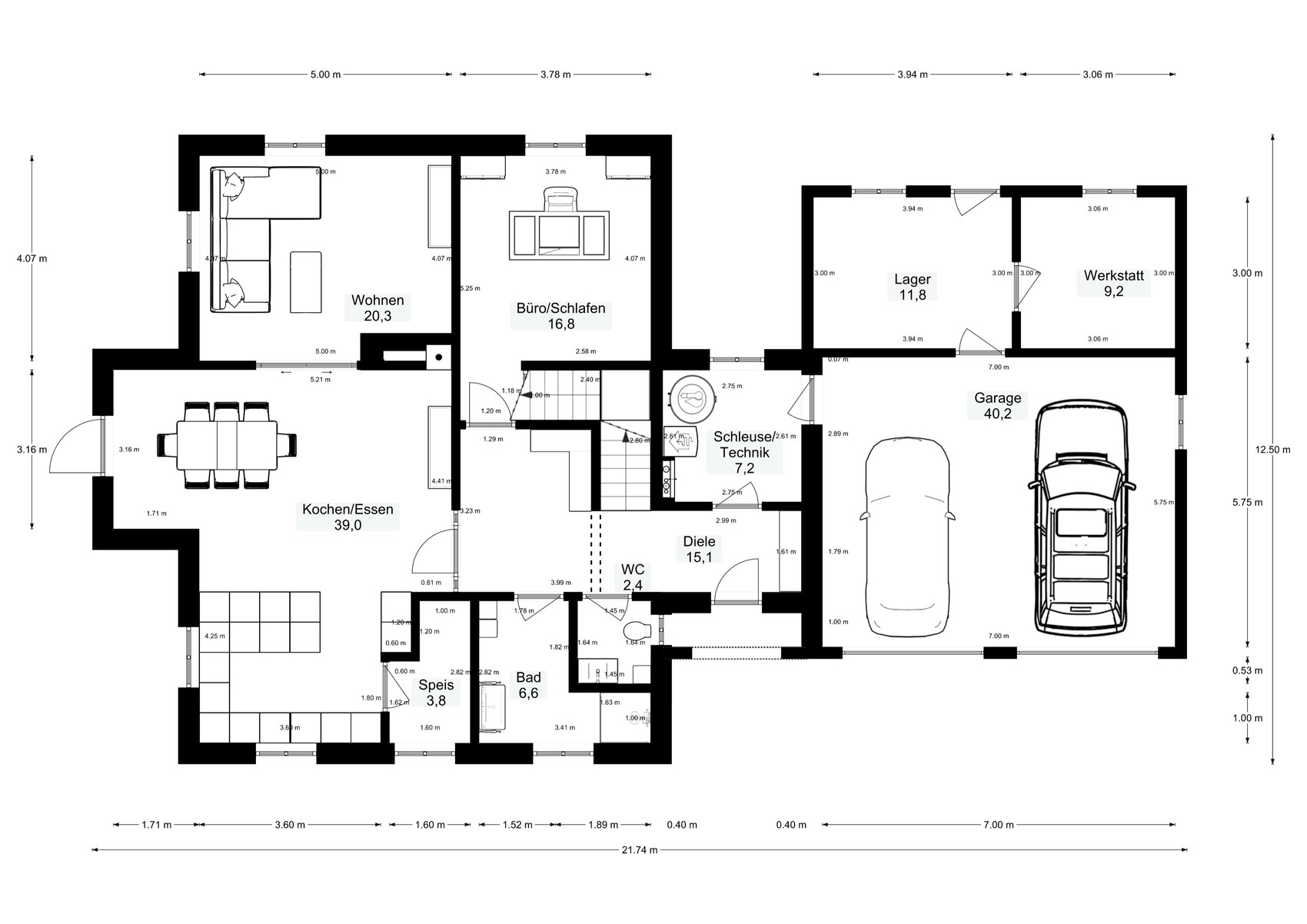
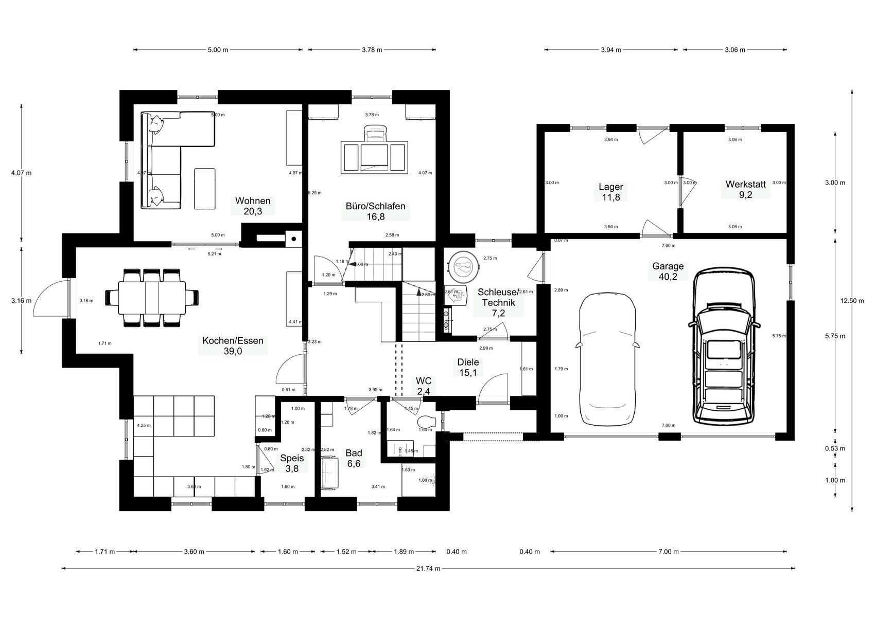
Raumbedarf im EG, OG: ~ je 90 qm
Büro: Familiennutzung oder Homeoffice: Home Office, später ggfs. Schlafzimmer
Schlafgäste pro Jahr: Keine
offene oder geschlossene Architektur: Mischform
konservativ oder moderne Bauweise: eher konservativ
offene Küche, Kochinsel: Offene Küche, evtl. Insel
Anzahl Essplätze: mind 8.
Kamin: Tunnelkamin in Wand zw. Wohnen und Essen
Musik/Stereowand:
Balkon, Dachterrasse: Nein
Garage, Carport: Garage, Zuwegung von Süden
Nutzgarten, Treibhaus
weitere Wünsche/Besonderheiten/Tagesablauf, gern auch Begründungen, warum dieses oder das nicht sein soll
Vollwertige Treppe in den Dachboden (Ausbau geplant),
(Fledermaus-)Gaube im Dachboden,
Abtrennbarkeit Wohnen durch große Schiebetür (Auf Grund der Größe wsl. Aufputz),
kein Kinderbad im OG, dafür Gästebad im EG mit separatem WC,
kein "Elterntrakt" im OG, Ankleide soll vor Schlafzimmer liegen,
spätere Trennbarkeit in 2 separate Wohneinheiten (Strichlinie: Wand einziehen und Umbau Bad),
Symmetrie der Außenansicht (außer Ost-/Planrechte Seite), Außenansicht mit Erker mehr oder weniger gesetzt,
wenn möglich jetzt schon Barrierefreiheit im EG (kann ja immer was passieren ...),
kein Solar, Photovoltaik
Hausentwurf
Von wem stammt die Planung:
-Do-it-Yourself, Mitlesen im Forum, Hausbaumagazine
Was gefällt besonders? Warum? Allgemeine Anforderungen werden erfüllt, der Bereich vor dem Büro/der Treppe kann als großzügige Garderobe verwendet werden, der Wohn/Essbereich ist ebenfalls großzügig geraten und hat mit dem Tunnelkamin einen Blickfang von allen Seiten.
Was gefällt nicht? Warum? Siehe grundlegende Frage
Preisschätzung lt Architekt/Planer: /
Persönliches Preislimit fürs Haus, inkl Ausstattung: 575k mit Eigenleistung (ohne Grundstück/ohne Außenanlagen)
favorisierte Heiztechnik: Fernwärme, Leerrohre für ggf. Luftwärmepumpe oder Erdwärmepumpe sollen trotzdem gelegt werden
Wenn Ihr verzichten müsst, auf welche Details/Ausbauten
-könnt Ihr verzichten: Abstellen im OG, Größe Koch/Essbereich (sofern noch mind. 8 Personen ganzjährig, im Ausnahmefall aber noch 12-14 Personen Platz finden)
-könnt Ihr nicht verzichten: Kamin, Trennbarkeit der Wohneinheiten, Treppe ins Dachgeschoss, Außenansicht (sicher lässt die aber noch Spielraum zu)
Was ist die wichtigste/grundlegende Frage zum Grundriss?
Es heißt ja immer Groß bauen kann jeder. Die groben Außenmaße (ob jetzt 12,5 x 9,8, 12,0 x 10,0 oder 11,5 x 9,5) ist nebensächlich) sind aber mehr oder weniger gesetzt, auch die Außenansicht (passt unserer Meinung nach am besten aufs Grundstück). Das erschwert die Raumplanung bei so einer Fläche dennoch etwas. Das sind aber Kompromisse, die wir eingehen möchten. Im Ess/Kochbereich wird mMn noch Platz verschwendet vor der Küchenzeile, auch das Bad oben ist flächenmäßig sehr groß, sieht aber nicht groß aus. Ebenso ist die Speisekammer im Süden und auch das Gästebad mit Dusche zeigt zur (wenn auch nur von 3 Anliegern genutzten) Straße. Es muss zwar nicht auf jeden Centimeter optimiert werden, dafür haben wir innen und außen genügend Platz. Aber es wäre schade, wenn das Haus ein riesen Bunker wird, dessen Großzügigkeit im Innenraum durch Planungsfehler aber verloren geht.
Der angehängte Plan hat nur eine Terrassentür. Eigentlich wird eine Küche in U-Form favorisiert. Aber denkbar wäre auch eine Insel, damit alle Fenster auf der Westseite zu Türen gemacht werden können.
Eine Idee ist es noch, den Erker rauszuwerfen und dafür auf der Westseite unten wie oben 4 Fenster einzusetzen. Die Pläne sind (fast) eingenordet. Die Frage, ob die Garage mit einem Eck direkt auf die Planrechte Grenze kommt oder 3m Abstand für ein Carport o.ä. gelassen wird, steht auch noch im Raum. Die Bädereinrichtung kann im besten Fall als "Work in Progress" gesehen werden. Der Rest der Möblierung kann als "so geplant" angenommen werden. Außenwände 42,5, Innenwände 17,5, Garagenaußenwand 24,0.
Ich würde mich über das Aufzeigen grober Schnitzer und ggf. Verbesserungsvorschläge sehr freuen.



wir befinden uns momentan in der Findungsphase für den anstehenden Hausbau. Grundstück ist vorhanden und der finale Plan wird auch von einem professionellen Bauplaner erstellt. Dennoch haben wir einige Ideen, die man vorher schonmal filtern kann, insbesondere in Hinblick auf Sinnhaftigkeit und Machbarkeit. Bringt ja nichts, wenn man sich schon vorher auf Konzepte einschießt, die dann so gar nicht praktikabel sind und man wieder bei null anfängt.
Bebauungsplan/Einschränkungen
Größe des Grundstücks: ~1250 m²
Hang: nein
Grundflächenzahl: Kein Bebauungsplan
Geschossflächenzahl: s.o.
Baufenster, Baulinie und -grenze: s.o.
Randbebauung: gem BayBO Art.6
Anzahl Stellplatz: 2 Garage/2 davor
Geschossigkeit: 2 Vollgeschosse
Dachform: Walmdach ~35° auf Haupthaus, Walmdach auf Garage, Flachdach auf Verbindungsbau
Stilrichtung: Traditionell
Ausrichtung: Westen
Maximale Höhen/Begrenzungen: Keine
weitere Vorgaben: Holzstrommast auf Grundstück
Anforderungen der Bauherren
Stilrichtung, Dachform, Gebäudetyp: Klassischer, schwäbischer Stil (Fensterläden, Gesims am Dach, ...)
Keller, Geschosse: Nein, 2 + ausbaubarer Dachboden
Anzahl der Personen, Alter: 2, Mitte/Ende 20, 2 Kinder geplant
Raumbedarf im EG, OG: ~ je 90 qm
Büro: Familiennutzung oder Homeoffice: Home Office, später ggfs. Schlafzimmer
Schlafgäste pro Jahr: Keine
offene oder geschlossene Architektur: Mischform
konservativ oder moderne Bauweise: eher konservativ
offene Küche, Kochinsel: Offene Küche, evtl. Insel
Anzahl Essplätze: mind 8.
Kamin: Tunnelkamin in Wand zw. Wohnen und Essen
Musik/Stereowand:
Balkon, Dachterrasse: Nein
Garage, Carport: Garage, Zuwegung von Süden
Nutzgarten, Treibhaus
weitere Wünsche/Besonderheiten/Tagesablauf, gern auch Begründungen, warum dieses oder das nicht sein soll
Vollwertige Treppe in den Dachboden (Ausbau geplant),
(Fledermaus-)Gaube im Dachboden,
Abtrennbarkeit Wohnen durch große Schiebetür (Auf Grund der Größe wsl. Aufputz),
kein Kinderbad im OG, dafür Gästebad im EG mit separatem WC,
kein "Elterntrakt" im OG, Ankleide soll vor Schlafzimmer liegen,
spätere Trennbarkeit in 2 separate Wohneinheiten (Strichlinie: Wand einziehen und Umbau Bad),
Symmetrie der Außenansicht (außer Ost-/Planrechte Seite), Außenansicht mit Erker mehr oder weniger gesetzt,
wenn möglich jetzt schon Barrierefreiheit im EG (kann ja immer was passieren ...),
kein Solar, Photovoltaik
Hausentwurf
Von wem stammt die Planung:
-Do-it-Yourself, Mitlesen im Forum, Hausbaumagazine
Was gefällt besonders? Warum? Allgemeine Anforderungen werden erfüllt, der Bereich vor dem Büro/der Treppe kann als großzügige Garderobe verwendet werden, der Wohn/Essbereich ist ebenfalls großzügig geraten und hat mit dem Tunnelkamin einen Blickfang von allen Seiten.
Was gefällt nicht? Warum? Siehe grundlegende Frage
Preisschätzung lt Architekt/Planer: /
Persönliches Preislimit fürs Haus, inkl Ausstattung: 575k mit Eigenleistung (ohne Grundstück/ohne Außenanlagen)
favorisierte Heiztechnik: Fernwärme, Leerrohre für ggf. Luftwärmepumpe oder Erdwärmepumpe sollen trotzdem gelegt werden
Wenn Ihr verzichten müsst, auf welche Details/Ausbauten
-könnt Ihr verzichten: Abstellen im OG, Größe Koch/Essbereich (sofern noch mind. 8 Personen ganzjährig, im Ausnahmefall aber noch 12-14 Personen Platz finden)
-könnt Ihr nicht verzichten: Kamin, Trennbarkeit der Wohneinheiten, Treppe ins Dachgeschoss, Außenansicht (sicher lässt die aber noch Spielraum zu)
Was ist die wichtigste/grundlegende Frage zum Grundriss?
Es heißt ja immer Groß bauen kann jeder. Die groben Außenmaße (ob jetzt 12,5 x 9,8, 12,0 x 10,0 oder 11,5 x 9,5) ist nebensächlich) sind aber mehr oder weniger gesetzt, auch die Außenansicht (passt unserer Meinung nach am besten aufs Grundstück). Das erschwert die Raumplanung bei so einer Fläche dennoch etwas. Das sind aber Kompromisse, die wir eingehen möchten. Im Ess/Kochbereich wird mMn noch Platz verschwendet vor der Küchenzeile, auch das Bad oben ist flächenmäßig sehr groß, sieht aber nicht groß aus. Ebenso ist die Speisekammer im Süden und auch das Gästebad mit Dusche zeigt zur (wenn auch nur von 3 Anliegern genutzten) Straße. Es muss zwar nicht auf jeden Centimeter optimiert werden, dafür haben wir innen und außen genügend Platz. Aber es wäre schade, wenn das Haus ein riesen Bunker wird, dessen Großzügigkeit im Innenraum durch Planungsfehler aber verloren geht.
Der angehängte Plan hat nur eine Terrassentür. Eigentlich wird eine Küche in U-Form favorisiert. Aber denkbar wäre auch eine Insel, damit alle Fenster auf der Westseite zu Türen gemacht werden können.
Eine Idee ist es noch, den Erker rauszuwerfen und dafür auf der Westseite unten wie oben 4 Fenster einzusetzen. Die Pläne sind (fast) eingenordet. Die Frage, ob die Garage mit einem Eck direkt auf die Planrechte Grenze kommt oder 3m Abstand für ein Carport o.ä. gelassen wird, steht auch noch im Raum. Die Bädereinrichtung kann im besten Fall als "Work in Progress" gesehen werden. Der Rest der Möblierung kann als "so geplant" angenommen werden. Außenwände 42,5, Innenwände 17,5, Garagenaußenwand 24,0.
Ich würde mich über das Aufzeigen grober Schnitzer und ggf. Verbesserungsvorschläge sehr freuen.
H
hampshire29.11.20 13:54Gut, dass Ihr klare Vorstellungen habt. Symmetrievorstellung teile ich nicht, das kann Euch aber herzlich egal séin und soll es gerne auch.
Technikraum / Schleuse wird sich als sehr klein bemessen erweisen.
Raum für Büroschlaf finde ich eine gute Idee. :p
Bei der Anordnung kann das Wohnzimmer auch in den Norden. Alle Blicke weg vom Fenster und zum TV.
Mit der Größe und Form ist der Nutzen der Speis fraglich.
Es passt für mich nicht gut zusammen im Esszimmer und Fluren mit Platz verschwenderisch grosszügig umzugehen und andere Bereiche unter eine passable Nutzbarkeitsgrenze zu schrumpfen.
Technikraum / Schleuse wird sich als sehr klein bemessen erweisen.
Raum für Büroschlaf finde ich eine gute Idee. :p
Bei der Anordnung kann das Wohnzimmer auch in den Norden. Alle Blicke weg vom Fenster und zum TV.
Mit der Größe und Form ist der Nutzen der Speis fraglich.
Es passt für mich nicht gut zusammen im Esszimmer und Fluren mit Platz verschwenderisch grosszügig umzugehen und andere Bereiche unter eine passable Nutzbarkeitsgrenze zu schrumpfen.
Was mir als erstes auffällt:
Die Ankleide kann genau wieviel Schrankmeter aufnehmen? (Der eingezeichnete Schrank hat keine Kleiderschranktiefe)
Die Treppe müsste bei Weitem zu kompakt sein, als dass sie funktioniert 😉
Die Fenster auf der planlinken Seite bieten keine Ausblicke und keine ausreichende Belichtung in den Innenraum.
Die Diele zum Flur, Die Schleuse zur Diele, Die Toi zum Bad, das Bad zum Waschen... ich lass das einfach mal unkommentiert, also ohne Bewertung dieser Abhängigkeiten von Räumen.
Die Ankleide kann genau wieviel Schrankmeter aufnehmen? (Der eingezeichnete Schrank hat keine Kleiderschranktiefe)
Die Treppe müsste bei Weitem zu kompakt sein, als dass sie funktioniert 😉
Die Fenster auf der planlinken Seite bieten keine Ausblicke und keine ausreichende Belichtung in den Innenraum.
Die Diele zum Flur, Die Schleuse zur Diele, Die Toi zum Bad, das Bad zum Waschen... ich lass das einfach mal unkommentiert, also ohne Bewertung dieser Abhängigkeiten von Räumen.
AnRi311 schrieb:find ich gut. die Idee.
Vollwertige Treppe in den Dachboden (Ausbau geplant),
AnRi311 schrieb:würde hier funktionieren.
spätere Trennbarkeit in 2 separate Wohneinheiten (Strichlinie: Wand einziehen und Umbau Bad),
AnRi311 schrieb:Dafür ist die Dusche nicht geeignet.
wenn möglich jetzt schon Barrierefreiheit im EG (kann ja immer was passieren ...),
AnRi311 schrieb:Das liegt an dem Erker.
Im Ess/Kochbereich wird mMn noch Platz verschwendet vor der Küchenzeile,
AnRi311 schrieb:Es wird ja auch durch den innennliegenden Wäscheraum verhunzt.
auch das Bad oben ist flächenmäßig sehr groß, sieht aber nicht groß aus.
AnRi311 schrieb:Wer mag denn von Euch kein Licht, Natur oder Garten?
Der angehängte Plan hat nur eine Terrassentür.
P
pagoni202029.11.20 16:04Ich vermute, dass ihr einach soviel wie möglich da reinpacken wollt, alle Eventualitäten und Wünsche, und deswegen wirkt der Grundriss auf mich nicht flüssig.
Im Eingangsbereich zähle ich endlos viele Türen, was diesen dann unruhig wirken lässt. Der direkte Eingansbereich/Türbereich dagegen ist geradezu mickrig, um dann nach links abbiegen zu müssen, um in einen plötzlich unnötig großen Vorflur zu gelangen (wegen des später getrennten Wohnbereiches).
Vom Gefühl der Großzügigkeit her müsste man dann wohl eher mittig in den Wohnbereich gelange, so schlurft man knapp an den Küchenmöbeln entlang und landet quasi in einer "Halle" mit wieder zu viel Platz; daneben das getrennte, kleine Wohnzimmer, ebfs. mit wenig Platz und noch weniger Fensterfläche.
Wenn ich das richtig lese habt ihr Euch zuerst für die Außenhaut bzw. -form entschieden und versucht nun, Euren Grundriss da hinein zu drücken. Meiner Meinung ist das gerade falsch herum, denn Eure vielfältig vorhandenen Wünsche und Bedürfnisse stoßen deshalb ständig an Wände oder Grenzen. Es ist die Suche nach der eierlegenden Woillmilchsau, die gerne auch mal im faulen Kompromiss landet.
Der von Euch beauftragte "professionelle Bauplaner" (also wohl kein freier Architekt) wird das ein oder andere Mal an seine Grenzen stoßen beim Versuch der Umsetzung der Wünsche. Wie könnte er das auch angemnessen umsetzen, wenn ihm die Außenhaut nahezu jegliche Freiheit in der Innengestaltung verbietet.
Ich würde, anders als Du es schreibst, bei Null anfangen und meine Prioritäten neu setzen; Du bist keine 30 Jahre alt, von daher könnte Altersplanung wegfallen. Wenn Du von innen heraus planst hast Du Sonne dort, wo Du sie möchtest und auch Platz dort, wo er sein soll.
Das Bad im OG ist das beste Beispiel; da passt wirklich Nichts.
Noch ist ja Nichts geschehen.
Im Eingangsbereich zähle ich endlos viele Türen, was diesen dann unruhig wirken lässt. Der direkte Eingansbereich/Türbereich dagegen ist geradezu mickrig, um dann nach links abbiegen zu müssen, um in einen plötzlich unnötig großen Vorflur zu gelangen (wegen des später getrennten Wohnbereiches).
Vom Gefühl der Großzügigkeit her müsste man dann wohl eher mittig in den Wohnbereich gelange, so schlurft man knapp an den Küchenmöbeln entlang und landet quasi in einer "Halle" mit wieder zu viel Platz; daneben das getrennte, kleine Wohnzimmer, ebfs. mit wenig Platz und noch weniger Fensterfläche.
Wenn ich das richtig lese habt ihr Euch zuerst für die Außenhaut bzw. -form entschieden und versucht nun, Euren Grundriss da hinein zu drücken. Meiner Meinung ist das gerade falsch herum, denn Eure vielfältig vorhandenen Wünsche und Bedürfnisse stoßen deshalb ständig an Wände oder Grenzen. Es ist die Suche nach der eierlegenden Woillmilchsau, die gerne auch mal im faulen Kompromiss landet.
Der von Euch beauftragte "professionelle Bauplaner" (also wohl kein freier Architekt) wird das ein oder andere Mal an seine Grenzen stoßen beim Versuch der Umsetzung der Wünsche. Wie könnte er das auch angemnessen umsetzen, wenn ihm die Außenhaut nahezu jegliche Freiheit in der Innengestaltung verbietet.
Ich würde, anders als Du es schreibst, bei Null anfangen und meine Prioritäten neu setzen; Du bist keine 30 Jahre alt, von daher könnte Altersplanung wegfallen. Wenn Du von innen heraus planst hast Du Sonne dort, wo Du sie möchtest und auch Platz dort, wo er sein soll.
Das Bad im OG ist das beste Beispiel; da passt wirklich Nichts.
Noch ist ja Nichts geschehen.
pagoni2020 schrieb:
Im Eingangsbereich zähle ich endlos viele Türen, was diesen dann unruhig wirken lässt. Der direkte Eingansbereich/Türbereich dagegen ist geradezu mickrig, um dann nach links abbiegen zu müssen, um in einen plötzlich unnötig großen Vorflur zu gelangen (wegen des später getrennten Wohnbereiches).Uih, den Punkt wollte ich auch noch herausziehen: keine Einladung des Hauses. Es empfängt mich nicht, es holt mich nicht ab als Besucher. Wenn ich dann irgendwann im finsteren Flur die Glastür zum Allraum entdeckt habe, komme ich in ein dunklen grossen Raum, der durch ein paar Schießscharten belichtet ist. Irgendwie gruselig.
Aber ok, lassen wir mal den Allraum weg, dann ist da der mega merkwürdige Flur, der auch kein Licht abbekommt. (Psst, wie ein Adventure Spiel 😉 )
ypg schrieb:
Die Diele zum Flur, Die Schleuse zur Diele, Die Toi zum Bad, das Bad zum Waschen... ich lass das einfach mal unkommentiert, also ohne Bewertung dieser Abhängigkeiten von Räumen.Der Eingangshof zum Eingang... ich vergass.Und die Auflösung: sie tun sich gegenseitig nichts. Im Gegenteil: das eine nimmt dem anderen den Nutzen, das Positive, den Sinn. Im Bad hast Du es ja selbst schon festgestellt, ohne den Grund erkannt zu haben.
Ich würde mal sagen: zu viel dran rumexperimentiert und dadurch voll daneben gelegen.
Schonmal danke für die ersten ehrlichen und auch hilfreichen Antworten. Ich werde jetzt nicht auf jeden Punkt einzeln eingehen, dafür sind diese doch recht zahlreich, aber kommen fast allesamt zum selben Ergebnis.
Es ist in der Tat so, dass wir von außen nach innen geplant haben. Das ist nicht wirklich optimal und die meisten sagen zu Recht, dass das eigentlich falsch ist. Ich möchte nicht beratungsresistent klingen, aber die/diese Außenansicht ist uns einfach wichtig. Es gefällt uns einfach.
Meiner laienhaften Meinung nach, sollte aber bei der Grundstücksgröße und einem Rohbaumaß von ca. 120 qm diese Ansicht. bzw. dieser Stil in etwa mit unseren Anforderungen an den Innenraum machbar sein. Das wird unser Bauplaner auch hinbekommen, da bin ich mir ziemlich sicher.
Die genaue Anzahl der Fenster oder exakte Breite ist auch nicht in Stein gemeißelt. Wichtig ist der Stil und das, wofür er steht.
Ich weiß aber jetzt auf jeden Fall auch, dass ich mit diesem Entwurf erst gar nicht antanzen brauche. Die angesprochenen Punkte erkannt man auch sofort, wenn man drauf angesprochen wird. Das unterscheidet dann wohl doch den Profi vom Laien. Da versuche ich gar nicht erst zu erklären, oder zu rechtfertigen. Vielen Dank hierfür. Neues Blatt Papier...
Es ist in der Tat so, dass wir von außen nach innen geplant haben. Das ist nicht wirklich optimal und die meisten sagen zu Recht, dass das eigentlich falsch ist. Ich möchte nicht beratungsresistent klingen, aber die/diese Außenansicht ist uns einfach wichtig. Es gefällt uns einfach.
Meiner laienhaften Meinung nach, sollte aber bei der Grundstücksgröße und einem Rohbaumaß von ca. 120 qm diese Ansicht. bzw. dieser Stil in etwa mit unseren Anforderungen an den Innenraum machbar sein. Das wird unser Bauplaner auch hinbekommen, da bin ich mir ziemlich sicher.
Die genaue Anzahl der Fenster oder exakte Breite ist auch nicht in Stein gemeißelt. Wichtig ist der Stil und das, wofür er steht.
Ich weiß aber jetzt auf jeden Fall auch, dass ich mit diesem Entwurf erst gar nicht antanzen brauche. Die angesprochenen Punkte erkannt man auch sofort, wenn man drauf angesprochen wird. Das unterscheidet dann wohl doch den Profi vom Laien. Da versuche ich gar nicht erst zu erklären, oder zu rechtfertigen. Vielen Dank hierfür. Neues Blatt Papier...
Ähnliche Themen