Bonjour à tous,
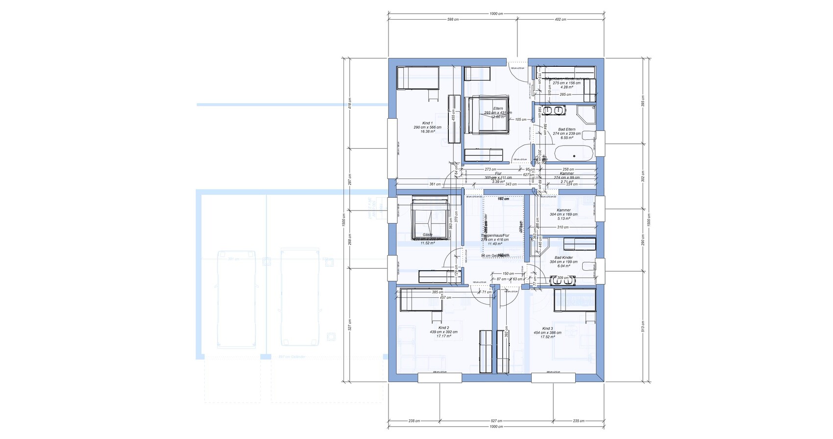
d'accord, nous sommes revenus de notre examen. Vous avez raison ; nous supprimons l’appartement en étage supérieur et donc tout le dernier étage !
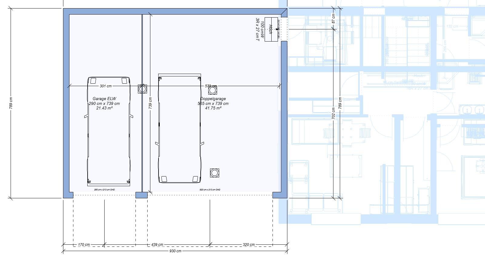
Le garage et la place de parking en haut (au nord) ne doivent donc pas non plus être construits. Pour cela, nous avons augmenté la hauteur du mur à mi-pente à l’étage supérieur (qui est maintenant d’une certaine manière le dernier étage) de 150 cm à 200 cm, afin d’avoir des fenêtres sur le côté et de ne pas avoir des pentes de toit partout à l’étage supérieur.
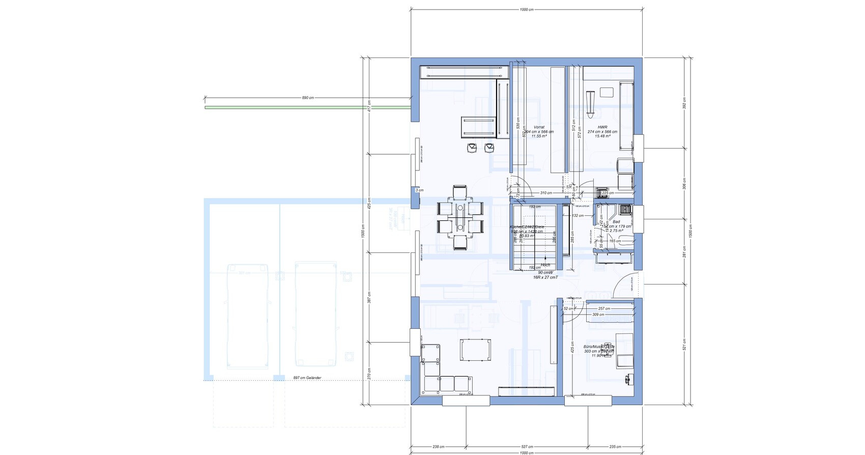
Nous avons également pris en considération les autres suggestions et les avons en grande partie mises en œuvre. Merci de les revoir, nous sommes impatients d’avoir d’autres idées (et aussi vos critiques, si nécessaire).
Avez-vous des idées sur ce que nous pouvons faire maintenant avec la partie du terrain au nord ? Nous avons installé une porte de la chambre à l’étage supérieur vers cette partie du jardin. Bien sûr, nous n’avons plus besoin d’un mur dans le jardin, mais nous pouvons aménager en terrasses la différence de hauteur de 3 mètres. Peut-être que nous y mettrons aussi un toboggan pour les enfants ou quelque chose comme ça
Est-il vrai qu’on ne peut pas construire un garage avec toiture végétalisée en limite de propriété ?
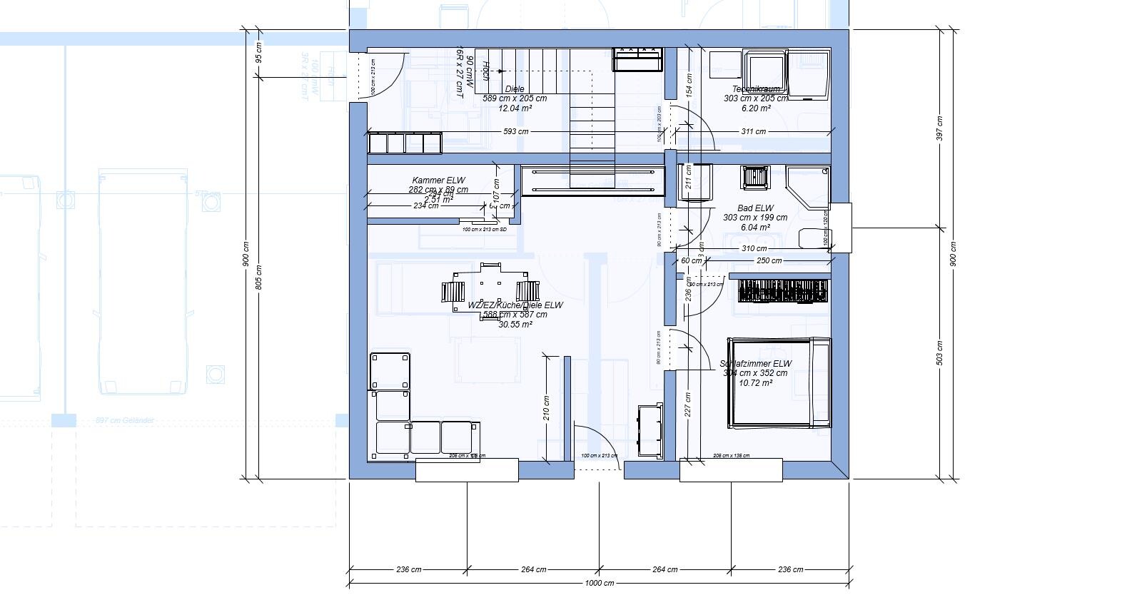
Puis-je utiliser la partie arrière du garage à gauche comme une petite cave pour l’appartement en étage, ou y aura-t-il des problèmes d’humidité parce que c’est sous terre ?
Bien à vous
