kaho674
13.12.2019 09:01:13
- #1
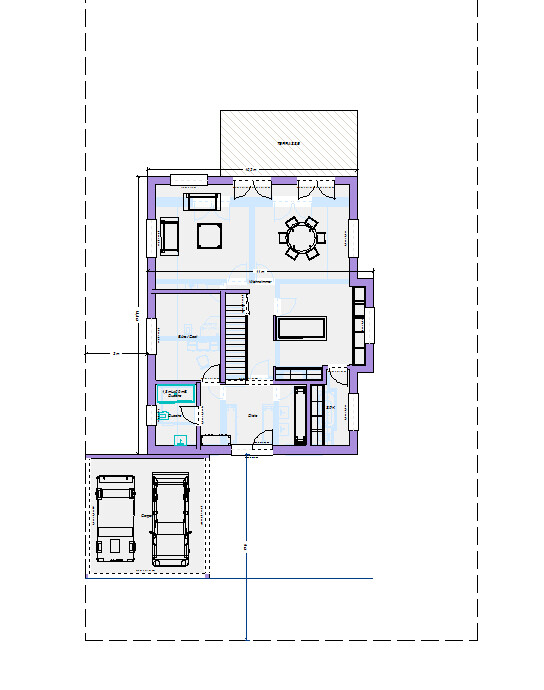
Como dije, el plano no está mal, solo que se abre hacia el vecino en la cerca, en lugar de hacia el jardín. Eso lo considero un error, sobre todo si hay aún 50 metros hacia atrás, donde los niños juegan. En lugar de mirarlos, ustedes están agachados en la cerca al borde. Por supuesto, es cuestión de prioridades.
Aquí una sugerencia de cómo se podría abrir la casa al jardín y además estacionar bien:



Por favor, recuerden las ventanas en el techo.
Aquí una sugerencia de cómo se podría abrir la casa al jardín y además estacionar bien:
Por favor, recuerden las ventanas en el techo.