ᐅ Wohnraumplanung und Grundrissideen EG - Aus Einfamilienhaus mach Zweifamilienhaus
Erstellt am: 20.08.25 22:41
O
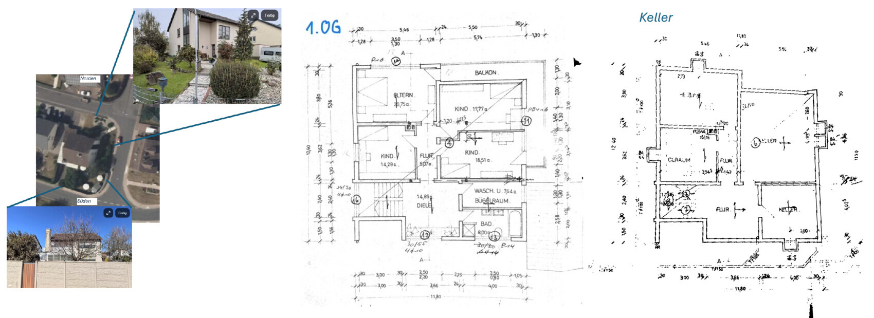
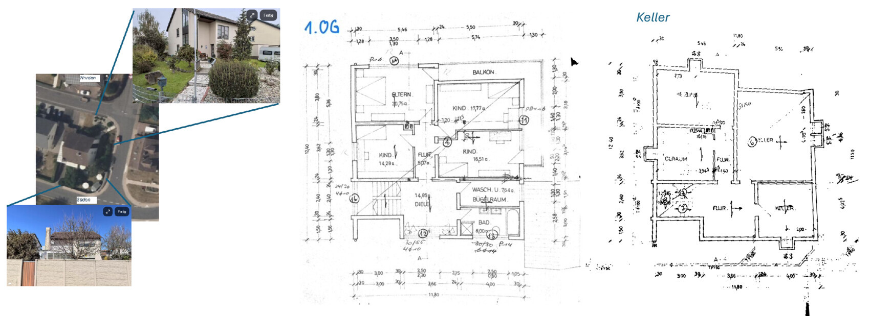
oddilonIch möchte das Haus meines Opas kaufen. Das Haus ist als Einfamilienhaus gebaut, und der Wohnraum ist über zwei Stockwerke verteilt. Das Gebäude ist voll unterkellert. Die Bestandsimmobilie von etwa 1967 wurde bereits vor etwa 10 Jahren durch meinen Opa so umgebaut, dass darin nur noch im Erdgeschoss gelebt wird. Das 1. OG steht aktuell leer und befindet sich noch im Ausbau von 1967. Das Haus soll in zwei Wohnungen aufgeteilt und von mir und sehr nahen Verwandten bewohnt werden. Die Umbaukosten sollen möglichst gering gehalten werden, und einige Dinge (neue Wasserzuleitungen, Dachboden etc.) sollen zu einem späteren Zeitpunkt angegangen werden.
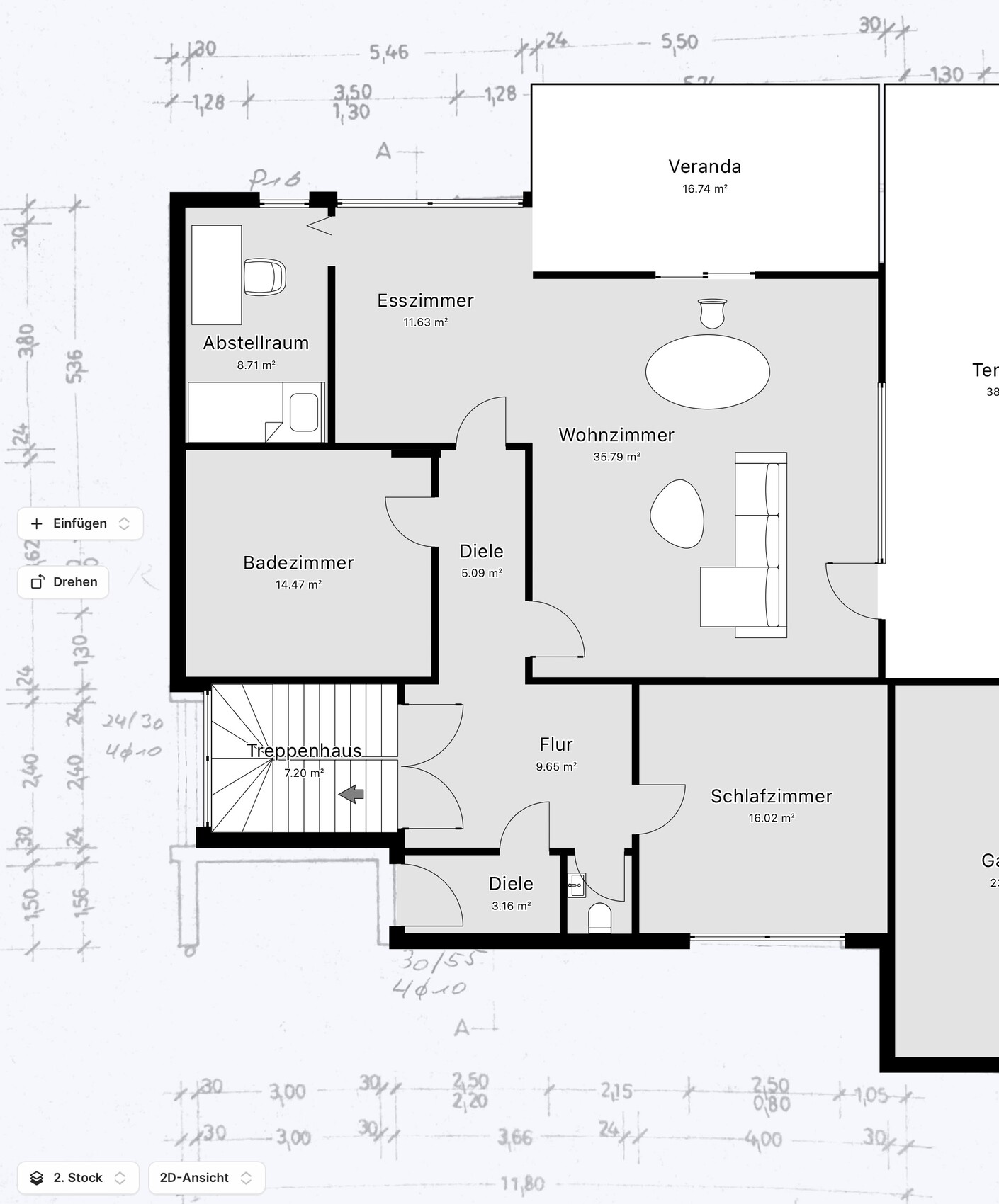
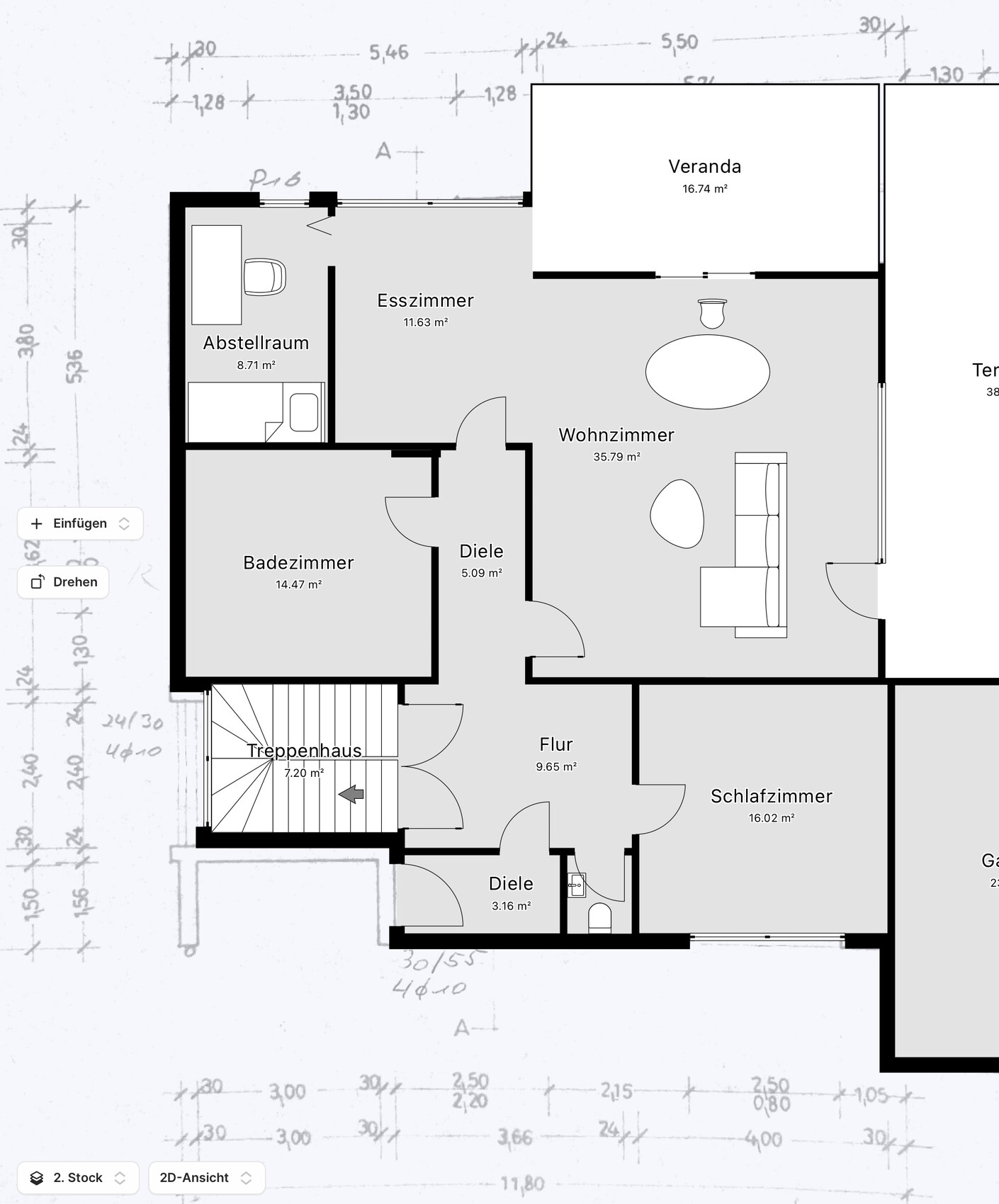
Gerne möchte ich hier den Grundriss des Erdgeschosses – welches ich übernehmen werde – mit euch diskutieren. Das Erdgeschoss ist von den Raumgrößen sehr großzügig geplant, und mir fehlt leider ein gesondertes Zimmer als Büro und Gästezimmer sowie ggf. später als Kinderzimmer. Das Wohnzimmer ist relativ dunkel, da hier die überdachte Terrasse und ein Wohnhaus angrenzen. Die Küche und das Esszimmer sind sehr hell und bieten Blick in den Garten. Das Bad war früher die Küche und wurde vor etwa 10 Jahren renoviert.
Mein bisheriger Plan ist:


Gerne möchte ich hier den Grundriss des Erdgeschosses – welches ich übernehmen werde – mit euch diskutieren. Das Erdgeschoss ist von den Raumgrößen sehr großzügig geplant, und mir fehlt leider ein gesondertes Zimmer als Büro und Gästezimmer sowie ggf. später als Kinderzimmer. Das Wohnzimmer ist relativ dunkel, da hier die überdachte Terrasse und ein Wohnhaus angrenzen. Die Küche und das Esszimmer sind sehr hell und bieten Blick in den Garten. Das Bad war früher die Küche und wurde vor etwa 10 Jahren renoviert.
Mein bisheriger Plan ist:
- Eingangsbereich optisch trennen, damit meine Wohnung im Erdgeschoss räumlich vom Eingangsbereich (Erdgeschoss und 1. OG) getrennt ist (Idee im Plan blau)
- Holz-Wandschrank im Wohnzimmer entfernen und Fenster/Tür zum Wintergarten für mehr Licht im Wohnzimmer einbauen (Idee im Plan grün)
- Neue Küche (muss keine große Küche sein)
- Das Fenster im Wohnzimmer wurde vor etwa 10 Jahren ersetzt; das Fenster in der Küche sollte ausgetauscht werden
- Sonstiges: Stromzuleitungen neu für zwei getrennte Stromzähler (Erdgeschoss und 1. OG), Holzdecken entfernen, Türen und Zargen weiß streichen; Parkettboden möchte ich gerne erhalten
- Fehlendes kleines Büro/Gästezimmer (später ggf. als Kinderzimmer nutzbar)
- Zusätzliches Kinderzimmer lässt sich im Notfall später noch durch den Ausbau des Dachbodens erweitern
- Größe des Grundstücks: ca. 800 m²
- Wohnfläche eines Stockwerks: etwa 105 m²
- Geschossflächenzahl: Keller, Erdgeschoss, 1. OG, unausgebauter Dachboden
- Randbebauung aktuell: nur Terrasse und Garage
- Anzahl der Personen: 1 Person im Alter von 30 Jahren (Planung sollte für 2 Personen und ggf. Kind ausgelegt sein)
- Büro: Homeoffice an 3 Tagen pro Woche
- Schlafgäste pro Jahr: Gästebett/-sofa im Büro ausreichend
- Offene Architektur und moderne Bauweise gewünscht (Faible für Bauhaus und Mid-Century Modern)
- Offene Küche, die sich in den Wohnraum integrieren soll (kein Fokuspunkt)
- Anzahl Essplätze: Standard 4 Personen, aber auch ab und zu 6 bis 8 Personen
- Feiern im Sommer im Garten/Terrasse und im Winter im Wintergarten mit Kamin
- Regal oder Standlautsprecher neben dem TV
- Wintergarten und überdachte Terrasse vorhanden
- Garage mit Zugang zur Terrasse vorhanden
- Für das bisherige Vorhaben wurde kein Architekt involviert
H
hanghaus202321.08.25 09:26Ist denn laut Bebauungsplan ein 2 Familienhaus zulässig? Gibt es Auflagen (Satzung der Gemeinde) bezüglich Stellplätze.
Sehr spannendes Projekt!
Ich würde erstmal diverse Dinge klären.
1. Sind Mehrfamilienhäuser zulässig? (Bebauungsplan, ggf. beim Amt nachfragen.)
2. Welches Maß an baulichen Veränderungen sind möglich (finanziell und baurechtlich)?
Mein erster Impuls wäre nämlich (unklar ob zulässig und nicht zu teuer) :
Wintergarten quasi auflösen und als Erker in die thermische Hülle integrieren. Hierdurch den Wohn-Essbereich nach planoben verschieben und so die Möglichkeit schaffen, ein Büro mit Westfenster dort vor dem Schlafraum einzurichten. (Der Zugang zum Schlafraum müsste dann anders gelöst werden.)
Ansonsten könnte man die Küche kleiner machen, das Büro nach Südosten (planoben links) und den Essbereich zum Teil in den Wohnbereich integrieren. Hier könnten aber die Flächen zu eng werden. Schwierig...
Ich würde erstmal diverse Dinge klären.
1. Sind Mehrfamilienhäuser zulässig? (Bebauungsplan, ggf. beim Amt nachfragen.)
2. Welches Maß an baulichen Veränderungen sind möglich (finanziell und baurechtlich)?
Mein erster Impuls wäre nämlich (unklar ob zulässig und nicht zu teuer) :
Wintergarten quasi auflösen und als Erker in die thermische Hülle integrieren. Hierdurch den Wohn-Essbereich nach planoben verschieben und so die Möglichkeit schaffen, ein Büro mit Westfenster dort vor dem Schlafraum einzurichten. (Der Zugang zum Schlafraum müsste dann anders gelöst werden.)
Ansonsten könnte man die Küche kleiner machen, das Büro nach Südosten (planoben links) und den Essbereich zum Teil in den Wohnbereich integrieren. Hier könnten aber die Flächen zu eng werden. Schwierig...
oddilon schrieb:
Zusätzliches Kinderzimmer lässt sich im Notfall später noch durch den Ausbau des Dachbodens erweiternVerstehe ich es also richtig, dass Du in das OG, der nahe Verwandte das EG bekommt? Papierturm schrieb:
Sind Mehrfamilienhäuser zulässig?Ein Zweifamilienhaus ist baurechtlich kein Mehrfamilienhaus.Viele Dank für Eure Antworten! Mit einem Herren vom Amt habe ich telefoniert. Er teilte mir mit, dass die Umwandlung in ein Zweifamilienhaus möglich sei. Wenn hier nicht in die äußere Substanz eingegriffen wird, greift auch der Bestandsschutz, was Stellplätze angehe. Ansonsten sind es laut Satzung zwei Stellplätze pro Wohneinheit, welche auf dem Grundstück jedoch bereits vorhanden sind.
Ich möchte gerne in das EG gehen und mein Vater (naher Verwandter) in das 1. OG. Das Dachgeschoss soll aktuell wegen der Kosten und nicht vorhandenen Notwendigkeit unausgebaut bleiben.
Da ich finanziell bereits einiges für die Übernahme des Hauses investieren muss, möchte ich die Renovierungs-/ Umbaukosten so gering wie möglich halten. Ich möchte nicht mehr, als 60t€ zusätzlich ausgeben, wovon jedoch auch notwendige Dinge, wie Stromzuleitungen für zweiten Sicherungskasten, neue Wasserabflussrohre, Versiegelung der undichten Terrasse u.s.w. abgehen. Die Summe hierzu kann ich bisher nicht konkret nennen.
Somit ist es mein Ziel mit möglichst geringem finanziellen Einsatz, meine Wünsche abzubilden.
Die Idee mit der Verkleinerung der Küche und einem kleinen Büro planoben links von @Papierturm gefällt mir schon gut. In der angehängten Skizze hat der „Abstellraum“ 2,3m*3,8m. Der Esstisch müsste dann ins Wohnzimmer wechseln, wo ich ihn jedoch noch nicht optimal unterbekommen habe.

Ich möchte gerne in das EG gehen und mein Vater (naher Verwandter) in das 1. OG. Das Dachgeschoss soll aktuell wegen der Kosten und nicht vorhandenen Notwendigkeit unausgebaut bleiben.
Da ich finanziell bereits einiges für die Übernahme des Hauses investieren muss, möchte ich die Renovierungs-/ Umbaukosten so gering wie möglich halten. Ich möchte nicht mehr, als 60t€ zusätzlich ausgeben, wovon jedoch auch notwendige Dinge, wie Stromzuleitungen für zweiten Sicherungskasten, neue Wasserabflussrohre, Versiegelung der undichten Terrasse u.s.w. abgehen. Die Summe hierzu kann ich bisher nicht konkret nennen.
Somit ist es mein Ziel mit möglichst geringem finanziellen Einsatz, meine Wünsche abzubilden.
Die Idee mit der Verkleinerung der Küche und einem kleinen Büro planoben links von @Papierturm gefällt mir schon gut. In der angehängten Skizze hat der „Abstellraum“ 2,3m*3,8m. Der Esstisch müsste dann ins Wohnzimmer wechseln, wo ich ihn jedoch noch nicht optimal unterbekommen habe.
Ähnliche Themen