Hausbau - Ratgeber
Bauherrenhilfe
- Bauherrenhilfe vor Vertragsabschluss
-- Warum einen unabhängigen Baubetreuer?
-- Vertragsgrundlagen
-- Bausumme
-- Zahlungsplan zur Kostenkontrolle
-- Pflichten des Bauherren vor Vertragsabschluss
-- Unterlagen beim Hausbau vor Vertragsabschluss
- Bauherrenhilfe nach Vertragsabschluss
-- Bauantrag bei Behörden
-- Bau-Genehmigungsverfahren bei Baubehörden
-- Bauspezifische Versicherungen
-- Bauzeitenplan
-- Baubeginn - die Letzten Pflichten der Bauherrschaft
- Bauherrenhilfe während der Bauzeit
- Gewährleistungsansprüche
- Bauabnahme
Baufinanzierung
- Baufinanzierung - Allgemeine Fragen
- Kreditarten
- Kredit-Konditionen
- Bausparen
- Staatliche Förderungen
- Verkehrswert
- Haushaltsrechnung und Bonität
Hausbau Planung
- Haustypen
- Hausbau Vorbereitungsarbeiten
- Das Baugrundstück
- Baugrund beim Hausbau
- Baurecht
- Gebäudeschutz
- Erdarbeiten und Wasserhaltung
- Stützmauern
- Einfriedung
- Untergeschoss
- Kanalisation
- Tragende Elemente
- Nichttragende Innenwände
- Fundation / Fundament
- Deckenkonstruktionen
- Dächer
- Kaminanlagen
- Treppen Rampen Leitern
- Dachbeläge und Spengler
- Fenster
- Sonnen und Wetterschutz
- Aussenputze
- Einbauten, Küchen, Türen
- Bodenbeläge und Unterlagsböden
- Parkett
- Gips, Wand, Decke
Haustechnik und Energie
- Heiztechnik
- Lüftung und Klimatechnik
- Sanitärtechnik
- Elektrotechnik
- Erneuerbare Energie
Whirlpools / Jacuzzi
Hausbau Magazin
- Baufinanzierung trotz Krise?
- Das Blockhaus
- Moderne Dämmstoffe im Vergleich
- Erker Vor- und Nachteile
- Glasflächen beim Hausbau
- Günstig ein Haus Bauen
- Mediterraner Hausbaustil
- Mehrgenerationenhaus
- Moderne Architektur
- Gartengestaltung leicht gemacht
- Traditioneller Ziegelbau
- Villa als höchster Traum
- Im Eigenheim Ruhestand geniessen
- Altbau sanieren
- Kauf einer Holzgarage
- Immobilienmakler
- Arbeitshandschuhe für den Winter
- Zuhause verschönern
- Outdoor-Plissees
- Schlafzimmer planen
- Terrassenüberdachung
- Wohngebäudeversicherung
- Girokonto für Bauherren finden
- Hauseingang gestalten
- Zaunarten und Eigenschaften
- Der perfekte Grundriss
- Sparsamer heizen im Altbau
- Einfamilienhaus smart finanzieren
- Planung einer PV-Anlage
- Neues Haus
- Immobilienfinanzierung
- Installation einer Photovoltaikanlage
- Asbest erkennen und entfernen
- Gartenpflege im Frühling – worauf achten
- Sauna im Fokus - Wellness zuhause
- Erfolgreich vermieten
- Die perfekte Winterbekleidung
- Das Niedrigenergiehaus
- Der April und seine Stürme
- Architektonische Vielfalt
- Ökologisch und nachhaltig bauen
- Das perfekte Schlafzimmer
- Nachhaltige Energieversorgung
- Zukunftsorientiert bauen
- Nachhaltigkeit beim Hausbau
- Tiny Houses
- Wärmepumpen als nachhaltige Heizvariante
- Maßgeschneiderten Kleiderschrank
- Der richtige Baukredit
- Ratgeber für erfolgreichen Hausbau
- Haus als Altersvorsorge
Do-it-yourself Anleitungen
- Verlegeanleitung für Bodenbeläge und Parkett
- Bodenbeläge und Parkett reinigen und pflegen
- Malerarbeiten am Haus
- Garten Tipps
- Umzug und Reinigung

ᐅ Wie gefällt euch meine Planung?

Erstellt am: 26.06.21 22:01
T
Thomas88
T
Thomas88
26.06.21 22:01
Hallo liebe Hausbauer,

ich wollte euch mal meine Planung zur Verfügung stellen und hätte gerne eure Meinung dazu gehört.
Habt ihr Verbesserungsvorschläge? Gefällt es euch?
Was würdet ihr anders machen?

Viele Grüße
Thomas

3D-Ansicht eines weißen Hauses mit dunklem Dach auf grünem Gelände


Zweistöckiges, weißes Wohnhaus mit dunklem Satteldach, zahlreichen Fenstern auf grünem Rasen.


Modernes weißes zweigeschossiges Haus mit dunklem Ziegeldach, großen Fenstern und Glasschiebetür.


Modernes zweistöckiges Haus: graue linke Fassade, weiße rechte Fassade, dunkles Dach, mehrere Fenster


3D-Modell eines zweistöckigen Hauses mit weißer und grauer Fassade, dunklem Dach und Fenstern.
T
Tassimat
26.06.21 22:21
Thomas88 schrieb:

Habt ihr Verbesserungsvorschläge?
Ja, Grundrisse sowie eine Übersicht, wie dieses Haus auf dem Grundstück steht.
Thomas88 schrieb:

Gefällt es euch?
Ehrlicherweie nicht, da die Fenster total chaotisch angeordnet sind.
Tut mir Leid, mehr Feedback geben die Bilder beim besten Willen nicht her. Ich weiß nicht mal wo vorne und hinten ist 🙁
Poste mal Grundrisse und einen Lageplan auf dem Grundstück.
K
kbt09
26.06.21 22:25
@Thomas88 ... was soll man jetzt ohne Glaskugel dazu sagen?

Wir haben den Forumsbereich https://www.hausbau-forum.de/forums/grundrissplanung-Grundstücksplanung.237/ und da gibt es einen angepinnten Thread, der sollte gelesen werden und dann auch entsprechend danach gehandelt werden.


3 verschiedene Brüstungshöhen querbeet ohne dass man weiß, ob sie wenigstens von der Grundrissplanung einen Sinn ergeben.
Nida35a26.06.21 22:25
Grundstück, Nachbarn, Himmelsrichtungen, Grundrisse,
ohne das alles ist es wie Lego vom Enkel,
Guck mal was ich gebaut habe
T
Thomas88
26.06.21 22:33
Hallo,
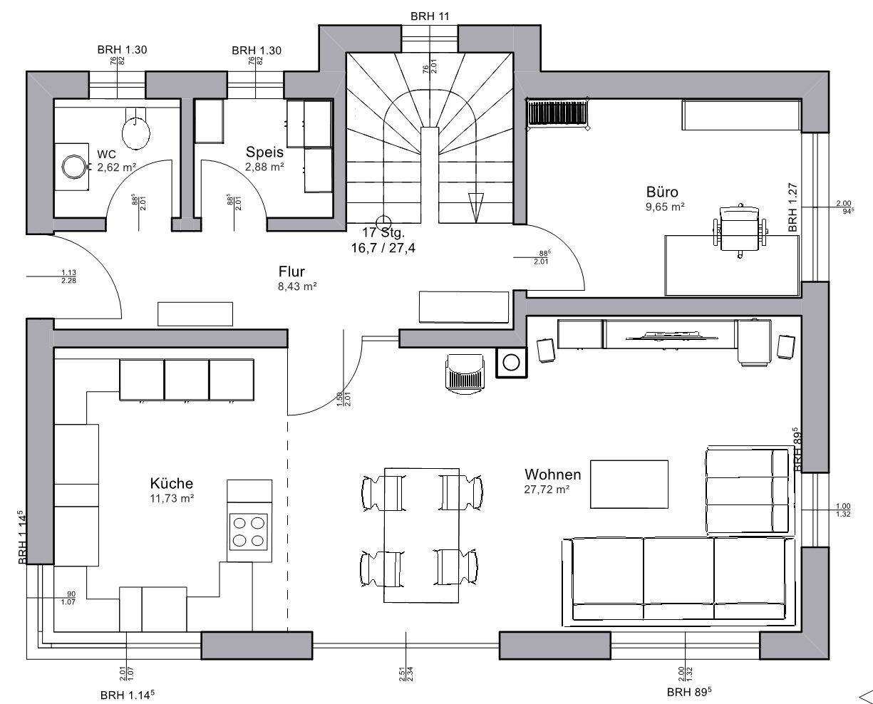
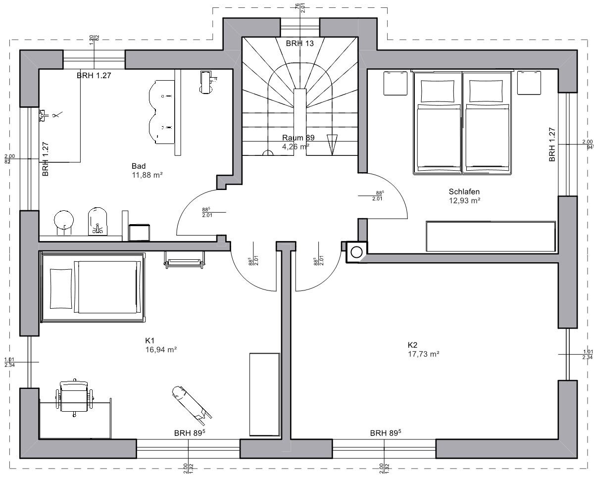
Das sind noch die Grundrisse.

Grüße
Thomas

Grundriss eines Wohnhauses: Küche, Wohnen, Büro, Flur, Speis und WC mit Möbeln.


Grundriss eines Hauses mit Bad links, Schlafen rechts, K1 und K2, zentrale Treppe in der Mitte.
M
Myrna_Loy
26.06.21 23:26
Ich dachte bei den Außenansichten, das wird ein 2-Familienhaus. 😀 Ist aber wohl ein Palast für 3 Personen?
grundrissegrundstück