Naturliebhaber schrieb:
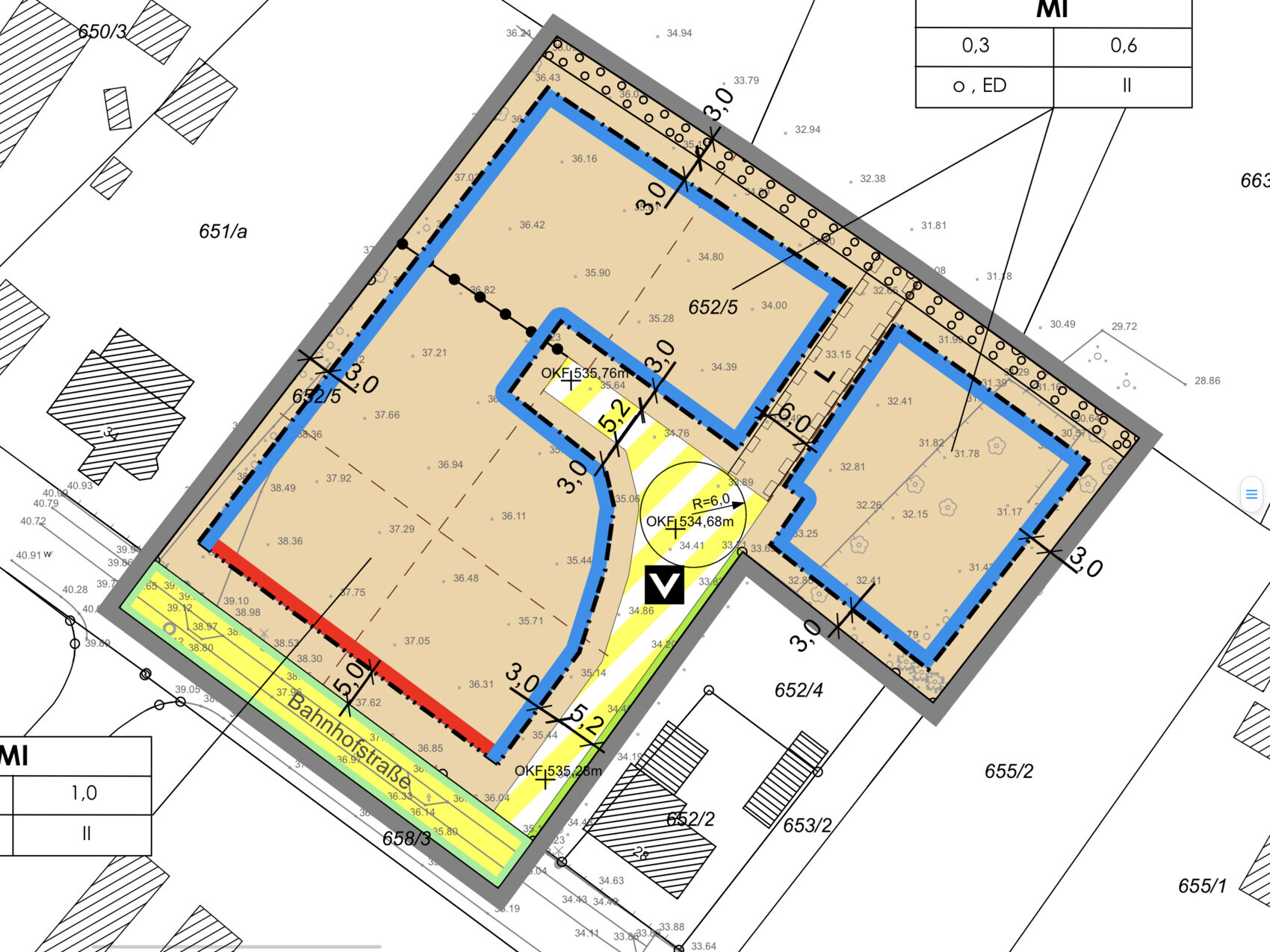
Es gibt 2 Grundstücke. Bei einem gibt es eine Baulinie. Dieses ist das größere. Das Haus soll inzwischen im kleineren Grundstück stehen.
Nach Veränderung der Grundstücksgrenze steht das Haus im größeren, die Baulinie liegt dann im kleineren Grundstück, wo aber nur der Garten ist.
Ist halt etwas kompliziert, aber funktioniert soFür mich klingt das nach einem Pyrrhussieg erster Kajüte - mir scheint hier die ganze Vermessungsarie aufwendiger als ein klassischer Bauantrag mitsamt Befreiungsgebühren.https://www.instagram.com/11antgmxde/
https://www.linkedin.com/company/bauen-jetzt/
N
Naturliebhaber13.05.21 15:59Klingt komplizierter als es ist 😉
H
Hausbauer202113.05.21 16:22Yaso2.0 schrieb:
Wir haben im Januar 2020 angefangen 4 bekannte und empfohlene GU zu kontaktieren.
Alle haben sich zwar relativ zeitnah gemeldet und es kam auch zu Gesprächen, jedoch wollte man sich nicht so sehr auf Details einlassen, da kein Vertrag unterschrieben war.
Alle haben nach ca. 2-4 Wochen ein Hausvorschlag inkl. Angebot geschickt.
Lediglich ein GU hat aber vorab die Gegebenheiten von unserem Grundstück angesehen und die Mehrkosten für die Erdarbeiten beziffert. Zudem hat man uns dort sehr sehr viele Auskünfte und Hilfe gegeben, bevor wir auch nur unterschrieben hatten.
Zwischenzeitlich wollte ich es doch mit einem Architekten probieren, weil unser Grundstück recht klein ist und auch einen Hang hat.
Ich habe keinen Architekten mit Kapazitäten gefunden.
Letztlich haben wir im November 20 bei unserem favorisierten GU unterschrieben. Bei Änderungen dauert es schon mal 2-3 Wochen bis da was kommt, aber wir wurden schon vorab darüber informiert, dass aktuell die Auftragsbücher voll sind und sich vermeintliche Kleinigkeiten etwas verzögern können. Es ist zwar ärgerlich, aber so lange man keinen Druck hat, alles ok. Die Verzögerungen durch die Wartezeiten für die Aktualisierung unserer Bauunterlagen hat das Bauamt ausgebadet. Wir haben innerhalb von 9 Werktagen die Baugenehmigung erhalten.
Wenn ihr ein „einfaches“ Grundstück habt, würde ich darauf schauen, wer euch das sicherste Gefühl und Vertrauen vermittelt. Ich denke, da kann euch sowohl ein GU als auch ein Architekt glücklich machen. Solltet ihr ein Grundstück mit Hindernissen haben, würde ich definitiv versuchen, einen Architekten zu engagieren!Wo habt ihr gebaut wenn ich fragen darf?N
Naturliebhaber14.05.21 16:18So, ich bin nicht eher dazu gekommen...
da @11ant danach gefragt hatte, hier einmal der ausgefüllte Fragebogen mit unseren Vorstellungen... eine konkrete Planung, die uns zusagt, gibt es bisher ja noch nicht....
Bebauungsplan/Einschränkungen
Größe des Grundstücks 1000qm
Hang leichte Höhenunterschiede, Siehe Anhang
Grundflächenzahl 0,6
Geschossflächenzahl 1,0
Baufenster, Baulinie und -grenze Baulinie nur auf dem einen Grundstück, ansonsten 3m Baugrenze. Garage muss 5m Abstand zur Straße haben
Randbebauung
Anzahl Stellplatz 2
Geschossigkeit 1,5 mit hohen Kniestück von über 2m
Dachform keine Vorgabe
Stilrichtung keine Vorgabe
Ausrichtung keine Vorgabe
Maximale Höhen/Begrenzungen nur Baugrenze
weitere Vorgaben
Anforderungen der Bauherren
Stilrichtung, Dachform, Gebäudetyp modern, Satteldacht, Einfamilienhaus
Keller, Geschosse kein Keller, EG+OG
Anzahl der Personen, Alter 2 Erwachsene, Anfang und Mitte 30, Kind innerhalb der nächsten 2 Jahre geplant, evtl. auch noch ein zweites
Raumbedarf im EG, OG
EG: Homeoffice, Küche, Essen, Wohnen, Hauswirtschaftsraum, Gästebad mit Dusche
OG: 2x Kind, Schlafen mit Ankleide, Bad, Galerie mit Panoramafenster
Büro: Familiennutzung oder Homeoffice? Homeoffice
Schlafgäste pro Jahr wenige
offene oder geschlossene Architektur
konservativ oder moderne Bauweise modern
offene Küche, Kochinsel offene Küche, aber über Eck
Anzahl Essplätze 4-6
Kamin ja, aber notfalls verzichtbar
Musik/Stereowand
Balkon, Dachterrasse
Garage, Carport Großraumgarage für ein Auto + Abstell und Carport
Nutzgarten, Treibhaus
weitere Wünsche/Besonderheiten/Tagesablauf, gern auch Begründungen, warum dieses oder das nicht sein soll
- ca 160qm
- Homeoffice muss zwingend in das EG, soll notfalls auch im Alter als Schlafzimmer genutzt werden können
- Esszimmer soll Richtung Nord-Ost sein, da dort ein Sitzfenster hin soll mit Weitblick
- im OG soll eine Galerie mit Panoramafenster in Richtung Nord-Ost entstehen
- Schlafzimmer mit Ankleide wäre schön
- wenn möglich gerade Treppe
-Kamin wäre schön, aber notfalls erster Streichkandidat
-Kontrollierte-Wohnraumlüftung muss sein
- Eingang im N bzw. NO, da wo die Garage hinkommt
Hausentwurf
Von wem stammt die Planung: noch nicht vorhanden
-Planer eines Bauunternehmens
-Architekt
-Do-it-Yourself
Was gefällt besonders? Warum?
Was gefällt nicht? Warum?
Preisschätzung lt Architekt/Planer:
Persönliches Preislimit fürs Haus, inkl Ausstattung: inkl. Garage/Carport ca. 400.000, Grundstück ist bereits bezahlt, wir bauen im Vogtland...das sollte also durchaus möglich sein
favorisierte Heiztechnik: Luft-Wasser-Wärmepumpe
Wenn Ihr verzichten müsst, auf welche Details/Ausbauten
-könnt Ihr verzichten: Kamin, gerade Treppe
-könnt Ihr nicht verzichten: Sitzfenster EG, Küche über Eck, Galerie mit Panorama im OG Richtung NO, Homeoffice im EG
Warum ist der Entwurf so geworden, wie er jetzt ist? ZB
-Ermittlung des persönliches Bedarfes/Geschmackes, Durchforsten von Grundrissen
- Orientierung an: Kern-Haus Allea und Rensch-Haus Modena
Was ist die wichtigste/grundlegende Frage zum Grundriss in 130 Zeichen zusammengefasst?
Rensch-Haus Modena gefällt uns im EG super, ist aber zu groß,
OG müsste modifiziert werden, da die Galerie an der falschen Stelle ist
Vorschläge, Ideen?
Vielen Dank im Voraus 🙂


da @11ant danach gefragt hatte, hier einmal der ausgefüllte Fragebogen mit unseren Vorstellungen... eine konkrete Planung, die uns zusagt, gibt es bisher ja noch nicht....
Bebauungsplan/Einschränkungen
Größe des Grundstücks 1000qm
Hang leichte Höhenunterschiede, Siehe Anhang
Grundflächenzahl 0,6
Geschossflächenzahl 1,0
Baufenster, Baulinie und -grenze Baulinie nur auf dem einen Grundstück, ansonsten 3m Baugrenze. Garage muss 5m Abstand zur Straße haben
Randbebauung
Anzahl Stellplatz 2
Geschossigkeit 1,5 mit hohen Kniestück von über 2m
Dachform keine Vorgabe
Stilrichtung keine Vorgabe
Ausrichtung keine Vorgabe
Maximale Höhen/Begrenzungen nur Baugrenze
weitere Vorgaben
Anforderungen der Bauherren
Stilrichtung, Dachform, Gebäudetyp modern, Satteldacht, Einfamilienhaus
Keller, Geschosse kein Keller, EG+OG
Anzahl der Personen, Alter 2 Erwachsene, Anfang und Mitte 30, Kind innerhalb der nächsten 2 Jahre geplant, evtl. auch noch ein zweites
Raumbedarf im EG, OG
EG: Homeoffice, Küche, Essen, Wohnen, Hauswirtschaftsraum, Gästebad mit Dusche
OG: 2x Kind, Schlafen mit Ankleide, Bad, Galerie mit Panoramafenster
Büro: Familiennutzung oder Homeoffice? Homeoffice
Schlafgäste pro Jahr wenige
offene oder geschlossene Architektur
konservativ oder moderne Bauweise modern
offene Küche, Kochinsel offene Küche, aber über Eck
Anzahl Essplätze 4-6
Kamin ja, aber notfalls verzichtbar
Musik/Stereowand
Balkon, Dachterrasse
Garage, Carport Großraumgarage für ein Auto + Abstell und Carport
Nutzgarten, Treibhaus
weitere Wünsche/Besonderheiten/Tagesablauf, gern auch Begründungen, warum dieses oder das nicht sein soll
- ca 160qm
- Homeoffice muss zwingend in das EG, soll notfalls auch im Alter als Schlafzimmer genutzt werden können
- Esszimmer soll Richtung Nord-Ost sein, da dort ein Sitzfenster hin soll mit Weitblick
- im OG soll eine Galerie mit Panoramafenster in Richtung Nord-Ost entstehen
- Schlafzimmer mit Ankleide wäre schön
- wenn möglich gerade Treppe
-Kamin wäre schön, aber notfalls erster Streichkandidat
-Kontrollierte-Wohnraumlüftung muss sein
- Eingang im N bzw. NO, da wo die Garage hinkommt
Hausentwurf
Von wem stammt die Planung: noch nicht vorhanden
-Planer eines Bauunternehmens
-Architekt
-Do-it-Yourself
Was gefällt besonders? Warum?
Was gefällt nicht? Warum?
Preisschätzung lt Architekt/Planer:
Persönliches Preislimit fürs Haus, inkl Ausstattung: inkl. Garage/Carport ca. 400.000, Grundstück ist bereits bezahlt, wir bauen im Vogtland...das sollte also durchaus möglich sein
favorisierte Heiztechnik: Luft-Wasser-Wärmepumpe
Wenn Ihr verzichten müsst, auf welche Details/Ausbauten
-könnt Ihr verzichten: Kamin, gerade Treppe
-könnt Ihr nicht verzichten: Sitzfenster EG, Küche über Eck, Galerie mit Panorama im OG Richtung NO, Homeoffice im EG
Warum ist der Entwurf so geworden, wie er jetzt ist? ZB
-Ermittlung des persönliches Bedarfes/Geschmackes, Durchforsten von Grundrissen
- Orientierung an: Kern-Haus Allea und Rensch-Haus Modena
Was ist die wichtigste/grundlegende Frage zum Grundriss in 130 Zeichen zusammengefasst?
Rensch-Haus Modena gefällt uns im EG super, ist aber zu groß,
OG müsste modifiziert werden, da die Galerie an der falschen Stelle ist
Vorschläge, Ideen?
Vielen Dank im Voraus 🙂
11ant schrieb:
ob @Escroda diesen Ausführungen folgen kann - ich jedenfalls nicht.Nein, ich kann nicht folgen.Naturliebhaber schrieb:
Klingt komplizierter als es istSchaumermal, ob sich diese Einschätzung bewahrheitet. Bitte auf dem Laufenden halten.Ähnliche Themen