R
RobsonMKK23.03.16 20:26Hallo zusammen,
ich möchte gerne unsere aktuelle Planung unseres Hauses vorstellen und gerne Ideen dazu hören/lesen
Bebauungsplan/Einschränkungen
Größe des Grundstücks: 436 m²
Hang: nein, eben
Grundflächenzahl: 0,4
Geschossflächenzahl: k.a.
Baufenster, Baulinie und -grenze: frei auf dem Grundstück, lediglich 3m Abstand
Randbebauung
Anzahl Stellplatz: 2 Stellplätze
Geschossigkeit: 2 Vollgeschosse
Dachform: alles erlaubt ab 20°
Stilrichtung: frei
Ausrichtung:
Maximale Höhen/Begrenzungen: 11m
weitere Vorgaben
Anforderungen der Bauherren
Stilrichtung, Dachform, Gebäudetyp: klassisch, Satteldach (45°)
Keller, Geschosse: Keller, Erdgeschoss, Obergeschoss
Anzahl der Personen, Alter: 36, 35, 2,5 (Nummer 2 ist in Planung und gewünscht)
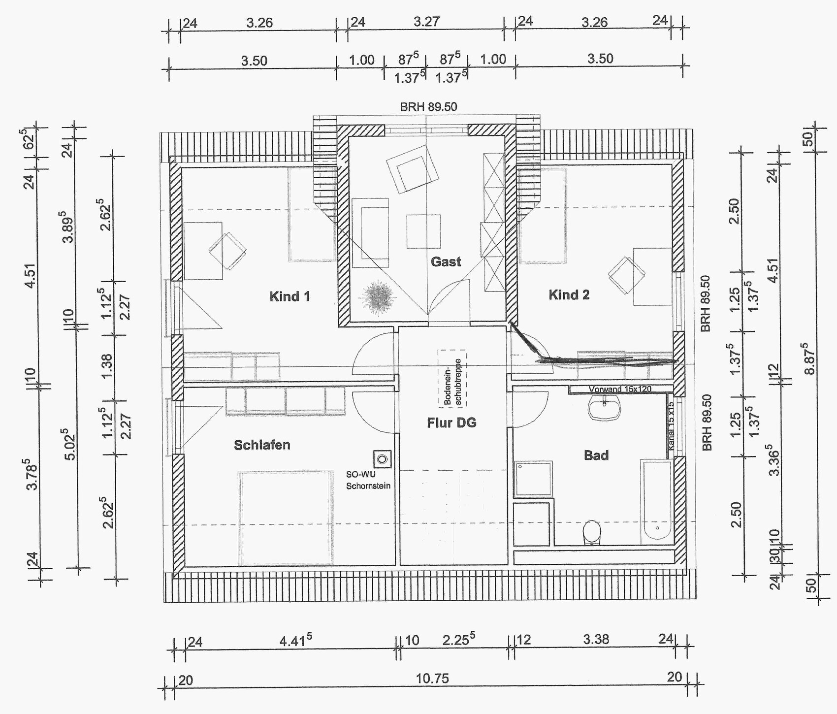
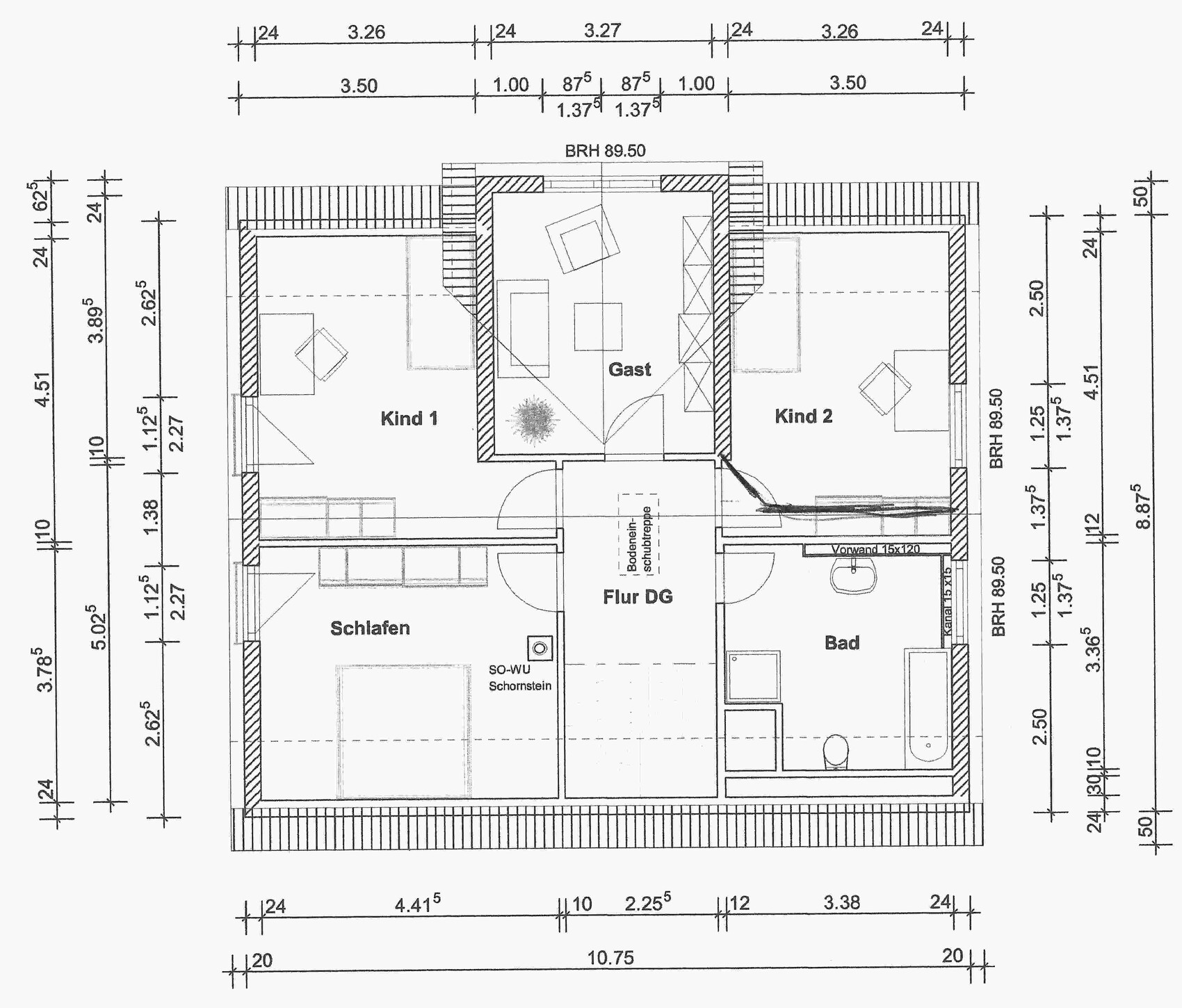
Raumbedarf im EG, OG: siehe Grundriss
Büro: Familiennutzung oder Homeoffice? Homeoffice (arbeite von zu Hause)
Schlafgäste pro Jahr: ca. 15-20
offene oder geschlossene Architektur: relativ offen
konservativ oder moderne Bauweise: modern?
offene Küche, Kochinsel: offene Küche, keine Insel
Anzahl Essplätze: 6-8
Kamin: später
Musik/Stereowand:
Balkon, Dachterrasse: nein
Garage, Carport: ja, nur das wie ist unklar. Eventuell Einzel-Carport der um Garage erweitert wird
Nutzgarten, Treibhaus: klassisches Tomaten- und Erdbeerbeet
weitere Wünsche/Besonderheiten/Tagesablauf: durch Heimarbeit ist die räumliche Trennung zwingend erforderlich. Meine Frau hat zum Teil Nachtschichten, daher auch notwendig mal schlafen zu können unter Tages
Hausentwurf
Von wem stammt die Planung: "von der Stange", eigene Ideen
Was gefällt besonders? die 4 Zimmer im OG, der offene Wohn-/Ess-/Kochbereich
Was gefällt nicht? der aktuelle Grundriss oben
Preisschätzung lt Architekt/Planer:
Persönliches Preislimit fürs Haus, inkl Ausstattung:
favorisierte Heiztechnik: aktuell Luft-Wasser-Wärmepumpe, bin aber nicht festgelegt
Wenn Ihr verzichten müsst, auf welche Details/Ausbauten
-könnt Ihr verzichten: Garage/Carport
-könnt Ihr nicht verzichten: Keller, Homeoffice, Speisekammer
In unser eigenen Planung haben wir im EG die Türen zu Büro und Bad auf 1 m geplant um Barrierefreiheit zu schaffen.
Im Wohnzimmer sind wir noch unsicher bezüglich der großen Fensterfront.
Für das OG bekommen wir in Kürze einen anderen Grundriss (aus einem Musterhaus) der uns wesentlich besser gefällt.
Ich bin sehr gespannt was ihr zu unserer EG Planung sagt und ob es noch Vorschläge für oben gibt.
Bei Fragen zu den Notizen, immer her damit.
Viele Grüße
Robin





ich möchte gerne unsere aktuelle Planung unseres Hauses vorstellen und gerne Ideen dazu hören/lesen
Bebauungsplan/Einschränkungen
Größe des Grundstücks: 436 m²
Hang: nein, eben
Grundflächenzahl: 0,4
Geschossflächenzahl: k.a.
Baufenster, Baulinie und -grenze: frei auf dem Grundstück, lediglich 3m Abstand
Randbebauung
Anzahl Stellplatz: 2 Stellplätze
Geschossigkeit: 2 Vollgeschosse
Dachform: alles erlaubt ab 20°
Stilrichtung: frei
Ausrichtung:
Maximale Höhen/Begrenzungen: 11m
weitere Vorgaben
Anforderungen der Bauherren
Stilrichtung, Dachform, Gebäudetyp: klassisch, Satteldach (45°)
Keller, Geschosse: Keller, Erdgeschoss, Obergeschoss
Anzahl der Personen, Alter: 36, 35, 2,5 (Nummer 2 ist in Planung und gewünscht)
Raumbedarf im EG, OG: siehe Grundriss
Büro: Familiennutzung oder Homeoffice? Homeoffice (arbeite von zu Hause)
Schlafgäste pro Jahr: ca. 15-20
offene oder geschlossene Architektur: relativ offen
konservativ oder moderne Bauweise: modern?
offene Küche, Kochinsel: offene Küche, keine Insel
Anzahl Essplätze: 6-8
Kamin: später
Musik/Stereowand:
Balkon, Dachterrasse: nein
Garage, Carport: ja, nur das wie ist unklar. Eventuell Einzel-Carport der um Garage erweitert wird
Nutzgarten, Treibhaus: klassisches Tomaten- und Erdbeerbeet
weitere Wünsche/Besonderheiten/Tagesablauf: durch Heimarbeit ist die räumliche Trennung zwingend erforderlich. Meine Frau hat zum Teil Nachtschichten, daher auch notwendig mal schlafen zu können unter Tages
Hausentwurf
Von wem stammt die Planung: "von der Stange", eigene Ideen
Was gefällt besonders? die 4 Zimmer im OG, der offene Wohn-/Ess-/Kochbereich
Was gefällt nicht? der aktuelle Grundriss oben
Preisschätzung lt Architekt/Planer:
Persönliches Preislimit fürs Haus, inkl Ausstattung:
favorisierte Heiztechnik: aktuell Luft-Wasser-Wärmepumpe, bin aber nicht festgelegt
Wenn Ihr verzichten müsst, auf welche Details/Ausbauten
-könnt Ihr verzichten: Garage/Carport
-könnt Ihr nicht verzichten: Keller, Homeoffice, Speisekammer
In unser eigenen Planung haben wir im EG die Türen zu Büro und Bad auf 1 m geplant um Barrierefreiheit zu schaffen.
Im Wohnzimmer sind wir noch unsicher bezüglich der großen Fensterfront.
Für das OG bekommen wir in Kürze einen anderen Grundriss (aus einem Musterhaus) der uns wesentlich besser gefällt.
Ich bin sehr gespannt was ihr zu unserer EG Planung sagt und ob es noch Vorschläge für oben gibt.
Bei Fragen zu den Notizen, immer her damit.
Viele Grüße
Robin
2 Dinge die mir aufgefallen sind bzw. nicht so ganz erschließen:
Auf dem 1. Blick habt ihr im EG viel Verkehrsfläche (Flur). Ich würde doch versuchen, jeden cm sinnvoll zu nutzen. Welchen Sinn macht es da z.B. die Treppe um Eck zu legen. Warum nicht im Eingangsbereich mitplanen. Da kann man doch auch geschickt planen, wenn man z.B. die Treppe nicht sehen möchte, wenn man zur Türe rein kommt.
Warum um Himmels Willen eine Speisekammer zur Küche. Ihr plant doch mit Keller? Dazu eine Speisekammer, die mehr sinnfrei ist. bei 120 cm Breite kannst du nur eine Seite nutzen. Denke dir mal diesen Schlauch raus und plane einfach 1-2 Hochschränke in der Küche mit ein. Der aktuelle Entwurf macht u.a. die untere Ecke in der Küche sinnfrei, Anschlag Tür und Zugang zur Speisekammer. Cancelst Du z.B. die Speisekammer und setzt die Tür mittig, so könnte man die ganze rechte Wand zur Küche nutzen und mit 2 Hochschränken mehr Stauraum bekommen, als die jetzige Speisekammer.
Auf dem 1. Blick habt ihr im EG viel Verkehrsfläche (Flur). Ich würde doch versuchen, jeden cm sinnvoll zu nutzen. Welchen Sinn macht es da z.B. die Treppe um Eck zu legen. Warum nicht im Eingangsbereich mitplanen. Da kann man doch auch geschickt planen, wenn man z.B. die Treppe nicht sehen möchte, wenn man zur Türe rein kommt.
Warum um Himmels Willen eine Speisekammer zur Küche. Ihr plant doch mit Keller? Dazu eine Speisekammer, die mehr sinnfrei ist. bei 120 cm Breite kannst du nur eine Seite nutzen. Denke dir mal diesen Schlauch raus und plane einfach 1-2 Hochschränke in der Küche mit ein. Der aktuelle Entwurf macht u.a. die untere Ecke in der Küche sinnfrei, Anschlag Tür und Zugang zur Speisekammer. Cancelst Du z.B. die Speisekammer und setzt die Tür mittig, so könnte man die ganze rechte Wand zur Küche nutzen und mit 2 Hochschränken mehr Stauraum bekommen, als die jetzige Speisekammer.
Sinnvoll ist es immer, die Grundrisse so auszurichten, wie sie dann auch auf dem Grundstück liegen sollen. Ansonsten wenigstens einen Nordpfeil etc. einzeichnen. Ich gehe davon aus, der Lageplan ist genordet. Auch mal Terrasse einzeichnen.
Ich kann aber schon mal feststellen, der Zugang zur Speisekammer zerhaut dir gute Stellmöglichkeiten in der Küche und damit kommen wir zum nächsten Punkt, am besten auch immer mal ein bisschen Einrichtung in den Grundrissen andeuten. Wir kennen euch nicht und wissen nicht, wie ihr euch das vorstellt. Und oft passen eben Vorstellungen und Grundriss nicht zueinander, was man dann viel besser erkennen kann.
Ebenfalls sinnvoll ist die Bemaßung der Grundrisse, auch der abgewandelten.
Zu den Geschossen ... 2 Vollgeschosse und dann noch ein 45° Satteldach? Das wird aber sehr hoch und paßt auch nicht zum Grundriss vom OG. Soll der entstehende Spitzboden noch genutzt werden?
Ich kann aber schon mal feststellen, der Zugang zur Speisekammer zerhaut dir gute Stellmöglichkeiten in der Küche und damit kommen wir zum nächsten Punkt, am besten auch immer mal ein bisschen Einrichtung in den Grundrissen andeuten. Wir kennen euch nicht und wissen nicht, wie ihr euch das vorstellt. Und oft passen eben Vorstellungen und Grundriss nicht zueinander, was man dann viel besser erkennen kann.
Ebenfalls sinnvoll ist die Bemaßung der Grundrisse, auch der abgewandelten.
Zu den Geschossen ... 2 Vollgeschosse und dann noch ein 45° Satteldach? Das wird aber sehr hoch und paßt auch nicht zum Grundriss vom OG. Soll der entstehende Spitzboden noch genutzt werden?
Was wollt ihr denn jetzt? Offene oder geschlossene Küche? Bei beiden Alternativen reicht die Küchenzeile nicht aus bzw wird einem Einfamilienhaus nicht gerecht. Barrierefreiheit wofür? AZ im EG ist zu klein für ein Schlafzimmer für 2.
Gast soll wo duschen? Ich würde also Gast und Büro tauschen, wenn nicht sogar den Gast mit Bad nach unten verfrachten - die Kinder werden die Wohnmöglichkeit im Keller irgendwann lieben. Mir fehlen Abstellräume im EG und OG, alles ist sehr konservativ, aber nicht unbedingt praktisch. Ausgang zu den Erdbeeren von der Küche aus fehlt. Treppe ist für das Haus auch nicht angemessen, eher dort eine komfortable Podesttreppe. SK ist zu schmal. Viel Gästebewirtung durch zwei Türen und Diele wäre auch nicht praktisch.
Schlafzimmer ohne adäquaten Schrankplatz und dann noch neben Kinderzimmer... Das ganze OG ist nicht ausgereift.
Küche und Ess gen Norden, im Süden kaum ein Fenster und das Treppenhaus sowie Speis ... ???
Gast soll wo duschen? Ich würde also Gast und Büro tauschen, wenn nicht sogar den Gast mit Bad nach unten verfrachten - die Kinder werden die Wohnmöglichkeit im Keller irgendwann lieben. Mir fehlen Abstellräume im EG und OG, alles ist sehr konservativ, aber nicht unbedingt praktisch. Ausgang zu den Erdbeeren von der Küche aus fehlt. Treppe ist für das Haus auch nicht angemessen, eher dort eine komfortable Podesttreppe. SK ist zu schmal. Viel Gästebewirtung durch zwei Türen und Diele wäre auch nicht praktisch.
Schlafzimmer ohne adäquaten Schrankplatz und dann noch neben Kinderzimmer... Das ganze OG ist nicht ausgereift.
Küche und Ess gen Norden, im Süden kaum ein Fenster und das Treppenhaus sowie Speis ... ???
R
RobsonMKK23.03.16 21:48MarcWen schrieb:
Warum um Himmels Willen eine Speisekammer zur Küche. Ihr plant doch mit Keller? Dazu eine Speisekammer, die mehr sinnfrei ist. bei 120 cm Breite kannst du nur eine Seite nutzen. Denke dir mal diesen Schlauch raus und plane einfach 1-2 Hochschränke in der Küche mit ein. Der aktuelle Entwurf macht u.a. die untere Ecke in der Küche sinnfrei, Anschlag Tür und Zugang zur Speisekammer. Cancelst Du z.B. die Speisekammer und setzt die Tür mittig, so könnte man die ganze rechte Wand zur Küche nutzen und mit 2 Hochschränken mehr Stauraum bekommen, als die jetzige Speisekammer.Ich werde die Küche morgen einbauen, dann wird es klar werden. Vorher macht es wenig Sinn über Sinnfreiheit zu sprechen.
kbt09 schrieb:
Sinnvoll ist es immer, die Grundrisse so auszurichten, wie sie dann auch auf dem Grundstück liegen sollen. Ansonsten wenigstens einen Nordpfeil etc. einzeichnen. Ich gehe davon aus, der Lageplan ist genordet. Auch mal Terrasse einzeichnen.Ähm, ja, den habe ich tatsächlich vergessen. Norden vom Grundstück liegt in der Kurve. Ich hatte eigentlich einen anderen Plan gesucht, aber nicht gefunden in meinen unterlagen. Erker des Hauses zeigt nach planoben, Hauseingang ist demnach geplant planrechts.
kbt09 schrieb:
ch kann aber schon mal feststellen, der Zugang zur Speisekammer zerhaut dir gute Stellmöglichkeiten in der Küche und damit kommen wir zum nächsten Punkt, am besten auch immer mal ein bisschen Einrichtung in den Grundrissen andeuten. Wir kennen euch nicht und wissen nicht, wie ihr euch das vorstellt. Und oft passen eben Vorstellungen und Grundriss nicht zueinander, was man dann viel besser erkennen kann.kbt09 schrieb:
Ebenfalls sinnvoll ist die Bemaßung der Grundrisse, auch der abgewandelten.Hier gelobe ich Besserung und werde die Maße im individuellen Grundriss nachtragen.
Ebenso die Küche wie wir sie geplant haben werde ich einzeichnen.
kbt09 schrieb:
Zu den Geschossen ... 2 Vollgeschosse und dann noch ein 45° Satteldach? Das wird aber sehr hoch und paßt auch nicht zum Grundriss vom OG. Soll der entstehende Spitzboden noch genutzt werden?Missverständnis! Die 2 Vollgeschosse beziehen sich erst mal auf das erlaubte.
Wir planen 1,5 Geschosse (wobei das OG hier als Vollgeschoss zählt). Dabei entsteht noch ein Dachboden mit einer Höhe in der Mitte von etwa 2,20m
ypg schrieb:
Was wollt ihr denn jetzt? Offene oder geschlossene Küche? Bei beiden Alternativen reicht die Küchenzeile nicht aus bzw wird einem Einfamilienhaus nicht gerecht.Wie oben schon geschrieben, ich werde morgen die Küche "nachpflegen". Dann können wir darüber diskutieren ob sie einem Einfamilienhaus gerecht wird oder nicht.
Der bemessene Grundriss ist das Original, der ohne ist unsere Vorstellung, also offen.
ypg schrieb:
AZ im EG ist zu klein für ein Schlafzimmer für 2Das Zimmer hat etwa 12 m², dass reicht problemlos für ein Schlafzimmer.
ypg schrieb:
Gast soll wo duschen? Ich würde also Gast und Büro tauschen, wenn nicht sogar den Gast mit Bad nach unten verfrachten - die Kinder werden die Wohnmöglichkeit im Keller irgendwann lieben.a) der Keller ist kein Wohnkeller
b) der Gast darf durchaus unser Bad benutzen, dass ist heute so und wird sich auch nicht ändern
c) wie oben bereits geschrieben, dass AZ soll räumlich getrennt von den Kinderzimmern sein
ypg schrieb:
Mir fehlen Abstellräume im EG und OG, alles ist sehr konservativ, aber nicht unbedingt praktisch.Mir nicht aber ich denke da ist jeder Jeck anders.
Ich bin gerne für praktische Tipps und Vorschläge offen.
ypg schrieb:
Ausgang zu den Erdbeeren von der Küche aus fehlt.Da wir ja noch nicht drüber gesprochen haben wo die Erdbeeren hinkommen, fehlt auch kein Ausgang. Ursprünglich waren in der Küche zwei bodentiefe Fenster, die möchten wir aber nicht.
ypg schrieb:
Treppe ist für das Haus auch nicht angemessen, eher dort eine komfortable Podesttreppe.Da hätte ich gerne etwas mehr Erklärung. Warum ist die Treppe dem Haus nicht angemessen?
ypg schrieb:
SK ist zu schmal.Die SK ist bereits virtuell bestückt und ist nicht zu schmal. Es kommt eine Schiebetür rein und damit passt das dann.
ypg schrieb:
Viel Gästebewirtung durch zwei Türen und Diele wäre auch nicht praktisch.Das verstehe ich ehrlich gesagt nicht. Die Idee der zweiten Küchentür ist das man nicht immer ganz rum durch das Wohnzimmer laufen muss, z.B. mit Einkäufen.
ypg schrieb:
Schlafzimmer ohne adäquaten Schrankplatz neben Kinderzimmer... Das ganze OG ist nicht ausgereift.Wie oben erwähnt, hier kommt demnächst ein andere Grundriss der besser, durchdachter ist.
ypg schrieb:
Küche und Ess gen Norden, im Süden kaum ein Fenster und das Treppenhaus sowie SpeisKüche/Ess gen NW. Es kommt ein Doppelflügelfenster ins Treppenhaus. In der Sofaecke ist bewusst kein weiteres Fenster.
Danke euch schon mal für euer Feedback!
Dann mach man erst mal Deine Hausaufgaben und stell einen Entwurf rein, der auch zu diskutieren ist. Vermaßung und _Aktualität_
Zu wenigen Punkten: wozu eine Dusche im EG, wenn der Gast das Familienbad benutzen soll? Und darf der Gast auch mal älter und anspruchsvoller werden? Ich würd mir kein Bad mehr teilen wollen, zumindest nicht in einem 4-Personenhaushalt.
Wenn ihr im EG Barrierefreiheit plant, dann wohl deshalb, um ggf im EG ein Schlafzimmer einzurichten : funktioniert aber auf 12qm mit einem Raum, in dem 3 Wände durch Türen und Fenster verbaut sind, keine Schrankfläche zur Verfügung steht, nicht!
Und wer wird Euer Putzzeug tagtäglich aus dem Keller holen?
So ein Thread gibt mir Grund, darüber nachzudenken, ob ich meine Erfahrungen überhaupt noch mitteilen werde .
Zu wenigen Punkten: wozu eine Dusche im EG, wenn der Gast das Familienbad benutzen soll? Und darf der Gast auch mal älter und anspruchsvoller werden? Ich würd mir kein Bad mehr teilen wollen, zumindest nicht in einem 4-Personenhaushalt.
Wenn ihr im EG Barrierefreiheit plant, dann wohl deshalb, um ggf im EG ein Schlafzimmer einzurichten : funktioniert aber auf 12qm mit einem Raum, in dem 3 Wände durch Türen und Fenster verbaut sind, keine Schrankfläche zur Verfügung steht, nicht!
Und wer wird Euer Putzzeug tagtäglich aus dem Keller holen?
So ein Thread gibt mir Grund, darüber nachzudenken, ob ich meine Erfahrungen überhaupt noch mitteilen werde .
Ähnliche Themen