ᐅ Unser Hausentwurf mit 259qm Wohnfläche EG und OG, Doppelgarage
Erstellt am: 04.03.18 12:47
M
munger71Nachdem ich schon sehr viele Grundrisse hier gesehen habe möchte ich Euch unser Projekt mal vorstellen. Das Haus befindet sich bereits im Bau und wir bekommen bald den Estrich.
Größe des Grundstücks: ca. 800 qm
Hang ja
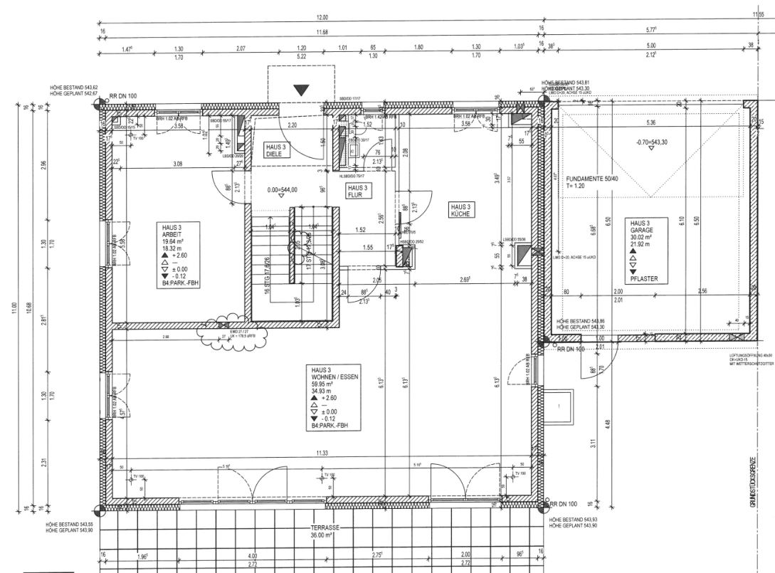
Anzahl Stellplatz 3
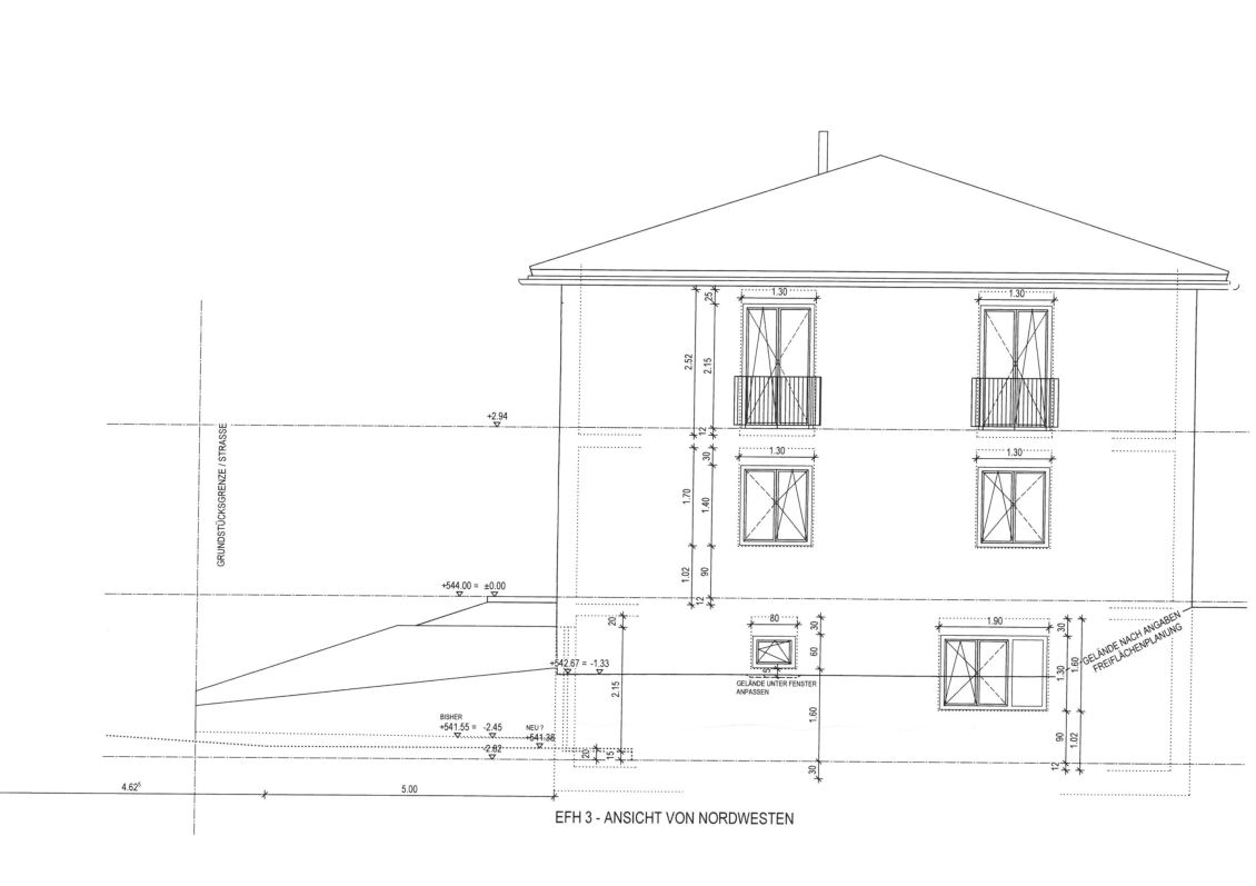
Dachform Walmdach
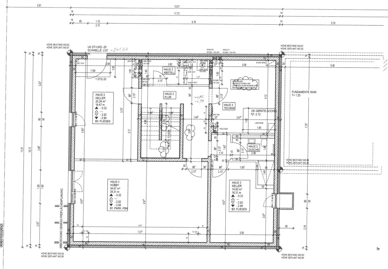
Keller ja
Geschosse EG und OG
Anzahl der Personen, Alter: 2 Erwachsene und 2 Kinder
Doppelgarage







Größe des Grundstücks: ca. 800 qm
Hang ja
Anzahl Stellplatz 3
Dachform Walmdach
Keller ja
Geschosse EG und OG
Anzahl der Personen, Alter: 2 Erwachsene und 2 Kinder
Doppelgarage
Ich weiß zwar auch nicht so recht, was du dir erhoffst, aber gerne teile ich mal meinen Eindruck. Wobei ich nicht weiß wohin das führen soll, wenn der Plan eh fix ist.
Erster Eindruck:
Es ist definitiv groß.
Ansicht von Norden gefällt mir nicht. Glas könnte größer sein, Formatmix, kleine Fensterchen für Bäder ... Höhenunterschiede mit Rampen, Stufen, Abgrabung für Keller ... hmm.
Kanickelgitter vor bodentiefen Fenstern im OG ist nicht meins.
Flur unten ist mir zu schnörkelig, wird der Großzügigkeit des Hauses nicht gerecht.
Fenster an der Empore kannst auch fest machen, wirst du eh nie öffnen.
Bad 1 im OG verdient einen Reset-Knopf, da passt für mich ehrlich gesagt gar nichts. Die Wanne ist im Weg und verbrennt massig Fläche, Durchgang zur Dusche zu eng, waschtisch beengt, Handtuchheizkörper maximal weit von Dusche und Waschtisch entfernt. Begehbare Dusche ist zu klein, wird ne schöne Überschwemmung, wenn da keine Tür hinein kommt.
Drei Türen in einem Bad hab ich noch nicht gesehen
Bad 2 im OG etwas kuschelig. Die Wand der begehbaren Dusche ist zu kurz, dort wirds schön nass werden (gleiches Schicksal wie Bad 1). Offen würd ich die nicht lassen, da muss imho eine Glastür davor.
Kind 1 und 2 hätte man problemlos gleich groß machen können.
Schlafzimmer in der Aufteilung zu groß, da ist zwischen Bett und Fenster einfach nur leere Fläche. Großzügigkeit schön und gut, dann passt aber der Zugang von der Breite nicht ins Konzept.
Ist Kinderzimmer 3 als solches auch vorgesehen? Falls ja, warum dann so klein? Falls nein, wozu ist der Raum sonst da? Es wirkt, als wäre der Raum schlicht über, da er offenbar nicht den gleichen Regeln unterlag, mit denen andere Zimmer gestaltet wurden.
Ein typisches Einfamilienhaus für Vier hat 150-160qm. Dieser Entwurf hat 260qm? Dafür hat er ein kleines Kinderbad und ein kleines drittes Kinderzimmer mehr, als ein typischer Einfamilienhaus Grundriss. Wo ist der Rest geblieben?
Letzter Eindruck:
Man hätte Fläche im hohen Gegenwert einsparen können, ohne dies wirklich zu merken imho.
Erster Eindruck:
Es ist definitiv groß.
Ansicht von Norden gefällt mir nicht. Glas könnte größer sein, Formatmix, kleine Fensterchen für Bäder ... Höhenunterschiede mit Rampen, Stufen, Abgrabung für Keller ... hmm.
Kanickelgitter vor bodentiefen Fenstern im OG ist nicht meins.
Flur unten ist mir zu schnörkelig, wird der Großzügigkeit des Hauses nicht gerecht.
Fenster an der Empore kannst auch fest machen, wirst du eh nie öffnen.
Bad 1 im OG verdient einen Reset-Knopf, da passt für mich ehrlich gesagt gar nichts. Die Wanne ist im Weg und verbrennt massig Fläche, Durchgang zur Dusche zu eng, waschtisch beengt, Handtuchheizkörper maximal weit von Dusche und Waschtisch entfernt. Begehbare Dusche ist zu klein, wird ne schöne Überschwemmung, wenn da keine Tür hinein kommt.
Drei Türen in einem Bad hab ich noch nicht gesehen
Bad 2 im OG etwas kuschelig. Die Wand der begehbaren Dusche ist zu kurz, dort wirds schön nass werden (gleiches Schicksal wie Bad 1). Offen würd ich die nicht lassen, da muss imho eine Glastür davor.
Kind 1 und 2 hätte man problemlos gleich groß machen können.
Schlafzimmer in der Aufteilung zu groß, da ist zwischen Bett und Fenster einfach nur leere Fläche. Großzügigkeit schön und gut, dann passt aber der Zugang von der Breite nicht ins Konzept.
Ist Kinderzimmer 3 als solches auch vorgesehen? Falls ja, warum dann so klein? Falls nein, wozu ist der Raum sonst da? Es wirkt, als wäre der Raum schlicht über, da er offenbar nicht den gleichen Regeln unterlag, mit denen andere Zimmer gestaltet wurden.
Ein typisches Einfamilienhaus für Vier hat 150-160qm. Dieser Entwurf hat 260qm? Dafür hat er ein kleines Kinderbad und ein kleines drittes Kinderzimmer mehr, als ein typischer Einfamilienhaus Grundriss. Wo ist der Rest geblieben?
Letzter Eindruck:
Man hätte Fläche im hohen Gegenwert einsparen können, ohne dies wirklich zu merken imho.
munger71 schrieb:
Nachdem ich schon sehr viele Grundrisse hier gesehen habe... erstaunt mich offen gestanden das Ergebnis. Und insofern macht fast traurig zu lesen,munger71 schrieb:
Das Haus befindet sich bereits im Bau und wir bekommen bald den Estrich.Warum hast Du Dich nicht mal gemeldet, als noch etwas zu retten war ?Die genannte Flächengröße sehe ich dem Entwurf nirgends an, aber vor allem: diese Stadtvilla leidet offenbar in höchstem Grad an Phantasieentzug. Auch eine Art von Minimalismus, wenn man so will
https://www.instagram.com/11antgmxde/
https://www.linkedin.com/company/bauen-jetzt/
Wo ist denn da Platz für die Garderobe?
Ich hätte viel einzubringen gehabt, wenn ich gefragt worden wäre. Ich finde das Haus in keinster Weise rund. Große Räume, aber viel unüberlegt. Meine 5qm Ankleide in meinem 135qm Haus hat mehr Schrankplatz als Eure.
Nun denn, ich bin sicher, ihr werdet glücklich in Eurem Haus
Ich hätte viel einzubringen gehabt, wenn ich gefragt worden wäre. Ich finde das Haus in keinster Weise rund. Große Räume, aber viel unüberlegt. Meine 5qm Ankleide in meinem 135qm Haus hat mehr Schrankplatz als Eure.
Nun denn, ich bin sicher, ihr werdet glücklich in Eurem Haus
Ähnliche Themen