Hausbau - Ratgeber
Bauherrenhilfe
- Bauherrenhilfe vor Vertragsabschluss
-- Warum einen unabhängigen Baubetreuer?
-- Vertragsgrundlagen
-- Bausumme
-- Zahlungsplan zur Kostenkontrolle
-- Pflichten des Bauherren vor Vertragsabschluss
-- Unterlagen beim Hausbau vor Vertragsabschluss
- Bauherrenhilfe nach Vertragsabschluss
-- Bauantrag bei Behörden
-- Bau-Genehmigungsverfahren bei Baubehörden
-- Bauspezifische Versicherungen
-- Bauzeitenplan
-- Baubeginn - die Letzten Pflichten der Bauherrschaft
- Bauherrenhilfe während der Bauzeit
- Gewährleistungsansprüche
- Bauabnahme
Baufinanzierung
- Baufinanzierung - Allgemeine Fragen
- Kreditarten
- Kredit-Konditionen
- Bausparen
- Staatliche Förderungen
- Verkehrswert
- Haushaltsrechnung und Bonität
Hausbau Planung
- Haustypen
- Hausbau Vorbereitungsarbeiten
- Das Baugrundstück
- Baugrund beim Hausbau
- Baurecht
- Gebäudeschutz
- Erdarbeiten und Wasserhaltung
- Stützmauern
- Einfriedung
- Untergeschoss
- Kanalisation
- Tragende Elemente
- Nichttragende Innenwände
- Fundation / Fundament
- Deckenkonstruktionen
- Dächer
- Kaminanlagen
- Treppen Rampen Leitern
- Dachbeläge und Spengler
- Fenster
- Sonnen und Wetterschutz
- Aussenputze
- Einbauten, Küchen, Türen
- Bodenbeläge und Unterlagsböden
- Parkett
- Gips, Wand, Decke
Haustechnik und Energie
- Heiztechnik
- Lüftung und Klimatechnik
- Sanitärtechnik
- Elektrotechnik
- Erneuerbare Energie
Whirlpools / Jacuzzi
Hausbau Magazin
- Baufinanzierung trotz Krise?
- Das Blockhaus
- Moderne Dämmstoffe im Vergleich
- Erker Vor- und Nachteile
- Glasflächen beim Hausbau
- Günstig ein Haus Bauen
- Mediterraner Hausbaustil
- Mehrgenerationenhaus
- Moderne Architektur
- Gartengestaltung leicht gemacht
- Traditioneller Ziegelbau
- Villa als höchster Traum
- Im Eigenheim Ruhestand geniessen
- Altbau sanieren
- Kauf einer Holzgarage
- Immobilienmakler
- Arbeitshandschuhe für den Winter
- Zuhause verschönern
- Outdoor-Plissees
- Schlafzimmer planen
- Terrassenüberdachung
- Wohngebäudeversicherung
- Zaunarten und Eigenschaften
- Hauseingang gestalten
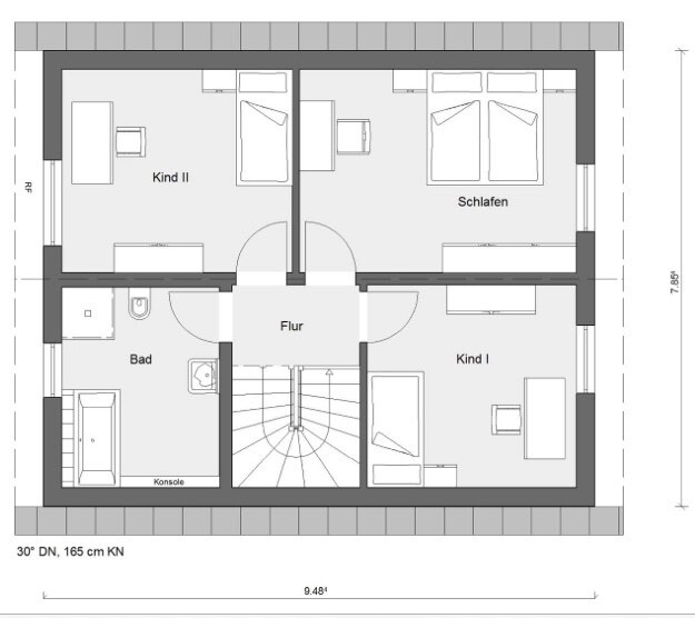
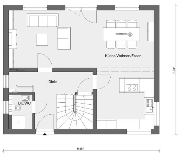
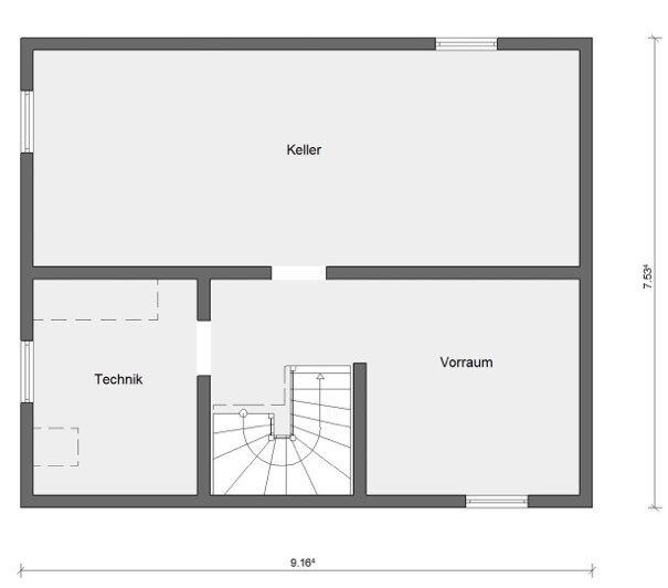
- Der perfekte Grundriss
- Sparsamer heizen im Altbau
- Einfamilienhaus smart finanzieren
- Planung einer PV-Anlage
- Neues Haus
- Immobilienfinanzierung
- Installation einer Photovoltaikanlage
- Asbest erkennen und entfernen
- Gartenpflege im Frühling – worauf achten
- Sauna im Fokus - Wellness zuhause
- Erfolgreich vermieten
- Die perfekte Winterbekleidung
- Das Niedrigenergiehaus
- Der April und seine Stürme
- Architektonische Vielfalt
- Ökologisch und nachhaltig bauen
- Das perfekte Schlafzimmer
- Nachhaltige Energieversorgung
- Zukunftsorientiert bauen
- Nachhaltigkeit beim Hausbau
- Tiny Houses
- Wärmepumpen als nachhaltige Heizvariante
- Maßgeschneiderten Kleiderschrank
- Der richtige Baukredit
- Ratgeber für erfolgreichen Hausbau
- Haus als Altersvorsorge
Do-it-yourself Anleitungen
- Verlegeanleitung für Bodenbeläge und Parkett
- Bodenbeläge und Parkett reinigen und pflegen
- Malerarbeiten am Haus
- Garten Tipps
- Umzug und Reinigung

ᐅ Unser Hanglage - Bodenplatte vs Wohnkeller


Erstellt am: 14.02.21 17:30

D
derwilder85
14.02.21 17:30
Wir haben ein Grundstück mit Hang und haben einen Wohnkeller eingeplant, der zur Hangseitig dann bodentiefe Fenster erhält.
Würdet ihr bei diesem Gefälle einen Keller oder eine Bodenplatte mit Hangabsicherung bauen?
Unser aktueller Baukörper ist 9,12m*8,5m.
Auf 8,5m gibt es ein Gefälle von ca. 1,8m.

Ich habe euch in den Anhang die Vermessungsergebnisse (Flur 1295) mit Höhenprofil und unsere Überlegung zur Platzierung des Hauses eingefügt.
Grundsätzlich würden wir lieber mit Bodenplatte "größer" mit Holzständerwerk bauen und einen Betonkeller vermeiden.
Ich freue mich auf eure Ideen.

Bodengutachten ist leider noch in Arbeit.
P.S.
Tiefbauer würde mir Keller empfehlen, aber das würde ich auch an seiner Stelle.

Lageplan: Grundstück 1295 mit blauem Umriss, Straßenführung, Wegen und Markierungen.


Liegenschaftskarte mit Parzellen 1295 und 1297, blaue Umrisse, Straße und Höhenangaben.
1
11ant
14.02.21 22:05
derwilder85 schrieb:

Wir haben ein Grundstück mit Hang und haben einen Wohnkeller eingeplant, [...] Auf 8,5m gibt es ein Gefälle von ca. 1,8m.
Das ist sehr vernünftig, da meine Kellerregel hier bekanntlich eindeutig "pro Keller" votiert. Hier auf einen Keller zu "verzichten", wäre ein Pyrrhussieg, wie er im Buche stünde.
https://www.instagram.com/11antgmxde/
https://www.linkedin.com/company/bauen-jetzt/
H
haydee
14.02.21 22:16
Wohnkeller. Wird allerdings mit Holzständer im UG nicht so einfach. Zumindest hat es bei uns nicht funktioniert
F
fab101
14.02.21 22:42
Grenzfall, ich denke, man bekommt beides hin. Hängt auch ein gutes Stück davon ab, wie ihr den Garten & Terrasse anlegen wollt und wie/wo euer Wohnzimmer ist.
H
hampshire
15.02.21 10:28
Die Wahl hängt von Budget und Wohnpräferenz ab. Der Wohnkeller dürfte letztlich günstiger sein, da der Baukörper kompakt bleibt. Die Geländebewegungen für eine Bodenplatte inklusive Dämmung und Hang abfangen sind nicht ohne. Wir haben uns gegen den Wohnkeller entschieden - daraus kann man aber keine allgemeine Empfehlung ableiten.
H
haydee
15.02.21 10:32
@hampshire du hast auch nicht aufgefüllt
wohnkellerbodenplattehanggefällebaukörper