P
PETERGLUTH17.06.16 12:34Hallo,
Wir haben vor diese Jahr noch zu bauen, Grundstück haben wir schon, wir feilen jetzt an unserem Grundriss von unserem Traumhaus. Wohnfläche ca.150 m² + Doppelgarage.
-im Anhang zwei Grundrisse
Hier sind die Sachen was wir momentan machen würden.
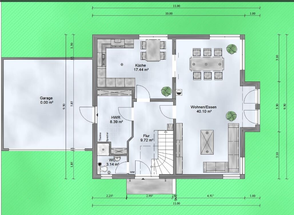
Im Erdgeschoss sollen folgende Räume entstehen:
-Wohn- und Esszimmer mit Kamin
-Küche mit 2 Schiebetüren zu m Essbereich
-Gäste-WC mit Dusche
-Haustechnikraum und Abstellkammer zusammen
-Diele/ Eingangsbereích
Im Obergeschoss hätten wir gerne folgende Räumlichkeiten:
-Elternschlafzimmer
-Kinderzimmer 1
-Kinderzimmer 2
-Bad
Was haltet Ihr von dem Plan? Über Anregungen wären wir sehr dankbar
[U]Ich möchte einfach mal paar Meinungen, Kritikpunkte, Überlegungen
Was würdet ihr anders machen, weils zB aus eigener Erfahrung unpraktisch ist
Besten Dank schon mal ![/U]

Wir haben vor diese Jahr noch zu bauen, Grundstück haben wir schon, wir feilen jetzt an unserem Grundriss von unserem Traumhaus. Wohnfläche ca.150 m² + Doppelgarage.
-im Anhang zwei Grundrisse
Hier sind die Sachen was wir momentan machen würden.
Im Erdgeschoss sollen folgende Räume entstehen:
-Wohn- und Esszimmer mit Kamin
-Küche mit 2 Schiebetüren zu m Essbereich
-Gäste-WC mit Dusche
-Haustechnikraum und Abstellkammer zusammen
-Diele/ Eingangsbereích
Im Obergeschoss hätten wir gerne folgende Räumlichkeiten:
-Elternschlafzimmer
-Kinderzimmer 1
-Kinderzimmer 2
-Bad
Was haltet Ihr von dem Plan? Über Anregungen wären wir sehr dankbar
[U]Ich möchte einfach mal paar Meinungen, Kritikpunkte, Überlegungen
Was würdet ihr anders machen, weils zB aus eigener Erfahrung unpraktisch ist
Besten Dank schon mal ![/U]
T
thelastscout8517.06.16 13:16Wir planen von der Größe und vom Grundriss (ungefähr) das selbe. Wir haben auch eine Doppelgarage und einen direkten Zugang dazu. Bei eurem Plan würde mich persönlich stören, das ich jedes Mal durch den Hauswirtschaftsraum müsste um in Garage zu kommen. Wir planen einen Anbau hinter die Garage etwa 2meter tief und so breit wie die Garage. In diesen kommt bei uns der Technik- und Waschraum. So haben wir den freien Raum im Haus als Gästezimmer/Büro zur Verfügung.
Hallo,
mir würde ein Fenster im Flur unten fehlen, um zu sehen wer vor der Türe steht. Dann sehe ich keinen richtigen Platz für eine Garderobe. Der Aufgang nach oben liegt direkt neben dem Eingang. Wenn man dort immer mit dreckigen Schuhen reinkommt, ist es eben meistens nie ganz sauber dort. Beim Hochgehen mit Socken läuft man also immer dort durch. Die Essecke in der Küche sieht ganz schön knapp aus, dafür hat man darunter viel ungenutzten Platz.
LG
Sabine
mir würde ein Fenster im Flur unten fehlen, um zu sehen wer vor der Türe steht. Dann sehe ich keinen richtigen Platz für eine Garderobe. Der Aufgang nach oben liegt direkt neben dem Eingang. Wenn man dort immer mit dreckigen Schuhen reinkommt, ist es eben meistens nie ganz sauber dort. Beim Hochgehen mit Socken läuft man also immer dort durch. Die Essecke in der Küche sieht ganz schön knapp aus, dafür hat man darunter viel ungenutzten Platz.
LG
Sabine
Ich könnte mir vorstellen, dass euer Hauswirtschaftsraum zu klein ist, wenn dort auch noch die Heizungsanlage mit untergebracht werden soll und eventuell sogar noch Waschmaschine und ein Trockner. Außerdem wäre mir persönlich wichtig, das auch im Hauswirtschaftsraum ein Fenster ist, dieses habe ich bei euch jetzt auf den ersten Blick nicht gesehen.
Falls ihr im Hauswirtschaftsraum auch die Wäsche wascht und ihr diese gerne im Sommer draußen im Garten zum trocknen aufhängt, würde ich mir auch Gedanken über die Wege vom Hauswirtschaftsraum zum Garten machen (falls der Garten nur über das Wohn- Esszimmer zu erreichen ist könnte das doch sehr umständlich mit Wäsche sein).
Wie bereits angesprochen fehlt mir hier ebenfalls ein für vier Personen entsprechend großer Garderobenplatz.
Falls ihr im Hauswirtschaftsraum auch die Wäsche wascht und ihr diese gerne im Sommer draußen im Garten zum trocknen aufhängt, würde ich mir auch Gedanken über die Wege vom Hauswirtschaftsraum zum Garten machen (falls der Garten nur über das Wohn- Esszimmer zu erreichen ist könnte das doch sehr umständlich mit Wäsche sein).
Wie bereits angesprochen fehlt mir hier ebenfalls ein für vier Personen entsprechend großer Garderobenplatz.
D
DragonyxXL17.06.16 13:38Könnte man nicht den Baum in der Küche entfernen und den Platz dem Flur als Garderobe zuschlagen?
Nichts Aufregendes, vermutlich die Standardanforderungen von 60% der heutigen Bauherren. Da sollte es doch eine Menge guter und erprobter Standardpläne passen.
Solange sich der TE nicht die Mühe macht und den gewünschten Grundriss-Thread liest und umsetzt, wird es hier wohl kaum Antworten geben.
Solange sich der TE nicht die Mühe macht und den gewünschten Grundriss-Thread liest und umsetzt, wird es hier wohl kaum Antworten geben.
Ähnliche Themen