B
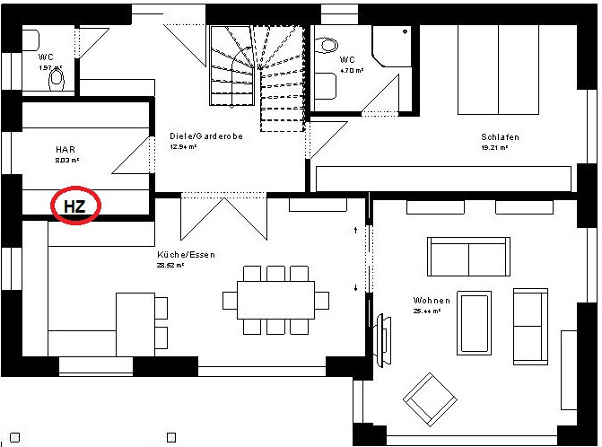
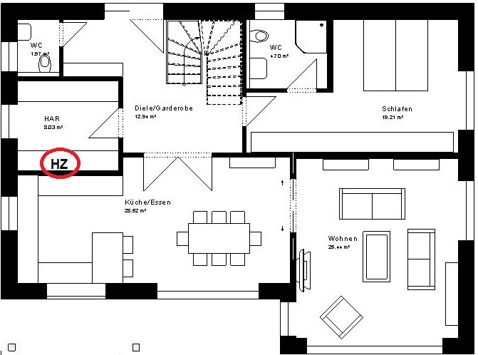
Baumwiese25.10.16 22:02Nachdem ich hier nun eine ganze Weile still mitgelesen habe, möchte ich jetzt auch einmal um Anregungen bzw Kritik bitten. Im Grunde sind wir mit dem Grundriss schon recht zufrieden, die einzige Ecke, die mir noch ein Dorn im Auge ist, ist die große "tote" Fläche zwischen Wohn- und Essbereich, Richtung Terrasse. Hier geht viel Platz für "nichts" verloren, vielleicht hat noch jemand eine tolle Idee was man daraus machen bzw. wie man das ändern könnte oder generell noch Anmerkungen zu Dingen die wir nicht bedacht haben!?
Bebauungsplan/Einschränkungen
Größe des Grundstücks: 834 qm
Größe Haus: ca 190 qm
Hang: nein
Randbebauung: Grenzbebauung mit Doppelgarage
Anzahl Stellplatz: 2 in Doppelgarage
Geschossigkeit: 2 Vollgeschosse ohne Keller
Dachform: Walmdach
Stilrichtung: Stadtvilla
Anforderungen der Bauherren
2 Erwachsene + 2 Kinder werden einziehen
Schlafgäste pro Jahr: 2-4
offene Architektur
moderne Bauweise
offene Küche
Kamin
Fußbodenheizung
Treppe nicht direkt neben der Haustür
Im Alter wohnen auf der unteren Etage möglich (Büro = Schlafzimmer)
Gäste-WC mit Dusche
Von wem stammt die Planung: Architekt/DIY
favorisierte Haustechnik: KFW 55, Sole-Wärmepumpe/Photovoltaik, Fußbodenheizung, Lüftungsanlage


Bebauungsplan/Einschränkungen
Größe des Grundstücks: 834 qm
Größe Haus: ca 190 qm
Hang: nein
Randbebauung: Grenzbebauung mit Doppelgarage
Anzahl Stellplatz: 2 in Doppelgarage
Geschossigkeit: 2 Vollgeschosse ohne Keller
Dachform: Walmdach
Stilrichtung: Stadtvilla
Anforderungen der Bauherren
2 Erwachsene + 2 Kinder werden einziehen
Schlafgäste pro Jahr: 2-4
offene Architektur
moderne Bauweise
offene Küche
Kamin
Fußbodenheizung
Treppe nicht direkt neben der Haustür
Im Alter wohnen auf der unteren Etage möglich (Büro = Schlafzimmer)
Gäste-WC mit Dusche
Von wem stammt die Planung: Architekt/DIY
favorisierte Haustechnik: KFW 55, Sole-Wärmepumpe/Photovoltaik, Fußbodenheizung, Lüftungsanlage
🙁
Gefällt mir nicht - viele Ecken und Kanten, tote Fläche... wir haben die gleiche Wohnfläche und knappe 3 Zimmer mehr
- dunkle Garderobe
- Autos fahren Bewohnern über die Füße
- Ankleide kaum möblierbar
- komische tote Fläche zwischen Wohnen und Essen
- Treppe scheint viel zu kurz
- Treppe ist zwar nicht direkt neben der Haustür, aber durch die Lage der zu kleinen Garderobe ist der Effekt ähnlich
Gefällt mir nicht - viele Ecken und Kanten, tote Fläche... wir haben die gleiche Wohnfläche und knappe 3 Zimmer mehr
- dunkle Garderobe
- Autos fahren Bewohnern über die Füße
- Ankleide kaum möblierbar
- komische tote Fläche zwischen Wohnen und Essen
- Treppe scheint viel zu kurz
- Treppe ist zwar nicht direkt neben der Haustür, aber durch die Lage der zu kleinen Garderobe ist der Effekt ähnlich
B
Baumwiese25.10.16 22:30Danke für das Feedback!
- Die Garderobe müssten wir entsprechend beleuchten
- Das mit den Autos sehen wir nicht so problematisch, da es eine ruhige Straße in einem 400-Seelen-Dorf ist
- in die Ankleide passt ein 4m Pax-Schrank, das sehen wir eigentlich als ausreichend an
- die Größe der Treppe müssen wir nochmal prüfen, Danke für den Hinweis!
- hast du eine Idee wie man die tote Ecke nutzen könnte? Kannst du mir mal deinen Grundriss zeigen?
- Die Garderobe müssten wir entsprechend beleuchten
- Das mit den Autos sehen wir nicht so problematisch, da es eine ruhige Straße in einem 400-Seelen-Dorf ist
- in die Ankleide passt ein 4m Pax-Schrank, das sehen wir eigentlich als ausreichend an
- die Größe der Treppe müssen wir nochmal prüfen, Danke für den Hinweis!
- hast du eine Idee wie man die tote Ecke nutzen könnte? Kannst du mir mal deinen Grundriss zeigen?
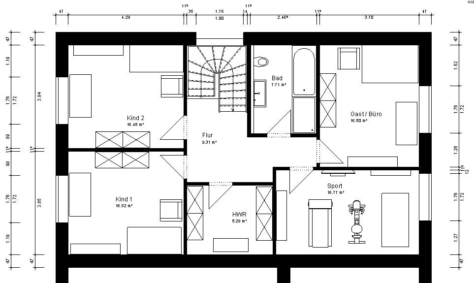
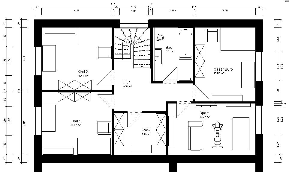
Ja komisch... mich beschlich ein komisches Gefühl, als ich den Grundriss sah. Im EG ist unserer vergleichbar :-*
Ich habe mich gefragt, warum bei uns die gerade Variante der Küche und des Essbereiches nicht ging - und, ja klar: ihr habt mehr Qm als wir. Aber auch teilweise dort, wo ich bei uns finde, dass ruhig noch mehr gekappt hätte sein können 😉
Im OG sieht man dann natürlich die Folgen: die Riesen-Zimmer, die ich absurd finde. Kinderzimmer können gut und gern 20% kleiner (ich höre schon die getippten Buchstaben a la "meine Kinder sollen es gut/besser haben" -
dann gebt Ihnen ein Spielabo am Esstisch!), das Schlafzimmer 10%, dafür eine ordentliche, also größere Ankleide.
Bad sieht sehr groß aus, von der Breite kann es nicht schaden, wenn eine richtige Wanne gestellt wird, allerdings finde ich die T-Lösung hier recht überflüssig und rate zur L-Lösung.
Ein Abstellraum hätte im OG auch etwas, daran wurde im Haus ordentlich gespart.
Und ein Eingangsbereich in der Außenanlage fehlt völlig. Da würde ich das Haus von der Garage lösen bzw. diese einen halben Meter breiter bzw das Tor nicht mittig setzen, sodass am Eingang ein ordentliches Podest Platz hat.
Grüsse
Ich habe mich gefragt, warum bei uns die gerade Variante der Küche und des Essbereiches nicht ging - und, ja klar: ihr habt mehr Qm als wir. Aber auch teilweise dort, wo ich bei uns finde, dass ruhig noch mehr gekappt hätte sein können 😉
Im OG sieht man dann natürlich die Folgen: die Riesen-Zimmer, die ich absurd finde. Kinderzimmer können gut und gern 20% kleiner (ich höre schon die getippten Buchstaben a la "meine Kinder sollen es gut/besser haben" -
dann gebt Ihnen ein Spielabo am Esstisch!), das Schlafzimmer 10%, dafür eine ordentliche, also größere Ankleide.
Bad sieht sehr groß aus, von der Breite kann es nicht schaden, wenn eine richtige Wanne gestellt wird, allerdings finde ich die T-Lösung hier recht überflüssig und rate zur L-Lösung.
Ein Abstellraum hätte im OG auch etwas, daran wurde im Haus ordentlich gespart.
Und ein Eingangsbereich in der Außenanlage fehlt völlig. Da würde ich das Haus von der Garage lösen bzw. diese einen halben Meter breiter bzw das Tor nicht mittig setzen, sodass am Eingang ein ordentliches Podest Platz hat.
Grüsse
B
Baumwiese25.10.16 23:58BeHaElJa, der Grundriss hilft mir leider wirklich nicht weiter 🙁
Über die Einfahrt/Haustür sollten wir uns nochmal Gedanken machen...
Über die Einfahrt/Haustür sollten wir uns nochmal Gedanken machen...
Ähnliche Themen