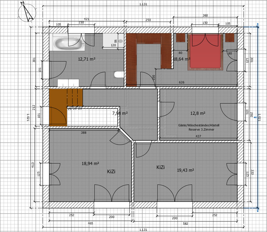
Wir hatten noch mal Termine mit GÜ-Planer und GÜ-Bauleiter und die Meinung ging Richtung zu wenig Hauswirtschaftsraum / zu wenig Stauraum. Wir haben überlegt Keller anzubauen oder doch das Haus etwas größer werden zu lassen. Präferenz doch eher Richtung größeres Haus und hier nun die aktuelle Grob-Planung. Aufgrund bebauungsplan sind wir zu einem Dachfirst gezwungen mit Mindestlänge, so dass oben ein 25°/32°-Walmdach drauf kommt. Das ganze wird als simple Binderkonstruktion ausgeführt und dient als zusätzlicher, ungedämmter Stauraum per bodeneinschubtreppe. Die Treppe ist eine Betontreppe und wird zum Hauswirtschaftsraum hin geschlossen (oberhalb der Treppe). Der Bereich darunter ist voll als Stauraum nutzbar (Podesthöhe oben ca. 2,21m, also darunter rund mehr als 2m Raumhöhe). An Technik, falls es interessiert, soll es Sole-Wärmepumpe + nebenstehender Hygienespeicher + Kontrollierte-Wohnraumlüftung + Dämmung zur Erreichung von Kfw55 werden. Waschmaschine/Trockner im Hauswirtschaftsraum; Wäscheständer bei Bedarf im Gästezimmer. Kinderwagen müsste zur Not auch mal im Hauswirtschaftsraum Platz finden. Ob Garage oder Carport (Platz: neben Hauswirtschaftsraum/Wohnbereich) noch unsicher (oder ob einfach Stellplatz und fertig).
Die Fenster Schlafzimmer oben und Badezimmer oben sind eher als Lichtbänder gedacht. Ob noch ein Fenster in der Ankleide oder nicht sind wir uns noch nicht sicher. Alle Fenster Richtung Süden als bodentiefe Fenster.
Grundstück ist Eckgrundstück in verkehrsberuhigter Zone (Spielstraße; kein Durchgangsverkehr möglich). Eingangsseite (Norden) sowie Arbeitszimmer/Küche/Essbereich (Osten) sind Straßenseiten. Nach Süden sind 11m bis zur Grundstücksgrenze. An der Grundstücksgrenze ist auf beiden Seiten eine 2m-Pflanzenzone (also von 9m bis 13m ab Südseite), danach (wahrscheinlich) Nachbargarten. Nach Westen sind es etwa 9 Meter bis Grundstücksgrenze. Dort ist kein Pflanzenbereich, dort könnte theoretisch also die Nachbargarage stehen (oder eben andere Seite). Auf diesen 9 Metern können wir dann, bei Bedarf, auch unsere Garage/Carport anordnen (Bebauungsplan: Garage/Carport hinter Bauflucht vom Haus).
Dach in Anthrazit (Beton + Beschichtung) mit 40cm Dachüberstand plus Dachrinne in Titanzink, Fenster/Tür/Nebeneingangstür anthrazit evtl. eine Nuance heller Richtung grau, Fassade "modernes beige", also sehr hell aber eben offiziell kein weiß. Fensterbänke Aluminium eloxiert, Terrassentüre/Eingangsschwelle Granit Crystal Padang. Sockelputz/Spritzschutz. Überall E-Rollläden, keine Raffstoren.
Wäscheabwurfschacht wird es wohl geben, wenn es im Grundriss passt. Treppe bekommt Spots seitlich. Tür hat Seitenteil, ist im Grundriss auch mit drin.
Meinungen zum Grundriss sind erwünscht. 🙂
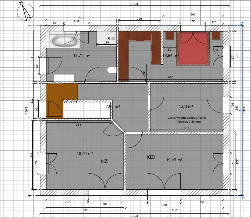
Die Fenster Schlafzimmer oben und Badezimmer oben sind eher als Lichtbänder gedacht. Ob noch ein Fenster in der Ankleide oder nicht sind wir uns noch nicht sicher. Alle Fenster Richtung Süden als bodentiefe Fenster.
Grundstück ist Eckgrundstück in verkehrsberuhigter Zone (Spielstraße; kein Durchgangsverkehr möglich). Eingangsseite (Norden) sowie Arbeitszimmer/Küche/Essbereich (Osten) sind Straßenseiten. Nach Süden sind 11m bis zur Grundstücksgrenze. An der Grundstücksgrenze ist auf beiden Seiten eine 2m-Pflanzenzone (also von 9m bis 13m ab Südseite), danach (wahrscheinlich) Nachbargarten. Nach Westen sind es etwa 9 Meter bis Grundstücksgrenze. Dort ist kein Pflanzenbereich, dort könnte theoretisch also die Nachbargarage stehen (oder eben andere Seite). Auf diesen 9 Metern können wir dann, bei Bedarf, auch unsere Garage/Carport anordnen (Bebauungsplan: Garage/Carport hinter Bauflucht vom Haus).
Dach in Anthrazit (Beton + Beschichtung) mit 40cm Dachüberstand plus Dachrinne in Titanzink, Fenster/Tür/Nebeneingangstür anthrazit evtl. eine Nuance heller Richtung grau, Fassade "modernes beige", also sehr hell aber eben offiziell kein weiß. Fensterbänke Aluminium eloxiert, Terrassentüre/Eingangsschwelle Granit Crystal Padang. Sockelputz/Spritzschutz. Überall E-Rollläden, keine Raffstoren.
Wäscheabwurfschacht wird es wohl geben, wenn es im Grundriss passt. Treppe bekommt Spots seitlich. Tür hat Seitenteil, ist im Grundriss auch mit drin.
Meinungen zum Grundriss sind erwünscht. 🙂
Haben wir den Grundriss nicht schon mal diskutiert?
Ich mag die Art Haus nicht sonderlich gern - vielleicht einfach schon zu viele gesehen 😉
Weg von der Küche zum Hauswirtschaftsraum ist recht weit, Garderobe finde ich ungünstig weit drin im Haus. Wohnzimmer finde ich nicht schön - das sofa ist so extrem TV bezogen.
Ansonsten wären schön.
Ich mag die Art Haus nicht sonderlich gern - vielleicht einfach schon zu viele gesehen 😉
Weg von der Küche zum Hauswirtschaftsraum ist recht weit, Garderobe finde ich ungünstig weit drin im Haus. Wohnzimmer finde ich nicht schön - das sofa ist so extrem TV bezogen.
Ansonsten wären schön.
Das Sofa anders herum und man hat keine Stellflächen fürs das Lowboard. Wir werden aber wohl Steckdosen/TV-Dosen an beiden Seiten oder an allen drei Seiten einplanen.
Was meinst du mit "diese Art von Haus"?
Bezüglich Garderobe: Schuhe fänden ihre Ablage vermutlich zwischen WC-Tür und Hauswirtschaftsraum-Tür. Man könnte dort natürlich auch die gesamte Garderobe planen... hmm....
Was meinst du mit "diese Art von Haus"?
Bezüglich Garderobe: Schuhe fänden ihre Ablage vermutlich zwischen WC-Tür und Hauswirtschaftsraum-Tür. Man könnte dort natürlich auch die gesamte Garderobe planen... hmm....
Quadratisch, zweigeschossig. Finde quadratisch halt schwierig.
Ich würde es glaube ich zumindest so machen, dass die Fernsehwand planklinks sitzt - ob man überall alles vorsieht würde ich mir überlegen... 8 Steckdosen, Lan und Antenne sind mal eben ~400 €. Alternativ - wieso nicht auch einfach ein Fensterelement planlinks? (würde ja auch zum OG passen)
Garderobe in der Hausmitte würde ich nicht machen - man trägt doch schon einiges an Dreck rein und wenn du Kinder hast gleich 5 mal und auch immer wieder. Schuhe vor der Tür ausziehen macht dann eh keiner (zumindest unsere nicht).
Ich würde es glaube ich zumindest so machen, dass die Fernsehwand planklinks sitzt - ob man überall alles vorsieht würde ich mir überlegen... 8 Steckdosen, Lan und Antenne sind mal eben ~400 €. Alternativ - wieso nicht auch einfach ein Fensterelement planlinks? (würde ja auch zum OG passen)
Garderobe in der Hausmitte würde ich nicht machen - man trägt doch schon einiges an Dreck rein und wenn du Kinder hast gleich 5 mal und auch immer wieder. Schuhe vor der Tür ausziehen macht dann eh keiner (zumindest unsere nicht).
Ich finde die bodentiefen Fenster im Rücken eines Sofas so ein Unding.
Daher würde ich schon mal überlegen ob man die TV-Wand nicht planlinks macht und das Sofa als Raumteiler.
Trennt auch ein bisschen besser zum Esszimmer ab.
Ansonsten - passt scho. Teilweise eng und dunkel, aber man muss halt auch Kompromisse machen.
Im BEF würd ichs an deiner Stelle gar nimmer probieren. Da kommt nix mehr sinnvolles. Dafür bist du ein zu leichtes Ziel der DIY-Stadtvilla-Hater.
Daher würde ich schon mal überlegen ob man die TV-Wand nicht planlinks macht und das Sofa als Raumteiler.
Trennt auch ein bisschen besser zum Esszimmer ab.
Ansonsten - passt scho. Teilweise eng und dunkel, aber man muss halt auch Kompromisse machen.
Im BEF würd ichs an deiner Stelle gar nimmer probieren. Da kommt nix mehr sinnvolles. Dafür bist du ein zu leichtes Ziel der DIY-Stadtvilla-Hater.
Bodentiefe Fenster hinter dem Sofa sind auch ein Kompromiss, tlw. natürlich der Symmetrie von außen geschuldet. Andererseits kann ich mir gerade nicht vorstellen, "leeren" Raum und den Essbereich hinter mir zu haben, wenn ich auf der Couch bin? Ein andere Idee wäre noch ein kleineres (1 Meter, 1-flüglig) Fenster je links und rechts und ein sehr großes Fensterelement Mitte zu setzen.
Ähnliche Themen