Hausbau - Ratgeber
Bauherrenhilfe
- Bauherrenhilfe vor Vertragsabschluss
-- Warum einen unabhängigen Baubetreuer?
-- Vertragsgrundlagen
-- Bausumme
-- Zahlungsplan zur Kostenkontrolle
-- Pflichten des Bauherren vor Vertragsabschluss
-- Unterlagen beim Hausbau vor Vertragsabschluss
- Bauherrenhilfe nach Vertragsabschluss
-- Bauantrag bei Behörden
-- Bau-Genehmigungsverfahren bei Baubehörden
-- Bauspezifische Versicherungen
-- Bauzeitenplan
-- Baubeginn - die Letzten Pflichten der Bauherrschaft
- Bauherrenhilfe während der Bauzeit
- Gewährleistungsansprüche
- Bauabnahme
Baufinanzierung
- Baufinanzierung - Allgemeine Fragen
- Kreditarten
- Kredit-Konditionen
- Bausparen
- Staatliche Förderungen
- Verkehrswert
- Haushaltsrechnung und Bonität
Hausbau Planung
- Haustypen
- Hausbau Vorbereitungsarbeiten
- Das Baugrundstück
- Baugrund beim Hausbau
- Baurecht
- Gebäudeschutz
- Erdarbeiten und Wasserhaltung
- Stützmauern
- Einfriedung
- Untergeschoss
- Kanalisation
- Tragende Elemente
- Nichttragende Innenwände
- Fundation / Fundament
- Deckenkonstruktionen
- Dächer
- Kaminanlagen
- Treppen Rampen Leitern
- Dachbeläge und Spengler
- Fenster
- Sonnen und Wetterschutz
- Aussenputze
- Einbauten, Küchen, Türen
- Bodenbeläge und Unterlagsböden
- Parkett
- Gips, Wand, Decke
Haustechnik und Energie
- Heiztechnik
- Lüftung und Klimatechnik
- Sanitärtechnik
- Elektrotechnik
- Erneuerbare Energie
Whirlpools / Jacuzzi
Hausbau Magazin
- Baufinanzierung trotz Krise?
- Das Blockhaus
- Moderne Dämmstoffe im Vergleich
- Erker Vor- und Nachteile
- Glasflächen beim Hausbau
- Günstig ein Haus Bauen
- Mediterraner Hausbaustil
- Mehrgenerationenhaus
- Moderne Architektur
- Gartengestaltung leicht gemacht
- Traditioneller Ziegelbau
- Villa als höchster Traum
- Im Eigenheim Ruhestand geniessen
- Altbau sanieren
- Kauf einer Holzgarage
- Immobilienmakler
- Arbeitshandschuhe für den Winter
- Zuhause verschönern
- Outdoor-Plissees
- Schlafzimmer planen
- Terrassenüberdachung
- Wohngebäudeversicherung
- Zaunarten und Eigenschaften
- Hauseingang gestalten
- Der perfekte Grundriss
- Sparsamer heizen im Altbau
- Einfamilienhaus smart finanzieren
- Planung einer PV-Anlage
- Neues Haus
- Immobilienfinanzierung
- Installation einer Photovoltaikanlage
- Asbest erkennen und entfernen
- Gartenpflege im Frühling – worauf achten
- Sauna im Fokus - Wellness zuhause
- Erfolgreich vermieten
- Die perfekte Winterbekleidung
- Das Niedrigenergiehaus
- Der April und seine Stürme
- Architektonische Vielfalt
- Ökologisch und nachhaltig bauen
- Das perfekte Schlafzimmer
- Nachhaltige Energieversorgung
- Zukunftsorientiert bauen
- Nachhaltigkeit beim Hausbau
- Tiny Houses
- Wärmepumpen als nachhaltige Heizvariante
- Maßgeschneiderten Kleiderschrank
- Der richtige Baukredit
- Ratgeber für erfolgreichen Hausbau
- Haus als Altersvorsorge
Do-it-yourself Anleitungen
- Verlegeanleitung für Bodenbeläge und Parkett
- Bodenbeläge und Parkett reinigen und pflegen
- Malerarbeiten am Haus
- Garten Tipps
- Umzug und Reinigung

ᐅ Realistische Kosteneinschätzung: Einfamilienhaus mit ungünstiger Erschließungslage

Erstellt am: 20.01.23 10:50
S
schmeissrein
schmeissrein28.04.23 09:09
WilderSueden schrieb:

Wieviel Zimmer und wieviel Quadratmeter habt ihr jetzt? Vermutlich deutlich weniger als im Haus. Da kommt einfach einiges zusammen, nur weil man mehr Zimmer und Fläche hat.

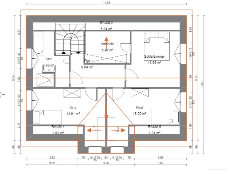
Wir haben aktuell etwa 88m² auf drei Zimmer (eins davon Wohnessküche) verteilt. Plus Hauswirtschaftsraum und Gartenhäuschen. Wir stellen allerdings gerade auch Möbel auswärts unter, die hier nicht reinpassen. Was wir haben: Wohnzimmereinrichtung komplett, Gästezimmer komplett, Büro komplett, Schlafzimmer komplett, Kinderzimmer komplett, Regale für Hauswirtschaftsraum/Speisekammer. Was wir noch bräuchten sind Badmöbel (die können ganz schön reinhauen) und je nachdem, wie sehr die Ankleide mit Schrägen "gesegnet" ist, die Einrichtung dafür. Letzteres ist aber nichts, was sofort perfekt sein muss. Könnte mir auch vorstellen, das vorhandene Pax-System selbst dafür anzupassen, wäre nicht das erste Mal.
schmeissrein09.05.23 15:14
Ich sag nur Hello again 😀 Wir haben eure Einwände gedreht und gewendet und auf die Gefahr, dass jetzt jemand kräht "das ist ja schon wieder was ganz anderes, entscheidet euch mal"- Freunde, es ist alles ein Prozess...Wir konnten uns einfach nicht damit anfreunden, auf eine traurige giebellose Traufseite zuzugehen/fahren und sind jetzt zu dem Entschluss gekommen- warum das Haus nicht drehen? Die Giebelseite erscheint uns deutlich hübscher und schön symmetrisch, die wenig ansehnliche Traufseite darf zum Carport hin zeigen und wir sparen uns einen teuren Giebel- ihr bekommt, was ihr wolltet 😀 Dafür rückt der Giebel jetzt in den Westen. Warum nicht auf ein langes schmales Grundstück ein Haus bauen, das die Form auch so aufgreift.

Die Kinderzimmer haben an Größe gewonnen und es gibt oben ein Zimmer weniger. Vom Gästezimmer wollten wir uns nicht trennen, aber dafür ist es jetzt etwas kleiner. Im Flur oben gibt es jetzt sogar ein Fenster, juhu! Was uns noch etwas Kopfschmerzen bereitet, ist das verwinkelte enge Bad oben. Ansonsten sind wir bereit, uns dem nächsten Kritiksturm zu stellen 😀 Vielen Dank allen, die das hier mit uns so tapfer durchstehen. Es fühlt sich doof an, alles immer wieder umzuwerfen, aber andererseits lernen wir auch mit jedem Versuch dazu und nähern uns hoffentlich unserem Traumhaus 🙂
Grundriss eines Hauses, Erdgeschoss: Großes Wohn-/Esszimmer, offene Küche, Flur, HWR und Gästezimmer.

Grundriss eines Wohnhauses mit Bad, Ankleide, Schlafzimmer, zwei Kinderzimmer und Flur.

3D-Ansicht eines Ziegelhauses mit Giebeldach, Eingangstür, Fenstern und Carport.
11ant09.05.23 15:31
Ach so, das Ding mit den Giebeln ist ganz einfach so eine Spiegelneuronenkiste, daß das Haus von der Garten- und der Daraufzufahr-Seite ein "Gesicht" haben soll. Ah jetzt ja ;-)
Sind Ungelenkheiten beim Abzeichnen entstanden, wurde überhaupt ein funktionierender Entwurf modifiziert, oder ist es "frei Schnauze" gekocht ?
https://www.instagram.com/11antgmxde/
https://www.linkedin.com/company/bauen-jetzt/
schmeissrein09.05.23 15:40
11ant schrieb:

Ach so, das Ding mit den Giebeln ist ganz einfach so eine Spiegelneuronenkiste, daß das Haus von der Garten- und der Daraufzufahr-Seite ein "Gesicht" haben soll. Ah jetzt ja ;-)
Sind Ungelenkheiten beim Abzeichnen entstanden, wurde überhaupt ein funktionierender Entwurf modifiziert, oder ist es "frei Schnauze" gekocht ?

Vermutlich ist das die Psychologie dahinter, ja. Hier ist nix abgezeichnet, das ist unser Vorentwurf frei Schnauze, den die Bauzeichnerin dann in Vernunft bringen wird (Fenstergrößen und -Positionen etc. ist alles erstmal nur skizziert). Übrigens planlinks ist Norden, also Allraum nach Südwest/ost. Für die Fläche spuckt mir das Tool 156m² aus, aber dem vertrau ich nicht so, das kann die Bauzeichnerin dann seriös berechnen. Also dass Fenster gerne ein Vielfaches von 12,5cm sein sollten etc. ist hier nicht bedacht!
H
hanghaus2023
09.05.23 16:18
Die komische Ecke im Bad ist ein Ergebnis der Treppe. Hauswirtschaftsraum und WC im EG tauschen, dann rückt die Treppe weiter in die Mitte. Den Erker im OG zu teilen gefällt mir gar nicht. Da ist mein Vorschlag ohne Erker besser ausgenutzte Fläche. Siehe Beitrag# 20
11ant09.05.23 16:22
hanghaus2023 schrieb:

Die komische Ecke im Bad ist ein Ergebnis der Treppe. Hauswirtschaftsraum und WC im EG tauschen, dann rückt die Treppe weiter in die Mitte.
Ich glaube, das ist eine Auswirkung des populären Ansatzes, das OG/DG nach dem EG zu planen ...
https://www.instagram.com/11antgmxde/
https://www.linkedin.com/company/bauen-jetzt/
gästezimmerhauswirtschaftsraumkinderzimmertraufseitegiebelfenstertreppeerker