ᐅ Quadratischer Grundriss für ein Doppelhaus gesucht - Ideen?
Erstellt am: 05.10.18 00:46
S
Sturkopf86Hallo zusammen, wir suchen einen Grundriss für ein Doppelhaus!
Die meisten Doppelhäuser sind lang gezogen und schmal, unser Baufenster lässt das aber nicht zu.
Eine Doppelhaushälfte wollen wir bewohnen
Eine Doppelhaushälfte vermieten. Wir wollen ungern allein sein.
Bebauungsplan/Einschränkungen
Es gibt nur eine ergänzungssatzung. Bebauung nach Paragraph 34
Größe des Grundstück: 815qm
Offene Bauweise nach Paragraph 34
Hang: ja auf 16m sind 1,5 - 2m Gefälle.
Grundflächenzahl: 0,4
Geschossflächenzahl: steht nirgends
Baufenster, Baulinie und -grenze
8,5m x 16m laut Vermesser
Randbebauung: nein
Anzahl Stellplatz: flexibel
Geschossigkeit: 1,5 - 2 ( Nachbarn)
Dachform: Satteldach > 35 grad
Stilrichtung: klassisch mit modern gepaart
Ausrichtung: siehe Zeichnung
Maximale Höhen/Begrenzungen: nicht bekannt
weitere Vorgaben
Anforderungen der Bauherren:
Stilrichtung, Dachform, Gebäudetyp
Köassich-Modern, Satteldach, Doppelhaus
Keller: ja, Geschosse 1,5 - 2
Anzahl der Personen, 32,31,3,1
Raumbedarf im EG: Küche, Wohnzimmer, Esszimmer, Duschbad
OG: Schlafzimmer, Kinderzimmer 1, Kinderzimmer 2, Badezimmer.
Büro: wäre schön, muss aber nicht Homeoffice!
Schlafgäste pro Jahr: keine
offene oder geschlossene Architektur: offen
konservativ oder moderne Bauweise: flexibel
offene Küche, Kochinsel: wäre toll
Anzahl Essplätze: 8
Kamin: nein
Musik/Stereowand: nein
Balkon, Dachterrasse: nein
Garage, Carport: ja 2 Stk.
Nutzgarten, Treibhaus
weitere:1 Garten Nord 2 Garten Süd Wünsche/Besonderheiten/Tagesablauf, gern auch Begründungen, warum dieses oder das nicht sein soll: wir sind für alles offen, wir möchten gern was Bauen was Sinn Macht! Muss auch nicht so gross sein! Wohnen jetzt auf 102qm + Keller und genügt.
Hausentwurf
Von wem stammt die Planung:
Wir haben noch keine! Diese u.g Planung wäre für uns ok, wir müssten es nur recht quadratisch bekommen, hat einer vielleicht ein ähnliches Projekt durchgezogen?
-Architekt: Ein Architekt soll uns helfen, möchte aber nicht unvorbereitet einen beauftragen.
-Do-it-Yourself: Deshalb so viele Input wie möglich mitnehmen.
Was gefällt besonders? Das Baufenster auszureizen, wenn möglich: Warum? Damit kein 100-130qm Haus auf 815qm Grundstück steht und wir hätten gern Nachbarn!
Was gefällt nicht? Die 8,5m breite des Baufensters. Warum? 10m wären optimal für ein schönes Doppelhaus.
Preisschätzung lt Architekt/Planer:
700.000euro ohne Grundstück!
Persönliches Preislimit fürs Haus, inkl Ausstattung: 400.000euro pro Doppelhaushälfte
favorisierte Heiztechnik: Solarthermie in Verbindung Gas.
Wenn Ihr verzichten müsst, auf welche Details/Ausbauten
-könnt Ihr verzichten: Büro
-könnt Ihr nicht verzichten:
grosse Küche, bei uns spielt sich alles in der Küche und Esszimmer ab, Wohnzimmer brauchen wir fast nie!
Warum ist der Entwurf so geworden, wie er jetzt ist?
Wir haben nicht wirklich einen.
Standardentwurf vom Planer? Ja
Entsprechende/Welche Wünsche wurden vom Architekten umgesetzt?
Ein Gemisch aus vielen Beispielen aus div. Fertighaus Katalogen
Was macht ihn in Euren Augen besonders gut oder schlecht?
Keinen Kompromiss bei der Küche eingehen, da unser lebensmittelpunkt.
Schlecht, evtl ein Doppelhaus zu planen, besser vielleicht ein Haus mit einlieger Wohnung?
Was ist die wichtigste/grundlegende Frage zum Grundriss in 130 Zeichen zusammengefasst?
Wie können wir das Familienleben mit der raumgestaltung verbinden in einer Doppelhaushälfte?





Die meisten Doppelhäuser sind lang gezogen und schmal, unser Baufenster lässt das aber nicht zu.
Eine Doppelhaushälfte wollen wir bewohnen
Eine Doppelhaushälfte vermieten. Wir wollen ungern allein sein.
Bebauungsplan/Einschränkungen
Es gibt nur eine ergänzungssatzung. Bebauung nach Paragraph 34
Größe des Grundstück: 815qm
Offene Bauweise nach Paragraph 34
Hang: ja auf 16m sind 1,5 - 2m Gefälle.
Grundflächenzahl: 0,4
Geschossflächenzahl: steht nirgends
Baufenster, Baulinie und -grenze
8,5m x 16m laut Vermesser
Randbebauung: nein
Anzahl Stellplatz: flexibel
Geschossigkeit: 1,5 - 2 ( Nachbarn)
Dachform: Satteldach > 35 grad
Stilrichtung: klassisch mit modern gepaart
Ausrichtung: siehe Zeichnung
Maximale Höhen/Begrenzungen: nicht bekannt
weitere Vorgaben
Anforderungen der Bauherren:
Stilrichtung, Dachform, Gebäudetyp
Köassich-Modern, Satteldach, Doppelhaus
Keller: ja, Geschosse 1,5 - 2
Anzahl der Personen, 32,31,3,1
Raumbedarf im EG: Küche, Wohnzimmer, Esszimmer, Duschbad
OG: Schlafzimmer, Kinderzimmer 1, Kinderzimmer 2, Badezimmer.
Büro: wäre schön, muss aber nicht Homeoffice!
Schlafgäste pro Jahr: keine
offene oder geschlossene Architektur: offen
konservativ oder moderne Bauweise: flexibel
offene Küche, Kochinsel: wäre toll
Anzahl Essplätze: 8
Kamin: nein
Musik/Stereowand: nein
Balkon, Dachterrasse: nein
Garage, Carport: ja 2 Stk.
Nutzgarten, Treibhaus
weitere:1 Garten Nord 2 Garten Süd Wünsche/Besonderheiten/Tagesablauf, gern auch Begründungen, warum dieses oder das nicht sein soll: wir sind für alles offen, wir möchten gern was Bauen was Sinn Macht! Muss auch nicht so gross sein! Wohnen jetzt auf 102qm + Keller und genügt.
Hausentwurf
Von wem stammt die Planung:
Wir haben noch keine! Diese u.g Planung wäre für uns ok, wir müssten es nur recht quadratisch bekommen, hat einer vielleicht ein ähnliches Projekt durchgezogen?
-Architekt: Ein Architekt soll uns helfen, möchte aber nicht unvorbereitet einen beauftragen.
-Do-it-Yourself: Deshalb so viele Input wie möglich mitnehmen.
Was gefällt besonders? Das Baufenster auszureizen, wenn möglich: Warum? Damit kein 100-130qm Haus auf 815qm Grundstück steht und wir hätten gern Nachbarn!
Was gefällt nicht? Die 8,5m breite des Baufensters. Warum? 10m wären optimal für ein schönes Doppelhaus.
Preisschätzung lt Architekt/Planer:
700.000euro ohne Grundstück!
Persönliches Preislimit fürs Haus, inkl Ausstattung: 400.000euro pro Doppelhaushälfte
favorisierte Heiztechnik: Solarthermie in Verbindung Gas.
Wenn Ihr verzichten müsst, auf welche Details/Ausbauten
-könnt Ihr verzichten: Büro
-könnt Ihr nicht verzichten:
grosse Küche, bei uns spielt sich alles in der Küche und Esszimmer ab, Wohnzimmer brauchen wir fast nie!
Warum ist der Entwurf so geworden, wie er jetzt ist?
Wir haben nicht wirklich einen.
Standardentwurf vom Planer? Ja
Entsprechende/Welche Wünsche wurden vom Architekten umgesetzt?
Ein Gemisch aus vielen Beispielen aus div. Fertighaus Katalogen
Was macht ihn in Euren Augen besonders gut oder schlecht?
Keinen Kompromiss bei der Küche eingehen, da unser lebensmittelpunkt.
Schlecht, evtl ein Doppelhaus zu planen, besser vielleicht ein Haus mit einlieger Wohnung?
Was ist die wichtigste/grundlegende Frage zum Grundriss in 130 Zeichen zusammengefasst?
Wie können wir das Familienleben mit der raumgestaltung verbinden in einer Doppelhaushälfte?
Na, dann die Fragen zu diesem Beitrag auch noch hier, antworten solltest du dann nur noch hier.
Hm ... Grundstück genordet? -- Erledigt - JA
Gestrichelte Linie = Baufenster?
Straßen und Zufahrten liegen wie?
Nachbargrundstücke liegen wie?
-----------------------------------------------------------------
Sinnvoll wäre es, eingestellte Grundrisse so einzustellen, dass sie dann der Lage auf dem Grundstück entsprechen .
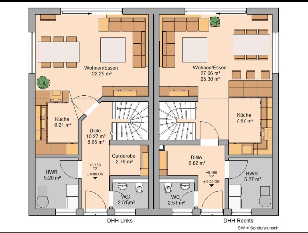
Warum findest du den eingestellten Doppelhaushälfte-Grundriss sinnvoll? Ihr habt doch die Möglichkeit viel breiter zu bauen. Sieh dir mal die Raumschnitte an (kaum 250 cm breit), Elternbereiche und die dort eingezeichneten Ankleiden ... na ja, Schrankbereiche mit wenig Stauraum und wenig Bewegungsfläche.
Das ergibt der Raum auch nicht, selbst, wenn man Wohnen/Kochen tauschen würde.
Hm ... Grundstück genordet? -- Erledigt - JA
Gestrichelte Linie = Baufenster?
Straßen und Zufahrten liegen wie?
Nachbargrundstücke liegen wie?
-----------------------------------------------------------------
Sinnvoll wäre es, eingestellte Grundrisse so einzustellen, dass sie dann der Lage auf dem Grundstück entsprechen .
Warum findest du den eingestellten Doppelhaushälfte-Grundriss sinnvoll? Ihr habt doch die Möglichkeit viel breiter zu bauen. Sieh dir mal die Raumschnitte an (kaum 250 cm breit), Elternbereiche und die dort eingezeichneten Ankleiden ... na ja, Schrankbereiche mit wenig Stauraum und wenig Bewegungsfläche.
Sturkopf86 schrieb:
-könnt Ihr nicht verzichten:
grosse Küche, bei uns spielt sich alles in der Küche und Esszimmer ab, Wohnzimmer brauchen wir fast nie!
Das ergibt der Raum auch nicht, selbst, wenn man Wohnen/Kochen tauschen würde.
Nunja, Google ist Dein Freund. Da findest Du reichlich Vorschläge. Hier noch mal der Hinweise, dass man als Bauherr natürlich die Möglichkeit hat, sich vom Kuchen ein größeres Stück abzuschneiden - also z.B. 9m Breite - und dem Vermietobjekt nur 7m gönnt.
Wenn das Land nicht wie bei MadameP
(https://www.hausbau-forum.de/threads/grundrissplanung-Doppelhaus-17x10m.28411/)
irre teuer ist und eine Vermietung die Grundstückskosten halbieren soll, würde ich im Traum nicht darauf kommen, eine Doppelhaushälfte zu bauen. Schon gar nicht bei 8,5m maximale Bautiefe.
Wenn das Land nicht wie bei MadameP
(https://www.hausbau-forum.de/threads/grundrissplanung-Doppelhaus-17x10m.28411/)
irre teuer ist und eine Vermietung die Grundstückskosten halbieren soll, würde ich im Traum nicht darauf kommen, eine Doppelhaushälfte zu bauen. Schon gar nicht bei 8,5m maximale Bautiefe.
Moin, danke
Ja das gestrichelte dünne -- -- -- --
ist das Baufenster! Rechts und oben das dicke gestrichelte an der grundatücksgrenze soll eine Wildhecke werden, die wir nachdem Bau setzen müssen! Es gibt nur links ein bebaubares Grundstück (noch nicht bebaut! Rechts und nach oben hinweg ist eine Wasserschutz Zone II und darf nicht bebaut werden. Wir haben quasi nur einen Nachbarn Links.
Die Einfahrt gute Frage? Darf ich die machen wo ich möchte? Also links oder rechts?
Kann nirgendwo finden ob es vorgegeben ist!
Bei Google gibt es etliche Doppelhaus Grundrisse, leider habe ich keinen gefunden der ein Doppelhaus mit quadratischen Grundriss hat! Vielelicht, weil es keiner Bauen will so?
MadameP habe ich alle Seiten gelesen und verfolge fleissig mit!
Es ist alles nicht in Stein gemeißelt, es ist eine Idee, wir brauchen auch kein Riesen Haus. Ein kleines Einfamilienhaus auf 815qm Grund wäre ein bisschen verloren?!
Was würdet ihr Bauern? Wir sind offen für jeden Vorschlag.....
Grüsse aus dem Bergischen Land
Ja das gestrichelte dünne -- -- -- --
ist das Baufenster! Rechts und oben das dicke gestrichelte an der grundatücksgrenze soll eine Wildhecke werden, die wir nachdem Bau setzen müssen! Es gibt nur links ein bebaubares Grundstück (noch nicht bebaut! Rechts und nach oben hinweg ist eine Wasserschutz Zone II und darf nicht bebaut werden. Wir haben quasi nur einen Nachbarn Links.
Die Einfahrt gute Frage? Darf ich die machen wo ich möchte? Also links oder rechts?
Kann nirgendwo finden ob es vorgegeben ist!
Bei Google gibt es etliche Doppelhaus Grundrisse, leider habe ich keinen gefunden der ein Doppelhaus mit quadratischen Grundriss hat! Vielelicht, weil es keiner Bauen will so?
MadameP habe ich alle Seiten gelesen und verfolge fleissig mit!
Es ist alles nicht in Stein gemeißelt, es ist eine Idee, wir brauchen auch kein Riesen Haus. Ein kleines Einfamilienhaus auf 815qm Grund wäre ein bisschen verloren?!
Was würdet ihr Bauern? Wir sind offen für jeden Vorschlag.....
Grüsse aus dem Bergischen Land
Sturkopf86 schrieb:
Ein kleines Einfamilienhaus auf 815qm Grund wäre ein bisschen verloren?!Wieso das denn? Wir haben 2200m² und finden es gerade so ausreichend.Sturkopf86 schrieb:
Ein kleines Einfamilienhaus auf 815qm Grund wäre ein bisschen verloren?!
Was würdet ihr Bauern? Wir sind offen für jeden Vorschlag.....
Finde ich auch nicht! Wenn ich die Wahl hätte, würde ich auch ein Einfamilienhaus bauen. Kannste tun und lassen was du willst auf deinem Grund. Mit Nachbarn, zumal wenn sie so nah dran sind wie bei einer DH-Bebauung, musst du dich immer einigen...Wir haben uns schlussendlich für Verkauf entschieden. Vermietung hätte sich steuerlich überhaupt nicht gelohnt, wir hätten im Gegenteil noch draufgelegt durch die Versteuerung der Einnahmen. Nun verkaufen wir und spekulieren mit einem kleinen Plus Das habt ihr aber gecheckt, ja?
Ähnliche Themen