Guten Tag beisammen,
als erstes ein großes Dankeschön an die ganze Community hier. Ich habe die letzten beiden Jahre während der Planung und Umsetzung meines Haus-Projekt (als stiller Mitleser) viele gute Tipps bekommen und unzählige spannende und zum Teil auch kuriose Diskussionen mitverfolgt. Eigentlich wollte ich unsre Grundrisse hier nicht einstellen, da aber das Interesse an unsrem Haus doch vorhanden ist und ich auch dankbar war, dass die vielen Mitforisten ihre Grundrisse mit mir geteilt haben, habe ich mich noch mal umentschieden.
Da das hier jetzt nicht wirklich eine Grundrissdiskussion werden soll, möge man mir bitte verzeihen, dass ich den Fragebogen jetzt nicht ausfülle. Ich werde aber selbstverständlich gerne auf eure Fragen eingehen.
Ein paar Infos vorweg:
Unser Grundstück liegt mehr oder weniger direkt an einem kleinen See. Zwischen See und Grundstück verläuft noch eine kleine Anliegerstraße und ein ca. 10 m breiter öffentlicher Grünstreifen. Die Straßenfront des Grundstücks ist ca. 28 m breit und die Seitenlänge beträgt ca. 36 m.
Mit durchschnittlich 21% Gefälle haben wir einen relativ steilen Hang. Deswegen ist das Haus etwas in den Hang gebaut und tiefer gelegt, damit man mit den PKW noch annehmbar bequem auf das Grundstück fahren kann.
Von der Ausstattung her liegt unser Haus irgendwo knapp über Kfw 40 mit zentraler Kontrollierte-Wohnraumlüftung, Erdwärme mit Tiefenbohrung, Fußbodenheizung in allen Räumen (auch Garage) und KNX-System.
Optisch wollen wir - obwohl es sich um einen Neubau handelt - zur besseren Eingliederung in die schöne Umgebung vom Stil her eher in Richtung alte Villa gehen. Deswegen auch das Mansardendach, @Fummelbrett! Fenster mit Wiener Sprosse und ein bisschen Fassadenklimbim (Faschen, usw...).
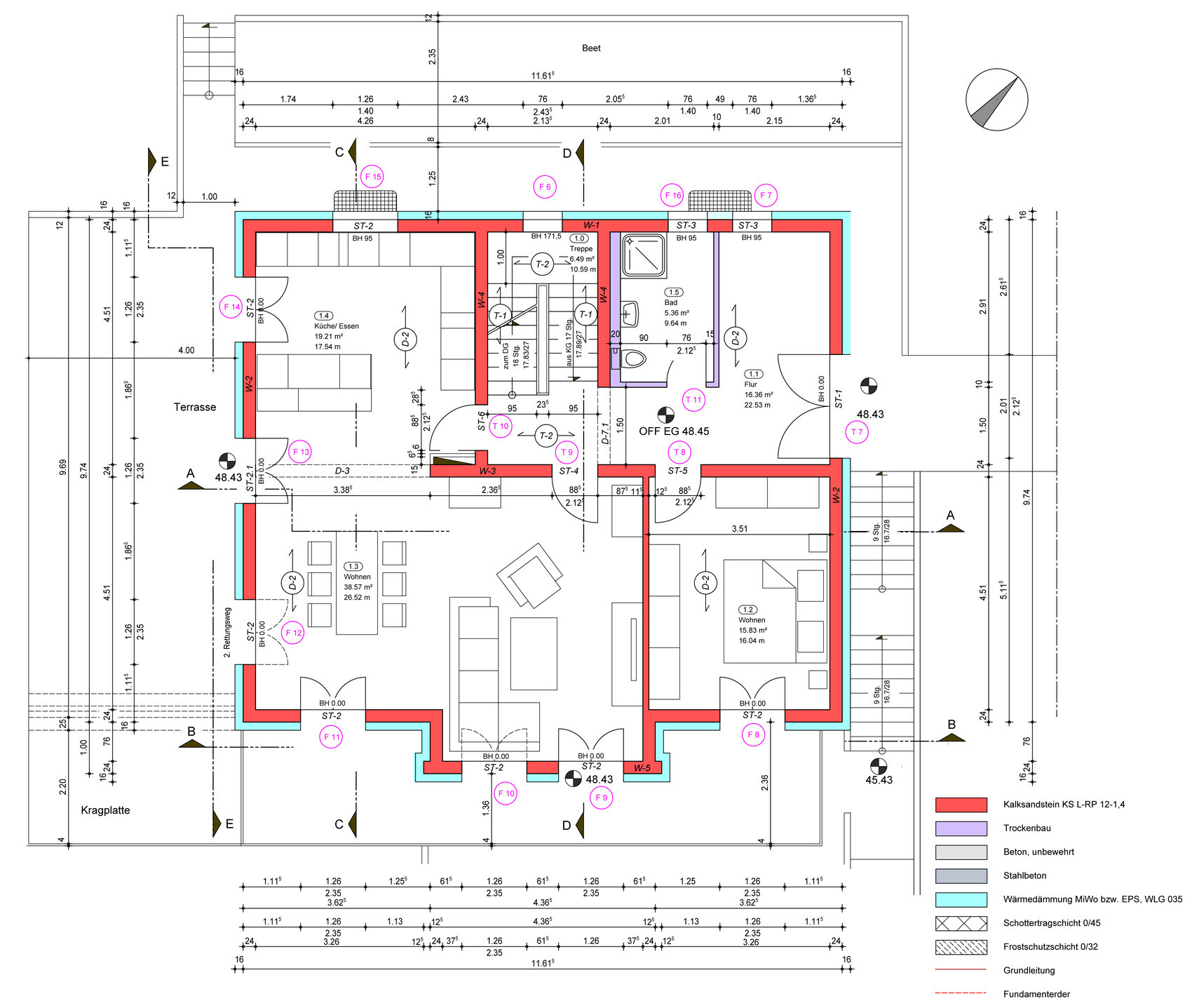
Die Grundrisse und der Lageplan sind schon ein paar Tage alt und nur noch zu 95% auf dem neusten Stand. Beispielsweise haben wir aus Kosten- und Sinnhaftigkeitsgründen den nach Südosten gerichteten Balkon gestrichen, da wir auf der Südwestseite des Hauses ja noch ne große Terrasse haben. Auch die 11,5 cm Wand im Wohnzimmer EG wird erst mal nicht errichtet und ggf. später nur in Trockenbauweise umgesetzt. Im OG haben wir noch ne zusätzliche Einschubtreppe als Kriechbodenzugang geplant und das Bad ist auch noch nicht 100% fix. Wir haben das Haus mit 3 Kinderzimmern, 1 Gästezimmer und 1 Homeoffice geplant. Die Möblierung ist bis auf die Küche auch nur Platzhalter. Ach so...wir bauen übrigens mit Architekt und Einzelvergabe (was für ein Stress ).
Die Bilder des bisherigen Baufortschritts stehen alle im Hausbilder-Thread. Falls es in dieser Hinsicht aber noch besondere Wünsche gibt, versuche ich diese aber gerne zu erfüllen. Schnitte und Ansichten versuch ich die Tage auch noch nachzureichen.
Ich hoffe, ich konnte euch einen guten ersten Eindruck von unsrem zukünftigen Haus vermitteln und freue mich auf eure Fragen.
Grüße, -XIII-




als erstes ein großes Dankeschön an die ganze Community hier. Ich habe die letzten beiden Jahre während der Planung und Umsetzung meines Haus-Projekt (als stiller Mitleser) viele gute Tipps bekommen und unzählige spannende und zum Teil auch kuriose Diskussionen mitverfolgt. Eigentlich wollte ich unsre Grundrisse hier nicht einstellen, da aber das Interesse an unsrem Haus doch vorhanden ist und ich auch dankbar war, dass die vielen Mitforisten ihre Grundrisse mit mir geteilt haben, habe ich mich noch mal umentschieden.
Da das hier jetzt nicht wirklich eine Grundrissdiskussion werden soll, möge man mir bitte verzeihen, dass ich den Fragebogen jetzt nicht ausfülle. Ich werde aber selbstverständlich gerne auf eure Fragen eingehen.
Ein paar Infos vorweg:
Unser Grundstück liegt mehr oder weniger direkt an einem kleinen See. Zwischen See und Grundstück verläuft noch eine kleine Anliegerstraße und ein ca. 10 m breiter öffentlicher Grünstreifen. Die Straßenfront des Grundstücks ist ca. 28 m breit und die Seitenlänge beträgt ca. 36 m.
Mit durchschnittlich 21% Gefälle haben wir einen relativ steilen Hang. Deswegen ist das Haus etwas in den Hang gebaut und tiefer gelegt, damit man mit den PKW noch annehmbar bequem auf das Grundstück fahren kann.
Von der Ausstattung her liegt unser Haus irgendwo knapp über Kfw 40 mit zentraler Kontrollierte-Wohnraumlüftung, Erdwärme mit Tiefenbohrung, Fußbodenheizung in allen Räumen (auch Garage) und KNX-System.
Optisch wollen wir - obwohl es sich um einen Neubau handelt - zur besseren Eingliederung in die schöne Umgebung vom Stil her eher in Richtung alte Villa gehen. Deswegen auch das Mansardendach, @Fummelbrett! Fenster mit Wiener Sprosse und ein bisschen Fassadenklimbim (Faschen, usw...).
Die Grundrisse und der Lageplan sind schon ein paar Tage alt und nur noch zu 95% auf dem neusten Stand. Beispielsweise haben wir aus Kosten- und Sinnhaftigkeitsgründen den nach Südosten gerichteten Balkon gestrichen, da wir auf der Südwestseite des Hauses ja noch ne große Terrasse haben. Auch die 11,5 cm Wand im Wohnzimmer EG wird erst mal nicht errichtet und ggf. später nur in Trockenbauweise umgesetzt. Im OG haben wir noch ne zusätzliche Einschubtreppe als Kriechbodenzugang geplant und das Bad ist auch noch nicht 100% fix. Wir haben das Haus mit 3 Kinderzimmern, 1 Gästezimmer und 1 Homeoffice geplant. Die Möblierung ist bis auf die Küche auch nur Platzhalter. Ach so...wir bauen übrigens mit Architekt und Einzelvergabe (was für ein Stress ).
Die Bilder des bisherigen Baufortschritts stehen alle im Hausbilder-Thread. Falls es in dieser Hinsicht aber noch besondere Wünsche gibt, versuche ich diese aber gerne zu erfüllen. Schnitte und Ansichten versuch ich die Tage auch noch nachzureichen.
Ich hoffe, ich konnte euch einen guten ersten Eindruck von unsrem zukünftigen Haus vermitteln und freue mich auf eure Fragen.
Grüße, -XIII-
tumaa schrieb:
Congrats!!
Ein Balkon musst nicht immer sein, auch wir haben keinen, aber wäre der hier nich optimal wegen dem Wasser ? Vielleicht mal ein Aussenfoto?Ja, ein Balkon (rote Linie) hätte hier schon ganz gut gepasst. Unser Architekt hat auch erheblichen Widerstand geleistet als wir ihm gesagt haben, dass er den streichen soll . Allerdings hätten die Isokörbe, die zusätzliche Betondecke, Geländer und Belag mindestens noch mal 15k extra gekostet. Da man von der Terrasse neben dem Haus (grüne Linie) den gleichen Blick hat und da der Balkon den Keller erheblich verschattet hätte, haben wir uns dann doch gegen den Balkon entschieden. Licht war deswegen so ein wichtiger Erwägungsgrund, da wir uns durchaus vorstellen können die Garage(n) später noch in Wohnraum umzufunktionieren (falls gebraucht).
Ähnliche Themen