Hallo,
können die Bäder so platziert werden, wenn die KG Rohre bereits in der Bodenplatte verlegt worden sind?
Hintergrund: Die Bodenplatte mit den Anschlüssen ist schon vorhanden.
Aktuell können die Räume und Positionen von WC, Dusche, Waschbecken noch geändert werden.
Könnt ihr mir sagen, ob das mit der Entfernung der Anschlüsse funktionieren würde?
Falls nicht, könnt ihr mir die bessere Variante/Platzierung mitteilen?
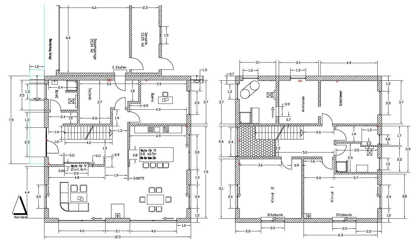
Die in der Zeichnung dargestellten roten Kreise, entsprechen den Position der KG-Rohre, welche in der Bodenplatte sind. EG/OG sind noch nicht gebaut.
Danke

können die Bäder so platziert werden, wenn die KG Rohre bereits in der Bodenplatte verlegt worden sind?
Hintergrund: Die Bodenplatte mit den Anschlüssen ist schon vorhanden.
Aktuell können die Räume und Positionen von WC, Dusche, Waschbecken noch geändert werden.
Könnt ihr mir sagen, ob das mit der Entfernung der Anschlüsse funktionieren würde?
Falls nicht, könnt ihr mir die bessere Variante/Platzierung mitteilen?
Die in der Zeichnung dargestellten roten Kreise, entsprechen den Position der KG-Rohre, welche in der Bodenplatte sind. EG/OG sind noch nicht gebaut.
Danke
Moin
Wirklich gute Lösungen fallen mir da auch nicht ein.
Im Gäste-WC im EG eventuell WC und Dusche tauschen
Einen neuen Anschluss nach außen herstellen, WT u. WC in einer Vorwand verlegen, für die Dusche im Estrich.
Die Abwasserleitungen im OG nach Absprache mit dem Betonbauer in der Zwischendecke verziehen.
Olli
Wirklich gute Lösungen fallen mir da auch nicht ein.
Im Gäste-WC im EG eventuell WC und Dusche tauschen
Einen neuen Anschluss nach außen herstellen, WT u. WC in einer Vorwand verlegen, für die Dusche im Estrich.
Die Abwasserleitungen im OG nach Absprache mit dem Betonbauer in der Zwischendecke verziehen.
Olli
ypg schrieb:
Die Info kommt jetzt aber reichlich früh??? Daß die Bodenplatte als geschenkter Gaul schon da liegt, war doch von Anbeginn klar und Ursprung der Sinndiskussion (?)MBS2201 schrieb:
Aktuell können die Räume und Positionen von WC, Dusche, Waschbecken noch geändert werden.Äh, ja, das müssen sie wohl. Schade um den sonst eigentlich baureifen vermeintlichen Endstand der Diskussion.MBS2201 schrieb:
Könnt ihr mir sagen, ob das mit der Entfernung der Anschlüsse funktionieren würde?Zuflüsse sehe ich gar nicht, die roten Markierungen sollen wohl Abflüsse darstellen. Wir reden hier ja nicht von Lüftung, sondern von Abwasser. Also muß hier auf jedem Weg auch Gefälle geboten werden.Das Bad betreffend läßt sich das unter der Decke der Dusche und im Technikraum realisieren. Für Küche und Kinderbad ("grau" und "äh, Du weißt schon" gemischt - wie schön) paßt es in der Ecke der Küche. Die Dusche selbst sehe ich nicht "versorgt". Drei Abflüsse in Eingang und Büro werden tote Gleise. Die Entsorgungsleistung wird letztlich also von halb so vielen Rohren erledigt wie für den "Vorgängerbau" geplant war.
Da hättest Du wohl besser die Küchen- und Bäderlagen des alten Planes als "Festpunkte" übernommen. Am Ende behalte ich recht und es kommt doch noch zu einer Hilti-Party - oder Du planst noch´mal um.
https://www.instagram.com/11antgmxde/
https://www.linkedin.com/company/bauen-jetzt/
Ähnliche Themen