Hallo zusammen,
wir bauen ein Einfamilienhaus, im OG wird aktuell die Decke gemacht. Nun müssen wir die genaue Position der Brennstellen bzw. Spots oder Panels fest legen und ebenfalls Ausschnitt etc.
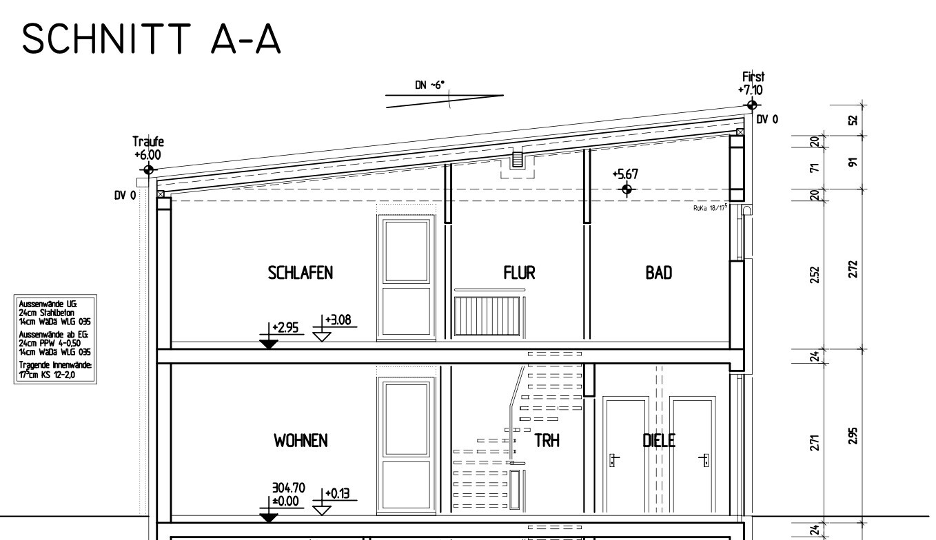
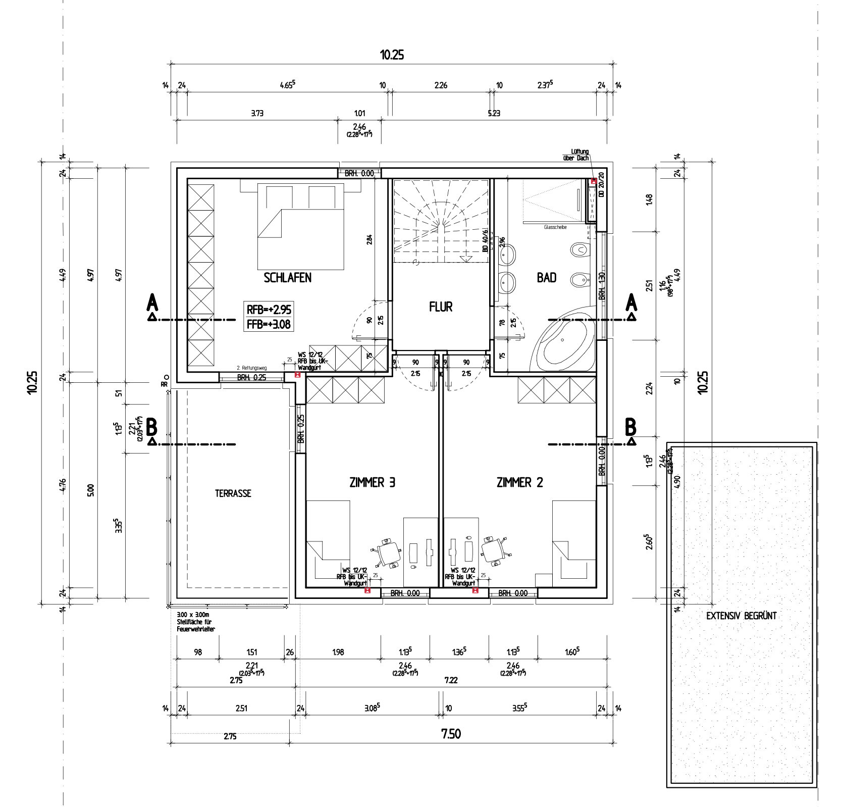
Hier die aktuelle Planung: oben links ist das Schlafzimmer, unten sind 2 Kinderzimmer, anbei auch noch ein Bild aus der Perspektive um ein Gefühl zu bekommen, wie die Räume aussehen. Durch die 6 Grad Neigung des Daches ist die Zimmerhöhe recht groß, v.a. im Bad und Flur.

Aktuell habe ich viele kleinere (6cm Durchmesser) Spots vorgesehen, die man auch bis 30 Grad kippen/drehen kann. Im Schlafzimmer noch zusätzlich eine Lampe (gelber Kreis) als Aufputz (z.B. Kronleuchter etc.)
Für die Decke wird eine 30mm Beplankung gemacht und darauf 12mm Rigips Platten, sodass man insgesamt nur 42mm Tiefe hat.
Jetzt sind wir unschlüssig, ob wir das so mit den vielen Spots machen sollen oder ob wir hier lieber kleinere / mittelgroße LED Panels nehmen sollen, die moderner aussehen. Ich habe die Panels von EVN in die engere Auswahl genommen, die gibt es in den Größen 12cm, 17,2cm, 22,5cm und 28cm Durchmesser und geben auch ordentliches Licht. Für alle Räume sind dimmbare Leuchten vorgesehen, alle Zimmer hat man sternförmig 5adrig angefahren (vom Verteiler), sodass man hier entweder DALI oder auch mehrere Gruppen (maximal 3) bilden kann, die man getrennt schaltet. Beleuchtung ist komplett mit KNX.
Wir sind an Ideen und Anregungen interessiert, irgendwie möchten wir die aktuelle Planung komplett umwerfen und dann doch mit den Panels machen anstatt Spots. Im Kinderzimmer z.B. 2 22,5cm oder 28cm Panels im oberen und unteren Bereich, die man getrennt schalten/dimmen kann. Ein Panel in der Mitte wäre vermutlich zu wenig, damit man den Raum schön ausleuchten kann.
Auch unschlüssig, ob wir wirklich die Ausschnitte für die Panels machen sollen oder nur ein Kabelauslass, damit wir später flexibel sind und nicht jetzt schon Fakten schaffen.. wie groß der Panel sein soll etc. Die Aufputz Variante kann man auch anschauen und die Räume sind auch recht hoch.
Vielen Dank schon mal!
Gruß,
Remus
wir bauen ein Einfamilienhaus, im OG wird aktuell die Decke gemacht. Nun müssen wir die genaue Position der Brennstellen bzw. Spots oder Panels fest legen und ebenfalls Ausschnitt etc.
Hier die aktuelle Planung: oben links ist das Schlafzimmer, unten sind 2 Kinderzimmer, anbei auch noch ein Bild aus der Perspektive um ein Gefühl zu bekommen, wie die Räume aussehen. Durch die 6 Grad Neigung des Daches ist die Zimmerhöhe recht groß, v.a. im Bad und Flur.
Aktuell habe ich viele kleinere (6cm Durchmesser) Spots vorgesehen, die man auch bis 30 Grad kippen/drehen kann. Im Schlafzimmer noch zusätzlich eine Lampe (gelber Kreis) als Aufputz (z.B. Kronleuchter etc.)
Für die Decke wird eine 30mm Beplankung gemacht und darauf 12mm Rigips Platten, sodass man insgesamt nur 42mm Tiefe hat.
Jetzt sind wir unschlüssig, ob wir das so mit den vielen Spots machen sollen oder ob wir hier lieber kleinere / mittelgroße LED Panels nehmen sollen, die moderner aussehen. Ich habe die Panels von EVN in die engere Auswahl genommen, die gibt es in den Größen 12cm, 17,2cm, 22,5cm und 28cm Durchmesser und geben auch ordentliches Licht. Für alle Räume sind dimmbare Leuchten vorgesehen, alle Zimmer hat man sternförmig 5adrig angefahren (vom Verteiler), sodass man hier entweder DALI oder auch mehrere Gruppen (maximal 3) bilden kann, die man getrennt schaltet. Beleuchtung ist komplett mit KNX.
Wir sind an Ideen und Anregungen interessiert, irgendwie möchten wir die aktuelle Planung komplett umwerfen und dann doch mit den Panels machen anstatt Spots. Im Kinderzimmer z.B. 2 22,5cm oder 28cm Panels im oberen und unteren Bereich, die man getrennt schalten/dimmen kann. Ein Panel in der Mitte wäre vermutlich zu wenig, damit man den Raum schön ausleuchten kann.
Auch unschlüssig, ob wir wirklich die Ausschnitte für die Panels machen sollen oder nur ein Kabelauslass, damit wir später flexibel sind und nicht jetzt schon Fakten schaffen.. wie groß der Panel sein soll etc. Die Aufputz Variante kann man auch anschauen und die Räume sind auch recht hoch.
Vielen Dank schon mal!
Gruß,
Remus
RemusLazar schrieb:
Habt ihr eine Idee, wo man im Schlafzimmer die Brennstellen positionieren könnte?Unter dem Bett LED-Streifen. Ist ganz angenehm wenn man Nachts raus muss oder früh aufsteht und den "Weg" ausleuchten kann ohne gleich Festbeleuchtung zu fahren 🙂
RemusLazar schrieb:
Im Schlafzimmer sind wir auch unschlüssig, ob wir einen schönen Kronleuchter einsetzen und dann mit einem Deckenfluter oder so noch Licht rein bringenBeides. Erstmal einfach immer mittig im Raum eine Deckenlampe, die den Raum schön erhellt. Zusätzlich dann indirekte Beleuchtung für gemütliche Stimmung oder um den Partner nicht direkt zu wecken, wenn man früher raus muss und Licht braucht. Damit machst du erstmal nichts falsch.Tassimat schrieb:
Beides. E
rstmal einfach immer mittig im Raum eine Deckenlampe, die den Raum schön erhellt. Zusätzlich dann indirekte Beleuchtung für gemütliche Stimmung oder um den Partner nicht dirkt zu wecken, wenn man früher raus muss und Licht braucht. Damit machst du erstmal nichts falsch.ja, so haben wir auch gedacht. Ich denke, mehr als eine Lampe im Raum an der Decke wäre eh zu viel.
Als Deckenlampe dachte ich auch an was mit Tunable White, sodass man morgens eine kalte Lichtfarbe hat (4000-5000K), die richtig kickt und dann abends eben eher Richtung 2700K oder weniger für die gemütliche Stimmung. Da wir Smarthome mit KNX und DALI machen, lässt sich das alles problemlos nachrüsten.
Im Bad ebenfalls so, dass man morgens richtig ein kaltes Licht nimmt (Tageslicht-Weiß), damit man auch im Winter richtig wach wird, abends dann eben auch Richtung 2300K oder so geht.
sysrun80 schrieb:
Unter dem Bett LED-Streifen. Ist ganz angenehm wenn man Nachts raus muss oder früh aufsteht und den "Weg" ausleuchten kann ohne gleich Festbeleuchtung zu fahren 🙂genau das habe ich schon vorgesehen! Habe extra einen Kabelauslass vorgesehen mit DALI unten am Bett, so man dort auch mit einem RGB-LED Streifen arbeiten kann, was man auch zentral steuert - ich will viel mit Szenen arbeiten. Und ebenfalls oben am schrank ist eine geschaltete Steckdose, sodass man auch das Schrank-Licht oben in die zentrale Steuerung integrieren kann.
T
Traufgänger04.08.22 23:1668mm Bohrung ist halt Standard, da kannst bei 42 mm natürlich auch eher kein Einbaustrahler reinmachen mit Reflektor. Die Art des Strahlers ist natürlich für die Lichtwirkung im Raum wichtig. Aufbaupannel machen anderes Licht und gibt es auch seltener in 2700K. Schick mir mal die Raumaße und die Höhen, dann kann ich mal was im Relux reinziehen.
Traufgänger schrieb:
68mm Bohrung ist halt Standard, da kannst bei 42 mm natürlich auch eher kein Einbaustrahler reinmachen mit Reflektor. Die Art des Strahlers ist natürlich für die Lichtwirkung im Raum wichtig. Aufbaupannel machen anderes Licht und gibt es auch seltener in 2700K. Schick mir mal die Raumaße und die Höhen, dann kann ich mal was im Relux reinziehen.Cool, vielen Dank schon mal! Ich als Mac-User konnte leider dies nicht selber tun..
Ähnliche Themen