ᐅ Planung Zweigeschossbau Einfamilienhaus bei 8,0m Mindesttraufhöhe?
Erstellt am: 10.07.12 03:23
B
BrasilianerB
Brasilianer10.07.12 03:23Hallo zusammen,
ich möchte ein freistehendes Einfamilienhaus bauen und bin an einem Grundstück im noerdlichen Ba-Wü interessiert.
Der bebauungsplan sieht in diesem Bereich eine Traufhöhe von min 8,0m über Boden vor (bis zu drei Vollgeschosse zulässig), da nach dem Willen der Stadt bei Planerstellung eigentlich ein Mehrfamilienhaus angesiedelt werden sollte.
Mein Problem ist nun, wie ich die Massgabe Mindesttraufhöhe 8,0m mit einem normalen Einfamilienhaus mit max. zwei Vollgeschossen (unser Planungskriterium) unter einen Hut bekomme.
Löste man sich von unserem selbst gesetzten Planungskriterium max. zwei Geschosse, könnte man z.B. bei Auswahl eines Pultdaches ein Dachgeschoss mit erhöhtem Kniestock nehmen (die Traufhöhe bezieht sich laut Bebauungsplan auf den niedrigeren Teil des Pultdaches). Allerdings liegen die Baukosten für 2,5 Geschosse sicher deutlich über denen für zwei Geschosse (zusätzliche Treppe, Leitungen, ggf. stabile Decke)und eigentlich brauchen wir das zusätzliche halbe Geschoss auch nicht.
Eine andere Moeglichkeit wäre mit einem grossteils ueberirdischen Keller zu bauen, um Höhe zu gewinnen. Dies hätte aber den Nachteil, dass Wohnzimmer und ggf. Terrasse nicht am sondern ueber dem Garten Lägen . Ausserdem wäre ein solcher Keller, der zudem aufgrund des sehr hoch stehenden Grundwassers abgedichtet werden müsste, sicher auch sehr teuer (mehr Fenster etc.).
Habe ich irgendwo einen Denkfehler drin?
Sieht jemand vielleicht noch eine andere Moeglichkeit, auf die 8,0m Traufhöhe zu kommen?
Vielen Dank und viele Gruesse
Brasilianer
ich möchte ein freistehendes Einfamilienhaus bauen und bin an einem Grundstück im noerdlichen Ba-Wü interessiert.
Der bebauungsplan sieht in diesem Bereich eine Traufhöhe von min 8,0m über Boden vor (bis zu drei Vollgeschosse zulässig), da nach dem Willen der Stadt bei Planerstellung eigentlich ein Mehrfamilienhaus angesiedelt werden sollte.
Mein Problem ist nun, wie ich die Massgabe Mindesttraufhöhe 8,0m mit einem normalen Einfamilienhaus mit max. zwei Vollgeschossen (unser Planungskriterium) unter einen Hut bekomme.
Löste man sich von unserem selbst gesetzten Planungskriterium max. zwei Geschosse, könnte man z.B. bei Auswahl eines Pultdaches ein Dachgeschoss mit erhöhtem Kniestock nehmen (die Traufhöhe bezieht sich laut Bebauungsplan auf den niedrigeren Teil des Pultdaches). Allerdings liegen die Baukosten für 2,5 Geschosse sicher deutlich über denen für zwei Geschosse (zusätzliche Treppe, Leitungen, ggf. stabile Decke)und eigentlich brauchen wir das zusätzliche halbe Geschoss auch nicht.
Eine andere Moeglichkeit wäre mit einem grossteils ueberirdischen Keller zu bauen, um Höhe zu gewinnen. Dies hätte aber den Nachteil, dass Wohnzimmer und ggf. Terrasse nicht am sondern ueber dem Garten Lägen . Ausserdem wäre ein solcher Keller, der zudem aufgrund des sehr hoch stehenden Grundwassers abgedichtet werden müsste, sicher auch sehr teuer (mehr Fenster etc.).
Habe ich irgendwo einen Denkfehler drin?
Sieht jemand vielleicht noch eine andere Moeglichkeit, auf die 8,0m Traufhöhe zu kommen?
Vielen Dank und viele Gruesse
Brasilianer
M
Micha&Dany10.07.12 06:02Hallo Brasilianer
ich kann Dir leider bei Deinem Problem nicht direkt helfen, aber ein Gedanke kommt mir beim Lesen Deines Eintrags doch...
Wenn die Stadt eigentlich ein Mehrfamilienhaus dort haben möchte, dann wird das wahrscheinlich seinen Grund haben... Wie ist denn die restliche Bebauung um das Grundstück herum? Handelt es sich um eine Baulücke oder um ein Neubaugebiet?
Ich gehe von einer Baulücke aus und die Bebauung in der Umgebung dürften auch Mehrfamilienhäuser sein...
Und wenn ich mir jetzt überlege ich würde mit meinem Einfamilienhaus mitten zwischen den Mehrfamilienhaus sitzen...
Okay, ob einen das stört oder nicht muss jeder für sich selber entscheiden. Mich würde das stören.
Und denk dran: Du planst hier, den Rest Deines Lebens (oder zumindest einen sehr großen Teil davon) in diesem Haus, dieser Umgebung zu verbringen...
Aber vielleicht liege ich ja falsch 😀
Auf jeden Fall ist die Lage des Grundstücks das wichtigste am Hausbau überhaupt! Bei (fast) allen Dingen kann man Kompromisse eingehen - nicht aber bei der Lage des Grundstücks!!
Sorry, wenn ich bei Deiner Frage keine Hilfe sein konnte.
Grüße
Micha 😎
ich kann Dir leider bei Deinem Problem nicht direkt helfen, aber ein Gedanke kommt mir beim Lesen Deines Eintrags doch...
Wenn die Stadt eigentlich ein Mehrfamilienhaus dort haben möchte, dann wird das wahrscheinlich seinen Grund haben... Wie ist denn die restliche Bebauung um das Grundstück herum? Handelt es sich um eine Baulücke oder um ein Neubaugebiet?
Ich gehe von einer Baulücke aus und die Bebauung in der Umgebung dürften auch Mehrfamilienhäuser sein...
Und wenn ich mir jetzt überlege ich würde mit meinem Einfamilienhaus mitten zwischen den Mehrfamilienhaus sitzen...
Okay, ob einen das stört oder nicht muss jeder für sich selber entscheiden. Mich würde das stören.
Und denk dran: Du planst hier, den Rest Deines Lebens (oder zumindest einen sehr großen Teil davon) in diesem Haus, dieser Umgebung zu verbringen...
Aber vielleicht liege ich ja falsch 😀
Auf jeden Fall ist die Lage des Grundstücks das wichtigste am Hausbau überhaupt! Bei (fast) allen Dingen kann man Kompromisse eingehen - nicht aber bei der Lage des Grundstücks!!
Sorry, wenn ich bei Deiner Frage keine Hilfe sein konnte.
Grüße
Micha 😎
B
Brasilianer10.07.12 11:22Hallo Micha&Dani,
Ihr habt Recht, die Lage des Grundstücks ist ein sehr wichtiger Punkt. In unserem Fall handelt es sich um ein Neubaugebiet, bei dem um das für uns interessante Grundstück herum nur nur noch ein Mehrfamilienhaus und ansonsten Reihen- und Doppelhaeuser entstehen sollen. für uns ist das Grundstück deshalb so interessant, da man freistehend bauen kann, wenn nicht das Thema mit den 8,0 Mindesttraufhöhe wäre...
Viele Gruesse
Brasilianer
Ihr habt Recht, die Lage des Grundstücks ist ein sehr wichtiger Punkt. In unserem Fall handelt es sich um ein Neubaugebiet, bei dem um das für uns interessante Grundstück herum nur nur noch ein Mehrfamilienhaus und ansonsten Reihen- und Doppelhaeuser entstehen sollen. für uns ist das Grundstück deshalb so interessant, da man freistehend bauen kann, wenn nicht das Thema mit den 8,0 Mindesttraufhöhe wäre...
Viele Gruesse
Brasilianer
B
Bauexperte10.07.12 11:39Hallo,
Freundliche Grüße
Brasilianer schrieb:Wie bzw. was möchtest Du denn freistehend erstellen, an Mitteln in die Hand nehmen? Mit einem kreativen Architekten lassen sich tolle Entwürfe über unterschiedliche Geschosshöhen erarbeiten 😉
für uns ist das Grundstück deshalb so interessant, da man freistehend bauen kann, wenn nicht das Thema mit den 8,0 Mindesttraufhöhe wäre...
Freundliche Grüße
B
Brasilianer10.07.12 11:42Hallo Musketier,
einige wenige Kataloghausanbieter haben so einen Haustyp mit aufgesetztem Atriumgeschoss (als 3. Geschoss) und Dachterrasse im Programm. Da die bebaute Grundfläche dieses Haustyps regelmaessig zwischen 80 und 90 qm liegt und man die Wohnfläche ueber drei Etagen verteilt, zielt dieser Haustyp insbesondere auf kleine da teure Grundstücke in innerstaedtischen Lagen. Setzt man ein solches Haus auf ein etwas groesseres Grundstück, wie in unserem Fall (750 qm), sieht es etwas verloren aus. Eine Dachterrasse brauchen wir im Prinzip auch nicht, da grosser Garten vorhanden. Zudem sind die Kosten nicht ganz ohne, schlüsselfertig habe ich Angebote für diesen Bautyp ab EUR 380.000 aufwaerts gesehen. Das wäre so die Grenze dessen, was wir investieren möchten.
Hat noch jemand eine Idee, wie man das dritte Geschoss vermeiden könnte und trotzdem auf 8,0 m Mindesttraufhöhe kommt?
Viele Gruesse
Brasilianer
einige wenige Kataloghausanbieter haben so einen Haustyp mit aufgesetztem Atriumgeschoss (als 3. Geschoss) und Dachterrasse im Programm. Da die bebaute Grundfläche dieses Haustyps regelmaessig zwischen 80 und 90 qm liegt und man die Wohnfläche ueber drei Etagen verteilt, zielt dieser Haustyp insbesondere auf kleine da teure Grundstücke in innerstaedtischen Lagen. Setzt man ein solches Haus auf ein etwas groesseres Grundstück, wie in unserem Fall (750 qm), sieht es etwas verloren aus. Eine Dachterrasse brauchen wir im Prinzip auch nicht, da grosser Garten vorhanden. Zudem sind die Kosten nicht ganz ohne, schlüsselfertig habe ich Angebote für diesen Bautyp ab EUR 380.000 aufwaerts gesehen. Das wäre so die Grenze dessen, was wir investieren möchten.
Hat noch jemand eine Idee, wie man das dritte Geschoss vermeiden könnte und trotzdem auf 8,0 m Mindesttraufhöhe kommt?
Viele Gruesse
Brasilianer
B
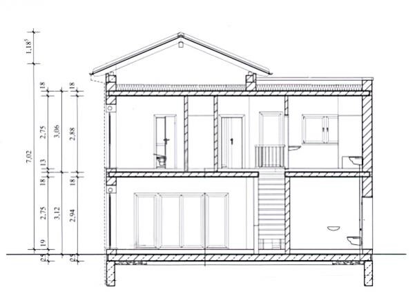
Bauexperte10.07.12 12:13Hallo,
Freundliche Grüße

Brasilianer schrieb:Habe Dir einen Schnitt angehängt, damit Du Dir etwas unter meiner vorhergehenden Antwort vorstellen kannst. Wenn Du jetzt die Walmdachseite um 1,0 m mittels Drempel erhöhst, bist Du bei den geforderten 8,0 m TH. Die Fläche läßt sich nur als Abstellfläche nutzen - ergibt aber bei BP Sinn.
Hat noch jemand eine Idee, wie man das dritte Geschoss vermeiden könnte und trotzdem auf 8,0 m Mindesttraufhöhe kommt?
Freundliche Grüße
Ähnliche Themen