Hallo zusammen,
es geht um die Optimierung des Grundrisses unserer Neubau Wohnung. Ich finde die Anordnung der Sanitärobjekte leider noch nicht ganz optimal, vielleicht hat jemand noch eine Idee zur Optimierung.
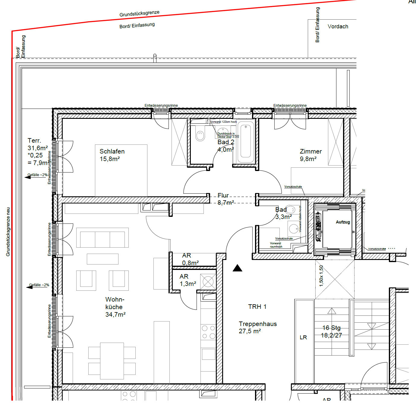
Im kleineren Bad kann ich mir gar nicht vorstellen, dass man vor dem waschbecken Vernünftig stehen kann, bei einer Dusch von 80x80 und einem 60cm Waschbecken bleiben gerade mal 30 cm zwischen Dusche und WB.
Meine Idee war evtl. die Toilette im 45° Winkel in die Ecke zu setzen und das Waschbecken gegenüber der Tür.
Im größeren Bad haben wir schon etwas umgeplant, so dass jetzt eine Badewanne von 170 cm länge rein passt, allerdings vor dem Fenster. Würdet ihr die Wanne vor das Fenster stellen oder nur eine 140cm lange Wanne nehmen und auf die andere Seite des Bades setzen?
(Leider bricht der Grundriss upload immer ab, versuche es gleich noch mal)
es geht um die Optimierung des Grundrisses unserer Neubau Wohnung. Ich finde die Anordnung der Sanitärobjekte leider noch nicht ganz optimal, vielleicht hat jemand noch eine Idee zur Optimierung.
Im kleineren Bad kann ich mir gar nicht vorstellen, dass man vor dem waschbecken Vernünftig stehen kann, bei einer Dusch von 80x80 und einem 60cm Waschbecken bleiben gerade mal 30 cm zwischen Dusche und WB.
Meine Idee war evtl. die Toilette im 45° Winkel in die Ecke zu setzen und das Waschbecken gegenüber der Tür.
Im größeren Bad haben wir schon etwas umgeplant, so dass jetzt eine Badewanne von 170 cm länge rein passt, allerdings vor dem Fenster. Würdet ihr die Wanne vor das Fenster stellen oder nur eine 140cm lange Wanne nehmen und auf die andere Seite des Bades setzen?
(Leider bricht der Grundriss upload immer ab, versuche es gleich noch mal)
Ich hab zwar jetzt keine Bilder aber ich bin kein Freund von Gäste-WC Duschen. Man hat keinen Platz sich abzutrocknen oder anzuziehen. Also wird die Dusche mit Sicherheit kaum einer nutzen - wenn überhaupt. Hier in unserem Mietshaus reine Platzverschwendung und Staubfänger 🙁
Ein 45 Grad WC habe ich schon gesehen, gefällt mir persönlich nicht. Wirkt irgendwie so präsentiert 😉
Eine 140cm Wanne würde ich als "Vielbader" auf keinen Fall akzeptieren. Bei uns ist die Wanne auch unter dem halben Fenster etwa. Zwar ein Lichtband - also hoch damit keiner reinschauen kann- aber auch bei normalen Fenstern kann man sich da mittels Plissees helfen. Ich find's nicht schlimm. Die Fensterbank kann für Teelichter herhalten damit man sich's beim Baden schön gemütlich machen kann.
Im www kannst du auch über directupload oder directload oder wie das heißt Anhänge hier einstellen.
milkie 🙂
Ein 45 Grad WC habe ich schon gesehen, gefällt mir persönlich nicht. Wirkt irgendwie so präsentiert 😉
Eine 140cm Wanne würde ich als "Vielbader" auf keinen Fall akzeptieren. Bei uns ist die Wanne auch unter dem halben Fenster etwa. Zwar ein Lichtband - also hoch damit keiner reinschauen kann- aber auch bei normalen Fenstern kann man sich da mittels Plissees helfen. Ich find's nicht schlimm. Die Fensterbank kann für Teelichter herhalten damit man sich's beim Baden schön gemütlich machen kann.
Im www kannst du auch über directupload oder directload oder wie das heißt Anhänge hier einstellen.
milkie 🙂
hm, vlt solltet Ihr Euch mal Gedanken darüber machen, wie die beiden Bäder wirklich genutzt werden.
Gäste-Wc hat normalerweise kein Waschtisch von 60 Breite, ehr die 50 und 48 in der Tiefe.
Macht Ihr Euch wirklich zur gleichen Zeit fertig? Das machen doch gerade 5 min Duschen abwechselnderweise aus.... putzen muss man nicht jeden Tag 2 mal...
Sollen beide Bäder gleichwertig sein?
Wollt Ihr einen kleinen Wellnesstempel? Dann würde ich im größeren zB auf die Toilette verzichten, statt dessen eine 180er Wanne planen, also Waschtisch und Wanne im grossen Bad.
Im kleinen eine bodentiefe Dusche (wenn es denn im Mehrfamilienhaus geht) mit Glasabtrennung zum Einklappen und Bodenfreiheit für Wc hinten rechts, ggü der Tür das Waschbecken.
Mein Tipp: mal nochmal überlegen, wie wann und wie intensiv genutzt.
Gäste-Wc hat normalerweise kein Waschtisch von 60 Breite, ehr die 50 und 48 in der Tiefe.
Macht Ihr Euch wirklich zur gleichen Zeit fertig? Das machen doch gerade 5 min Duschen abwechselnderweise aus.... putzen muss man nicht jeden Tag 2 mal...
Sollen beide Bäder gleichwertig sein?
Wollt Ihr einen kleinen Wellnesstempel? Dann würde ich im größeren zB auf die Toilette verzichten, statt dessen eine 180er Wanne planen, also Waschtisch und Wanne im grossen Bad.
Im kleinen eine bodentiefe Dusche (wenn es denn im Mehrfamilienhaus geht) mit Glasabtrennung zum Einklappen und Bodenfreiheit für Wc hinten rechts, ggü der Tür das Waschbecken.
Mein Tipp: mal nochmal überlegen, wie wann und wie intensiv genutzt.
Ähnliche Themen