ᐅ Planung der Garten- und Außenanlage
Erstellt am: 11.02.14 16:57
Liebe Forumsteilnehmer,
seit 3 Wochen leben wir schon in unserem neuen Haus, wo wir uns sehr wohl fühlen.
Nun werden die Tage wieder länger und wir schauen auf Erdhügel. Die Auffahrt ist auch noch nicht gemacht
Die Auffahrt wollen wir mit Schotter belegen. Dazu haben wir auch schon einen festgerüttelten Untergrund. Die Umrisse stehen hierzu schon fest und müssen von einem Fachmann eingefasst werden.
Die Hauseinfassung soll auch aus dem Schotter, so ca. 1 Meter breit und als Weg dienen.
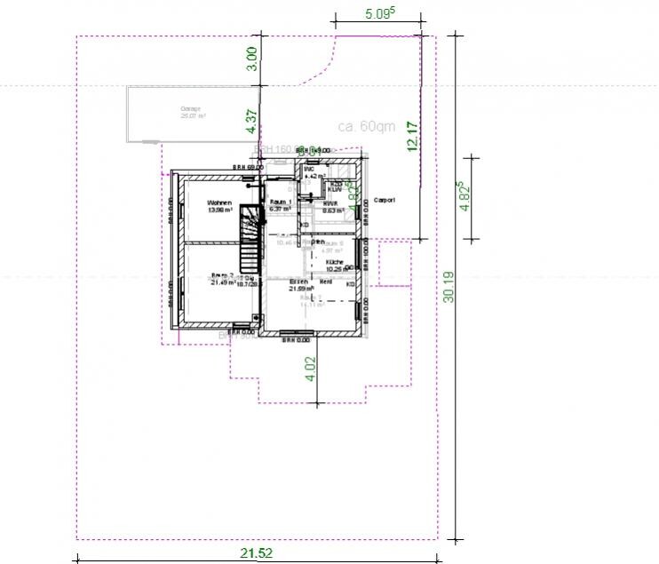
Garage steht auch schon, das Carport ist neben dem Haus (Osten) geplant.
Jetzt möchte ich gern Ideen sammeln. Vielleicht hat der ein oder andere von Euch spontane Ideen, bevor wir unsere festgefahrenen Planungen verwirklichen?
-> Windschutz, Sichtschutz, Terrasse(n), Bewuchs
Im Anhang seht Ihr unser 650 qm Grundstück. Oben ist Norden. Lasst Euch nicht von den Maßen irritieren. Im Osten sind ca. 4,5 Meter Breite vorhanden, im Westen ca. 6 Meter. Im Süden kommen wir auf ca. 13 Meter.
Alle angezeigten Fenster (ausser die im Norden) und das mittlere im Osten (Küche) sind Terrassenfenster.
Wir planen mehrere Sitzgelegenheiten, zB ist ein kleines Outdoor-Sofa vorhanden sowie 2 kleine Granitbänke. Außerdem gibts natürlich den obligatorischen Tisch mit 6 Stühlen und zwei Liegen und zwei Eisenstühle Kinderschaukel oder ähnliches brauchen wir nicht mehr.
Gewünscht ist zwar modernes Flair, aber nicht einfach nur Buchs und Bambus. Etwas mehr darf es sein, auch Kartoffeln wollte ich
Ob wir eine Terrassenüberdachung machen, hängt von den Kosten ab, vlt eine Markise?

Ich freue mich, wenn Ihr Euch kurz Zeit nimmt

seit 3 Wochen leben wir schon in unserem neuen Haus, wo wir uns sehr wohl fühlen.
Nun werden die Tage wieder länger und wir schauen auf Erdhügel. Die Auffahrt ist auch noch nicht gemacht
Die Auffahrt wollen wir mit Schotter belegen. Dazu haben wir auch schon einen festgerüttelten Untergrund. Die Umrisse stehen hierzu schon fest und müssen von einem Fachmann eingefasst werden.
Die Hauseinfassung soll auch aus dem Schotter, so ca. 1 Meter breit und als Weg dienen.
Garage steht auch schon, das Carport ist neben dem Haus (Osten) geplant.
Jetzt möchte ich gern Ideen sammeln. Vielleicht hat der ein oder andere von Euch spontane Ideen, bevor wir unsere festgefahrenen Planungen verwirklichen?
-> Windschutz, Sichtschutz, Terrasse(n), Bewuchs
Im Anhang seht Ihr unser 650 qm Grundstück. Oben ist Norden. Lasst Euch nicht von den Maßen irritieren. Im Osten sind ca. 4,5 Meter Breite vorhanden, im Westen ca. 6 Meter. Im Süden kommen wir auf ca. 13 Meter.
Alle angezeigten Fenster (ausser die im Norden) und das mittlere im Osten (Küche) sind Terrassenfenster.
Wir planen mehrere Sitzgelegenheiten, zB ist ein kleines Outdoor-Sofa vorhanden sowie 2 kleine Granitbänke. Außerdem gibts natürlich den obligatorischen Tisch mit 6 Stühlen und zwei Liegen und zwei Eisenstühle Kinderschaukel oder ähnliches brauchen wir nicht mehr.
Gewünscht ist zwar modernes Flair, aber nicht einfach nur Buchs und Bambus. Etwas mehr darf es sein, auch Kartoffeln wollte ich
Ob wir eine Terrassenüberdachung machen, hängt von den Kosten ab, vlt eine Markise?
Ich freue mich, wenn Ihr Euch kurz Zeit nimmt
W
wadenkneifer12.02.14 20:26Moin,
also: ich hab verstanden, ihr wollt Zier- und Nutzgarten (Kartoffeln...). Wie schauts aus mit Spielgarten? Also Platz für Kinder zum Toben? Da geht schnell sehr viel Platz darauf.
Habt Ihr Garage und Carport? oder sind das zwei unterschiedliche Varianten, über die mal nachgedacht wurde?
- Terrasse würde ich Südwest Ecke vom Haus machen. Was ist Zimmer 2? Stört das andere Terrasse?
- Weitere Sitz-Ecken:
-- Hinter der Garage, in Verbindung mit einem Teil Ziergarten
-- in der Südwest-Ecke
- Aufteilung:
-- Ziergarten auf der West-Seite von Garage bis zur Terrasse (vor der Garage natürlich auch).
-- Spielgarten die Südwest-Ecke vom Grundstück ab Terrasse
-- Kräutergarten vor der Küche auf der Ost-Seite
-- Gemüsegarten entweder die Süd-Seite als Streifen oder die Süd-Ost-Seite.
Das würde ich mal so als Grobplanung in den Plan skizzieren. Dann mal Bebauungsplan schauen, was erforderlich ist (häufig irgendwie 1-2 großkronige Bäume pro Stellplatz...) und diese Objekte grob anordnen.
Südseite zum Weg hin würde ich mit einer Hecke abschirmen, ist weit genug von der Terrasse weg um Abschattung zu verhindern.
Ost-Seite kann eher offener sein, auf der Terrassenseite: ein Sichtschutz kann nicht schaden
Viele Grüße
Michael
also: ich hab verstanden, ihr wollt Zier- und Nutzgarten (Kartoffeln...). Wie schauts aus mit Spielgarten? Also Platz für Kinder zum Toben? Da geht schnell sehr viel Platz darauf.
Habt Ihr Garage und Carport? oder sind das zwei unterschiedliche Varianten, über die mal nachgedacht wurde?
- Terrasse würde ich Südwest Ecke vom Haus machen. Was ist Zimmer 2? Stört das andere Terrasse?
- Weitere Sitz-Ecken:
-- Hinter der Garage, in Verbindung mit einem Teil Ziergarten
-- in der Südwest-Ecke
- Aufteilung:
-- Ziergarten auf der West-Seite von Garage bis zur Terrasse (vor der Garage natürlich auch).
-- Spielgarten die Südwest-Ecke vom Grundstück ab Terrasse
-- Kräutergarten vor der Küche auf der Ost-Seite
-- Gemüsegarten entweder die Süd-Seite als Streifen oder die Süd-Ost-Seite.
Das würde ich mal so als Grobplanung in den Plan skizzieren. Dann mal Bebauungsplan schauen, was erforderlich ist (häufig irgendwie 1-2 großkronige Bäume pro Stellplatz...) und diese Objekte grob anordnen.
Südseite zum Weg hin würde ich mit einer Hecke abschirmen, ist weit genug von der Terrasse weg um Abschattung zu verhindern.
Ost-Seite kann eher offener sein, auf der Terrassenseite: ein Sichtschutz kann nicht schaden
Viele Grüße
Michael
Vielen Dank, Michael,
ich stelle erschrocken fest, dass die Zimmerbenennung (soweit man diese lesen kann) nicht richtig ist. Nordwest ist unser Gäste-Arbeits/Sportzimmer, Südwest ist Wohnen, Süden ist Essen und Südost ist die Küche.
Wir haben Garage und Carport. Garage steht schon, Zufahrt war im Bebauungsplan festgeschrieben.
Spielen nur noch für grosse Kinder - das heisst für uns (Ü40 und Ü50 ) und nur uns, also ein Nutzgarten, ja
Hast Du eine Idee für grosskronige Bäume?
Deine Ideen streifen viel unsere Ideen, bis auf die Terrasse: Wir sehen im Süden/Südost den Hauptausgang, eventuell im Westen Lounge oder so?
Wie würdest Du Nutzgarten vom Ziergarten trennen?
Sollte man eher den Garten eckig oder oval/rund anordnen???????????
Vielen Dank,
Yvonne
ich stelle erschrocken fest, dass die Zimmerbenennung (soweit man diese lesen kann) nicht richtig ist. Nordwest ist unser Gäste-Arbeits/Sportzimmer, Südwest ist Wohnen, Süden ist Essen und Südost ist die Küche.
Wir haben Garage und Carport. Garage steht schon, Zufahrt war im Bebauungsplan festgeschrieben.
Spielen nur noch für grosse Kinder - das heisst für uns (Ü40 und Ü50 ) und nur uns, also ein Nutzgarten, ja
Hast Du eine Idee für grosskronige Bäume?
Deine Ideen streifen viel unsere Ideen, bis auf die Terrasse: Wir sehen im Süden/Südost den Hauptausgang, eventuell im Westen Lounge oder so?
Wie würdest Du Nutzgarten vom Ziergarten trennen?
Sollte man eher den Garten eckig oder oval/rund anordnen???????????
Vielen Dank,
Yvonne
W
wadenkneifer12.02.14 21:22Moin,
Enkel irgendwann zu erwarten? meine Eltern haben den Garten noch mal komplett umgebaut
Warum wollt ihr mit der Terrasse an die Süd-Ost-Ecke?
Müsst ihr großkronige Bäume setzen? wenn ja ist bestimmt auch festgelegt, was ihr pflanzen müsst/dürft. Dann gehts eigentlich nur um den persönlichen Geschmack. Wenn erlaubt und eh ein Nutzteil geplant ist würde ich dann auch einen Nutzbaum nehmen. Pflaume, Apfel, Kirsche nach Geschmack.
Wenn Terrasse Süd/Ost fest ist: Dann natürlich auch auf diese Seite den Ziergarten. Den Nutzgarten dann eher auf die West-Seite. Vorne bis Garage natürlich auch Zier. Zum Trennen: ne kleine Hecke. Oder als Übergang evtl. Sträucher wie Stachelbeere oder Johannesbeeren. Evtl. auch eine Idee: Spalierobst.
Viele Grüße
Michael
Enkel irgendwann zu erwarten? meine Eltern haben den Garten noch mal komplett umgebaut
Warum wollt ihr mit der Terrasse an die Süd-Ost-Ecke?
Müsst ihr großkronige Bäume setzen? wenn ja ist bestimmt auch festgelegt, was ihr pflanzen müsst/dürft. Dann gehts eigentlich nur um den persönlichen Geschmack. Wenn erlaubt und eh ein Nutzteil geplant ist würde ich dann auch einen Nutzbaum nehmen. Pflaume, Apfel, Kirsche nach Geschmack.
Wenn Terrasse Süd/Ost fest ist: Dann natürlich auch auf diese Seite den Ziergarten. Den Nutzgarten dann eher auf die West-Seite. Vorne bis Garage natürlich auch Zier. Zum Trennen: ne kleine Hecke. Oder als Übergang evtl. Sträucher wie Stachelbeere oder Johannesbeeren. Evtl. auch eine Idee: Spalierobst.
Viele Grüße
Michael
Ähnliche Themen