Bebauungsplan/Einschränkungen
Größe des Grundstücks: 630 m²
Hang: leichtes Gefälle zur Straße hin
Grundflächenzahl 0,35
Geschossflächenzahl 1,0
Randbebauung: Mittig in einer Sackgasse in einem Neubaugebiet (Erschließung findet ab nächstem Jahr statt), Sackgasse endet nördlich, reines Wohngebiet mit wenig Verkehr, da ein kleiner Ort (<2.000 Einwohner)
Anzahl Stellplatz
Geschossigkeit E+1+D als Höchstgrenze
Dachform Satteldach
Stilrichtung
Ausrichtung Ost-West
Maximale Höhen/Begrenzungen 7,0m +/-0,3m
weitere Vorgaben
Anforderungen der Bauherren
Keller, Geschosse: Kein Keller; 2 Geschosse plus Spitzboden (gewünschte Drempelhöhe im OG noch unklar)
Anzahl der Personen, Alter 4-köpfige Familie - zwei Kinder (bei Einzug 2 und 5)
Raumbedarf im EG, OG
Büro: Familiennutzung oder Homeoffice? Familiennutzung
Schlafgäste pro Jahr: selten
offene Küche, Kochinsel
Anzahl Essplätze 4
Kamin: ja (mittig im Wohnzimmer mit innenliegendem Kamin oder an der Außenwand?)
Musik/Stereowand
Balkon, Dachterrasse: evtl. Garagendach als Terrasse; außerdem Terrasse auf der Südseite ans Wohnzimmer
Garage, Carport:
Nutzgarten, Treibhaus: Nutzgarten
Photovoltaik, Zisterne für den Garten (evtl. auch zur Toilettennutzung => Preisfrage, noch unklar)
Hausentwurf
Von wem stammt die Planung:
-Do-it-Yourself: Ja
Was gefällt besonders? Warum? Großes Wohnzimmer zur Südseite
Was gefällt nicht? Warum?
Preisschätzung lt Architekt/Planer: 400.000 Euro schlüsselfertig als KFW 55 Standard Fertighaus mit Luft-Wasser-Wärmepumpe (ohne Garage; incl Bodenplatte)
Persönliches Preislimit fürs Haus, inkl Ausstattung: 500.000 Euro incl. Baunebenkosten
favorisierte Heiztechnik: Wärmepumpe mit Ringgrabenkollektor
Wenn Ihr verzichten müsst, auf welche Details/Ausbauten
-könnt Ihr verzichten: Große Garage
-könnt Ihr nicht verzichten:
Warum ist der Entwurf so geworden, wie er jetzt ist? ZB
Anhand diverser Fertighäuser haben wir unseren eigenen Grundriss entworfen. Arbeitszimmer im EG soll groß genug sein, um es evtl auch als Schlafzimmer benutzen zu können. Das Wohnzimmer soll zum Süden hin, die Kinderzimmer gleich groß sein. Ob in den Abstellraum würden wir die Waschmaschine stellen
Was ist die wichtigste/grundlegende Frage zum Grundriss in 130 Zeichen zusammengefasst?
Allgemeine Raumaufteilung und -Lage? Welche Drempelhöhe (1m; 1,2m, 1,6m) wäre optimal bzgl. Platzgewinn und Kostenersparnis sowie Lichteinfall im OG
Hallo,
ich hoffe, die Ausführungen auf den Zeichnungen sind lesbar und nachvollziehbar.
Laut Bebauungsplan ist lediglich eine Drempelhöhe von 50cm vorgesehen, nach telefonischer Auskunft werden aber Abweichungen genehmigt, sofern die Max. Firsthöhe nicht überschritten wird.
In der Zeichnung bekomme ich keine Einrichtungsgegenstände angezeigt.
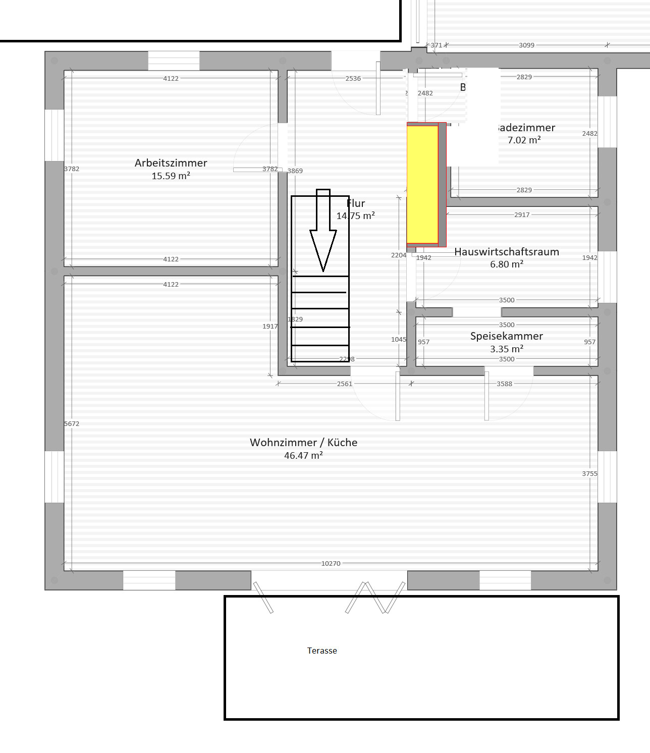
Die Treppe soll im Flur geradlinig verlaufen auf der Westseite, sodass man ob vor den beiden Türen /Kinderzimmer und EZi ankommt.
Im Wohnzimmer zur Südseite sollen bodentiefe Fenster rein, alle anderen Fenster "normal".
Die Küche ist in die Südostecke des Hauses geplant, daher der Durchgang zur Speisekammer. Urpsünglich war keine Speisekammer vorgesehen, sondern der große Haustechnikraum. Auf anraten des Hausverkäufers/Beraters wurde dort eine Wand eingezogen, damit man von der Küche nicht direkt in den Technikraum spaziert.
Ein Kamin entweder im WZ neben die WZ-Türe oder an die Westwand.
Die Einrichtungsgegenstände wurden beim Export leider nicht übernommen:
Treppe geradlinig im Flur rechts (vom Hauseingang aus gesehen, sodass man im OG an den Türen Kinderzimmer/Elternschlafzimmer ankommt)
Der aktuelle Grundriss basiert auf einem Außenmaß von 10,50m auf 11m.
Bei Unklarheiten bitte ich um Nachfrage, ansonsten bitte Feuer frei mit Nachfragen und Kritik, ich bin ja nicht hier, um mich loben zu lassen (natürlich auch, aber das ist ja nicht der Zweck der Übung)


Größe des Grundstücks: 630 m²
Hang: leichtes Gefälle zur Straße hin
Grundflächenzahl 0,35
Geschossflächenzahl 1,0
Randbebauung: Mittig in einer Sackgasse in einem Neubaugebiet (Erschließung findet ab nächstem Jahr statt), Sackgasse endet nördlich, reines Wohngebiet mit wenig Verkehr, da ein kleiner Ort (<2.000 Einwohner)
Anzahl Stellplatz
Geschossigkeit E+1+D als Höchstgrenze
Dachform Satteldach
Stilrichtung
Ausrichtung Ost-West
Maximale Höhen/Begrenzungen 7,0m +/-0,3m
weitere Vorgaben
Anforderungen der Bauherren
Keller, Geschosse: Kein Keller; 2 Geschosse plus Spitzboden (gewünschte Drempelhöhe im OG noch unklar)
Anzahl der Personen, Alter 4-köpfige Familie - zwei Kinder (bei Einzug 2 und 5)
Raumbedarf im EG, OG
Büro: Familiennutzung oder Homeoffice? Familiennutzung
Schlafgäste pro Jahr: selten
offene Küche, Kochinsel
Anzahl Essplätze 4
Kamin: ja (mittig im Wohnzimmer mit innenliegendem Kamin oder an der Außenwand?)
Musik/Stereowand
Balkon, Dachterrasse: evtl. Garagendach als Terrasse; außerdem Terrasse auf der Südseite ans Wohnzimmer
Garage, Carport:
Nutzgarten, Treibhaus: Nutzgarten
Photovoltaik, Zisterne für den Garten (evtl. auch zur Toilettennutzung => Preisfrage, noch unklar)
Hausentwurf
Von wem stammt die Planung:
-Do-it-Yourself: Ja
Was gefällt besonders? Warum? Großes Wohnzimmer zur Südseite
Was gefällt nicht? Warum?
Preisschätzung lt Architekt/Planer: 400.000 Euro schlüsselfertig als KFW 55 Standard Fertighaus mit Luft-Wasser-Wärmepumpe (ohne Garage; incl Bodenplatte)
Persönliches Preislimit fürs Haus, inkl Ausstattung: 500.000 Euro incl. Baunebenkosten
favorisierte Heiztechnik: Wärmepumpe mit Ringgrabenkollektor
Wenn Ihr verzichten müsst, auf welche Details/Ausbauten
-könnt Ihr verzichten: Große Garage
-könnt Ihr nicht verzichten:
Warum ist der Entwurf so geworden, wie er jetzt ist? ZB
Anhand diverser Fertighäuser haben wir unseren eigenen Grundriss entworfen. Arbeitszimmer im EG soll groß genug sein, um es evtl auch als Schlafzimmer benutzen zu können. Das Wohnzimmer soll zum Süden hin, die Kinderzimmer gleich groß sein. Ob in den Abstellraum würden wir die Waschmaschine stellen
Was ist die wichtigste/grundlegende Frage zum Grundriss in 130 Zeichen zusammengefasst?
Allgemeine Raumaufteilung und -Lage? Welche Drempelhöhe (1m; 1,2m, 1,6m) wäre optimal bzgl. Platzgewinn und Kostenersparnis sowie Lichteinfall im OG
Hallo,
ich hoffe, die Ausführungen auf den Zeichnungen sind lesbar und nachvollziehbar.
Laut Bebauungsplan ist lediglich eine Drempelhöhe von 50cm vorgesehen, nach telefonischer Auskunft werden aber Abweichungen genehmigt, sofern die Max. Firsthöhe nicht überschritten wird.
In der Zeichnung bekomme ich keine Einrichtungsgegenstände angezeigt.
Die Treppe soll im Flur geradlinig verlaufen auf der Westseite, sodass man ob vor den beiden Türen /Kinderzimmer und EZi ankommt.
Im Wohnzimmer zur Südseite sollen bodentiefe Fenster rein, alle anderen Fenster "normal".
Die Küche ist in die Südostecke des Hauses geplant, daher der Durchgang zur Speisekammer. Urpsünglich war keine Speisekammer vorgesehen, sondern der große Haustechnikraum. Auf anraten des Hausverkäufers/Beraters wurde dort eine Wand eingezogen, damit man von der Küche nicht direkt in den Technikraum spaziert.
Ein Kamin entweder im WZ neben die WZ-Türe oder an die Westwand.
Die Einrichtungsgegenstände wurden beim Export leider nicht übernommen:
Treppe geradlinig im Flur rechts (vom Hauseingang aus gesehen, sodass man im OG an den Türen Kinderzimmer/Elternschlafzimmer ankommt)
Der aktuelle Grundriss basiert auf einem Außenmaß von 10,50m auf 11m.
Bei Unklarheiten bitte ich um Nachfrage, ansonsten bitte Feuer frei mit Nachfragen und Kritik, ich bin ja nicht hier, um mich loben zu lassen (natürlich auch, aber das ist ja nicht der Zweck der Übung)
N
Neubau202020.11.19 17:27Die Garage ist tatsächlich der allererste Streichposten. In dieser Dimension (Doppelgarage mit Abstellraum dahinter = 3 Einzelgaragen) habe ich Angebote ab 30.000 Euro vorliegen.
Ich träume lediglich noch davon, dass man das Garagendach als Außenbalkon nutzen könnte, da dort der Sonnenuntergang stattfindet und man von dort einen wunderbaren Ausblick in Richtung NW hat. Aber ob das 30.000 Euro wert ist? Und der Zugang dorthin ist mit Drempel natürlich auch schwierig.
Ich könnte mir auch vorstellen einen Stellplatz vor dem Haus zur Straße hin zu haben, das ist ohnehin toter Platz, der nicht genutzt wird.
Ich träume lediglich noch davon, dass man das Garagendach als Außenbalkon nutzen könnte, da dort der Sonnenuntergang stattfindet und man von dort einen wunderbaren Ausblick in Richtung NW hat. Aber ob das 30.000 Euro wert ist? Und der Zugang dorthin ist mit Drempel natürlich auch schwierig.
Ich könnte mir auch vorstellen einen Stellplatz vor dem Haus zur Straße hin zu haben, das ist ohnehin toter Platz, der nicht genutzt wird.
H
hampshire20.11.19 17:33Auf das Dach für den Sonnenuntergang zu gehen ist eine schöne Idee. Das Schreit nach einer gutnachbarlich abgesprochenen Guerillia-Lösung aus Holz mit Zugang vom Garten aus. "Hochterrasse unter die zufällig ein abschließbarer Raum passt" oder so.
Mich würde die Positionierung auf dem Grundstück interessieren. Wie viel Platz ist zwischen Terrasse und Zaun im Süden? Gibt's Grundstücksmaße?
So wie eingezeichnet, ist die Treppe noch zu kurz, aber die Tür zum Arbeitszimmer kann man ja noch versetzen.
Tür zwischen Speis und HAR würde ich weglassen.
Viele Türen gehen falsch rum auf. Das Schlafzimmer bitte mal möblieren. Die 3,42m Breite sind gerade so Untergrenze, um links und rechts bequem gehen zu können.
Fenster sind teilweise noch katastrophal angeordnet - sowohl für die Außenansicht als auch für die Stellplätze von Schränken.
Kinderzimmer vielleicht besser in den Süden - wurde schon gesagt.
garderobenschrank-Stellfläche fehlt. Vielleicht so hier:

Ansonsten guter Standard, würd ich sagen.
So wie eingezeichnet, ist die Treppe noch zu kurz, aber die Tür zum Arbeitszimmer kann man ja noch versetzen.
Tür zwischen Speis und HAR würde ich weglassen.
Viele Türen gehen falsch rum auf. Das Schlafzimmer bitte mal möblieren. Die 3,42m Breite sind gerade so Untergrenze, um links und rechts bequem gehen zu können.
Fenster sind teilweise noch katastrophal angeordnet - sowohl für die Außenansicht als auch für die Stellplätze von Schränken.
Kinderzimmer vielleicht besser in den Süden - wurde schon gesagt.
garderobenschrank-Stellfläche fehlt. Vielleicht so hier:
Ansonsten guter Standard, würd ich sagen.
N
Neubau202020.11.19 19:16kaho674 schrieb:
Mich würde die Positionierung auf dem Grundstück interessieren. Wie viel Platz ist zwischen Terrasse und Zaun im Süden? Gibt's Grundstücksmaße?Grob gesagt: quadratisch 25m x 25mExakte Abmessung habe ich nochmals als Grafik angehängt.
Bei 6m Hofbreite und 11m Hausbreite bleiben von der Hauswand bis zum Zaun (25-6-11) 8m
kaho674 schrieb:
So wie eingezeichnet, ist die Treppe noch zu kurz, aber die Tür zum Arbeitszimmer kann man ja noch versetzen.Genau, die Tür würde dann bei Bedarf Richtung Hof wandern.kaho674 schrieb:
Tür zwischen Speis und HAR würde ich weglassen.Da überlege ich ohnehin, ob einfach ein Durchgang reichtkaho674 schrieb:
Viele Türen gehen falsch rum auf. Das Schlafzimmer bitte mal möblieren. Die 3,42m Breite sind gerade so Untergrenze, um links und rechts bequem gehen zu können. Fenster sind teilweise noch katastrophal angeordnetTüranschläge und Fenster werden optimiert und mit einer neuen Skizze eingestellt. Das gleiche gilt für das getauschte Kinderzimmer.Den zweiten Satz verstehe ich nicht. Was ist mit Untergrenze zum Gehen gemeint?
kaho674 schrieb:
Garderobenschrank-Stellfläche fehlt. Vielleicht so hier:Gute Idee, versuche ich ebenso einzuplanen wie alle anderen Hinweise.Danke schon mal hierfür.
kaho674 schrieb:
Mich würde die Positionierung auf dem Grundstück interessieren. Wie viel Platz ist zwischen Terrasse und Zaun im Süden? Gibt's Grundstücksmaße?
So wie eingezeichnet, ist die Treppe noch zu kurz, aber die Tür zum Arbeitszimmer kann man ja noch versetzen.
Viele Türen gehen falsch rum auf. Das Schlafzimmer bitte mal möblieren. Die 3,42m Breite sind gerade so Untergrenze, um links und rechts bequem gehen zu können.
Fenster sind teilweise noch katastrophal angeordnet - sowohl für die Außenansicht als auch für die Stellplätze von Schränken.
Kinderzimmer vielleicht besser in den Süden - wurde schon gesagt.
Garderobenschrank-Stellfläche fehlt. Vielleicht so hier:

Ansonsten guter Standard, würd ich sagen.Neubau2020 schrieb:
Jetzt fragen wir uns, welche Drempelhöhe mehr Vorteile bietet:
Eher 1,60m => weniger Dachschräge in den Zimmern, dann sind aber die Dachfenster auch ziemlich weit oben und ich habe "dunkle Wände", da dann in die Außenwand (Süden) ja keine Fenster können.
eher 1m => weniger Kosten, Dachfenster weiter unten und dadurch besser erreichbar.Ich gehe davon aus, daß hier ein Kniestock gemeint ist - dann ist da ein Denkfehler drin: bei Kniestock 160 bekommt man Fenster (zu Lichtzwecken) gut in die traufseitigen Wände gesetzt; lediglich für den Ausblick finde ich in dieser Höhe einen Balken im Blick nicht schön.hampshire schrieb:
Etwas Dachschräge ab 2m Höhe stört nicht mehrIn dieser Größenordnung fängt es aber schon an, gefühlt von "hohen Wänden" zu "oben kupiert" zu kippen.Die Popularität von Kniestöcken um 120/125 cm scheint mir nicht von ungefähr zu kommen.
https://www.instagram.com/11antgmxde/
https://www.linkedin.com/company/bauen-jetzt/
Neubau2020 schrieb:
Den zweiten Satz verstehe ich nicht. Was ist mit Untergrenze zum Gehen gemeint?
Ich nehem an, dass Bett soll an die planobere Wand im Schlafzimmer. Dann hätte man für Bett inkl. Laufweg daneben ja nur die 3,42m. Bei 2m breitem Bett also links und rechts ca. 70cm. Das ist recht wenig.Ähnliche Themen