Hallo!
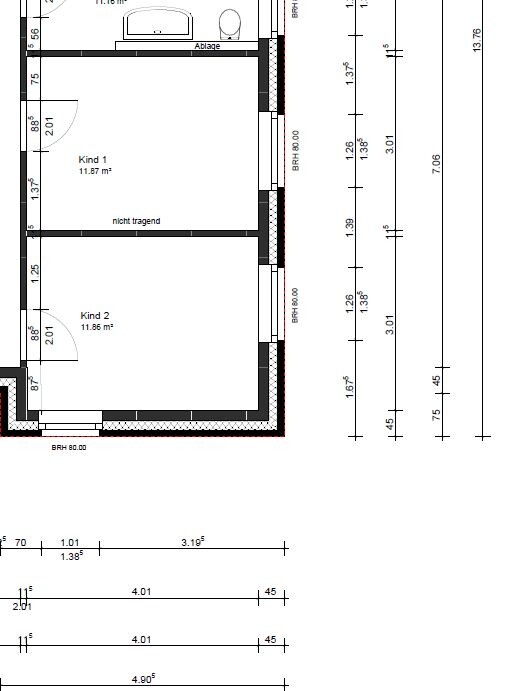
Sind gerade bei der Elektroplanung. Bei den Kinderzimmern fällt es uns leider sehr schwer. Da die Kinder auch noch in Planung sind :-) und wir keinerlei Vorstellung haben wo am besten was hin könnte. Es sollte natürlich ein Bett, Kleiderschrank (150), schreibtisch und später dann auch ein Fernsehr Platz finden. Bei dem oberen Kinderzimmer würden wir das Bett nicht an die obere Wand stellen wollen, da dort das Badezimmer ist. Wir haben mal angefangen zu planen. sind damit aber nicht so zufrieden. Wissen nicht wo der Fernseher hinkönnte um den Anschluss zu planen. Vielleicht habt ihr noch ein paar Ideen

Sind gerade bei der Elektroplanung. Bei den Kinderzimmern fällt es uns leider sehr schwer. Da die Kinder auch noch in Planung sind :-) und wir keinerlei Vorstellung haben wo am besten was hin könnte. Es sollte natürlich ein Bett, Kleiderschrank (150), schreibtisch und später dann auch ein Fernsehr Platz finden. Bei dem oberen Kinderzimmer würden wir das Bett nicht an die obere Wand stellen wollen, da dort das Badezimmer ist. Wir haben mal angefangen zu planen. sind damit aber nicht so zufrieden. Wissen nicht wo der Fernseher hinkönnte um den Anschluss zu planen. Vielleicht habt ihr noch ein paar Ideen
T
toxicmolotof13.02.18 11:15Wir haben zwei Kinderzimmer mit jeweils 12 qm.
Beide Zimmer haben 12 Steckdosen in Zweiergruppen. An den beiden langen Seiten jeweils an den Ecken und in der Mitte.
Licht gibt es an der Tür und Schalter für die Terrassenbeleuchtung am Austritt zur Terrasse. Rollladenschalter auch direkt daneben (den würden wir heute an die Türe verlegen).
4x Netzwerk und 2x TV diagonal an beiden Wänden einmal.
Am Ende macht man es sowieso falsch.
Beide Zimmer haben 12 Steckdosen in Zweiergruppen. An den beiden langen Seiten jeweils an den Ecken und in der Mitte.
Licht gibt es an der Tür und Schalter für die Terrassenbeleuchtung am Austritt zur Terrasse. Rollladenschalter auch direkt daneben (den würden wir heute an die Türe verlegen).
4x Netzwerk und 2x TV diagonal an beiden Wänden einmal.
Am Ende macht man es sowieso falsch.
T
toxicmolotof13.02.18 11:20NanDe schrieb:
...der Fernseher ...Wie kommt das TV-Signal ins Haus?
Glasfaser?
Dann reichlich Netzwerkdosen - am besten jeweils auch mit eigenem CAT-Kabel (TV, Tel., W-LAN- Bridge läuft dann alles über's Netz, nicht Antennenkabel).
Dimmer für Raumlicht schadet auch nicht, z. B. mittels Eltako.
Und da die noch nicht geborenen Kinder dann erst in 15/20 Jahren ihren eigenen TV bekommen, steht die zukünftige Technik eh noch in den Sternen 😉
Macht Euch nicht zu viel Gedanken um Unwichtiges: stellt Euch ein Büro darin vor oder ein Gästezimmer - es wird schon irgendwie passen [emoji2]
Macht Euch nicht zu viel Gedanken um Unwichtiges: stellt Euch ein Büro darin vor oder ein Gästezimmer - es wird schon irgendwie passen [emoji2]
Fernseher planen wir mittels SAT-Anlage.
Wir planen dann erstmal so wie von toxicmolotow vorgeschlagen. Damit sollten wir auf der sicheren Seite sein.
Wir haben auch festgestellt, dass wenn man den Schreibtisch im unteren Kinderzimmer vor das kleine Fenster stellt, wäre es praktischer die Tür nach links zu öffnen. Also ist die Planung der Möblierung schon bereits wichtig :-)
Wir planen dann erstmal so wie von toxicmolotow vorgeschlagen. Damit sollten wir auf der sicheren Seite sein.
Wir haben auch festgestellt, dass wenn man den Schreibtisch im unteren Kinderzimmer vor das kleine Fenster stellt, wäre es praktischer die Tür nach links zu öffnen. Also ist die Planung der Möblierung schon bereits wichtig :-)
Ähnliche Themen