Hallo Hausbau-Community,
auch wir möchten gerne den Traum vom Eigenheim in die Tat umsetzen.
Die Planungen des Grundrisses sind bei uns im Kopf schon weit fortgeschritten, nach den ersten Gesprächen mit Bauträgern kommen nun langsam auch konkrete Bilder. Wir würden uns sehr freuen über Idee, Kritik, Feedback und Sonstiges.
Die vorgestellten Zeichnungen sind noch nicht 100% rund, das wissen wir. Aber wir würden gerne den Prozess mit Hilfe eurer Ideen gerne beschleunigen, daher bitte ich um etwas Nachsicht. Offene Themen oder Fragen versuche ich dann kurzfristig zu beantworten.
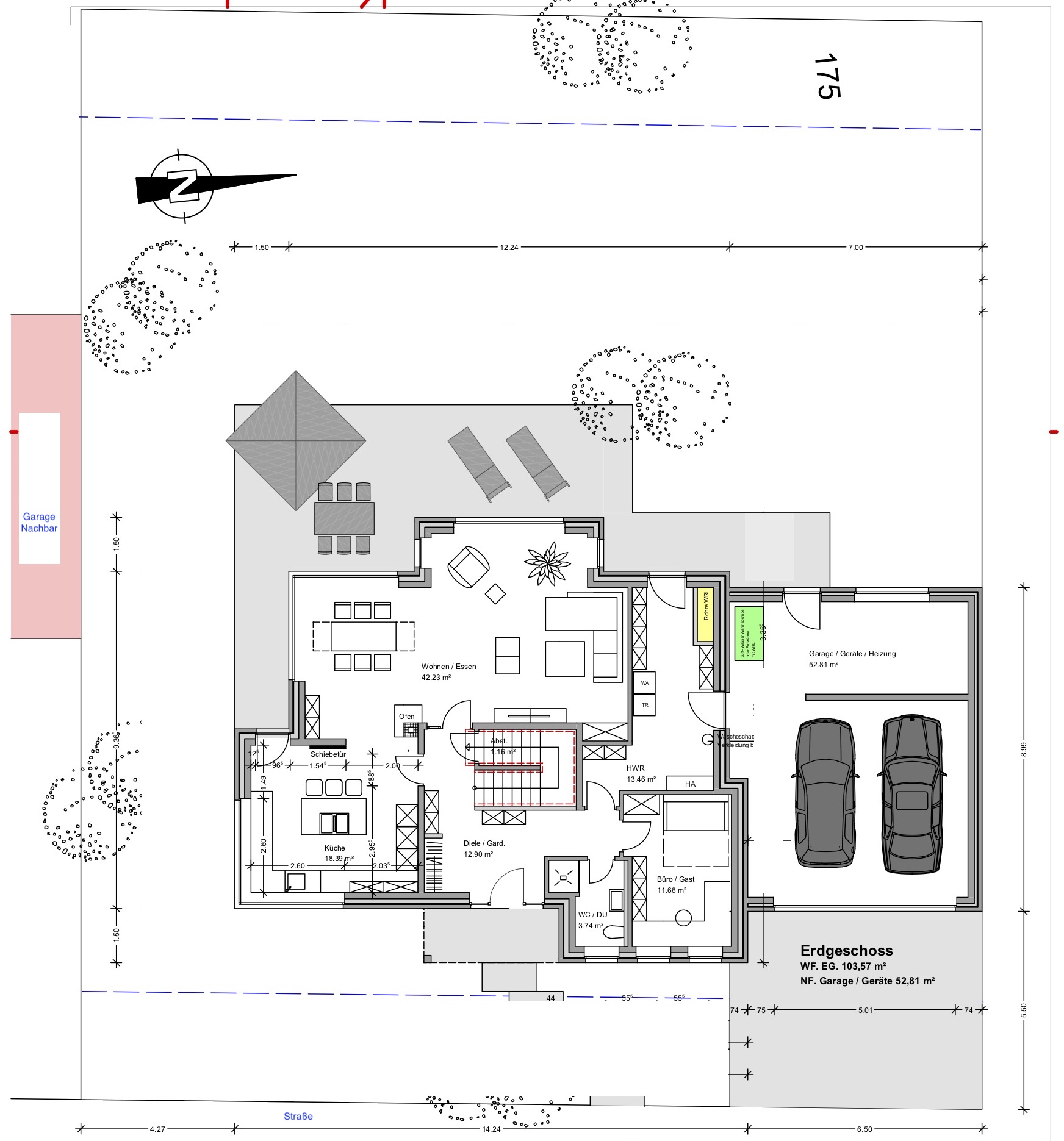
Auf Basis der Skizze (ebenfalls als Anlage Verfügbar) wurde ein konkreter Grundriss gezeichnet. Die Garage fehlt allerdings, und die Tür des HWRs zur Garage ist noch nicht richtig. Aber in Summe - was die Raum Anordnung, Raumgrößen, Fenster usw angeht - passt das grob. Es geht uns hier um ein erstes Feedback. Danke vorab
Bebauungsplan/Einschränkungen
Größe des Grundstücks: 756qm
Hang: nein
Grundflächenzahl: s. Bild
Geschossflächenzahl: s. Bild
Baufenster, Baulinie und -grenze: s.Bild
Randbebauung: nein
Anzahl Stellplatz: 2
Geschossigkeit: 2
Dachform: Satteldach
Stilrichtung: modern
Ausrichtung: Süden
Maximale Höhen/Begrenzungen: 9.5m Firsthöhe
weitere Vorgaben: 3.80m Traufenhöhe, Dachneigung 38-45grad
Anforderungen der Bauherren
Stilrichtung, Dachform, Gebäudetyp: modernes Satteldach verklickert mit Putz-Erker
Keller, Geschosse: kein Keller, 2 Geschosse
Anzahl der Personen, Alter: 4 Personen, 2 Erwachsene, 2 Kinder (2,5)
Raumbedarf im EG, OG: EG=95 ; OG=75
Büro: Familiennutzung oder Homeoffice? Homeoffice und Gästezimmer
Schlafgäste pro Jahr: 20
offene oder geschlossene Architektur
konservativ oder moderne Bauweise
offene Küche, Kochinsel: ja
Anzahl Essplätze: 6
Kamin: ja
Musik/Stereowand: TV - Wand
Balkon, Dachterrasse: nein
Garage, Carport: Doppelgarage mit direktem Hauszugang und Gerätebereich
Nutzgarten, Treibhaus: Beete und Rasen
weitere Wünsche/Besonderheiten/Tagesablauf, gern auch Begründungen, warum dieses oder das nicht sein soll
- Giebelseite zur Straße, um den Wohnbereich inkl. Dach in den Süden zu bekommen
- Garage 90grad zum Haus ausrichten
- Keine Wohnräume zum Netto-Markt, welcher NW zum Haus steht
- Bisher keine Speisekammer, die wir jedoch gerne hätten
- 2 gleich große Kinderzimmer in den Süden / Erker
Hausentwurf
Von wem stammt die Planung: Do-it-Yourself
Was gefällt besonders? Warum? - Moderne Elemente durch Erker, Wohnbereich und Gästezimmer getrennt von Schlafzimmern oben
Was gefällt nicht? Warum?
Preisschätzung lt Architekt/Planer: - 380.000 EUR
Persönliches Preislimit fürs Haus, inkl Ausstattung: 420.000 EUR
favorisierte Heiztechnik: Sole-Wasser-Wärmepumpe mit Bohrung
Wenn Ihr verzichten müsst, auf welche Details/Ausbauten
-könnt Ihr verzichten: Speisekammer, 2ter Ausbau, Hauswirtschaftsraum und Technik in einem Raum
-könnt Ihr nicht verzichten: offener Wohn/Essbereich, Gäste-WC mit Dusche, Direkter Durchgang Hauswirtschaftsraum in Garage
Warum ist der Entwurf so geworden, wie er jetzt ist? ZB
Standardentwurf vom Planer? Orientiert sich an Haus von Freunden, welches wir toll finden
Entsprechende/Welche Wünsche wurden vom Architekten umgesetzt? Ja
Was macht ihn in Euren Augen besonders gut oder schlecht? Im EG genug Platz zum Leben, ordentlich Stauraum im Hauswirtschaftsraum, klare Linien
Was ist die wichtigste/grundlegende Frage zum Grundriss in 130 Zeichen zusammengefasst?
Trennung von Wohnraum inkl. Büro/Gäste mit Dusch-WC im EG sowie Schlafbereich im OG, klare Linien, Küche sowie Wohn/Essbereich nicht in einer Flucht, sondern etwas gebrochen, Südausrichtung
Kopfzerbrechen bereitet uns noch das OG, das finden wir derzeit nicht optimal



auch wir möchten gerne den Traum vom Eigenheim in die Tat umsetzen.
Die Planungen des Grundrisses sind bei uns im Kopf schon weit fortgeschritten, nach den ersten Gesprächen mit Bauträgern kommen nun langsam auch konkrete Bilder. Wir würden uns sehr freuen über Idee, Kritik, Feedback und Sonstiges.
Die vorgestellten Zeichnungen sind noch nicht 100% rund, das wissen wir. Aber wir würden gerne den Prozess mit Hilfe eurer Ideen gerne beschleunigen, daher bitte ich um etwas Nachsicht. Offene Themen oder Fragen versuche ich dann kurzfristig zu beantworten.
Auf Basis der Skizze (ebenfalls als Anlage Verfügbar) wurde ein konkreter Grundriss gezeichnet. Die Garage fehlt allerdings, und die Tür des HWRs zur Garage ist noch nicht richtig. Aber in Summe - was die Raum Anordnung, Raumgrößen, Fenster usw angeht - passt das grob. Es geht uns hier um ein erstes Feedback. Danke vorab
Bebauungsplan/Einschränkungen
Größe des Grundstücks: 756qm
Hang: nein
Grundflächenzahl: s. Bild
Geschossflächenzahl: s. Bild
Baufenster, Baulinie und -grenze: s.Bild
Randbebauung: nein
Anzahl Stellplatz: 2
Geschossigkeit: 2
Dachform: Satteldach
Stilrichtung: modern
Ausrichtung: Süden
Maximale Höhen/Begrenzungen: 9.5m Firsthöhe
weitere Vorgaben: 3.80m Traufenhöhe, Dachneigung 38-45grad
Anforderungen der Bauherren
Stilrichtung, Dachform, Gebäudetyp: modernes Satteldach verklickert mit Putz-Erker
Keller, Geschosse: kein Keller, 2 Geschosse
Anzahl der Personen, Alter: 4 Personen, 2 Erwachsene, 2 Kinder (2,5)
Raumbedarf im EG, OG: EG=95 ; OG=75
Büro: Familiennutzung oder Homeoffice? Homeoffice und Gästezimmer
Schlafgäste pro Jahr: 20
offene oder geschlossene Architektur
konservativ oder moderne Bauweise
offene Küche, Kochinsel: ja
Anzahl Essplätze: 6
Kamin: ja
Musik/Stereowand: TV - Wand
Balkon, Dachterrasse: nein
Garage, Carport: Doppelgarage mit direktem Hauszugang und Gerätebereich
Nutzgarten, Treibhaus: Beete und Rasen
weitere Wünsche/Besonderheiten/Tagesablauf, gern auch Begründungen, warum dieses oder das nicht sein soll
- Giebelseite zur Straße, um den Wohnbereich inkl. Dach in den Süden zu bekommen
- Garage 90grad zum Haus ausrichten
- Keine Wohnräume zum Netto-Markt, welcher NW zum Haus steht
- Bisher keine Speisekammer, die wir jedoch gerne hätten
- 2 gleich große Kinderzimmer in den Süden / Erker
Hausentwurf
Von wem stammt die Planung: Do-it-Yourself
Was gefällt besonders? Warum? - Moderne Elemente durch Erker, Wohnbereich und Gästezimmer getrennt von Schlafzimmern oben
Was gefällt nicht? Warum?
Preisschätzung lt Architekt/Planer: - 380.000 EUR
Persönliches Preislimit fürs Haus, inkl Ausstattung: 420.000 EUR
favorisierte Heiztechnik: Sole-Wasser-Wärmepumpe mit Bohrung
Wenn Ihr verzichten müsst, auf welche Details/Ausbauten
-könnt Ihr verzichten: Speisekammer, 2ter Ausbau, Hauswirtschaftsraum und Technik in einem Raum
-könnt Ihr nicht verzichten: offener Wohn/Essbereich, Gäste-WC mit Dusche, Direkter Durchgang Hauswirtschaftsraum in Garage
Warum ist der Entwurf so geworden, wie er jetzt ist? ZB
Standardentwurf vom Planer? Orientiert sich an Haus von Freunden, welches wir toll finden
Entsprechende/Welche Wünsche wurden vom Architekten umgesetzt? Ja
Was macht ihn in Euren Augen besonders gut oder schlecht? Im EG genug Platz zum Leben, ordentlich Stauraum im Hauswirtschaftsraum, klare Linien
Was ist die wichtigste/grundlegende Frage zum Grundriss in 130 Zeichen zusammengefasst?
Trennung von Wohnraum inkl. Büro/Gäste mit Dusch-WC im EG sowie Schlafbereich im OG, klare Linien, Küche sowie Wohn/Essbereich nicht in einer Flucht, sondern etwas gebrochen, Südausrichtung
Kopfzerbrechen bereitet uns noch das OG, das finden wir derzeit nicht optimal
P
palmenhaus25.03.20 15:51P
palmenhaus02.04.20 11:03Hallo zusammen,
wir haben uns entschieden das Haus wie in V2 zu drehen, um dann eine Dachausrichtung West-Ost zu haben.
Danke für die Anregungen und Empfehlungen.
Noch ein paar Kommentare zu den Meinungen
- Durchgang Garage-Haus: Wir wollen das gerne haben, unabhängig von Regenmengen. Wir finden es praktisch
- Lage Küche: Meine Frau möchte gerne die Küche zur Straße haben, damit man mitbekommt, was da so passiert Mir ist das egal, wir haben hier auch viel diskutiert, aber sie hat sich durchgesetzt.Durch die großen Fenster in Richtung Osten dann auch schöne Morgensonne. Wir wollen gerne die Küche so arrangieren, damit wir auch dort Frühstücken können. Ebenfalls dann viel Fenster in den Süden. Derzeit wird die Ecklösung gezeichnet, aber das kann sich noch mal ändern nach Rücksprache mit dem Küchenstudio.
- Mauer Netto ist möglich
Anbei der aktuelle Entwurf, den wir schon ziemlich perfekt finden.
Was meint Ihr???
Eine spezielle Frage:
Was würdet ihr im OG für Fenster nehmen? Bodentiefe, Knietiefe oder doch eher klassische Höhe Fensterbank von ca 80cm ?
Ich danke euch noch mal vorab.


wir haben uns entschieden das Haus wie in V2 zu drehen, um dann eine Dachausrichtung West-Ost zu haben.
Danke für die Anregungen und Empfehlungen.
Noch ein paar Kommentare zu den Meinungen
- Durchgang Garage-Haus: Wir wollen das gerne haben, unabhängig von Regenmengen. Wir finden es praktisch
- Lage Küche: Meine Frau möchte gerne die Küche zur Straße haben, damit man mitbekommt, was da so passiert Mir ist das egal, wir haben hier auch viel diskutiert, aber sie hat sich durchgesetzt.Durch die großen Fenster in Richtung Osten dann auch schöne Morgensonne. Wir wollen gerne die Küche so arrangieren, damit wir auch dort Frühstücken können. Ebenfalls dann viel Fenster in den Süden. Derzeit wird die Ecklösung gezeichnet, aber das kann sich noch mal ändern nach Rücksprache mit dem Küchenstudio.
- Mauer Netto ist möglich
Anbei der aktuelle Entwurf, den wir schon ziemlich perfekt finden.
Was meint Ihr???
Eine spezielle Frage:
Was würdet ihr im OG für Fenster nehmen? Bodentiefe, Knietiefe oder doch eher klassische Höhe Fensterbank von ca 80cm ?
Ich danke euch noch mal vorab.
soll die Küche so werden wie im Plan? wenn die Küche per Plan 4.60m breit wird, die beiden Zeilen rechts und links abzieht (-1.20m) verbleiben 3.40cm. Wenn man nur 1m pro Durchgang rechnet, verbleibt für die Insel ca 135cm plus Dekseiten. Wie viele Personen sollen an der Insel sitzen? Ein Kochfeld passt da auch nicht darauf.
Denkt noch mal über die Aufteilung im Obergeschoss nach.
das eine Kinderzimmer könnte sehr dunkel werden während ihr Richtung Süden seid.
Badezimmer: Es ist immer eine individuelle Sache, aber ich finde zwei Türen unheimlich unpraktisch! Spätestens wenn die Kinder Teenager sind werden sie immer beide Türen zuschließen. Dann dürft ihr trotzdem durch den Flur. Oder wenn sie mal Gäste haben!
zudem finde ich die Lage der Dusche direkt neben der Tür nicht so prickelnd. Klar, ihr seid von eurem Grundriss her ja eh so aufgestellt, dass die Türen unverschlossen sein werden und jeder raus und rein kann. Aber dann hat man nicht mal in der Dusche seine Ruhe? Und wenn man sich abtrocknet kriegt man die Tür an den Kopf! (Wenn du jetzt sagst, dass die Tür immer abgeschlossen wird würde ich dringend noch mal über die zweite Tür nachdenken!).
das eine Kinderzimmer könnte sehr dunkel werden während ihr Richtung Süden seid.
Badezimmer: Es ist immer eine individuelle Sache, aber ich finde zwei Türen unheimlich unpraktisch! Spätestens wenn die Kinder Teenager sind werden sie immer beide Türen zuschließen. Dann dürft ihr trotzdem durch den Flur. Oder wenn sie mal Gäste haben!
zudem finde ich die Lage der Dusche direkt neben der Tür nicht so prickelnd. Klar, ihr seid von eurem Grundriss her ja eh so aufgestellt, dass die Türen unverschlossen sein werden und jeder raus und rein kann. Aber dann hat man nicht mal in der Dusche seine Ruhe? Und wenn man sich abtrocknet kriegt man die Tür an den Kopf! (Wenn du jetzt sagst, dass die Tür immer abgeschlossen wird würde ich dringend noch mal über die zweite Tür nachdenken!).
P
palmenhaus02.04.20 12:00Danke für das schnelle und gute Feedback.
Ich glaube wir überlegen dann doch noch mal über die Tür Bad-Ankleide nach. Irgendwie ist es aber praktisch , da man sonst von der ankleide komplett einmal herumlaufen muss. Hättet ihr nen Vorschlag?
wir hatten auch erst wc und dusche im OG Bad getauscht , quasi vorne an der Tür das WC
Die Lage der Kinderzimmer soll so bleiben. Wir wollen gerne die schönen Erker nutzen. Uns ist bewusst das das rechte Zimmer weniger hell ist- das ist der Kompromiss
Küche ist noch nicht fix.Beratung wurde wg corona verschoben. Aber die Bedenken teile ich. Das eclfenster ist such nicht fix. Es sieht schön aus, ist aber unpraktisch für den Schnitt. Mal sehen was der Kuchenbauer sagt. Die Zeile planlinks ist evtl wegzulassen ...
Ich glaube wir überlegen dann doch noch mal über die Tür Bad-Ankleide nach. Irgendwie ist es aber praktisch , da man sonst von der ankleide komplett einmal herumlaufen muss. Hättet ihr nen Vorschlag?
wir hatten auch erst wc und dusche im OG Bad getauscht , quasi vorne an der Tür das WC
Die Lage der Kinderzimmer soll so bleiben. Wir wollen gerne die schönen Erker nutzen. Uns ist bewusst das das rechte Zimmer weniger hell ist- das ist der Kompromiss
Küche ist noch nicht fix.Beratung wurde wg corona verschoben. Aber die Bedenken teile ich. Das eclfenster ist such nicht fix. Es sieht schön aus, ist aber unpraktisch für den Schnitt. Mal sehen was der Kuchenbauer sagt. Die Zeile planlinks ist evtl wegzulassen ...
Ähnliche Themen