Neubau Einfamilienhaus 160-170qm, 3 Kinderzimmer

4,10 Stern(e) 12 Votes
Zuletzt aktualisiert 22.11.2025
Sie befinden sich auf der Seite 5 der Diskussion zum Thema: Neubau Einfamilienhaus 160-170qm, 3 Kinderzimmer
>> Zum 1. Beitrag <<

M

morph3us

Kurzes Update nach einem Gespräch mit dem Bauamt.
Ein von uns vorgelegten Entwurf mit zwei Vollgeschossen und ~30 Grad Dachneigung (d.h. Stehhöhe und als Reserve ausbaubar) wurde mit Verweis auf die eingeschossige Nachbarschaft als nicht darstellbar abgelehnt. Das Haus darf demnach optisch nicht zweigeschossig sein.

Da wir damit gerechnet haben, haben wir den Entwurf noch mit 170cm Drempel und ~40 Grad dabei gehabt, was von der Nutzbarkeit ja in die Selbe Richtung gehen sollte.
Diesem Entwurf wurde mündlich bescheinigt, dass er genehmigungsfähig wäre, so dass wir jetzt in diese Richtung weiter planen werden.
 
M

morph3us

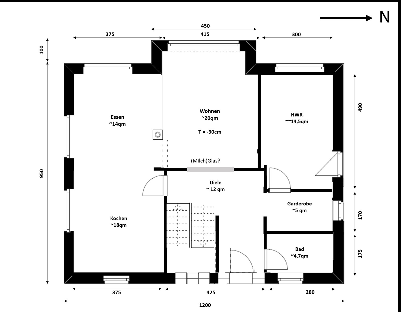
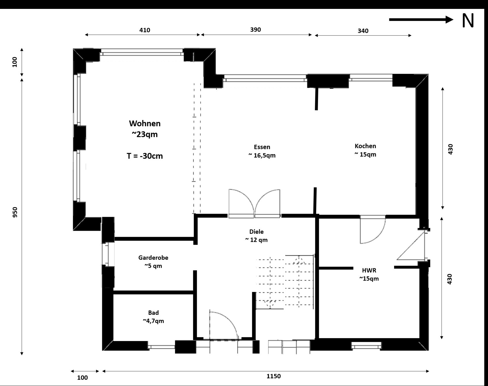
Nachdem wir noch mit anderen GUs gesprochen und uns z.B. auch noch mal das Viebrockhaus Edition 600 im Netz angeschaut haben, habe ich zwei Grundrisse mit Podesttreppe skizziert.
In beiden habe ich auf das Büro/Gästezimmer verzichtet, damit mehr Platz für Hauswirtschaftsraum & Garderobe ist. Zudem ist die Front nicht symmetrisch.
OG liefere ich nach. Mir geht es hier auch um die Frage der Lage der Küche:
Entweder wie gehabt im Süd-Osten oder im Nordwesten.

Vorteil Südosten:
- Blick zur Straße im Osten (man sieht wer aufs Grundstück kommt)
- Blick in den Garten im Süden (man sieht die Kinder)
Nachteil Südosten:
- Hauswirtschaftsraum liegt weit weg von der Straße
Vorteil Westen:
- Der Weitblick über Wiesen & Fluss im Westen ist super
- Hauswirtschaftsraum liegt super und ggf. kann Speisekammer abgetrennt werden
Nachteil Westen:
- Kinder im Garten nicht mehr so gut im Blick wenn man in der Küche ist

Wir freuen uns auf Eure Kommentare und Anregungen

Grundriss eines Hauses mit Wohnen, Essen, Kochen, Bad, Garderobe, HWR und Diele, Maßangaben


Grundriss: Wohnen 23qm, Essen 16,5qm, Kochen 15qm, Diele 12qm, Bad 4,7qm, Garderobe 5qm, HWR 15qm
 
kaho674

kaho674

Auf jeden Fall ist der Erker-Originalitätskrampf überflüssig wie ein Kropf.
Ich mag ihn. Vor allem bringt er im OG meist Entspannung bei 3 Kindern. Aber kostet natürlich.
Mir gefällt der Entwurf v2a ganz gut. Eine Wand neben die Treppe würde ich glaub ich nicht machen - wirkt beengend. Dein "Milchglas" wär bei mir eine Doppelschiebetür mit Glaseinsätzen. Kamin wird gestrichen, wegen CO2-Luftverpestung.
 
M

morph3us

Ob man Erker mag oder nicht ist sicherlich Geschmackssache...
Hier sind sie drin, weil die Basishäuser an denen ich mich orientiert habe welche haben. Und wie @kaho674 schon sagt, ist es im OG auf jeden Fall einfacher bei 3 Kinderzimmern (und man hat traufseitig ein super Zimmer mit Blick nach Westen).

Von der L-Anordnung her finde ich v2a auch besser. Aber der Hauswirtschaftsraum ist da doch echt in einer blöden Ecke oder nicht?
 
Zuletzt aktualisiert 22.11.2025
Im Forum Grundrissplanung / Grundstücksplanung gibt es 2535 Themen mit insgesamt 87983 Beiträgen


Ähnliche Themen zu Neubau Einfamilienhaus 160-170qm, 3 Kinderzimmer
Nr.ErgebnisBeiträge
1Einfamilienhaus 180-190qm auf 10x20m Baufenster, erster Entwurf GU - Seite 278
2Einfamilienhaus ca. 185qm - Erster Entwurf - Verbesserungsvorschläge? 17
3Grundriss EFH165 qm erster Entwurf - Architekt unzufrieden 74
4Mit Erker in die Abstandsflächen - in diesem Fall zulässig? - Seite 330
5Hausanschlusssäule im Garten vs. Hausanschluss direkt im Hauswirtschaftsraum 35
6Speisekammer vs. größere Küche vs. Hauswirtschaftsraum 13
7Geschlossene Küche planen mit Durchgang zum Hauswirtschaftsraum - Seite 318
8Erker in der Küche - Umsetzungsvorschläge 47
9Grundriss erster Entwurf - Meinungen erwünscht - Seite 221
10Unser Grundriss-Entwurf, eure Meinungen 20
11Grundriss-Entwurf Stadtvilla mit Doppelgarage - Seite 238
12Haus-Entwurf Einfamilienhaus - Zukünftig als Zweifamilienhaus trennbar - Seite 572
13Stadtvilla 190m² mit Einfahrt & Garten zur Südseite 30
14Grundrissplanung 140-160 qm Einfamilienhaus - Entwurf ok? - Seite 211
15Unser Grundriss-Entwurf für ein günstiges Haus 348
16150qm Stadtvilla erster Entwurf - Anregungen - Seite 323
17Entwurf Einfamilienhaus mit ca. 168m² Feedback 37
18Einfamilienhaus Entwurf mit Satteldach am Rand vom Baugebiet - Seite 540
19Neubau Einfamilienhaus ca.220qm, 2. Entwurf Stadtvilla - Seite 259
20Entwurf für Anbau/Umbau von Einfamilienhaus zu ZFS 17

Oben