ᐅ Neubau eines Einfamilienhaus bzw. Mehrfamilienhaus in Südwesten
Erstellt am: 23.12.20 10:01
B
Boby_Richy
Schönen guten Abend,
In einem Neubaugebiet konnten wir Glücklicherweise ein Grundstück erwerben und sind dabei die Planung für den Bauantrag vorzubereiten.
Wir möchten gerne den vorliegenden Entwurf gemeinsam mit Euch optimieren und freuen uns auf einen regen Austausch.
Bebauungsplan/Einschränkungen
Grundstücks: 509m²
Grundflächenzahl: 0,40
Geschossflächenzahl: 0,80
Baufenster, Baulinie und -grenze
Anzahl Stellplatz: 1,5 je Wohneinheit
Geschossigkeit: max. zwei Vollgeschosse + Staffelgeschoss
Dachform: frei
Stilrichtung: frei
Ausrichtung
Maximale Höhen: max. 9,8m Gebäudehöhe bei Flachdach
Eingang im Norden, Küche: SO, WZ = SW, Schlafzimmer = SO,
Arbeitszimmer: Keller = SO.
Anforderungen Bauherr
Gebäudetyp: modern, Flachdach
Keller, Geschosse: EG + OG + Keller + Staffelgeschoss
Anzahl der Personen, Alter: zwei Erw. Mitte 30 und zwei Kinder und evnt. Schwiegereltern für das SG.
Raumbedarf im EG, OG, SG (Ausbaufähig)
Büro: Homeoffice notwendig im Keller (Souterrain)
offene oder geschlossene Architektur: EG offen, offene Küche mit KochIinsel, moderner Baustill, hohe Decken (2,80m)
Anzahl Essplätze : 10
Kamin: ja
Dachterrasse: ja
Einzelgararge + Carport
Garten ja
Luftraum Ja
Hausentwurf
Architekt (Vorentwurf)
Heiztechnik: Luft-Wasser-Wärmepumpe. Es ist auch eine direkt in der Nähe bestehende Gasleitung (event. Hybridsysteme)
Raumlüftung: noch unentschlossen, für Anregung offen
Wünsche wurden vom Architekten umgesetzt?
- möglichst offen gestaltetes EG mit Esse- und Wohnbereich der durch einen Kamin optisch getrennt wird
- im Wohnbereich, wenn möglich, eine Wendeltreppe die direkt ins OG führt (kurzer Weg ins Schafzimmer und auch wegen der Optik), sofern dies nicht überladen wirkt.
- Das Haus sollte später ohne große Umbauten in ein Familienhaus umgebaut werden können. Entsprechende Vorrichtungen sollten vorgesehen werden und genehmigungsfähig eingereicht werden
Was ist die wichtigste/grundlegende Frage zum Grundriss in 130 Zeichen zusammengefasst?
Was kann verbessert werden, wie lässt sich der Grundriss den obigen Wunschvorgaben nach optimal gestalten/umsetzten? Wohn- und Essbereich, zusätzliches Zimmer im EG mit der Option später auch ein zweites zu realisieren.
sind die Größen der Räume dem Zweck entsprechend ausreichend?
Was ist Eurer Meinung nach nicht sinnvoll geplant bzw. den Wunsch entsprechend noch nicht berücksichtigt?
Herzlichen Dank


In einem Neubaugebiet konnten wir Glücklicherweise ein Grundstück erwerben und sind dabei die Planung für den Bauantrag vorzubereiten.
Wir möchten gerne den vorliegenden Entwurf gemeinsam mit Euch optimieren und freuen uns auf einen regen Austausch.
Bebauungsplan/Einschränkungen
Grundstücks: 509m²
Grundflächenzahl: 0,40
Geschossflächenzahl: 0,80
Baufenster, Baulinie und -grenze
Anzahl Stellplatz: 1,5 je Wohneinheit
Geschossigkeit: max. zwei Vollgeschosse + Staffelgeschoss
Dachform: frei
Stilrichtung: frei
Ausrichtung
Maximale Höhen: max. 9,8m Gebäudehöhe bei Flachdach
Eingang im Norden, Küche: SO, WZ = SW, Schlafzimmer = SO,
Arbeitszimmer: Keller = SO.
Anforderungen Bauherr
Gebäudetyp: modern, Flachdach
Keller, Geschosse: EG + OG + Keller + Staffelgeschoss
Anzahl der Personen, Alter: zwei Erw. Mitte 30 und zwei Kinder und evnt. Schwiegereltern für das SG.
Raumbedarf im EG, OG, SG (Ausbaufähig)
Büro: Homeoffice notwendig im Keller (Souterrain)
offene oder geschlossene Architektur: EG offen, offene Küche mit KochIinsel, moderner Baustill, hohe Decken (2,80m)
Anzahl Essplätze : 10
Kamin: ja
Dachterrasse: ja
Einzelgararge + Carport
Garten ja
Luftraum Ja
Hausentwurf
Architekt (Vorentwurf)
Heiztechnik: Luft-Wasser-Wärmepumpe. Es ist auch eine direkt in der Nähe bestehende Gasleitung (event. Hybridsysteme)
Raumlüftung: noch unentschlossen, für Anregung offen
Wünsche wurden vom Architekten umgesetzt?
- möglichst offen gestaltetes EG mit Esse- und Wohnbereich der durch einen Kamin optisch getrennt wird
- im Wohnbereich, wenn möglich, eine Wendeltreppe die direkt ins OG führt (kurzer Weg ins Schafzimmer und auch wegen der Optik), sofern dies nicht überladen wirkt.
- Das Haus sollte später ohne große Umbauten in ein Familienhaus umgebaut werden können. Entsprechende Vorrichtungen sollten vorgesehen werden und genehmigungsfähig eingereicht werden
Was ist die wichtigste/grundlegende Frage zum Grundriss in 130 Zeichen zusammengefasst?
Was kann verbessert werden, wie lässt sich der Grundriss den obigen Wunschvorgaben nach optimal gestalten/umsetzten? Wohn- und Essbereich, zusätzliches Zimmer im EG mit der Option später auch ein zweites zu realisieren.
sind die Größen der Räume dem Zweck entsprechend ausreichend?
Was ist Eurer Meinung nach nicht sinnvoll geplant bzw. den Wunsch entsprechend noch nicht berücksichtigt?
Herzlichen Dank
B
Boby_Richy23.12.20 22:11Ysop*** schrieb:
Ich meinte eher, Bäder vergrößern. Die wirken im Vergleich echt klein.
stimmt. Wir haben heute einen angepassten Entwurf mit einiges umgeworfen. Das in der Mitte stehende Bad im OG ist ein Kinderbad.
hampshire schrieb:
Mich wundert immer wieder auf wie kleinen Wohnzimmermöbel Menschen mit dem Rücken zu den Fenstern sitzen wollen. Hier gleich zweimal. Die Großzügigkeit des "Wohnsitzens" steht in einem eigenartigen Verhältnis zum eher knappen Essbereich. Ebenfalls sind die Bäder iim Verhältnis zur Hausgröße sehr klapp ausgefallen. Den Gedanken der zweiten Treppe finde ich prima. Die Position der Wendeltreppe sorgt allerdings für einen beengten Essbereich und eine tote Ecke im EG. Alles irgendwie nicht wirklich elegant. Meins wäre das nicht - obwohl ich mit außergewöhnlichen Entwürfen durchaus etwas anfangen kann.
Fehlende Raumökonomie ist kein Problem wenn man bei den Baukosten großzügig sein kann. Wenn sich die fehlende Raumökonomie dann aber nicht in eine Großzügigkeit im Wohnen oder ästhetischen Zwecken dient ist das schade.
auch das haben wir umgekrempelt, siehe Bilder.
Dem Entwurf fehlt der "Pfiff", den man bei einem Haus mit ähnlichem Budget erwarten könnte. "Anders" und "gut" ist wertvoll. Einfach nur "anders" versenkt Geld.
freue mich auf Kritik und nette Ideen / Vorschläge
Bei der Ankleide ist keine Wand zum Flur? Ich kann das leider nicht erkennennee, schau doch in dem neuen Entwurf. Dort ist das Thema Elternschlafzimmer überarbeitet.B
Boby_Richy23.12.20 22:1311ant schrieb:
Destilliere mal lesbare Pläne aus den Wimmelbildern.danke für den Hinweis. Ich lade gleich die aktuellen Entwürfe hoch.H
hampshire23.12.20 22:32Boby_Richy schrieb:
nee, schau doch in dem neuen Entwurf. Dort ist das Thema Elternschlafzimmer überarbeitet.Ich sehe viele Badezimmer von denen keines großzügig ist. Das meine ich mit knapp (sorry für Schreibfehler oben).B
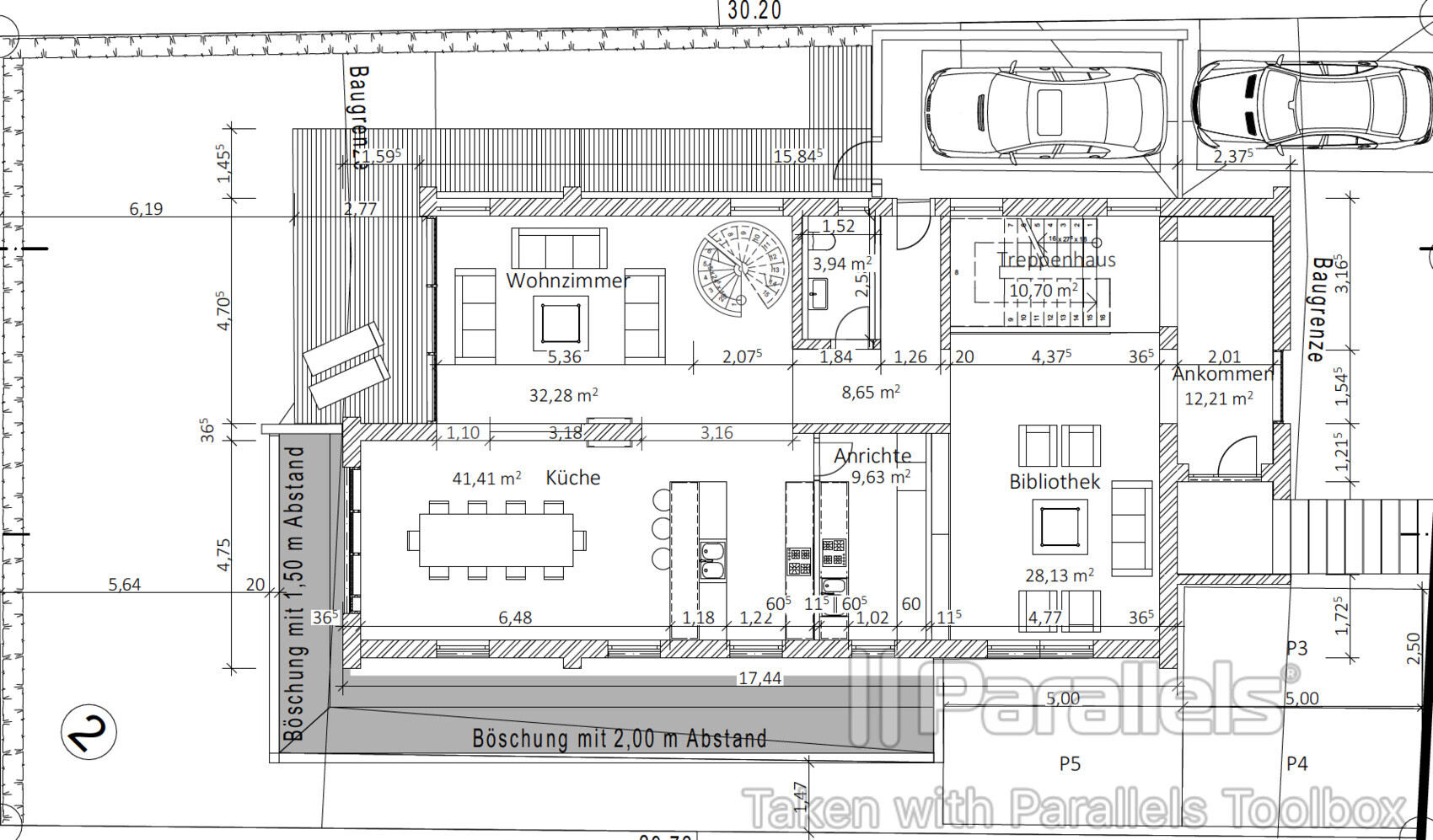
Boby_Richy23.12.20 22:33nun haben wir im EG: das WZ gespiegelt, etwas vergrößert, die Bibibliothek / Zimmer verkleinert, Küche und Essbereich entsprechend vergrößert.
Mit der Treppe weiß nicht so recht?
Und die Böschung von 2 m halte ich für recht groß, was meint Ihr?
OG: Das Elternschlafzimmer angepasst, das Bad vergrößert, das Kinderbad ist leider so verblieben. Wir überlegen, ob wir einen Schlafraum auf die Nordseite ziehen, bisher haben wir alle Räume im Südosten belassen.
SG: ich wüsste wie hier optimiert werden kann.
Keller: finden wir nicht optimal und flexibel genug aufteilt. Dusche fehlt, Aufteilung 2 Arbeitszimmer. Licht -Verhältnisse?
Wir freuen uns auf Kritik und Vorschläge!




Mit der Treppe weiß nicht so recht?
Und die Böschung von 2 m halte ich für recht groß, was meint Ihr?
OG: Das Elternschlafzimmer angepasst, das Bad vergrößert, das Kinderbad ist leider so verblieben. Wir überlegen, ob wir einen Schlafraum auf die Nordseite ziehen, bisher haben wir alle Räume im Südosten belassen.
SG: ich wüsste wie hier optimiert werden kann.
Keller: finden wir nicht optimal und flexibel genug aufteilt. Dusche fehlt, Aufteilung 2 Arbeitszimmer. Licht -Verhältnisse?
Wir freuen uns auf Kritik und Vorschläge!
H
hampshire23.12.20 22:45Küche und Wohnbereich zu tauschen lohnt sich für gesellige Menschen. Gefällt mir besser. Das Umorganisieren des Schlafbereichs oben in eine geöffnete Variante gefällt mir erheblich besser bis auf den schmalen Durchgang zur linken Bettseite und in die Toilette. Ist aber kein wirkliches Problem solange man schlank und gesund bleibt.
Sollte die Wohnung im DG für ältere Leute sein - Möglichkeit einer Aufzugsnachrüstung vorsehen.
Gedankenspiel: Bei Gelegenheit ein Nachbargrundstück kaufen - sonst ist es etwas eng im Garten.
Sollte die Wohnung im DG für ältere Leute sein - Möglichkeit einer Aufzugsnachrüstung vorsehen.
Gedankenspiel: Bei Gelegenheit ein Nachbargrundstück kaufen - sonst ist es etwas eng im Garten.
Ähnliche Themen