ᐅ Neubau eines Einfamilienhaus bzw. Mehrfamilienhaus in Südwesten
Erstellt am: 23.12.20 10:01
B
Boby_RichyB
Boby_Richy23.12.20 10:01Schönen guten Abend,
In einem Neubaugebiet konnten wir Glücklicherweise ein Grundstück erwerben und sind dabei die Planung für den Bauantrag vorzubereiten.
Wir möchten gerne den vorliegenden Entwurf gemeinsam mit Euch optimieren und freuen uns auf einen regen Austausch.
Bebauungsplan/Einschränkungen
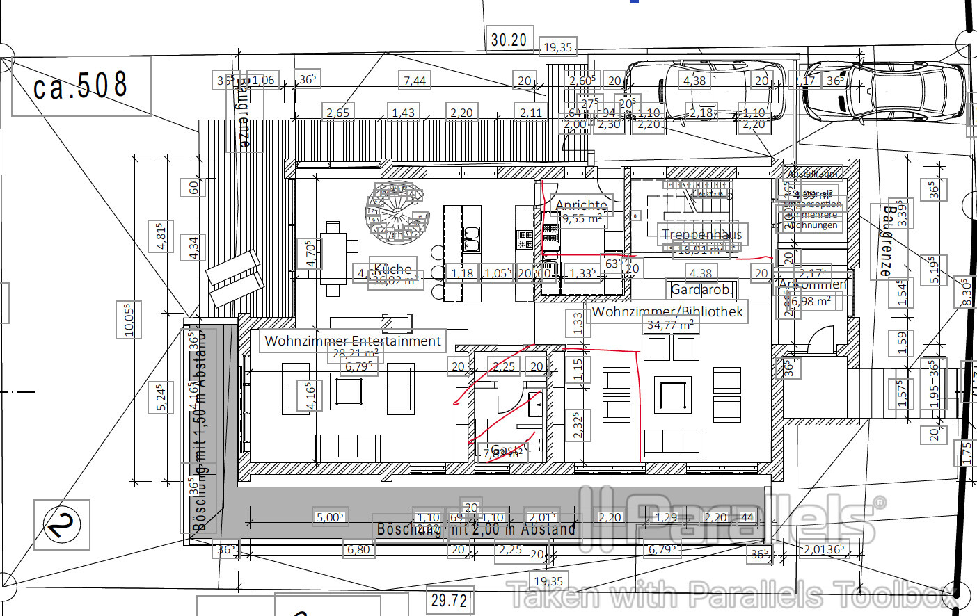
Grundstücks: 509m²
Grundflächenzahl: 0,40
Geschossflächenzahl: 0,80
Baufenster, Baulinie und -grenze
Anzahl Stellplatz: 1,5 je Wohneinheit
Geschossigkeit: max. zwei Vollgeschosse + Staffelgeschoss
Dachform: frei
Stilrichtung: frei
Ausrichtung
Maximale Höhen: max. 9,8m Gebäudehöhe bei Flachdach
Eingang im Norden, Küche: SO, WZ = SW, Schlafzimmer = SO,
Arbeitszimmer: Keller = SO.
Anforderungen Bauherr
Gebäudetyp: modern, Flachdach
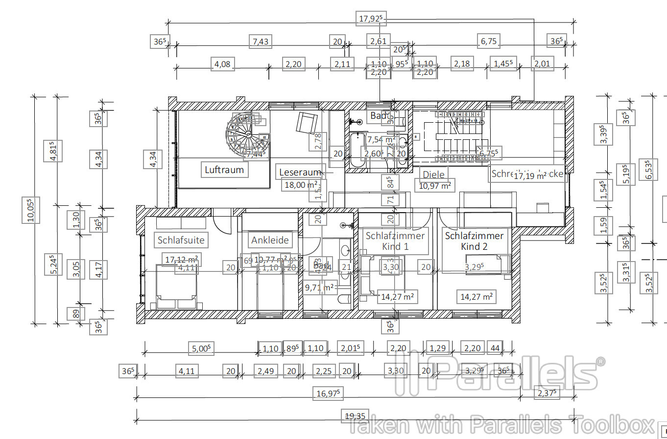
Keller, Geschosse: EG + OG + Keller + Staffelgeschoss
Anzahl der Personen, Alter: zwei Erw. Mitte 30 und zwei Kinder und evnt. Schwiegereltern für das SG.
Raumbedarf im EG, OG, SG (Ausbaufähig)
Büro: Homeoffice notwendig im Keller (Souterrain)
offene oder geschlossene Architektur: EG offen, offene Küche mit KochIinsel, moderner Baustill, hohe Decken (2,80m)
Anzahl Essplätze : 10
Kamin: ja
Dachterrasse: ja
Einzelgararge + Carport
Garten ja
Luftraum Ja
Hausentwurf
Architekt (Vorentwurf)
Heiztechnik: Luft-Wasser-Wärmepumpe. Es ist auch eine direkt in der Nähe bestehende Gasleitung (event. Hybridsysteme)
Raumlüftung: noch unentschlossen, für Anregung offen
Wünsche wurden vom Architekten umgesetzt?
- möglichst offen gestaltetes EG mit Esse- und Wohnbereich der durch einen Kamin optisch getrennt wird
- im Wohnbereich, wenn möglich, eine Wendeltreppe die direkt ins OG führt (kurzer Weg ins Schafzimmer und auch wegen der Optik), sofern dies nicht überladen wirkt.
- Das Haus sollte später ohne große Umbauten in ein Familienhaus umgebaut werden können. Entsprechende Vorrichtungen sollten vorgesehen werden und genehmigungsfähig eingereicht werden
Was ist die wichtigste/grundlegende Frage zum Grundriss in 130 Zeichen zusammengefasst?
Was kann verbessert werden, wie lässt sich der Grundriss den obigen Wunschvorgaben nach optimal gestalten/umsetzten? Wohn- und Essbereich, zusätzliches Zimmer im EG mit der Option später auch ein zweites zu realisieren.
sind die Größen der Räume dem Zweck entsprechend ausreichend?
Was ist Eurer Meinung nach nicht sinnvoll geplant bzw. den Wunsch entsprechend noch nicht berücksichtigt?
Herzlichen Dank



In einem Neubaugebiet konnten wir Glücklicherweise ein Grundstück erwerben und sind dabei die Planung für den Bauantrag vorzubereiten.
Wir möchten gerne den vorliegenden Entwurf gemeinsam mit Euch optimieren und freuen uns auf einen regen Austausch.
Bebauungsplan/Einschränkungen
Grundstücks: 509m²
Grundflächenzahl: 0,40
Geschossflächenzahl: 0,80
Baufenster, Baulinie und -grenze
Anzahl Stellplatz: 1,5 je Wohneinheit
Geschossigkeit: max. zwei Vollgeschosse + Staffelgeschoss
Dachform: frei
Stilrichtung: frei
Ausrichtung
Maximale Höhen: max. 9,8m Gebäudehöhe bei Flachdach
Eingang im Norden, Küche: SO, WZ = SW, Schlafzimmer = SO,
Arbeitszimmer: Keller = SO.
Anforderungen Bauherr
Gebäudetyp: modern, Flachdach
Keller, Geschosse: EG + OG + Keller + Staffelgeschoss
Anzahl der Personen, Alter: zwei Erw. Mitte 30 und zwei Kinder und evnt. Schwiegereltern für das SG.
Raumbedarf im EG, OG, SG (Ausbaufähig)
Büro: Homeoffice notwendig im Keller (Souterrain)
offene oder geschlossene Architektur: EG offen, offene Küche mit KochIinsel, moderner Baustill, hohe Decken (2,80m)
Anzahl Essplätze : 10
Kamin: ja
Dachterrasse: ja
Einzelgararge + Carport
Garten ja
Luftraum Ja
Hausentwurf
Architekt (Vorentwurf)
Heiztechnik: Luft-Wasser-Wärmepumpe. Es ist auch eine direkt in der Nähe bestehende Gasleitung (event. Hybridsysteme)
Raumlüftung: noch unentschlossen, für Anregung offen
Wünsche wurden vom Architekten umgesetzt?
- möglichst offen gestaltetes EG mit Esse- und Wohnbereich der durch einen Kamin optisch getrennt wird
- im Wohnbereich, wenn möglich, eine Wendeltreppe die direkt ins OG führt (kurzer Weg ins Schafzimmer und auch wegen der Optik), sofern dies nicht überladen wirkt.
- Das Haus sollte später ohne große Umbauten in ein Familienhaus umgebaut werden können. Entsprechende Vorrichtungen sollten vorgesehen werden und genehmigungsfähig eingereicht werden
Was ist die wichtigste/grundlegende Frage zum Grundriss in 130 Zeichen zusammengefasst?
Was kann verbessert werden, wie lässt sich der Grundriss den obigen Wunschvorgaben nach optimal gestalten/umsetzten? Wohn- und Essbereich, zusätzliches Zimmer im EG mit der Option später auch ein zweites zu realisieren.
sind die Größen der Räume dem Zweck entsprechend ausreichend?
Was ist Eurer Meinung nach nicht sinnvoll geplant bzw. den Wunsch entsprechend noch nicht berücksichtigt?
Herzlichen Dank
Hallo,
Was ich nicht verstehe, wie ihr oben Platz verschwendet für die zweite Treppe und den Leseraum (ihr habt doch unten noch die Bibliothek?) und dafür die Aufenthaltsräume relativ klein werden. Das Kinderbad mit den hohen Decken zusätzlich erscheint mir von den Proportionen her nicht optimal.
Was ist das für eine Wand von der Ankleide zum Flur? Dort würde ich die Tür hinsetzen, damit man nicht vom Bad aus den ganzen Weg durch das Schlafzimmer muss und evtl. den anderen stört.
Was ich nicht verstehe, wie ihr oben Platz verschwendet für die zweite Treppe und den Leseraum (ihr habt doch unten noch die Bibliothek?) und dafür die Aufenthaltsräume relativ klein werden. Das Kinderbad mit den hohen Decken zusätzlich erscheint mir von den Proportionen her nicht optimal.
Was ist das für eine Wand von der Ankleide zum Flur? Dort würde ich die Tür hinsetzen, damit man nicht vom Bad aus den ganzen Weg durch das Schlafzimmer muss und evtl. den anderen stört.
B
Boby_Richy23.12.20 12:28Was ich nicht verstehe, wie ihr oben Platz verschwendet für die zweite Treppe und den Leseraum (ihr habt doch unten noch die Bibliothek?) und dafür die Aufenthaltsräume relativ klein werden. Das Kinderbad mit den hohen Decken zusätzlich erscheint mir von den Proportionen her nicht optimal.
Vielen Dank für das Feedback.
Die Treppe ist im Nachgang entstanden, da wir haben ohnehin den Luftraum eingeplant hatten. Wir dachten, dies würde funktional sein und optisch gut aussehen. Der "Leseraum" ergibt sich aus dem entstandenen Luftraum. Die u.s. Bibliothe sollte zunächst funktional flexibel bleiben, da wir evnt. dort im Bedarfsfalle zusätzlichen Schlafraum schaffen können.
Das mit der Höhe stimme ich zu. Evnt. abhängen.
Was ist das für eine Wand von der Ankleide zum Flur? Dort würde ich die Tür hinsetzen, damit man nicht vom Bad aus den ganzen Weg durch das Schlafzimmer muss und evtl. den anderen stört.
Ist einheitlich keine Wand vorgesehen. Meinen Sie die Tür direkt an das Kinderbad angrenzend?
Vielen Dank für das Feedback.
Die Treppe ist im Nachgang entstanden, da wir haben ohnehin den Luftraum eingeplant hatten. Wir dachten, dies würde funktional sein und optisch gut aussehen. Der "Leseraum" ergibt sich aus dem entstandenen Luftraum. Die u.s. Bibliothe sollte zunächst funktional flexibel bleiben, da wir evnt. dort im Bedarfsfalle zusätzlichen Schlafraum schaffen können.
Das mit der Höhe stimme ich zu. Evnt. abhängen.
Was ist das für eine Wand von der Ankleide zum Flur? Dort würde ich die Tür hinsetzen, damit man nicht vom Bad aus den ganzen Weg durch das Schlafzimmer muss und evtl. den anderen stört.
Ist einheitlich keine Wand vorgesehen. Meinen Sie die Tür direkt an das Kinderbad angrenzend?
Destilliere mal lesbare Pläne aus den Wimmelbildern.
https://www.instagram.com/11antgmxde/
https://www.linkedin.com/company/bauen-jetzt/
https://www.instagram.com/11antgmxde/
https://www.linkedin.com/company/bauen-jetzt/
H
hampshire23.12.20 20:46Mich wundert immer wieder auf wie kleinen Wohnzimmermöbel Menschen mit dem Rücken zu den Fenstern sitzen wollen. Hier gleich zweimal. Die Großzügigkeit des "Wohnsitzens" steht in einem eigenartigen Verhältnis zum eher knappen Essbereich. Ebenfalls sind die Bäder iim Verhältnis zur Hausgröße sehr klapp ausgefallen. Den Gedanken der zweiten Treppe finde ich prima. Die Position der Wendeltreppe sorgt allerdings für einen beengten Essbereich und eine tote Ecke im EG. Alles irgendwie nicht wirklich elegant. Meins wäre das nicht - obwohl ich mit außergewöhnlichen Entwürfen durchaus etwas anfangen kann.
Fehlende Raumökonomie ist kein Problem wenn man bei den Baukosten großzügig sein kann. Wenn sich die fehlende Raumökonomie dann aber nicht in eine Großzügigkeit im Wohnen oder ästhetischen Zwecken dient ist das schade.
Dem Entwurf fehlt der "Pfiff", den man bei einem Haus mit ähnlichem Budget erwarten könnte. "Anders" und "gut" ist wertvoll. Einfach nur "anders" versenkt Geld.
Fehlende Raumökonomie ist kein Problem wenn man bei den Baukosten großzügig sein kann. Wenn sich die fehlende Raumökonomie dann aber nicht in eine Großzügigkeit im Wohnen oder ästhetischen Zwecken dient ist das schade.
Dem Entwurf fehlt der "Pfiff", den man bei einem Haus mit ähnlichem Budget erwarten könnte. "Anders" und "gut" ist wertvoll. Einfach nur "anders" versenkt Geld.
Boby_Richy schrieb:
Was ich nicht verstehe, wie ihr oben Platz verschwendet für die zweite Treppe und den Leseraum (ihr habt doch unten noch die Bibliothek?) und dafür die Aufenthaltsräume relativ klein werden. Das Kinderbad mit den hohen Decken zusätzlich erscheint mir von den Proportionen her nicht optimal.
Das mit der Höhe stimme ich zu. Evnt. abhängen.
Was ist das für eine Wand von der Ankleide zum Flur? Dort würde ich die Tür hinsetzen, damit man nicht vom Bad aus den ganzen Weg durch das Schlafzimmer muss und evtl. den anderen stört.
Ist einheitlich keine Wand vorgesehen. Meinen Sie die Tür direkt an das Kinderbad angrenzend?Ich meinte eher, Bäder vergrößern. Die wirken im Vergleich echt klein.
Bei der Ankleide ist keine Wand zum Flur? Ich kann das leider nicht erkennen
Ähnliche Themen