B
Bauexperte11.11.15 18:12Guten Abend,
Grüße, Bauexperte
Scratchi schrieb:Ich gehe schon eine Weile schwanger, weil ... diesen Entwurf "kenne" ich sehr gut. Magst Du mir sagen, wer ihn übergeben hat? Gerne auch via PN, wenn Dir das angenehmer ist.
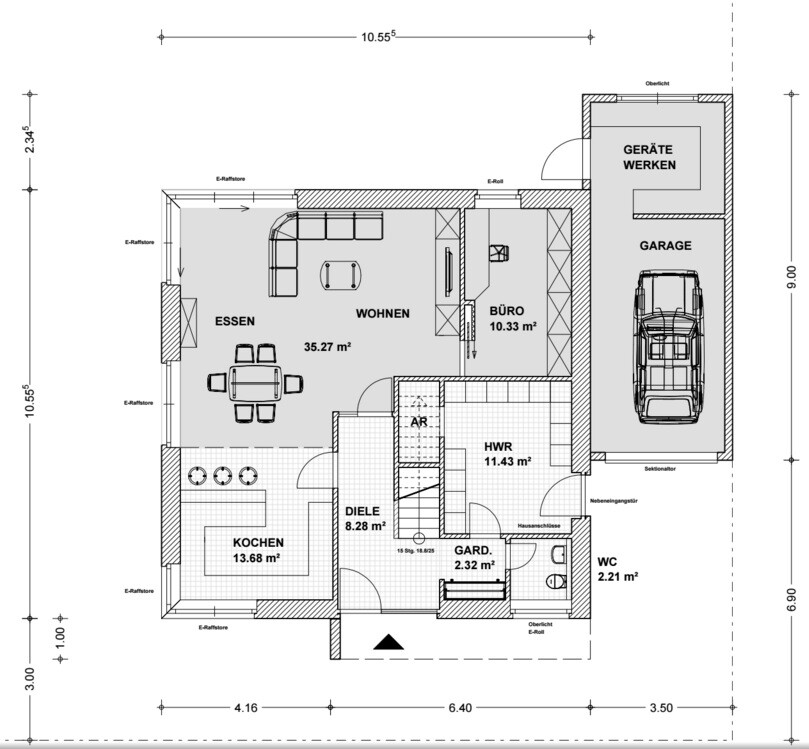
Hausentwurf
Von wem stammt die Planung:
-Planer eines Bauunternehmens
Grüße, Bauexperte
So, da wir bald vor Abschluss stehen, noch mal eine aktuelle Ansicht mit ein paar Ecken die überarbeitet wurden. Eventuell fällt euch ja noch etwas auf.
Die Lücken zwischen den Fenstern im OG werden mit schwarzen Glasplatten verkleidet. So entsteht ein recht schickes Fensterband. Garage und Vordach Hauseingang verputzt, Rest geklinkert.
Die Fenster Größen sind auch noch nicht abschließend geklärt.
Im OG ist die Situation mit Treppenaufgang und Bad noch nicht ganz geklärt. Schön ist diese Ecke natürlich nicht, anders geht uns aber einiges als Verkehrsfläche im Bad verloren. Was meint ihr?

Die Lücken zwischen den Fenstern im OG werden mit schwarzen Glasplatten verkleidet. So entsteht ein recht schickes Fensterband. Garage und Vordach Hauseingang verputzt, Rest geklinkert.
Die Fenster Größen sind auch noch nicht abschließend geklärt.
Im OG ist die Situation mit Treppenaufgang und Bad noch nicht ganz geklärt. Schön ist diese Ecke natürlich nicht, anders geht uns aber einiges als Verkehrsfläche im Bad verloren. Was meint ihr?
Ähnliche Themen