ᐅ Meinungen zu Grundrissen Doppelhaushälfte, die Aufteilung in Ordnung?
Erstellt am: 23.09.13 13:57
N
Neonjay14N
Neonjay1423.09.13 13:57Hallo zusammen,
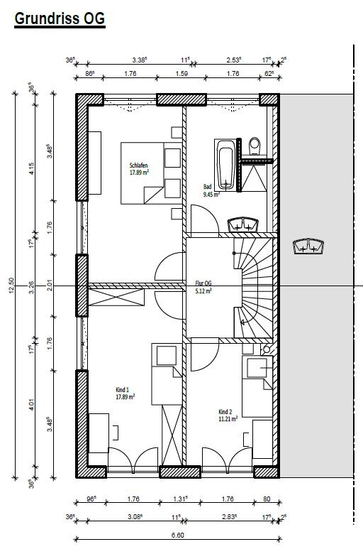
wir haben jetzt den 1. Entwurf der Grundrisse unserer Doppelhaushälfte bekommen und sind auf Eure Meinungen und Anregungen gespannt.
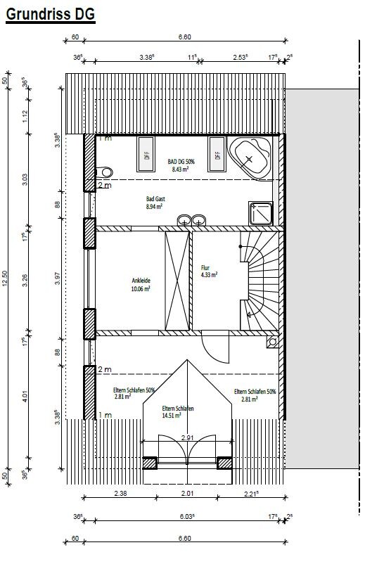
Die Aufteilung der Bäder ist noch nicht final und lediglich ein 1. Entwurf. Das DG wird als Elternstcokwerk genutzt werden. Im OG sind zwei gleich große Kinderzimmer und ein Gäste- und Arbeitszimmer.
Was haltet Ihr von unseren Grundrissen.
Danke für Euer Feedback.
Viele Grüße
Jay




wir haben jetzt den 1. Entwurf der Grundrisse unserer Doppelhaushälfte bekommen und sind auf Eure Meinungen und Anregungen gespannt.
Die Aufteilung der Bäder ist noch nicht final und lediglich ein 1. Entwurf. Das DG wird als Elternstcokwerk genutzt werden. Im OG sind zwei gleich große Kinderzimmer und ein Gäste- und Arbeitszimmer.
Was haltet Ihr von unseren Grundrissen.
Danke für Euer Feedback.
Viele Grüße
Jay
Bei einer Doppelhaushälfte ist man natürlich eingeschränkt, aber einmal 2 Punkte:
1. Ich würde darüber nachdenken, die Treppe abzuschließen und nicht in den Wohnraum zu verlegen. Praktisch würde das bedeuten, die Längswand bis hinter die Treppe zu ziehen. sonst stiefeln Dir die Kinder und Freunde die ganze Zeit durch den Wohnraum. Außerdem begrenzt das Lärm nach oben.
2. Das DG mach vielleicht schön sein, aber nicht ganz praktisch. Ich würde zumindest die Möglichkeit einer zweiten Badtür in Betracht ziehen.
1. Ich würde darüber nachdenken, die Treppe abzuschließen und nicht in den Wohnraum zu verlegen. Praktisch würde das bedeuten, die Längswand bis hinter die Treppe zu ziehen. sonst stiefeln Dir die Kinder und Freunde die ganze Zeit durch den Wohnraum. Außerdem begrenzt das Lärm nach oben.
2. Das DG mach vielleicht schön sein, aber nicht ganz praktisch. Ich würde zumindest die Möglichkeit einer zweiten Badtür in Betracht ziehen.
lastdrop schrieb:
1. Ich würde darüber nachdenken, die Treppe abzuschließen und nicht in den Wohnraum zu verlegen. Praktisch würde das bedeuten, die Längswand bis hinter die Treppe zu ziehen. sonst stiefeln Dir die Kinder und Freunde die ganze Zeit durch den Wohnraum. Außerdem begrenzt das Lärm nach oben.Oder noch besser: Schiebe die Treppe weiter nach "oben" (in Deinem Plan). Tausche Treppe und Garderobe.
tReppe verschieben ist nicht einfach: schliesslich will man vollwertigen Wohnraum im OG und DG, und dort sind ja auch die Treppen.
Weiss auch nicht, wozu eine Garderobe im WZ gut sein soll 😕
Ich würde die schrägen Wände mal geraderücken 🙂
Ansonsten sind die Bäder überarbeitungswürdig -> Waschtisch nähe Fenster, Toilette nicht unter die Schräge..
Oben würde ich auf Wände verzichten.... Naja, vlt die Flurwände stehen lassen 🙄
Weiss auch nicht, wozu eine Garderobe im WZ gut sein soll 😕
Ich würde die schrägen Wände mal geraderücken 🙂
Ansonsten sind die Bäder überarbeitungswürdig -> Waschtisch nähe Fenster, Toilette nicht unter die Schräge..
Oben würde ich auf Wände verzichten.... Naja, vlt die Flurwände stehen lassen 🙄
ypg schrieb:
tReppe verschieben ist nicht einfach: schliesslich will man vollwertigen Wohnraum im OG und DG, und dort sind ja auch die Treppen.
Weiss auch nicht, wozu eine Garderobe im WZ gut sein soll 😕Hast ja recht. Bleibe daher beim Vorschlag, die Wand zu Verlängerung und dadurch die Treppe auszusperren.
N
Neonjay1423.09.13 15:51@ Lastdrop Treppe verschieben, macht wie schon geschrieben, wenig Sinn. Den Flur zu verlängern um das Treppenhaus abzuschließen ist eine Überlegung Wert. Was würden wir denn durch die 2. Badtür gewinnen? Ich sehe da gerade keinen Vorteil drin
@ypg Die schrägen Wände findet meine Partnerin super. Mich stören Sie nicht wirklich. Was gewinnen wir denn, wenn die Wände gerade sind? Das Bad ist wie schon erwähnt noch überhaupt nicht geplant. Das einzige was fix ist, ist die Position des Raumes. Wie das Bad von innen aussieht, muss noch geplant werden. Ein offenes Bad im DG, hatten wir auch zuerst überlegt, aber wir haben uns letztendlich dagegen entschieden.
Danke schon mal für Euer Feedback. Bin auf weiteres gespannt
@ypg Die schrägen Wände findet meine Partnerin super. Mich stören Sie nicht wirklich. Was gewinnen wir denn, wenn die Wände gerade sind? Das Bad ist wie schon erwähnt noch überhaupt nicht geplant. Das einzige was fix ist, ist die Position des Raumes. Wie das Bad von innen aussieht, muss noch geplant werden. Ein offenes Bad im DG, hatten wir auch zuerst überlegt, aber wir haben uns letztendlich dagegen entschieden.
Danke schon mal für Euer Feedback. Bin auf weiteres gespannt
Ähnliche Themen