ᐅ Meinungen, Anregungen und Verbesserungsvorschläge zur Planung
Erstellt am: 11.09.14 23:33
F
flexistoneF
flexistone11.09.14 23:33Hallo miteinander,
wir haben ein Grundstück mit 1.560qm und planen darauf unser neues Eigenheim.
Wir haben schon erste Gespräche mit dem Architekten unserer Wahl geführt und konzentrieren uns auf einen Entwurf, der als Anhang beigefügt ist.
Da wir noch nie ein Haus gebaut haben sind wir natürlich noch sehr unerfahren und würden gerne hier einige Anregungen, gutgemeinte Kritik usw. zu unserem Entwurf bekommen, die uns bei der weiteren Planung helfen können.
Ich hoffe, man kann aus dem Plan alles "erkenne".
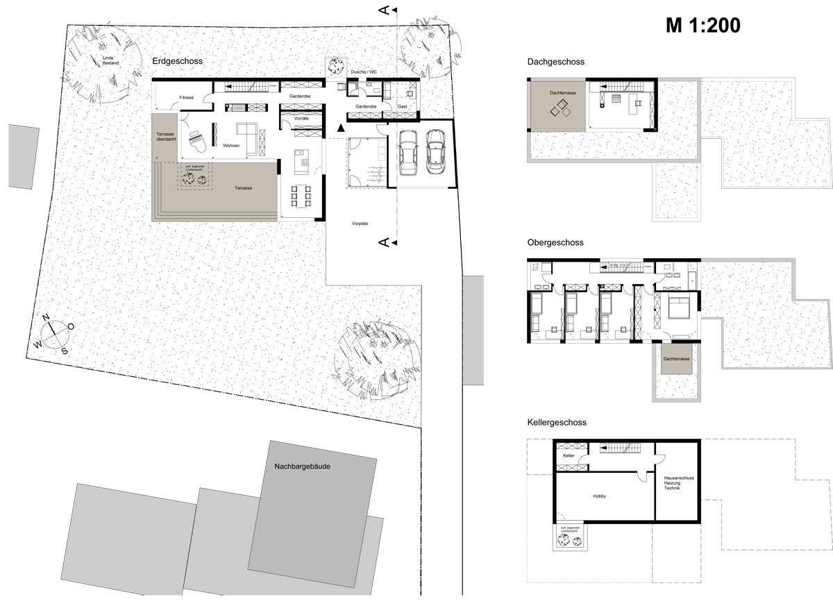
Im Erdgeschoss (welches bedingt durch die leichte Hanglage "hinten" (Seitenoberrand) zu ca 2/3 im Erdreich liegt) befinden sich Gästezimmer, WC, Garderobe, Küche, Speisekammer, Esszimmer, Wohnzimmer, Fitnessraum.
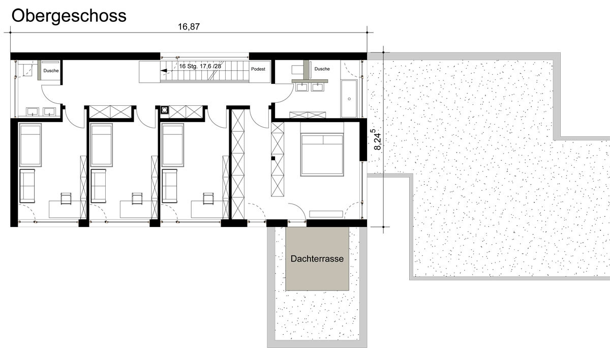
Im Obergeschoss drei Kinderzimmer, Schlafzimmer, Ankleide, Elternbad und Kinderbad.
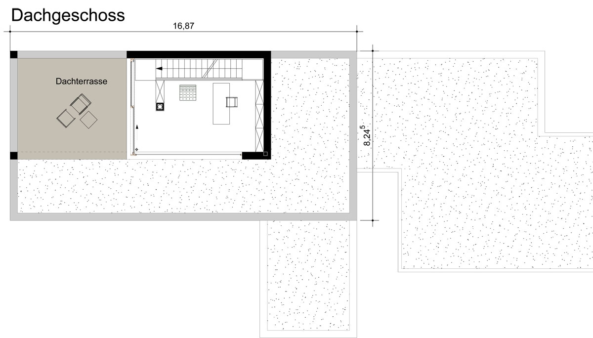
Im zweiten Obergeschoss ein Büro.
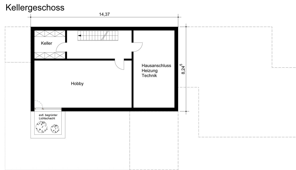
Der Keller ist noch nicht detailliert geplant, da wir noch nicht genau wissen, welche Räume wir hier benötigen.
Vielen Dank schonmal für eure Meinung!

wir haben ein Grundstück mit 1.560qm und planen darauf unser neues Eigenheim.
Wir haben schon erste Gespräche mit dem Architekten unserer Wahl geführt und konzentrieren uns auf einen Entwurf, der als Anhang beigefügt ist.
Da wir noch nie ein Haus gebaut haben sind wir natürlich noch sehr unerfahren und würden gerne hier einige Anregungen, gutgemeinte Kritik usw. zu unserem Entwurf bekommen, die uns bei der weiteren Planung helfen können.
Ich hoffe, man kann aus dem Plan alles "erkenne".
Im Erdgeschoss (welches bedingt durch die leichte Hanglage "hinten" (Seitenoberrand) zu ca 2/3 im Erdreich liegt) befinden sich Gästezimmer, WC, Garderobe, Küche, Speisekammer, Esszimmer, Wohnzimmer, Fitnessraum.
Im Obergeschoss drei Kinderzimmer, Schlafzimmer, Ankleide, Elternbad und Kinderbad.
Im zweiten Obergeschoss ein Büro.
Der Keller ist noch nicht detailliert geplant, da wir noch nicht genau wissen, welche Räume wir hier benötigen.
Vielen Dank schonmal für eure Meinung!
Viel kann man leider nicht erkennen, weil alles so klein ist und auch keine Maßangeben dabei sind, aber ich versuch es mal,
- Den Eingang finde ich irgendwie - hm - ungemütlich, gewöhnungsbedürftig, nicht einladend
- Bei den Kinderzimmer fallen mit als erstes die Nischen mit Schränken vor den Zimmer auf. Was soll das? Was für nen Zweck haben diese Nischen? Ich hoffe mal, dass sie nicht sowas wie ne Ankleide ersetzen sollen. Wo bleibt da die Privatsphäre der Kids. Ich würde mich nicht im Flur anziehen wollen, wo jeder vorbei läuft. Auch finde ich die Kinderzimmer ziemlich schmal (schätze mal 2,5-2,80m) und durch die großen Fenster (bodentief?) ist auch kaum Stellmöglichkeit für möbel vorhanden.
- Euer Flur/Garderobe sieht eher aus, wie eine Abstellkammer. Wieso die ganzen Schränke? Ihr habt doch im Keller genug Abstellfläche.
- Die Küche ist sehr unpraktisch - Wo ist die überhaupt? Nur der kleine Küchenblock? Wollt ihr wirklich immer an der Kücheninsel vorbei schlüpfen um zum Esstisch zu kommen? Das wird sehr eng. Fände ich als Gast auch nicht einladend, wenn ich erstmal durch die Küche und am Vorratsraum vorbei muss. Wo lagert ihre eure ganzen Küchensachen wie Geschirr, Gläser, Kaffeemaschine, Toaster - alles auf dem Küchenblock - dann wirkt es schnell unaufgeräumt und damit wieder ungemütlich.
- Der Treppenaufgang EG - OG ist auch sehr eng. Warum vor der Treppe nur rund 1 Meter Platz?
- die Ankleide gefällt mir auch nicht. Wieder muss man erst mal an zig Schränken vorbei, um zu dem eigentlichen Ziel - dem Bett zu kommen.
Ihr habt ein großes Haus geplant, aber leider wirkt alles total eng und voll gestellt und in sehr vielen Dingen unpraktisch. Ihr habt so ein schönes Grundstück, da könnt ihr was schöneres/besseres planen. Ich würde nochmal bei Null anfangen.
- Den Eingang finde ich irgendwie - hm - ungemütlich, gewöhnungsbedürftig, nicht einladend
- Bei den Kinderzimmer fallen mit als erstes die Nischen mit Schränken vor den Zimmer auf. Was soll das? Was für nen Zweck haben diese Nischen? Ich hoffe mal, dass sie nicht sowas wie ne Ankleide ersetzen sollen. Wo bleibt da die Privatsphäre der Kids. Ich würde mich nicht im Flur anziehen wollen, wo jeder vorbei läuft. Auch finde ich die Kinderzimmer ziemlich schmal (schätze mal 2,5-2,80m) und durch die großen Fenster (bodentief?) ist auch kaum Stellmöglichkeit für möbel vorhanden.
- Euer Flur/Garderobe sieht eher aus, wie eine Abstellkammer. Wieso die ganzen Schränke? Ihr habt doch im Keller genug Abstellfläche.
- Die Küche ist sehr unpraktisch - Wo ist die überhaupt? Nur der kleine Küchenblock? Wollt ihr wirklich immer an der Kücheninsel vorbei schlüpfen um zum Esstisch zu kommen? Das wird sehr eng. Fände ich als Gast auch nicht einladend, wenn ich erstmal durch die Küche und am Vorratsraum vorbei muss. Wo lagert ihre eure ganzen Küchensachen wie Geschirr, Gläser, Kaffeemaschine, Toaster - alles auf dem Küchenblock - dann wirkt es schnell unaufgeräumt und damit wieder ungemütlich.
- Der Treppenaufgang EG - OG ist auch sehr eng. Warum vor der Treppe nur rund 1 Meter Platz?
- die Ankleide gefällt mir auch nicht. Wieder muss man erst mal an zig Schränken vorbei, um zu dem eigentlichen Ziel - dem Bett zu kommen.
Ihr habt ein großes Haus geplant, aber leider wirkt alles total eng und voll gestellt und in sehr vielen Dingen unpraktisch. Ihr habt so ein schönes Grundstück, da könnt ihr was schöneres/besseres planen. Ich würde nochmal bei Null anfangen.
F
flexistone12.09.14 08:28Wie groß sind die einzelnen Zimmer. Nur mit den Außenmaßen können wir nicht viel anfangen.
Fitnessraum, würde ich in den Keller Verlegen und den Platz dem engen Wohnzimmer zuschlagen
Unser Haus hat nur knappe 9m auf 12,50m, aber irgendwie ist bzw. wirkt das größer, obwohl wir im OG auch 3 Kinderzimmer und 2 Bäder und nen großen Flur haben. Genauso im EG - und wir haben keinen Keller.
Hast du mal Ansichten von außen?
Fitnessraum, würde ich in den Keller Verlegen und den Platz dem engen Wohnzimmer zuschlagen
Unser Haus hat nur knappe 9m auf 12,50m, aber irgendwie ist bzw. wirkt das größer, obwohl wir im OG auch 3 Kinderzimmer und 2 Bäder und nen großen Flur haben. Genauso im EG - und wir haben keinen Keller.
Hast du mal Ansichten von außen?
F
flexistone12.09.14 08:49Manu1976 schrieb:
Viel kann man leider nicht erkennen, weil alles so klein ist und auch keine Maßangeben dabei sind, aber ich versuch es mal,Hallo - Danke schonmal für Deine Anmerkungen - habe auch schon "bessere" Ansichten eingestellt. Wollte niemanden mit zu vielen Bildern überfrachten.Manu1976 schrieb:
- Den Eingang finde ich irgendwie - hm - ungemütlich, gewöhnungsbedürftig, nicht einladend In welcher Hinsicht - weil er so schmal ist oder weshalb? Die Durchgangsbreite ist im Moment 2m - soll aber auf 2,5m erweitert werden, damit der Effekt der langen Röhre verschwindet und hinten raus soll ein bodentiefes großes Fenster hin.
Manu1976 schrieb:
Bei den Kinderzimmer fallen mit als erstes die Nischen mit Schränken vor den Zimmer auf. Was soll das? Was für nen Zweck haben diese Nischen? Diese Änderung habe ich ehrlich gesagt auch nicht ganz verstanden - wurde seit der letzten Besprechung eingefügt. Ich möchte ohnehin die Tiefe des gesamten Hauses um ca. 1m vergrößern, so dass der Platz, der den Kinderzimmern genommen wird, wieder dazukommt.Manu1976 schrieb:
Ich hoffe mal, dass sie nicht sowas wie ne Ankleide ersetzen sollen. Wo bleibt da die Privatsphäre der Kids. Ich würde mich nicht im Flur anziehen wollen, wo jeder vorbei läuft.Stimme ich Dir voll zu - wie gesagt, diese Änderung im Plan habe ich gar nicht so vorgesehen. Die hat der Architekt oder sein Zeichner(?) jetzt erst beim 1:100-Plan eingebaut.Manu1976 schrieb:
Auch finde ich die Kinderzimmer ziemlich schmal (schätze mal 2,5-2,80m) und durch die großen Fenster (bodentief?) ist auch kaum Stellmöglichkeit für Möbel vorhanden. Im Moment wären die Kinderzimmer 3m breit und ca. 4,7m lang.Manu1976 schrieb:
- Euer Flur/Garderobe sieht eher aus, wie eine Abstellkammer. Wieso die ganzen Schränke? Ihr habt doch im Keller genug Abstellfläche. Garderobenschränke - Schuhschränke - alles für Frau und Kind!Manu1976 schrieb:
- Die Küche ist sehr unpraktisch - Wo ist die überhaupt? Nur der kleine Küchenblock? Wollt ihr wirklich immer an der Kücheninsel vorbei schlüpfen um zum Esstisch zu kommen? Das wird sehr eng. Fände ich als Gast auch nicht einladend, wenn ich erstmal durch die Küche und am Vorratsraum vorbei muss. Wo lagert ihre eure ganzen Küchensachen wie Geschirr, Gläser, Kaffeemaschine, Toaster - alles auf dem Küchenblock - dann wirkt es schnell unaufgeräumt und damit wieder ungemütlich. Der Küchenblock ist 3x1,2m - eigentlich ordentlich groß. Bin aber auch nicht mit der Breite der Schrankzeile zufrieden - hier wollen wir in jedem Fall 3m - damit 5 Einbaubreiten Platz haben. Rechts und links der Insel wäre eigentlich ca. 1,2m Platz - aber ich stimme Dir zu - dass es wohl nicht typisch ist, durch die Küche zum Essplatz zu gehen.Manu1976 schrieb:
- Der Treppenaufgang EG - OG ist auch sehr eng. Warum vor der Treppe nur rund 1 Meter Platz? Was meinst Du mit "vor" der Treppe?Manu1976 schrieb:
die Ankleide gefällt mir auch nicht. Wieder muss man erst mal an zig Schränken vorbei, um zu dem eigentlichen Ziel - dem Bett zu kommen. Ja, man könnte den Durchgang nach "oben" versetzen.Manu1976 schrieb:
Ihr habt ein großes Haus geplant, aber leider wirkt alles total eng und voll gestellt und in sehr vielen Dingen unpraktisch. Ihr habt so ein schönes Grundstück, da könnt ihr was schöneres/besseres planen. Ich würde nochmal bei Null anfangen.also ohne Keller und DG sind wir bei ca. 270qm - ist das immer noch eng?Ähnliche Themen