@kbt09 Du hast es richtig erfasst. Der Gedanke war das Haus ca 5-6m von der Grundstücksgrenze entfernt hin zu stellen, den Raum vor dem Haus und unter der Garage aufzuschütten (eventuell den Platz nutzen für einen Regenwasserspeicher und den dort eingraben) und links vom Haus den Zugang zum Büro als gewundene Treppe oder gekurvten weg Weg (damit es nicht zu steil wird) anzulegen. Die Garage sollte das Grundstück optisch zum Feld nebenan trennen, deswegen schräg ans Haus gesetzt. Etwa 2m zur Grundstücksgrenze von der unteren Ecke aus gesehen.
Kinderzimmer und Schlafzimmer hätten dann Morgensonne und würden sich nicht zu sehr aufheizen im Laufe des Tages, im Winter aber trotzdem noch Sonne mitnehmen. Küche und Wohnzimmer Richtung Südwest, bodentiefe Fenster die man nicht öffnet, eine Bodenfreie Terrassen-Schiebetür, und in der Küche eine Tür nach vorne raus wo im Winter ein Gewächshaus davor gestellt wird das sonst abgebaut ist.
Über der Spüle eine breites (2m) Fenster das nicht geöffnet wird.
So hätten wir links neben dem Haus noch Platz für einen Weg nach hinten in den Garten, der dann etwa die Hälfte der Grundstücksgröße hätte.
Dachfläche gesamt aktuell etwa 235m², die Hälfte nach Südost und Südwest was etwa 1142 kWh/m²a an Ertrag bringt an dieser Position. Nach 15 Jahren hätte die Anlage sich bezahlt gemacht, ohne Förderung. Mit Förderung nach etwa 8.
Kinderzimmer und Schlafzimmer hätten dann Morgensonne und würden sich nicht zu sehr aufheizen im Laufe des Tages, im Winter aber trotzdem noch Sonne mitnehmen. Küche und Wohnzimmer Richtung Südwest, bodentiefe Fenster die man nicht öffnet, eine Bodenfreie Terrassen-Schiebetür, und in der Küche eine Tür nach vorne raus wo im Winter ein Gewächshaus davor gestellt wird das sonst abgebaut ist.
Über der Spüle eine breites (2m) Fenster das nicht geöffnet wird.
So hätten wir links neben dem Haus noch Platz für einen Weg nach hinten in den Garten, der dann etwa die Hälfte der Grundstücksgröße hätte.
Dachfläche gesamt aktuell etwa 235m², die Hälfte nach Südost und Südwest was etwa 1142 kWh/m²a an Ertrag bringt an dieser Position. Nach 15 Jahren hätte die Anlage sich bezahlt gemacht, ohne Förderung. Mit Förderung nach etwa 8.
@reeneex ... die Morgensonne wäre aber nur sehr wenig in den Räumen. Und, Kinderzimmern nutzt die Morgensonne immer recht wenig . Und die Räume, die du geplant hast, sind im Grunde nicht möblierbar. Die Garage nicht nutzbar.
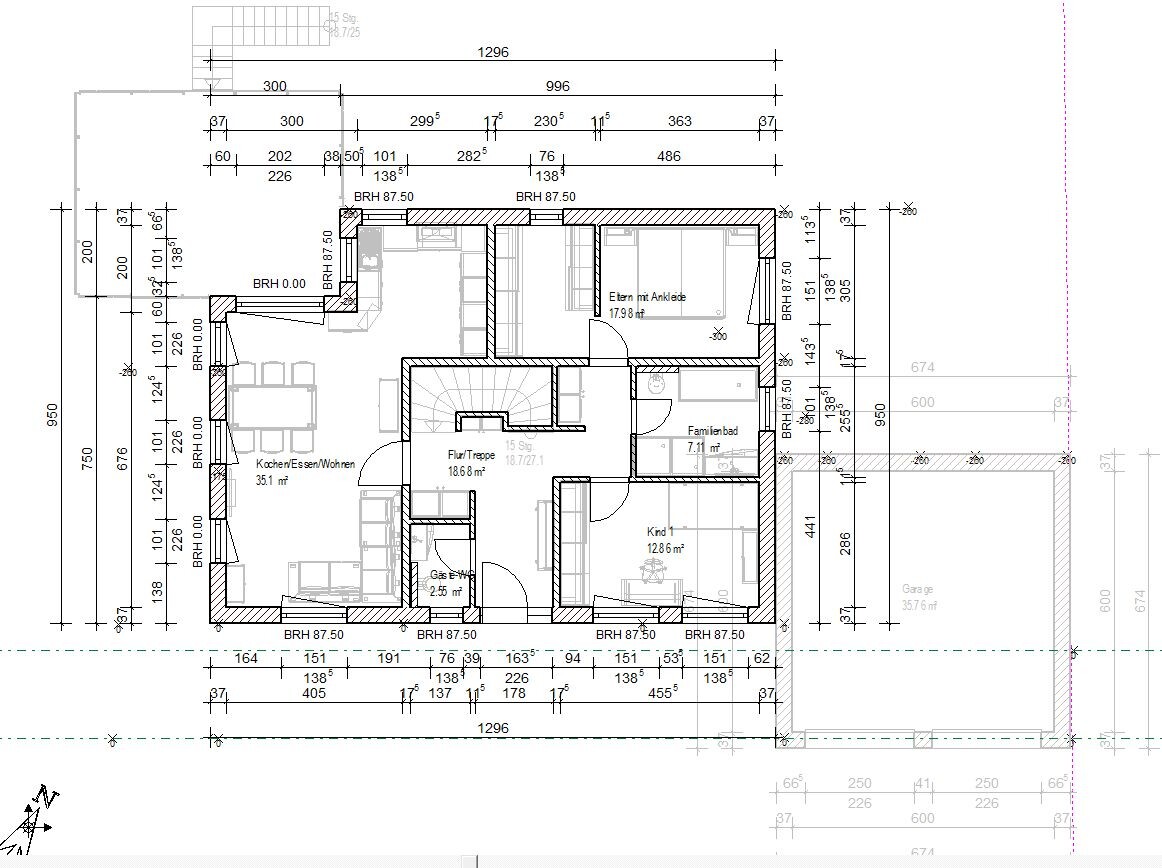
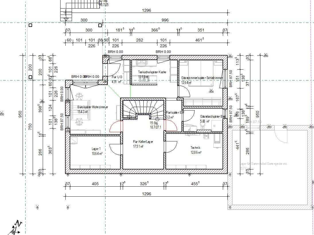
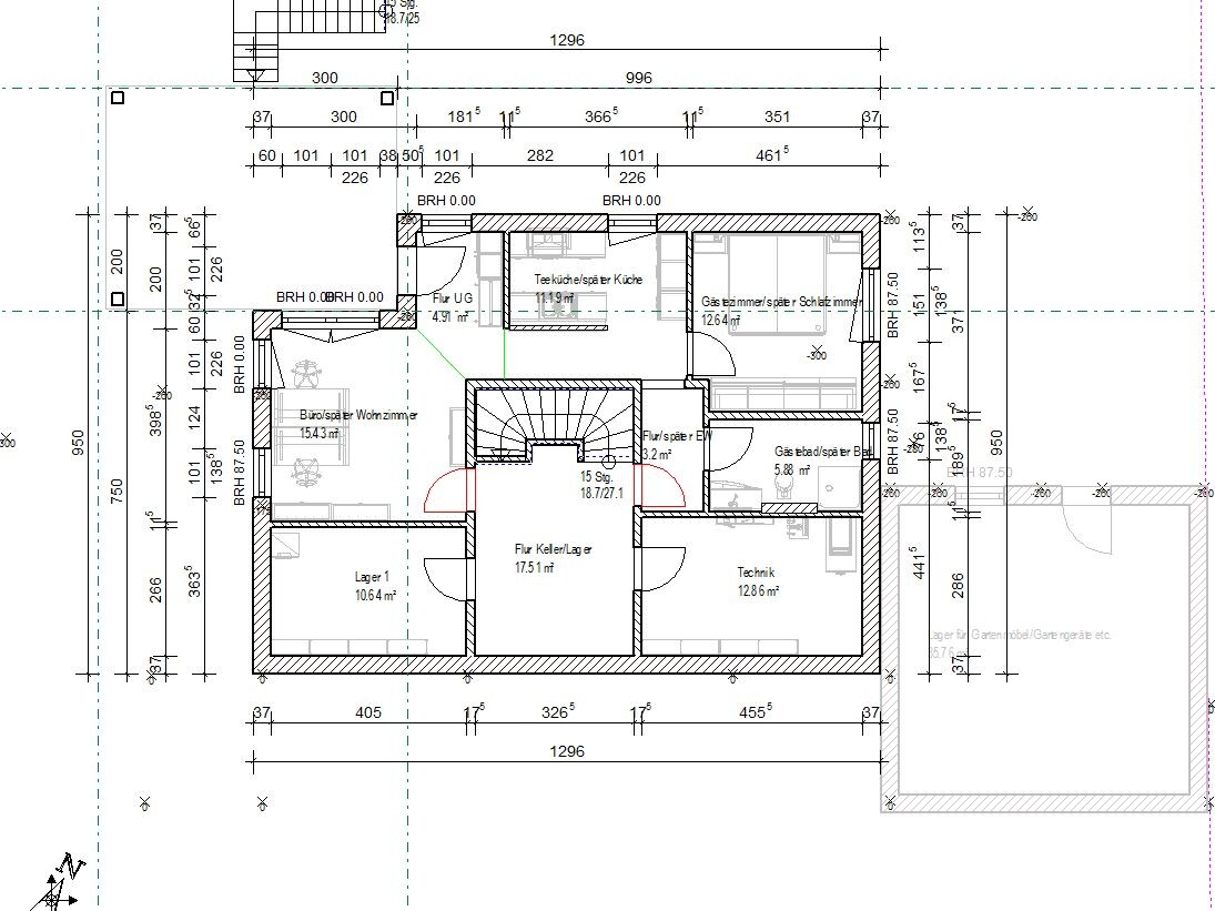
Ich habe mal ein bisschen geschoben, wie ich mir das vorstellen könnte. Ich könnte mir auch ein versetztes Pultdach vorstellen. Dächer kann ich aber nicht so toll, daher eher als Anschauungsskizze zu sehen .
Ich denke, die Grundrisse sollten für sich sprechen. Die rot markierten Türen kann im Fall der Realisierung einer Einliegerwohnung dann einfach schließen und erhält dann im rechten Flur für die Einliegerwohnung noch die Möglichkeit eine Abstellnische für Staubsauger etc. zu schaffen.









Ich habe mal ein bisschen geschoben, wie ich mir das vorstellen könnte. Ich könnte mir auch ein versetztes Pultdach vorstellen. Dächer kann ich aber nicht so toll, daher eher als Anschauungsskizze zu sehen .
Ich denke, die Grundrisse sollten für sich sprechen. Die rot markierten Türen kann im Fall der Realisierung einer Einliegerwohnung dann einfach schließen und erhält dann im rechten Flur für die Einliegerwohnung noch die Möglichkeit eine Abstellnische für Staubsauger etc. zu schaffen.
Hallo kbt09 und guten Morgen,
erst mal vielen Dank für Deine viele Arbeit. Deine Entwürfe haben uns etliches zu bereden gegeben. Fragenliste an den Architekten wächst gerade. Der schlägt morgen hier auf für Beratungen.
Was mich gerade noch brennend interessiert, mit welchem Programm machst Du deine Entwürfe? Bei meinem bekomme ich so eine Reinsicht in die Räume nicht hin. Und die schräge im Grundstück schaffe ich auch nicht richtig darzustellen.
Wir werden hier jetzt noch ein bissel palavern und uns auf den Architekten morgen vorbereiten. Dann melde ich mich wieder mit den Ergebnissen.
Ich wünsche Dir einen schönen Feiertag und Danke noch mal für Deine Mühe.
Matthias
erst mal vielen Dank für Deine viele Arbeit. Deine Entwürfe haben uns etliches zu bereden gegeben. Fragenliste an den Architekten wächst gerade. Der schlägt morgen hier auf für Beratungen.
Was mich gerade noch brennend interessiert, mit welchem Programm machst Du deine Entwürfe? Bei meinem bekomme ich so eine Reinsicht in die Räume nicht hin. Und die schräge im Grundstück schaffe ich auch nicht richtig darzustellen.
Wir werden hier jetzt noch ein bissel palavern und uns auf den Architekten morgen vorbereiten. Dann melde ich mich wieder mit den Ergebnissen.
Ich wünsche Dir einen schönen Feiertag und Danke noch mal für Deine Mühe.
Matthias
Guten Morgen alle miteinander,
wir hatten gestern nun ein ausführliches Gespräch mit dem Architekten. Grundsätzlich arbeiten wir mit seinem Entwurf weiter der nach unseren Wünschen angepasst wird. Es gibt einige Auflagen die bei unserem Entwurf nicht berücksichtigt wurden. Nun ja. Er schickt den neuen Entwurf zeitnah per Mail, möchte aber vorher das Grundstück vermessen lassen, inkl. Höhen.
Hierzu eine Frage. Der von ihm empfohlene Vermesser hat ein pauschalangebot gemacht für die Einmessung und auch spätere Abnahme. Kosten inkl Steuer 2000€. Ist das reell? Laut Architekt ein Spezialpreis, also günstig.
Die angebotenen Leistungen sind:
1. Anfertigung eines Liegenschaftsplan gemäß Bauvorlagenerlaß (1-fach) mit Höhen
2. Feinabsteckung + Ausstellung einer Absteckungsbescheinigung gem. § 65 HBO
3. Gebäudeeinmessung nach Rohbaufertigstellung, gemäß § 21 HVGG
Danke für Meinungen und Infos.
Matthias
wir hatten gestern nun ein ausführliches Gespräch mit dem Architekten. Grundsätzlich arbeiten wir mit seinem Entwurf weiter der nach unseren Wünschen angepasst wird. Es gibt einige Auflagen die bei unserem Entwurf nicht berücksichtigt wurden. Nun ja. Er schickt den neuen Entwurf zeitnah per Mail, möchte aber vorher das Grundstück vermessen lassen, inkl. Höhen.
Hierzu eine Frage. Der von ihm empfohlene Vermesser hat ein pauschalangebot gemacht für die Einmessung und auch spätere Abnahme. Kosten inkl Steuer 2000€. Ist das reell? Laut Architekt ein Spezialpreis, also günstig.
Die angebotenen Leistungen sind:
1. Anfertigung eines Liegenschaftsplan gemäß Bauvorlagenerlaß (1-fach) mit Höhen
2. Feinabsteckung + Ausstellung einer Absteckungsbescheinigung gem. § 65 HBO
3. Gebäudeeinmessung nach Rohbaufertigstellung, gemäß § 21 HVGG
Danke für Meinungen und Infos.
Matthias
reeneex schrieb:
Die angebotenen Leistungen sind:
1. Anfertigung eines Liegenschaftsplan gemäß Bauvorlagenerlaß (1-fach) mit Höhen
2. Feinabsteckung + Ausstellung einer Absteckungsbescheinigung gem. § 65 HBO
3. Gebäudeeinmessung nach Rohbaufertigstellung, gemäß § 21 HVGGDer Preis geht meiner Ansicht nach absolut okay.
Ähnliche Themen