Lampen, Spots und Beleuchtungs-Planungen

4,40 Stern(e) 5 Votes
Zuletzt aktualisiert 21.11.2025
Sie befinden sich auf der Seite 5 der Diskussion zum Thema: Lampen, Spots und Beleuchtungs-Planungen
>> Zum 1. Beitrag <<

Y

ypg

In der Küche gibt es keine Ablufthaube von oben, sondern eine Berbel Moveline Tischhaube und so brauchen wir doch andere Beleuchtung da sonst nicht die ganze Insel beleuchtet ist.
Die Beleuchtung der Kücheninsel über Spots in der Decke würde ich mir noch mal durch den Kopf gehen lassen. Angenehmer zum Arbeiten ist eine Beleuchtung in Kopfhöhe.
Würde ich mir auch überlegen.
Du solltest Dir darüber im klaren sein, dass diese Spotbeleuchtung eine moderne, aber teure Flächen- oder Akzentbeleuchtung ist. Sie kann eingesetzt werden, wenn es der Effekt sein soll, über eine Fläche oder Reihe, zB eine Schrankreihe oder einen langen Flur zu belichten.
Das Licht kann aber auch durch eine normale Lampe oder einen Doppel- oder Dreifachstrahler über einen Deckenauslass gesetzt werden. Das hast Du auch letztendlich gut in den Räumen differenziert.
Manche finden diese Spots also so toll (wie @Knallkörper), dass sie überall zum Einsatz kommen. Das Feature, dass nur 10% bei Bewegung leuchten, zB im Flur oben, finde ich nett. Aber überall Spots einzusetzen, kann sehr unruhig wirken, noch dazu treten unliebsame Spiegelungen auf.
Spots sind aber keine Arbeitsplatzbeleuchtung. Wenn Du sie über eine Insel setzt, dann wirfst Du Dir selbst Schatten.

Für ein Richtwert: bei uns wurden alle 80cm ein Spot auf Fläche gesetzt. Insofern würde ich schon bei Euch 2 Reihen a 4 Spots im Bad verbauen.
Im Schrankraum würde ich noch einen dritten Spot mit einsetzen, 2 wirken irgendwie nicht.

Auch für Spots gilt: ein Raster oder Linie für den Raum anlegen und in Reihe oder Rechteck planen.
Wenn Dir das in der Gesamtheit zu viele Spots sind, würde ich an Eurer Stelle Schrankraum und Bad Spots nehmen und in der Küche darauf verzichten. Denn meist reicht die Arbeitsplatzbeleuchtung, um alle Winkel putzen zu können.
Aber: wo willst Du denn eigentlich Arbeitslicht in der Küche setzen? Ihr habt keine Oberschränke, oder?
Modern ist es ja gerade, Pendelleuchten in Reihe zu setzen. Wenn Ihr das wollt, dann würde ich das über der Insel fortführen. Ansonsten würde ich in Augenhöhe an der Wand, wo die Insel ist, Arbeitslicht installieren.
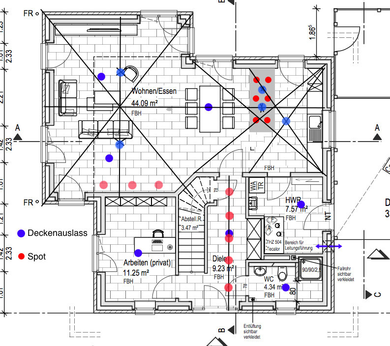
Ich hab mal in Kürze in Deinen Plan Beispiele eingezeichnet. Im Wohnzimmer - ich weiss ja nicht, wie Ihr möblieren wollt - hab ich an die eine Wand beispielhaft 3 Spots gesetzt, die könnten ein schönes Wandbild oder Steinmauer in Szene setzen.
P.s. ic habe jetzt nur Pi mal Auge vermittelt. Für Dich gilt, alles nachzumessen


Grundriss eines offenen Wohn-/Essbereichs mit Möbeln; blaue Decken-Auslässe, rote Spots.
 
ares83

ares83

@ypg Wow, noch mal so ein langer Text mit vielen Tipps. Danke!

So wird die Küche aussehen.
Moderne weisse Kueche mit Insel und Holzfussboden in 3D-Darstellung

Unter den Hängeschränken befinden sich schon mal 5 Lichter. Pendellampen haben wir überlegt über der Insel, aber ich bin mir nicht sicher ob die so wirken und eigentlich wollten wir da nichts in Kopfhöhe haben. Etwas seitliches wäre noch ne Alternative. Da werden wir noch mal überlegen. Ich hatte durch die 2x3 Anordnung der Spots über der Insel gehofft der geworfene Schatten des einen Spots wird vom Licht des anderen eliminiert.
Hah, in der Ankleide waren zuerst 3 geplant, dann werde ich das wieder in die ursprüngliche Planung bringen.
Im Wohnzimmer wird die Möblierung mit Fernseher und L-Couch wohl grob so sei wie eingezeichnet, aber die Leuchten passen wie von dir gezeichnet wirklich gut. Hatte irgendwie ne Hängelampe im Kopf überm Sofa, ist aber Blödsinn. Die 3 Spots finde ich ne coole Idee, wir wollten uns aber die Möglichkeit offen lassen evtl auch da mal die TV Ecke zu platzieren.

Über dem Esstisch soll eine längliche Hängelampe die wir schon haben, da wollte ich ne 10cm Affenschaukel vermeiden.

@Evolith
Vielen Dank für die Tipps. An die Wand der Treppe soll eine Wandlampe, dazu gibt es 4-5 Wandspots als Treppenbeleuchtung. Im Abstellraum kommt eine Lampe ran. Beides haben wir in diesem Plan nicht mit drin da es keine Auswirkung auf die Betondecke hat und später entschieden werden kann.
Im Bad: Beide Duschen bekommen Türen. Von daher spielt das Vorhangproblem keine so große Rolle.
Im ersten Entwurf war keine zentrale Lampe vor dem Spiegelschrank, aus genau den Befürchtungen und das gerichtetes Licht von oben evtl nicht so nett ist um sich selbst im Spiegel anzuschauen. Da werden wir noch mal überlegen.
 
K

Knallkörper

Spots sind aber keine Arbeitsplatzbeleuchtung. Wenn Du sie über eine Insel setzt, dann wirfst Du Dir selbst Schatten.
Ich denke, das kann man so pauschal nicht sagen. Die Spots müssen halt wirklich über der Insel und nicht davon oder dergleichen platziert werden. Im alten Haus haben wir in 80cm Abständen Spots über den Arbeitsflächen, das funktioniert wunderbar. Deckenhöhe 2,90m.
 
Zuletzt aktualisiert 21.11.2025
Im Forum Elektrik / Elektroplanung gibt es 827 Themen mit insgesamt 13602 Beiträgen


Ähnliche Themen zu Lampen, Spots und Beleuchtungs-Planungen
Nr.ErgebnisBeiträge
1Kombination Fliesen und Parkett im Wohnzimmer mit offener Küche - Seite 330
2Grundrissplanung Wohnzimmer-Küche 18
3Fliesen oder Vinyl in Küche und Flur 19
4Wohnen/Essen/Küche: Wie wohnt ihr oder werdet ihr wohnen? - Seite 852
5Beleuchtung in Diele und Küche: Deckeneinbau-Strahler benötigt? - Seite 219
6Grundriss für 150qm Einfamilienhaus mit Wohnzimmer nach Norden - Seite 321
7Offene Küche bereut oder doch das Non plus Ultra? - Seite 10104
8Wohnzimmer Grundrissplanungs-Ideen? - Seite 239
9Wohnzimmer: Wie Sofa, TV und Schränke stellen? - Seite 432
10Meinungen und Hilfe zu Grundriss 12
11Planung Wohnraum & Küche eines Doppelhaushälfte in Nürnberg 13
12Probleme bei der aufteilung Küche, Essen , Wohnen 16
13Grundriss Halboffene Küche mit großem Essbereich - Detailfragen 12
14Grundriss Einfamilienhaus - Problemfall Küche 20
15Esstisch in einer kleinen Küche 49
16Türanschlag zum Wohn/-Essbereich und Beleuchtung Küche 13
173 Jahre fertig - noch keine Deckenlampe für die Küche gefunden! - Seite 247
18Einfamilienhaus - Stadtvilla: Wohnzimmer L oder I Form? 25
19Einteilung Grundriss Allraum Küche Wohnen Essen - Seite 358
20Küche: geschlossen oder offen? Welche Raumaufteilung? 86

Oben