Der Stichweg scheint mir den Acker hinterm Grundstück zu erschliessen, auf dem wohl Getreide wächst. Dieser Weg würde dann auch einmal im Jahr für einen Mähdrescher ausreichen müssen. Zu schmal darf er dann nicht sein, sonst ist Häuslebauers Zaun dahin.
Stimmt das?
Variante zwei schont das Grundstück am meisten, ist am wenigstens zu pflastern, man könnte die zwei Stellplätze sogar parallel zum Weg hintereinander legen. Oder als Schrägparker. Karsten
Stimmt das?
Variante zwei schont das Grundstück am meisten, ist am wenigstens zu pflastern, man könnte die zwei Stellplätze sogar parallel zum Weg hintereinander legen. Oder als Schrägparker. Karsten
Im Norden, wie auf dem Bild zu sehen, hat man im Moment Aussicht auf ein Feld welches den Hügel hinauf geht. Also nichts sehenswertes. In diese Richtung findet eventuell eine Erweiterung des Baugebietes in einigen Jahren statt. Darum auch die Seitenstraße. Und ja, es darf von der Seite angebunden werden.
Edit: Der Mähdrescher könnte diese Straße benutzen, allerdings gibt es auch noch einen Feldweg der Zugang zum Feld verschafft. Von daher unrealistisch, dass der Bauer den Weg durch die Wohnsiedlung nehmen würde.
Edit: Der Mähdrescher könnte diese Straße benutzen, allerdings gibt es auch noch einen Feldweg der Zugang zum Feld verschafft. Von daher unrealistisch, dass der Bauer den Weg durch die Wohnsiedlung nehmen würde.
Ein Feld nicht sehenswert? Der Rehbock stehtvda in der Dämmerung, das Reh führtbdie Kitze aus, der Fuchs sagt dem Hasen gutnacht, der Bussard kreist und greift die Maus, im Frühjahr und Fühsommer wird gespritzt, im Juli August Ernteschlacht, im November kommt die Gülle darauf...nichts zu sehen, Du hast ne Ahnung. Zu sehen und zu riechen genug. [emoji1][emoji1][emoji1]
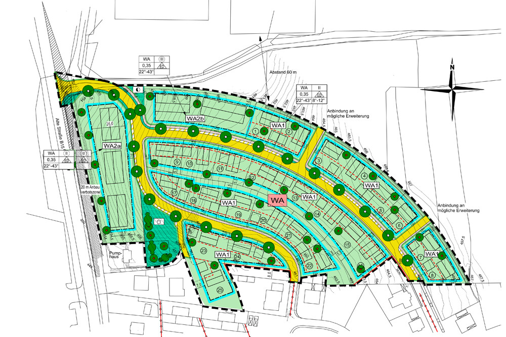
@Escroda Vielen Dank für den Hinweis mit dem Bebauungsplan! Einen solchen gibt es und nach diesem ist leider keine der von uns gedachten Varianten möglich.
Hier sind wir wohl etwas blauäugig an die anfängliche Planung gegangen. :-(
Ich habe einmal den Bebauungsplan angehängt. Es handelt sich um das Grundstück mit der Nr. 3. In den rot schraffierten Flächen dürfen Stellplätze gebaut werden. Außerdem sind noch etliche weitere Bauvorschriften, wie bereits von dir genannt, vorgegeben.
Würdet ihr unter gegebenen Umständen, so bauen wie auf dem Entwurf des Planungsbüro? Oder das Haus mehr in Richtung Nordosten setzen.
Sind Bauvorschriften grundsätzlich einzuhalten oder besteht die Möglichkeit, ggf. mit guter Argumentation oder mit einem Anwalt, dagegen anzugehen?
Ich bin mir durchaus bewusst, dass wir den Bebauungsplan schon vorab gekannt haben, allerdings aufgrund der Situation am Grundstücksmarkt gar nicht näher betrachtet haben. Wir sind froh, überhaupt ein Grundstück gefunden und den Zuschlag bekommen zu haben. Jetzt möchten wir das beste daraus machen.
Vielen Dank für weitere Vorschläge und Hilfe!

Hier sind wir wohl etwas blauäugig an die anfängliche Planung gegangen. :-(
Ich habe einmal den Bebauungsplan angehängt. Es handelt sich um das Grundstück mit der Nr. 3. In den rot schraffierten Flächen dürfen Stellplätze gebaut werden. Außerdem sind noch etliche weitere Bauvorschriften, wie bereits von dir genannt, vorgegeben.
Würdet ihr unter gegebenen Umständen, so bauen wie auf dem Entwurf des Planungsbüro? Oder das Haus mehr in Richtung Nordosten setzen.
Sind Bauvorschriften grundsätzlich einzuhalten oder besteht die Möglichkeit, ggf. mit guter Argumentation oder mit einem Anwalt, dagegen anzugehen?
Ich bin mir durchaus bewusst, dass wir den Bebauungsplan schon vorab gekannt haben, allerdings aufgrund der Situation am Grundstücksmarkt gar nicht näher betrachtet haben. Wir sind froh, überhaupt ein Grundstück gefunden und den Zuschlag bekommen zu haben. Jetzt möchten wir das beste daraus machen.
Vielen Dank für weitere Vorschläge und Hilfe!
Klares ja. So setzen wie im Plan. Der Südost Süd Sw Bereich ist frei. Dein Nachbar, der in 4, muss die andere Firstrichtung wählen. Wenn er nicht ganz doof ist, geht er nach Südosten, um etwas Westsonne abends zu haben. Wenn Du im NW bleibst, legst Du ihm das förmlich nahe. So habt ihr beide schönen Abstand zueinander. Die Auffahrt anders geht bei Dir kaum, na schräge ginge. Wegen der Laterne. Die ist ja schon drin. Ansonsten ein herrlicher Spiesser B Plan, mit Baumzwang auf jedem Grundstück....sind schon eingemalt, die Dinger, sogar schon der Platz für sie wurde gewählt, ist aber wohl nicht bindend. Der Ort, die Kiefer schon. Und an einen B Plan musst Du Dich halten. Ausnahmen nur technischer Art, wenn es zum Bau nötig, nicht ästhetischer Art. Und Anwalt, gegen, vergiss es, Du kanntest das Ding und hast gekauft, somit haste ihn anerkannt. Karsten
Ähnliche Themen